
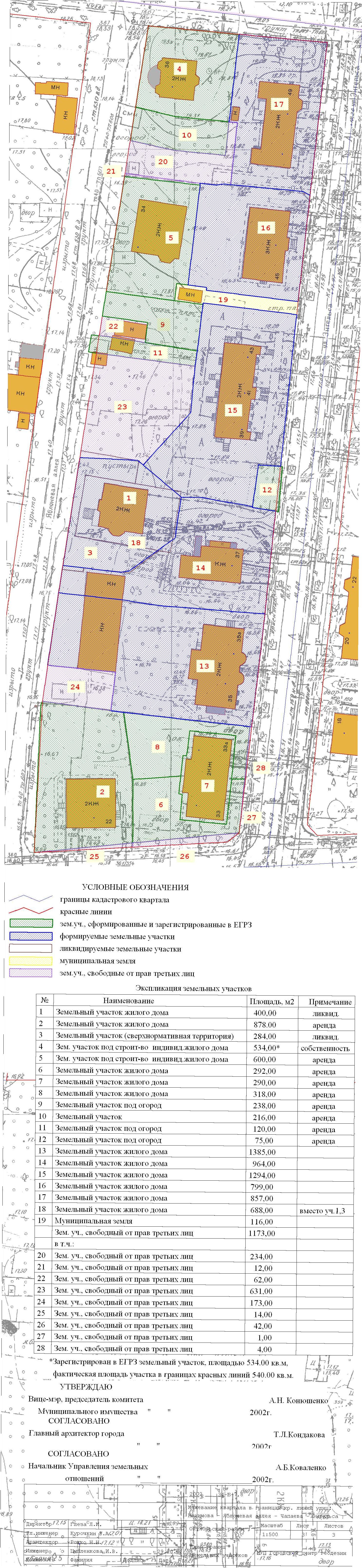
| Наименование проекта: | ул. Нахимова – ул. Яблоневая аллея – ул. Чапаева – ул. Энгельса |
|---|---|
| № на схеме: | 69 |
| Дата утверждения: | 06.12.2002 |
| Материалы проекта: | Постановление № 3228 от 06.12.2002 Опорный план План границ земельных участков Эскиз генерального плана Данные ГП Данные по нормативным и проектным площадям земельных участков Пояснительная записка |
Калининград
