
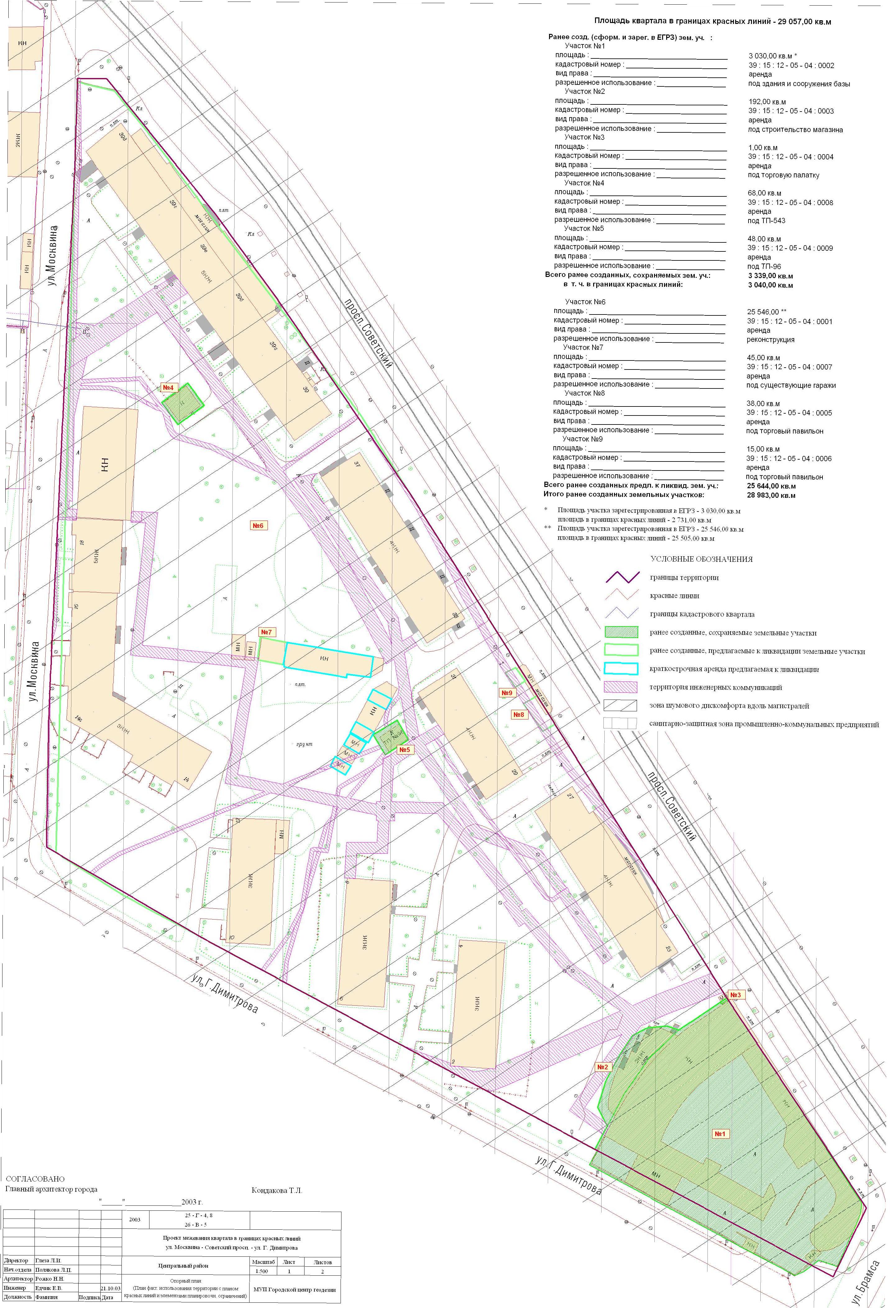
| Наименование проекта: | ул. Москвина – просп. Советский – ул. Г. Димитрова |
|---|---|
| № на схеме: | 101 |
| Дата утверждения: | 11.12.2003 |
| Материалы проекта: | Постановление № 2974 от 11.12.2003 Опорный план План границ земельных участков Данные ГП Данные по нормативным и проектным площадям земельных участков Данные по существующему жилому фонду и населению Пояснительная записка Нормативное благоустройство |
Калининград
