
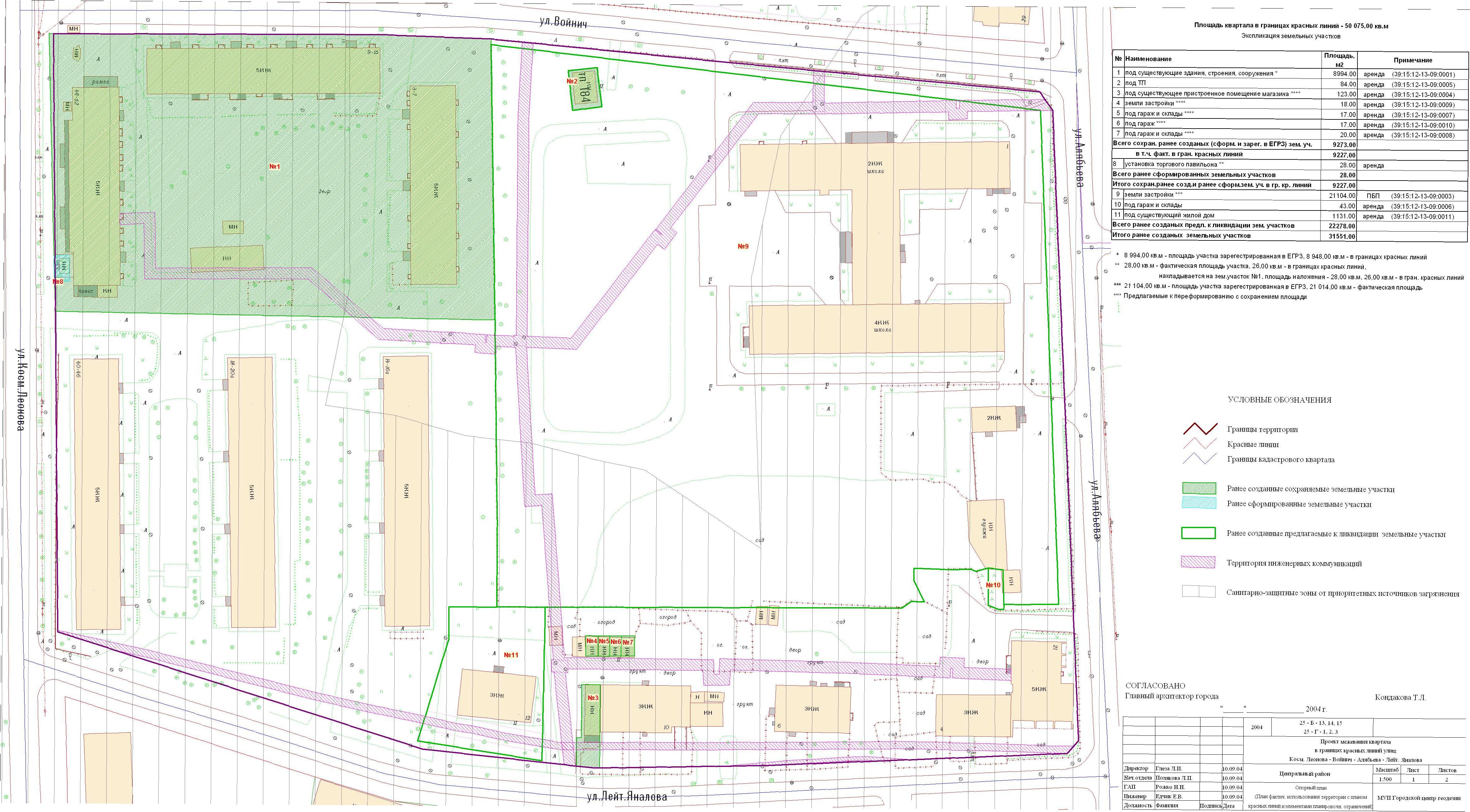
| Наименование проекта: | ул. Косм. Леонова – ул. Войнич – ул. Алябьева – ул. Лейт. Яналова |
|---|---|
| № на схеме: | 111 |
| Дата утверждения: | 04.02.2005 |
| Материалы проекта: | Постановление № 281 от 04.02.2005 Опорный план План границ земельных участков Данные ГП Данные по нормативным и проектным площадям земельных участков Данные по существующему жилому фонду и населению Пояснительная записка Нормативное благоустройство |
Калининград
