
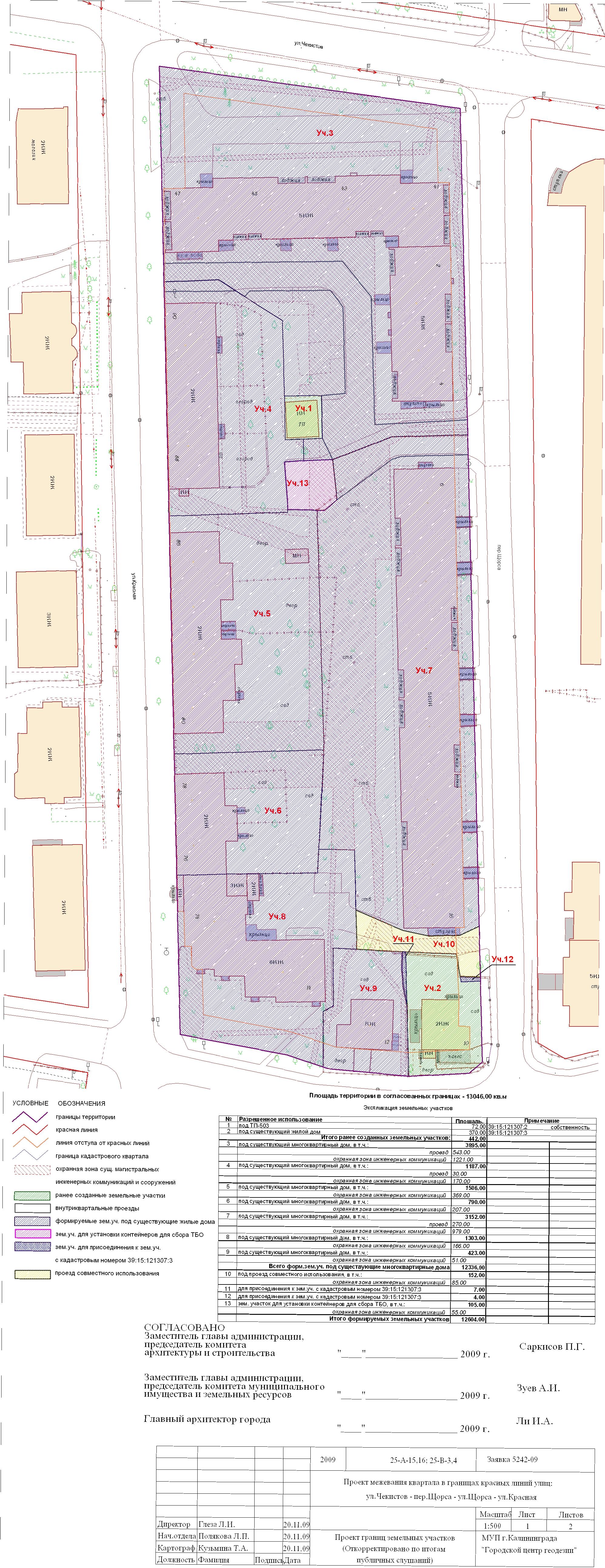
| Наименование проекта: | ул. Чекистов – пер. Щорса – ул. Щорса – ул. Красная |
|---|---|
| № на схеме: | 119 |
| Дата утверждения: | 08.02.2010 |
| Материалы проекта: | Постановление № 170 от 08.02.2010 Опорный план План границ земельных участков Данные ГП Данные по нормативным и проектным площадям земельных участков Данные по существующему жилому фонду и населению Пояснительная записка |
Калининград
