
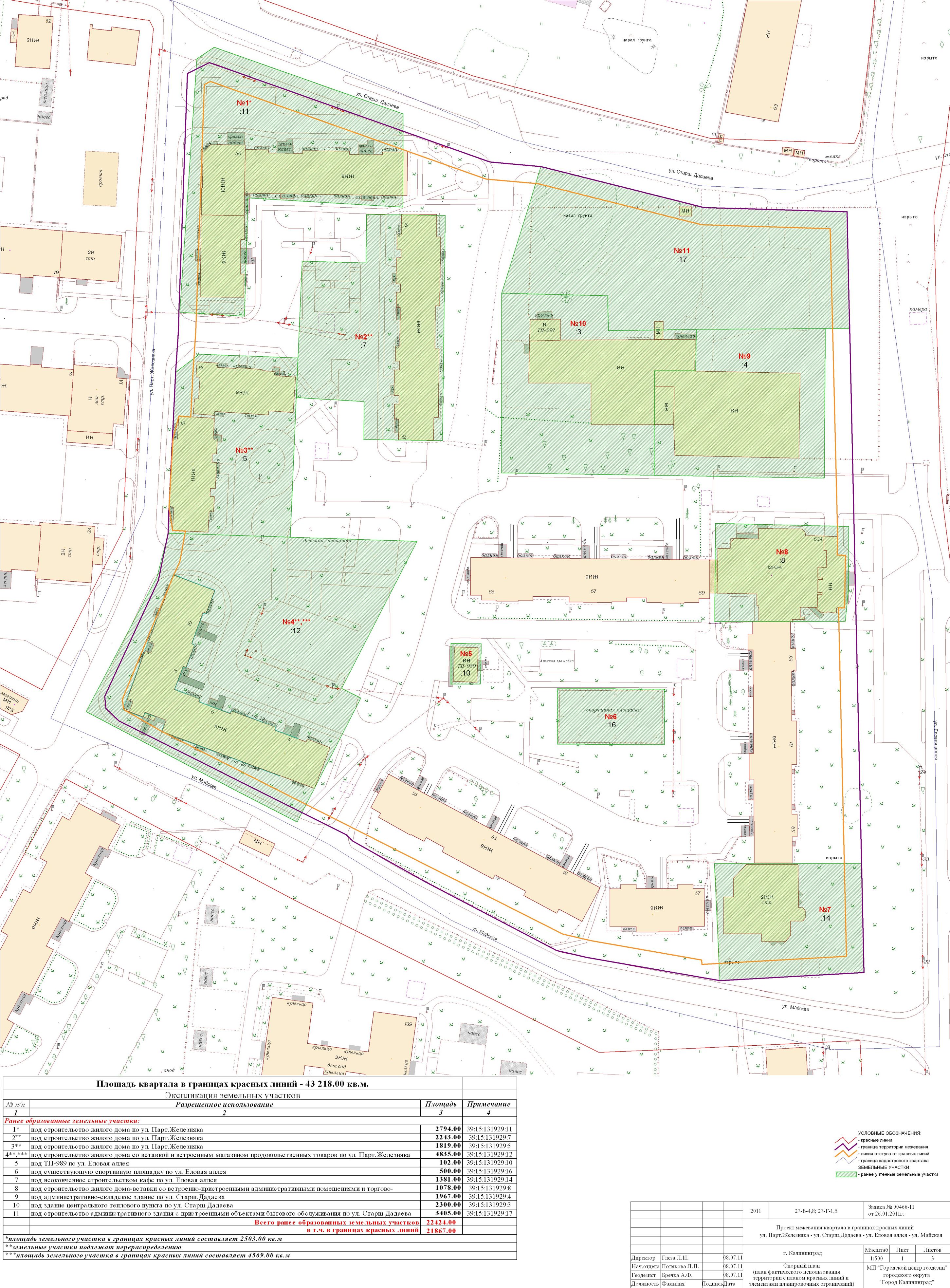
| Наименование проекта: | ул. Парт. Железняка – ул. Старш. Дадаева – ул. Еловая аллея – ул. Майская |
|---|---|
| № на схеме: | 158 |
| Дата утверждения: | 02.12.2011 |
| Материалы проекта: | Постановление № 2131 от 02.12.2011 Опорный план План границ земельных участков Разбивочный чертёж красных линий Пояснительная записка Данные по нормативным и проектным площадям земельных участков |
Калининград
