
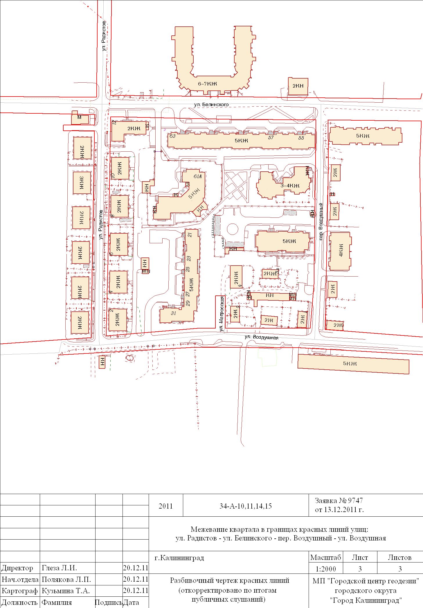
| Наименование проекта: | ул. Радистов – ул. Белинского – пер. Воздушный – ул. Воздушная |
|---|---|
| № на схеме: | 189 |
| Дата утверждения: | 14.04.2012 |
| Материалы проекта: | Постановление № 376 от 14.04.2012 Опорный план План границ земельных участков Разбивочный чертёж красных линий Пояснительная записка Данные по нормативным и проектным площадям земельных участков |
Калининград
