
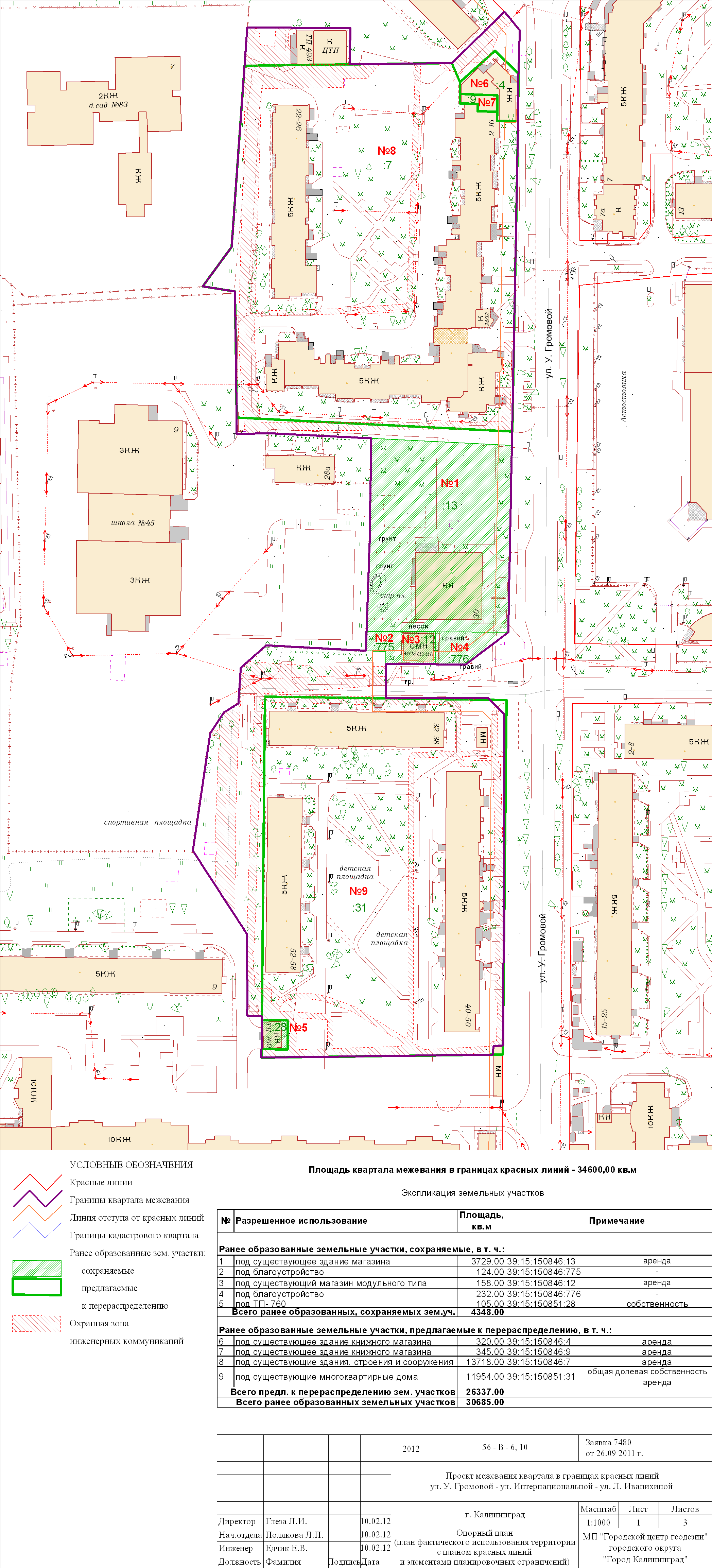
| Наименование проекта: | ул. У. Громовой – ул. Интернациональная – ул. Л. Иванихиной |
|---|---|
| № на схеме: | 194 |
| Дата утверждения: | 29.06.2012 |
| Материалы проекта: | Постановление № 1158 от 29.06.2012 Опорный план Проект границ земельных участков План красных линий Данные по нормативным и проектным площадям земельных участков |
Калининград
