
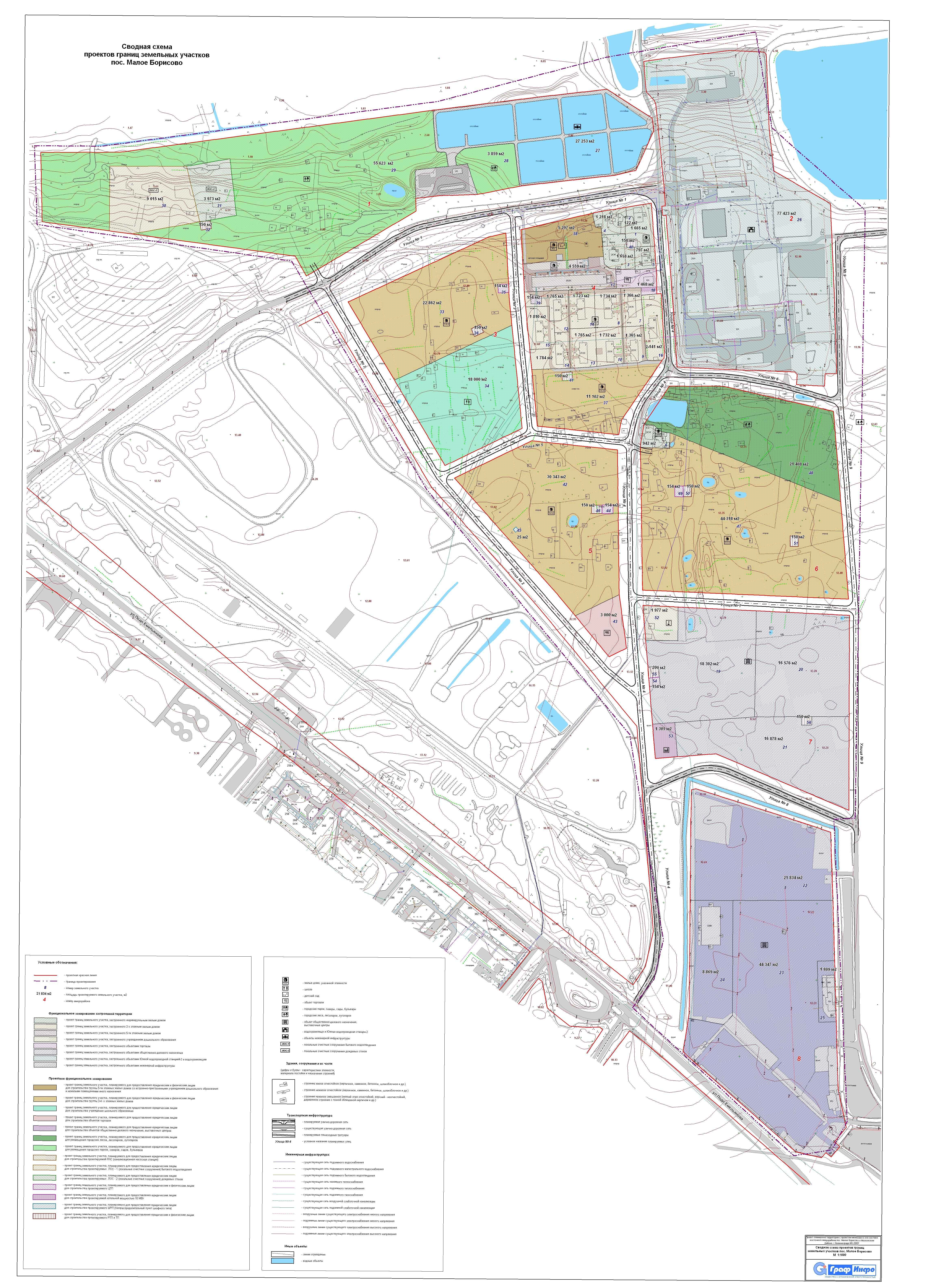
| Наименование проекта: | пос. М. Борисово |
|---|---|
| № на схеме: | 197 |
| Дата утверждения: | 15.09.2009 |
| К проекту планировки: | № 27 |
| Материалы проекта: | Постановление № 1625 от 15.09.2009 Пояснительная записка Сводная схема Схема красных линий |
| Изменения: | В настоящий проект внесены изменения следующими документами: |
Калининград
