
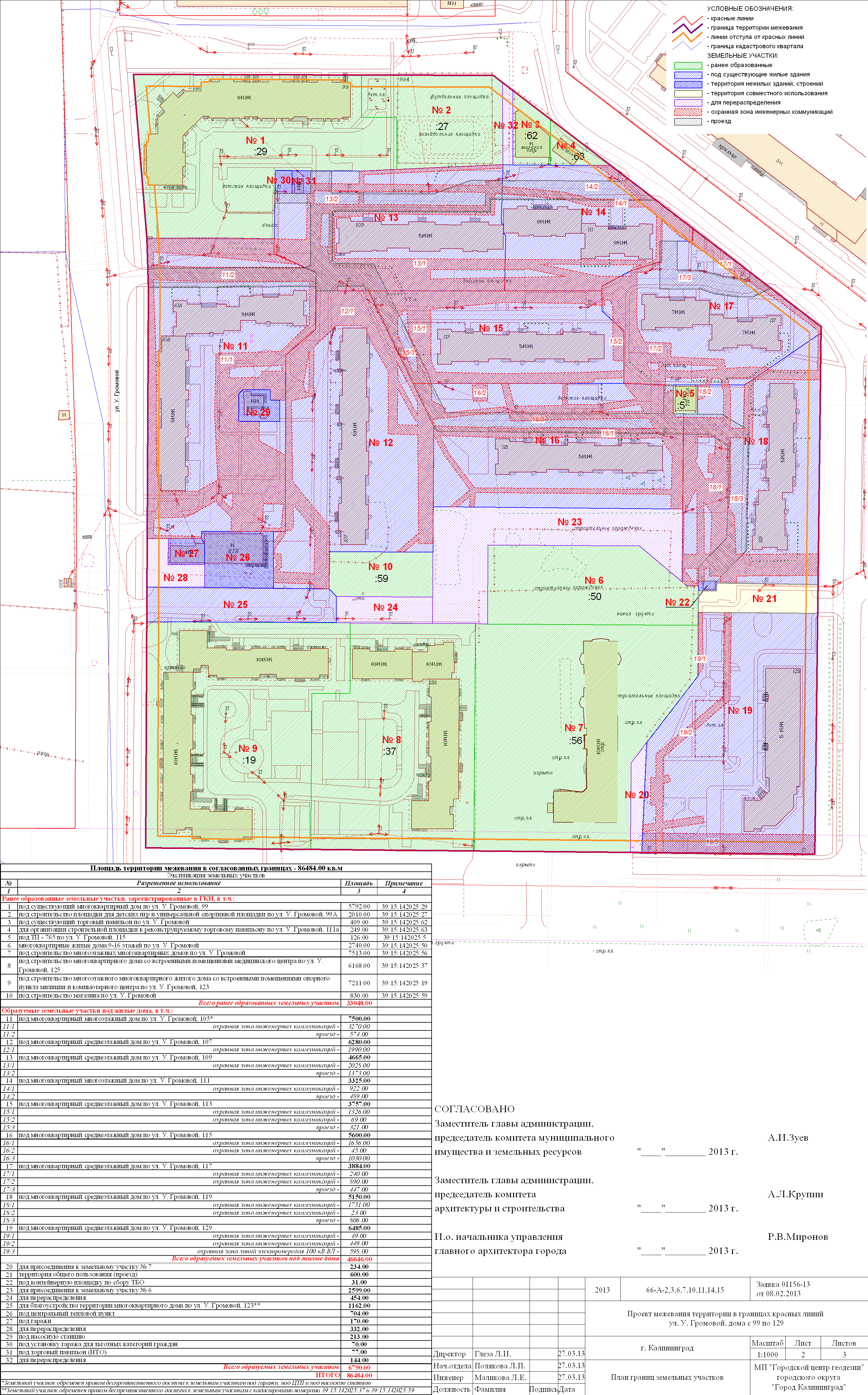
| Наименование проекта: | ул. У. Громовой, дома с 99 по 129 |
|---|---|
| № на схеме: | 302 |
| Дата утверждения: | 19.06.2013 |
| Материалы проекта: | Постановление № 876 от 19.06.2013 Проект границ План красных линий |
| Изменения: | В настоящий проект внесены изменения следующими документами: |
Калининград
