
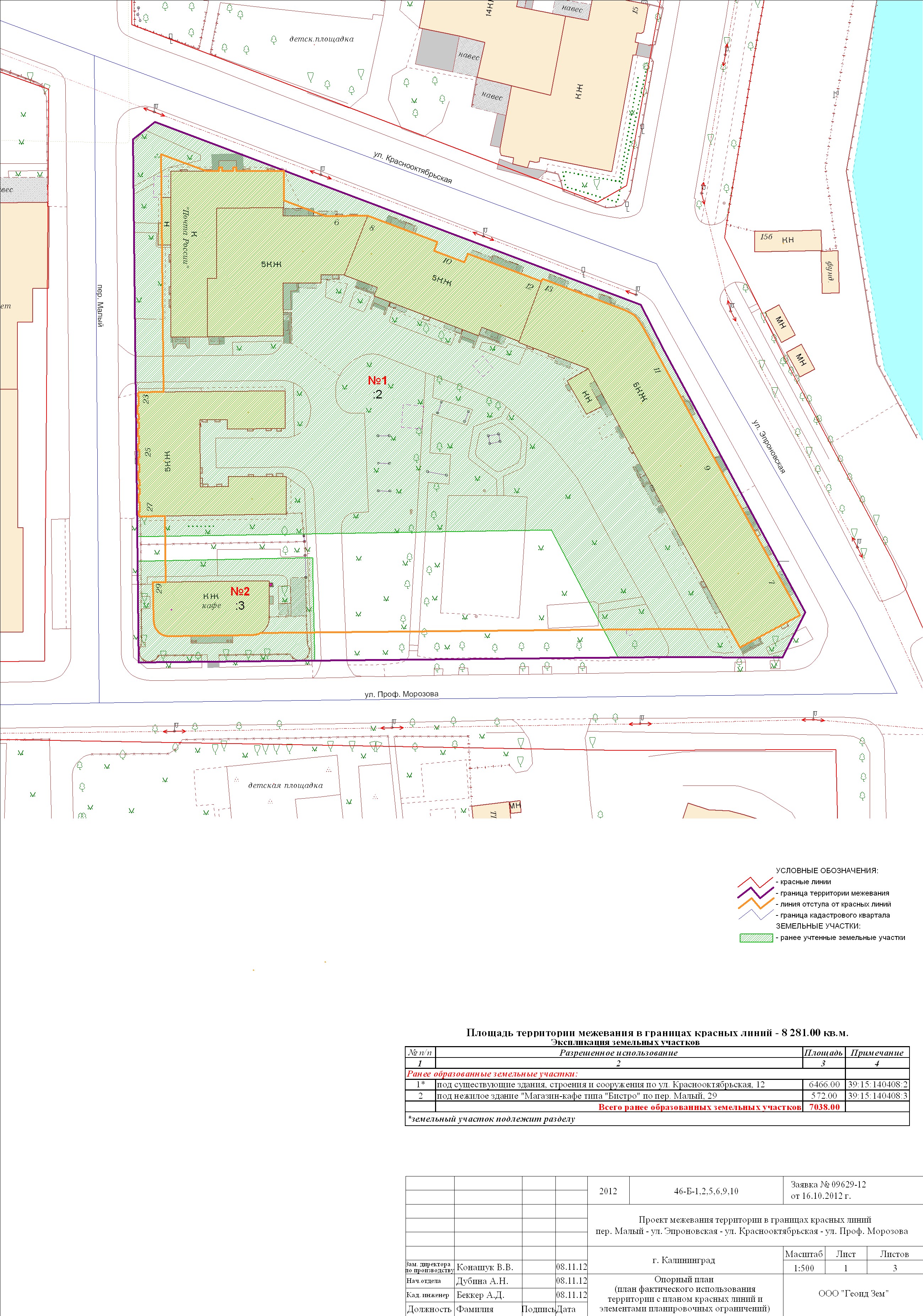
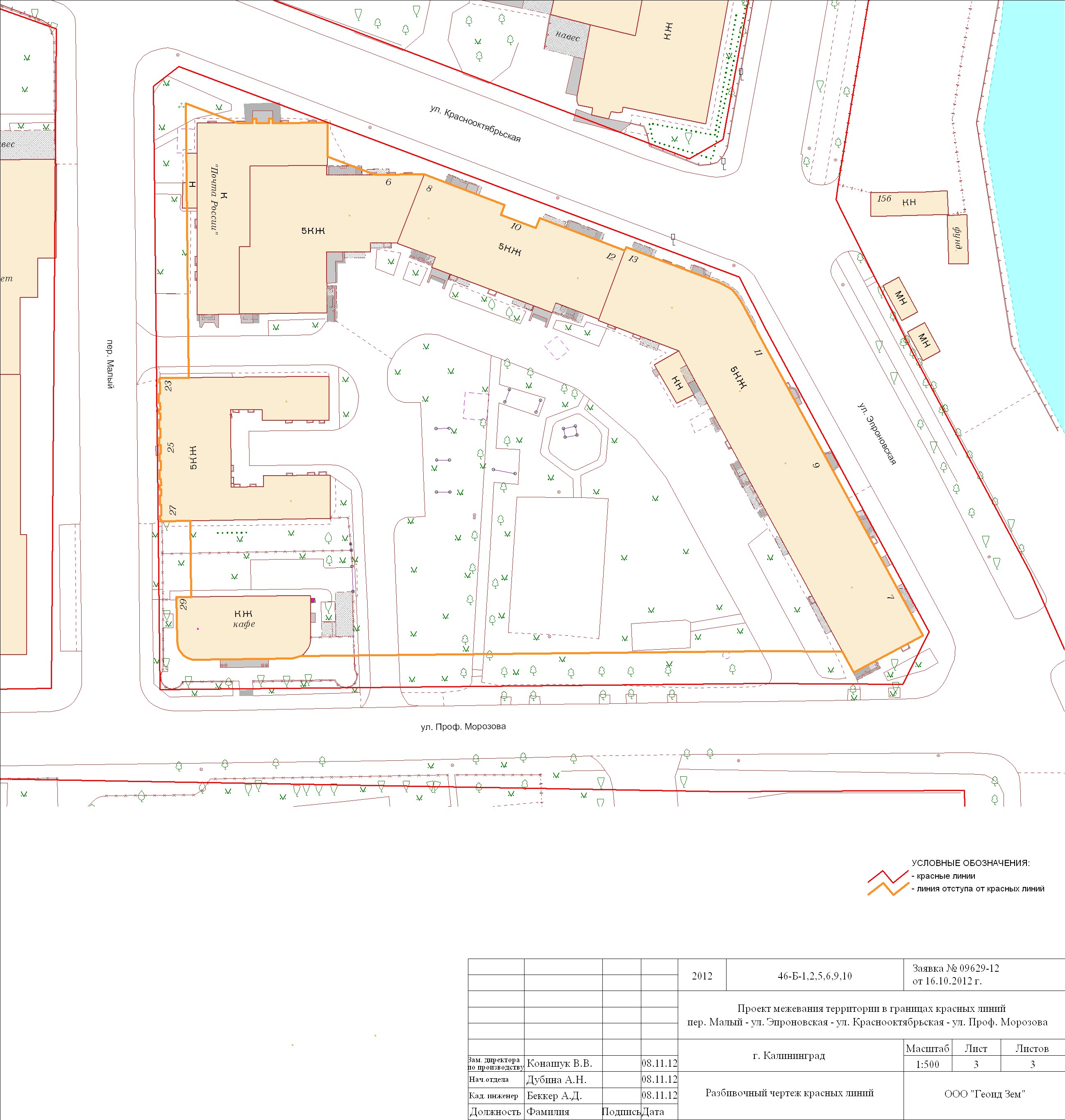
| Наименование проекта: | пер. Малый – ул. Эпроновская – ул. Краснооктябрьская – ул. Проф. Морозова |
|---|---|
| № на схеме: | 318 |
| Дата утверждения: | 13.02.2013 |
| Материалы проекта: | Постановление № 170 от 13.02.2013 Проект границ План красных линий Пояснительная записка Данные по нормативным и проектным площадям земельных участков Опорный план |
Калининград
