
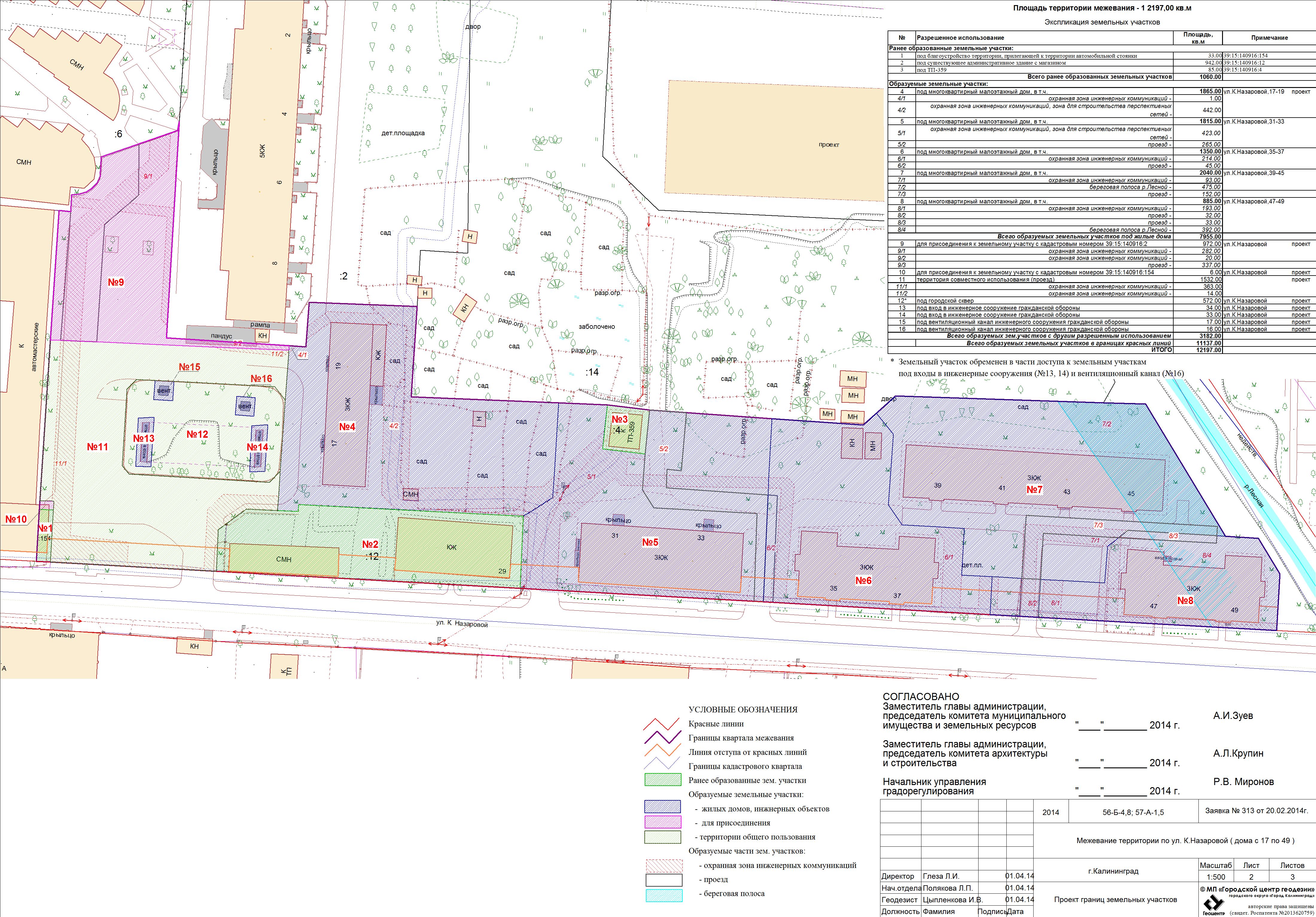
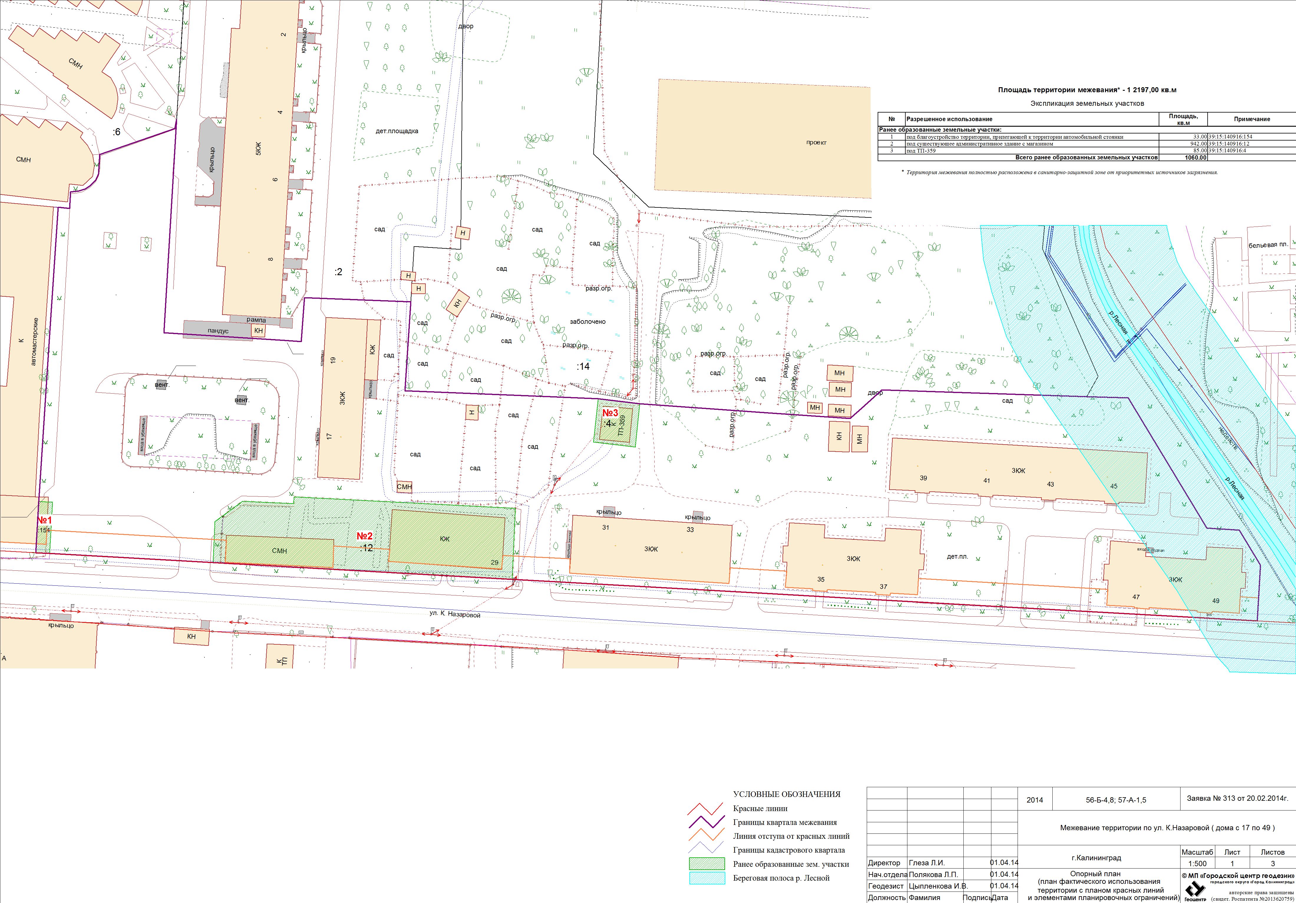
| Наименование проекта: | ул. К. Назаровой (дома с 17 по 49) |
|---|---|
| № на схеме: | 414 |
| Дата утверждения: | 21.05.2014 |
| Материалы проекта: | Постановление № 779 от 21.05.2014 Данные по нормативным и проектным площадям земельных участков Опорный план Разбивочный чертеж красных линий Проект границ земельных участков Пояснительная записка |
Калининград
