
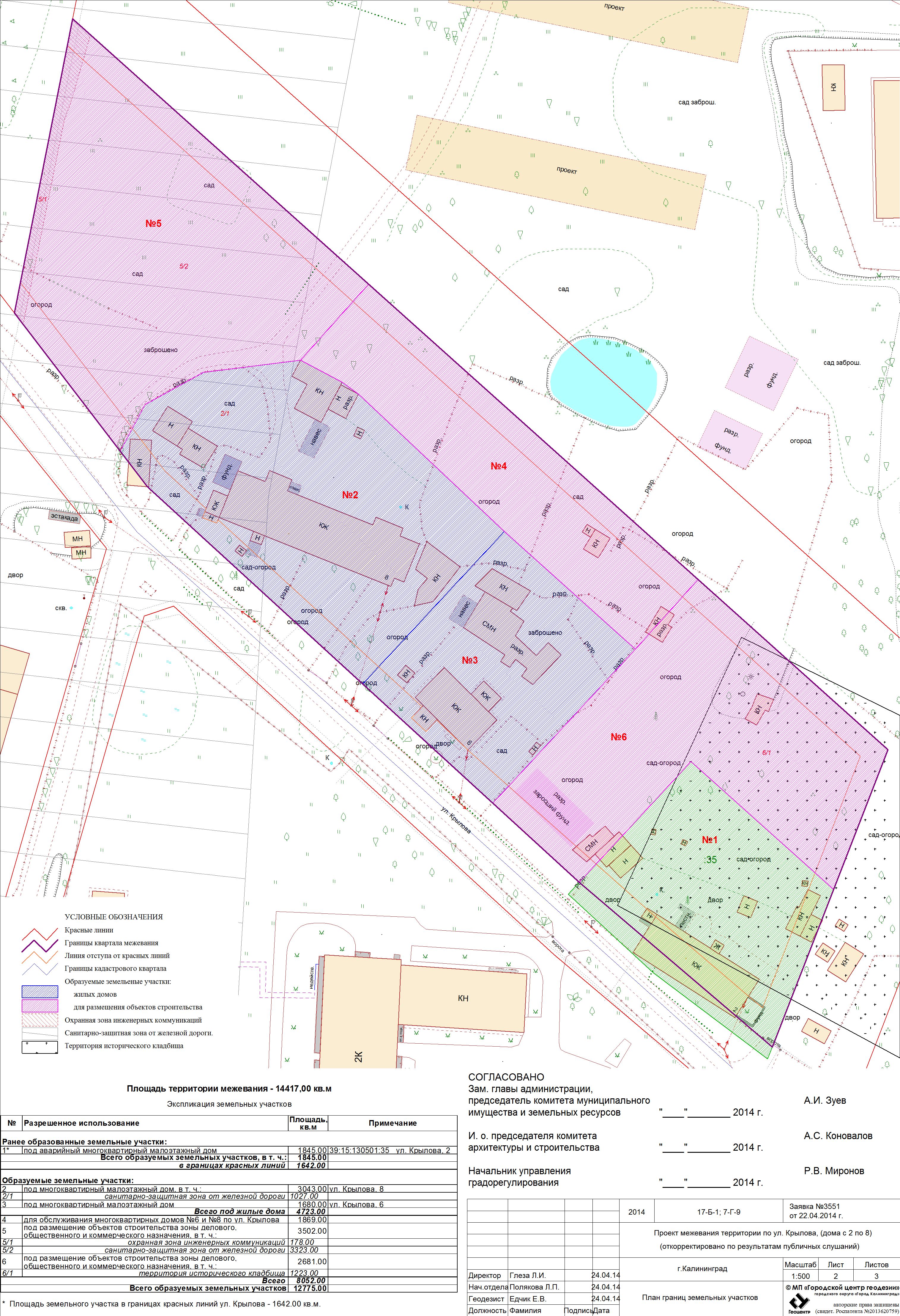
| Наименование проекта: | ул. Крылова (дома с 2 по 8) |
|---|---|
| № на схеме: | 415 |
| Дата утверждения: | 21.05.2014 |
| Материалы проекта: | Постановление № 748 от 21.05.2014 Данные по нормативным и проектным площадям земельных участков Опорный план Разбивочный чертеж красных линий Проект границ земельных участков Пояснительная записка |
Калининград
