
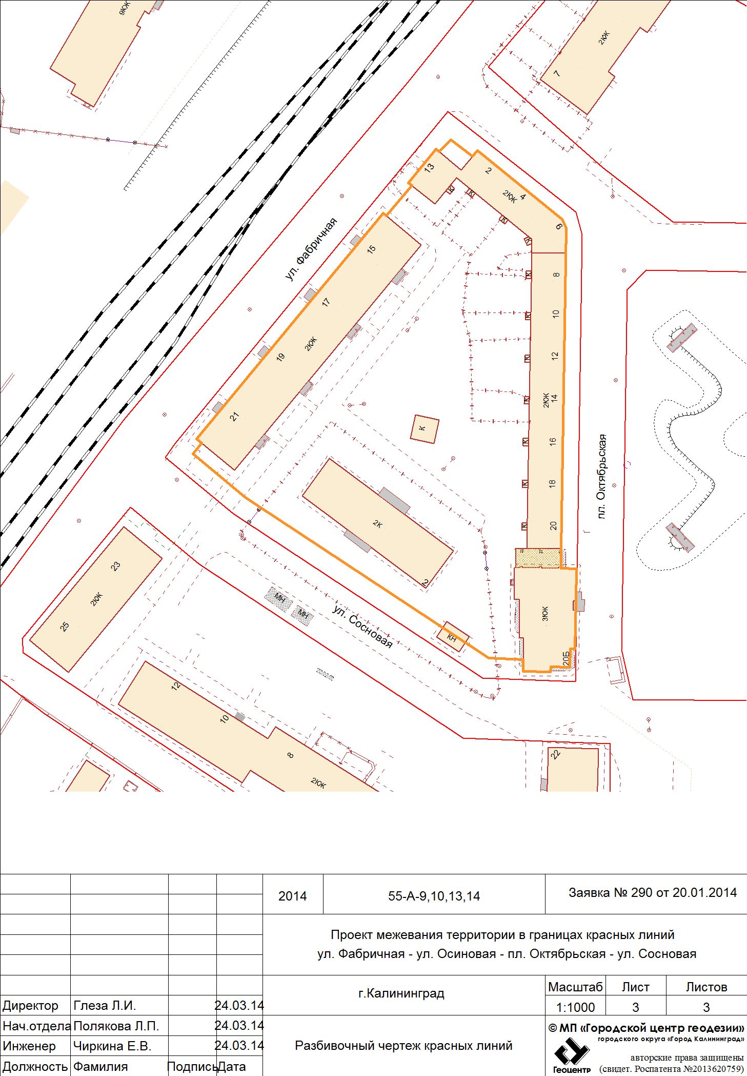
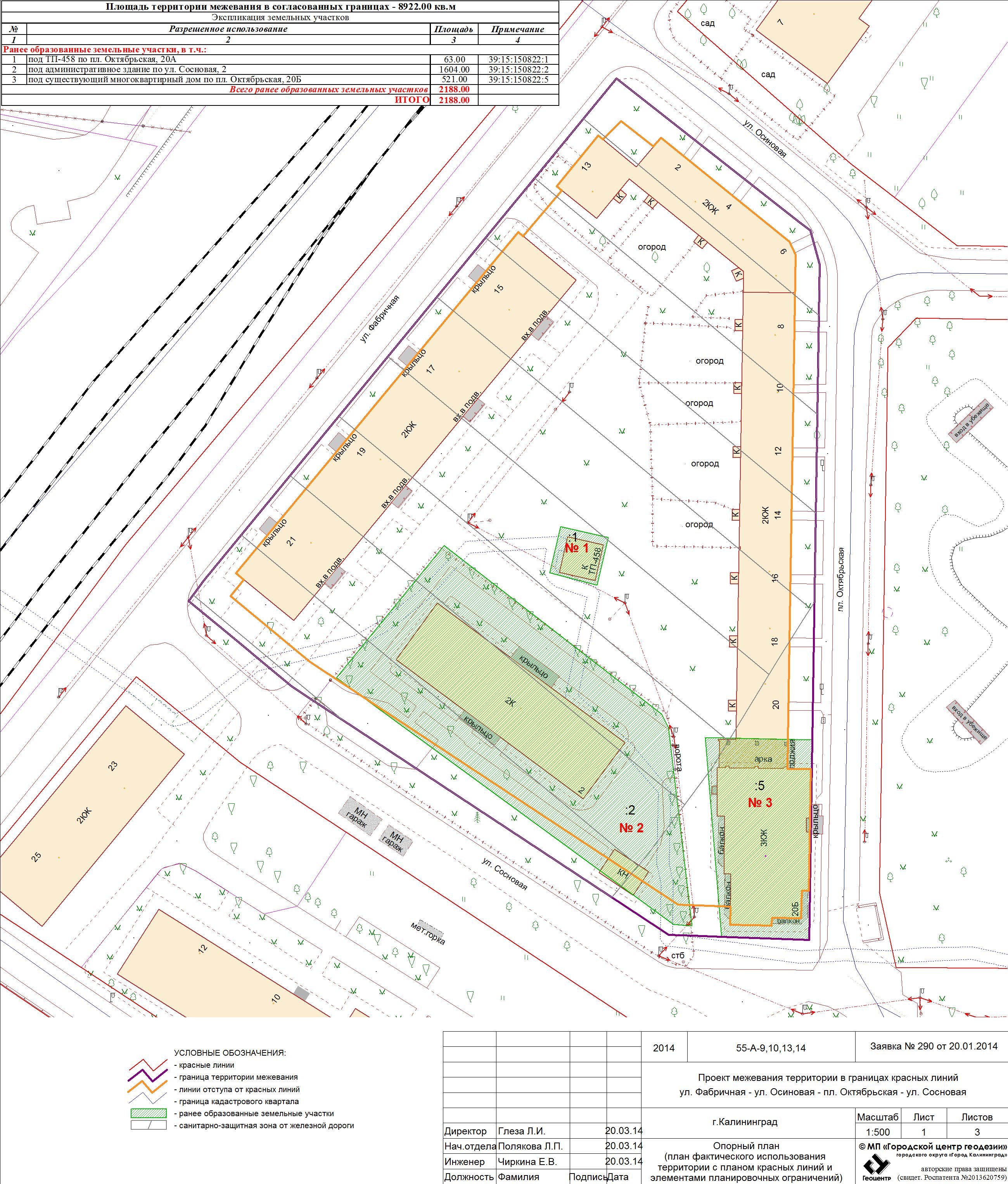
| Наименование проекта: | ул. Фабричная – ул. Осиновая – пл. Октябрьская – ул. Сосновая |
|---|---|
| № на схеме: | 422 |
| Дата утверждения: | 21.05.2014 |
| Материалы проекта: | Постановление № 780 от 21.05.2014 Данные по нормативным и проектным площадям земельных участков Опорный план Разбивочный чертеж красных линий Проект границ земельных участков Пояснительная записка |
Калининград
