
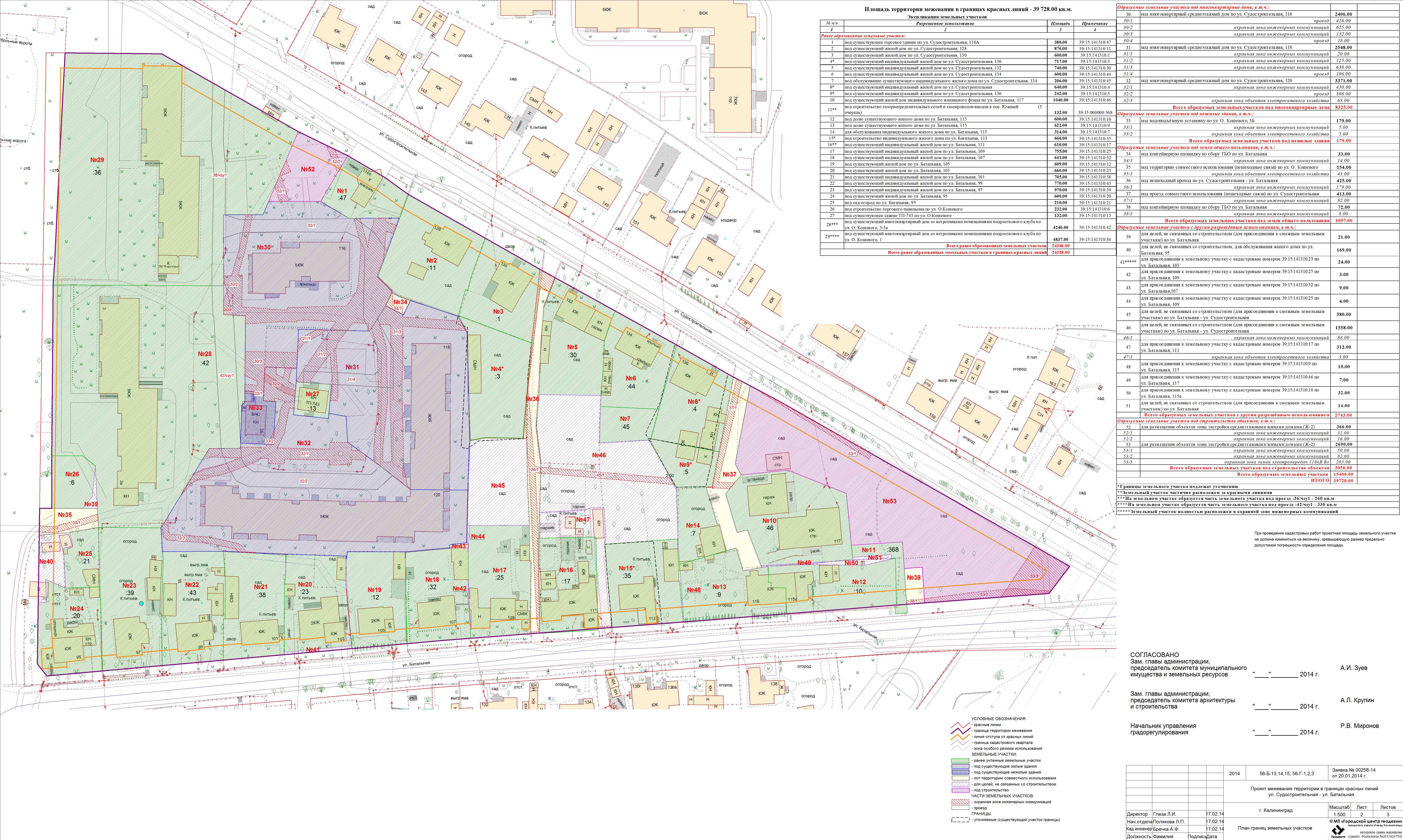
| Наименование проекта: | ул. Судостроительная – ул. Батальная |
|---|---|
| № на схеме: | 424 |
| Дата утверждения: | 21.05.2014 |
| Материалы проекта: | Постановление № 723 от 21.05.2014 Проект границ земельных участков Разбивочный чертёж красных линий Пояснительная записка |
| Изменения: | В настоящий проект внесены изменения следующими документами: |
Калининград
