
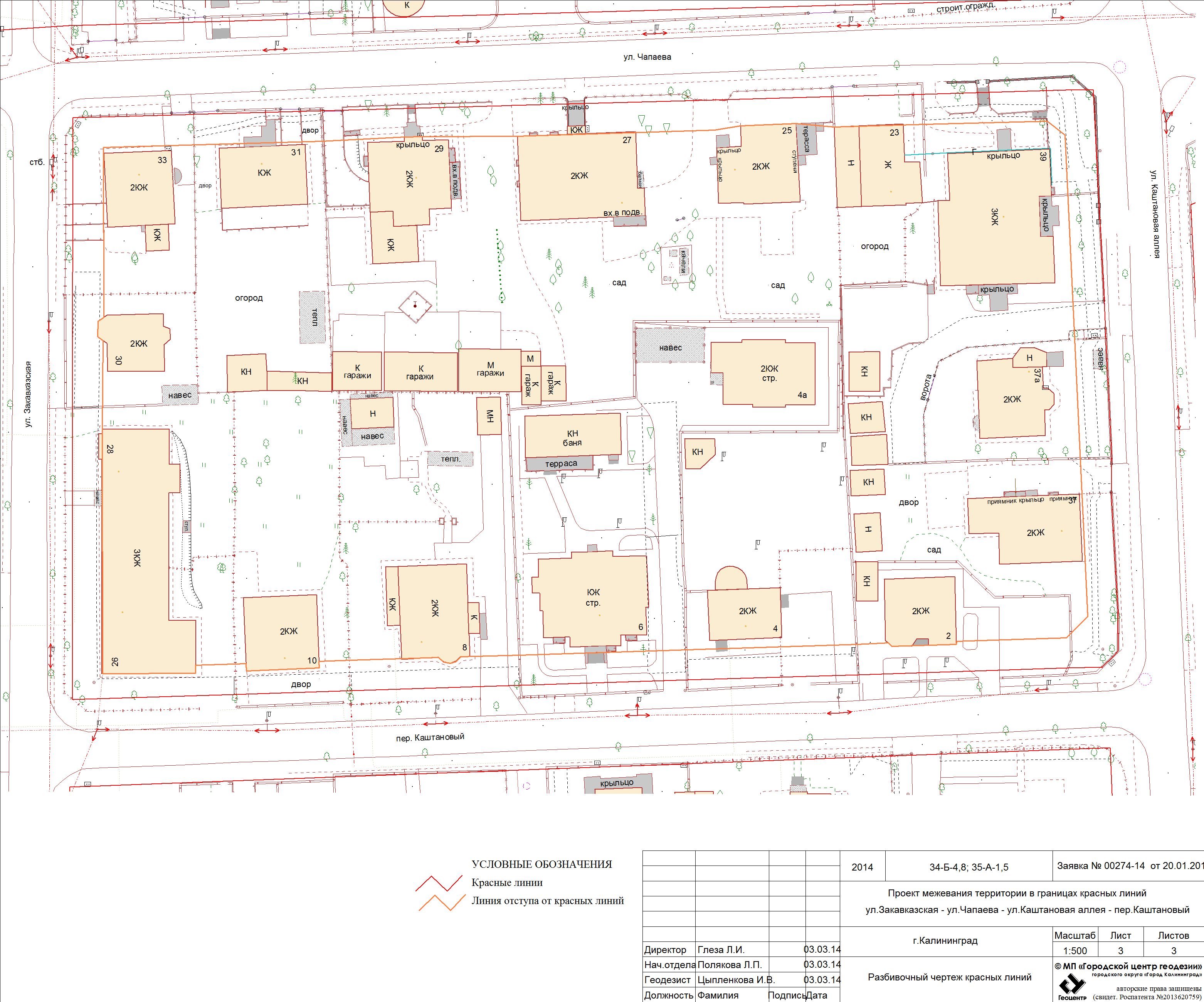
| Наименование проекта: | ул. Закавказская – ул. Чапаева – ул. Каштановая аллея – пер. Каштановый |
|---|---|
| № на схеме: | 436 |
| Дата утверждения: | 23.06.2014 |
| Материалы проекта: | Постановление № 931 от 23.06.2014 Проект границ земельных участков Разбивочный чертеж красных линий Пояснительная записка |
| Изменения: | В настоящий проект внесены изменения следующими документами: |
Калининград
