
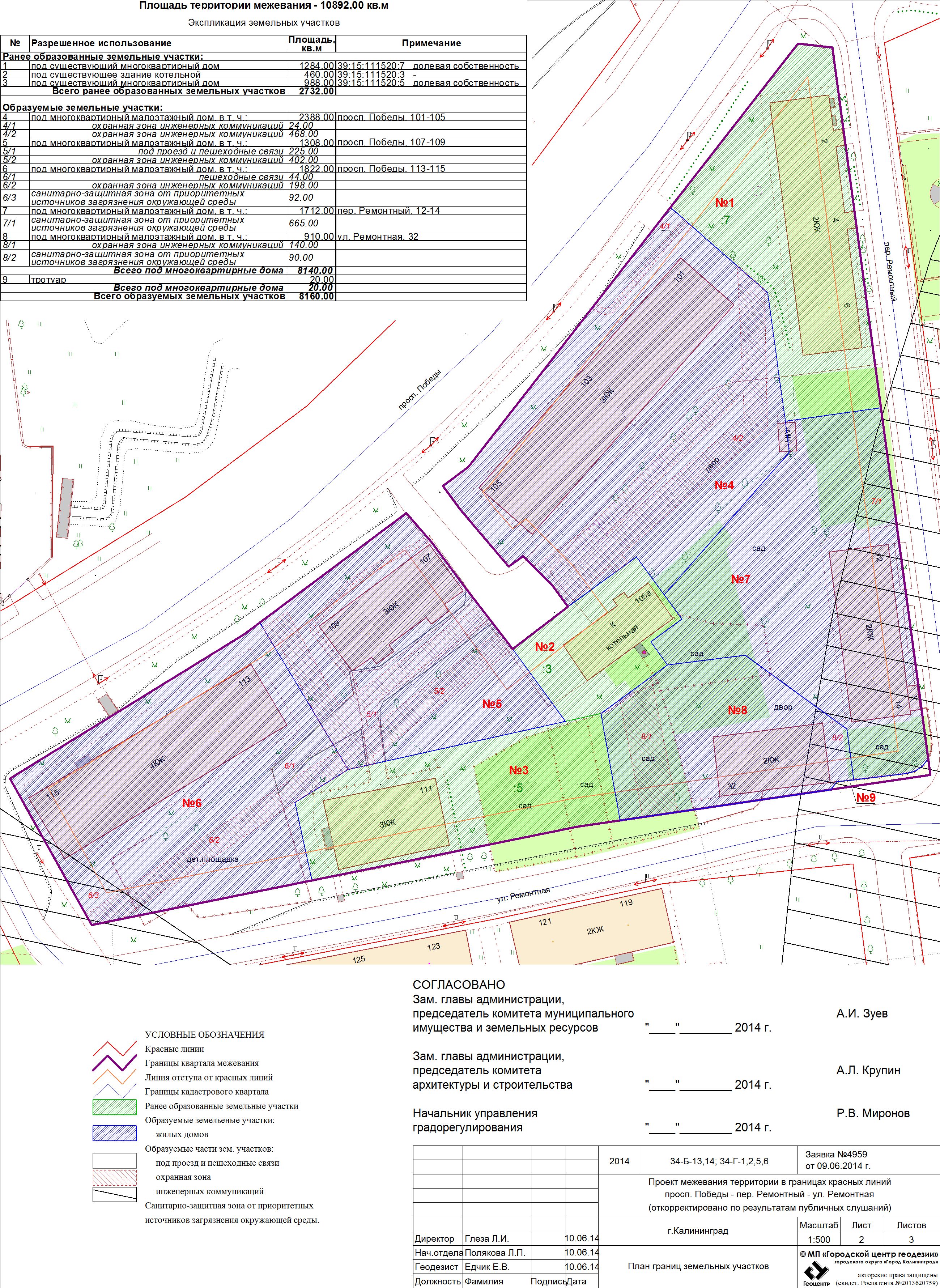
| Наименование проекта: | просп. Победы – пер. Ремонтный – ул. Ремонтная |
|---|---|
| № на схеме: | 442 |
| Дата утверждения: | 10.07.2014 |
| Материалы проекта: | Постановление № 1057 от 10.07.2014 Данные по нормативными проектным площадям земельных участков Опорный план Разбивочный чертеж красных линий Проект границ земельных участков Пояснительная записка |
Калининград
