
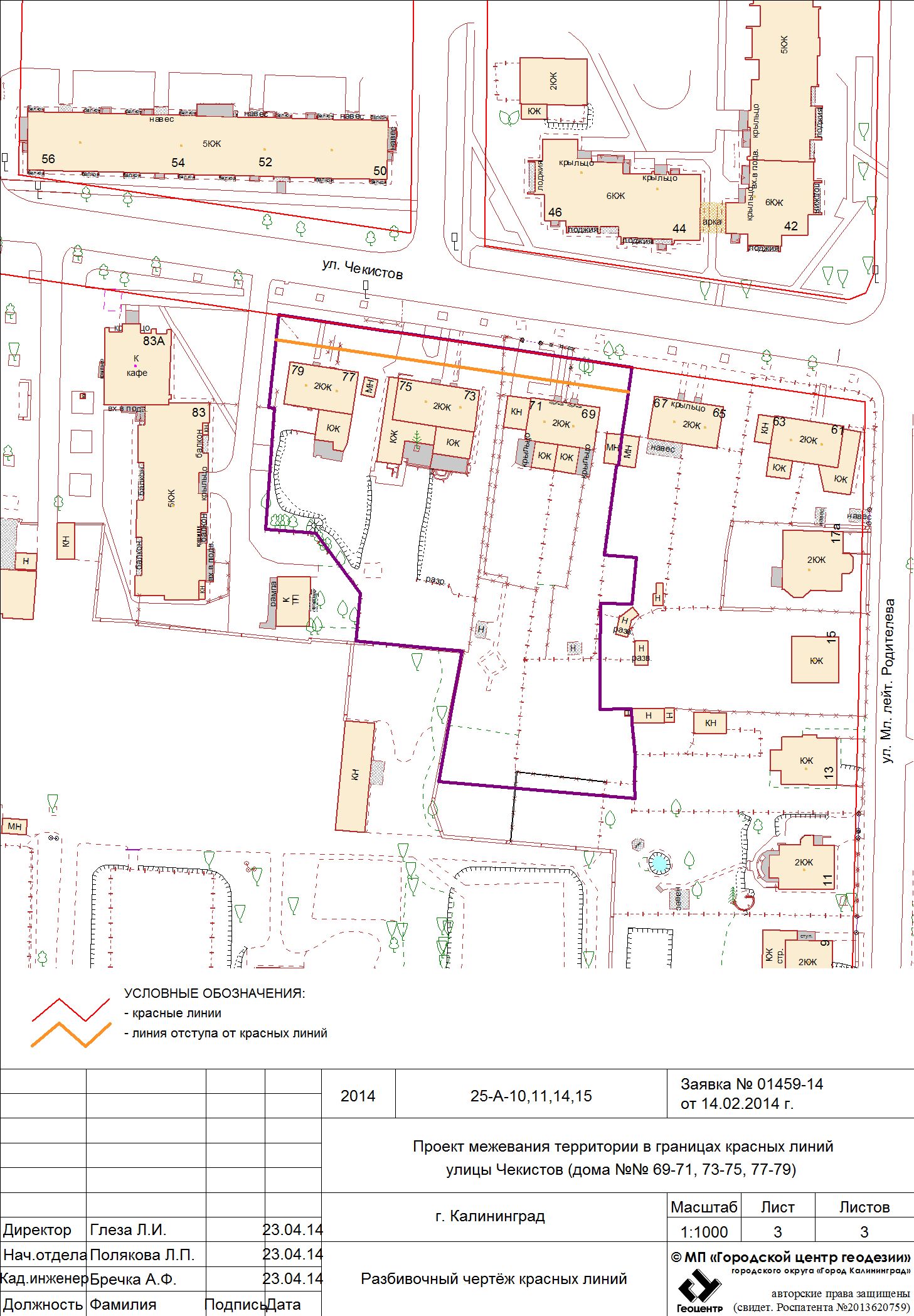
| Наименование проекта: | ул.Чекистов (дома №№ 69-71, 73-75, 77-79) |
|---|---|
| № на схеме: | 445 |
| Дата утверждения: | 10.07.2014 |
| Материалы проекта: | Постановление № 1058 от 10.07.2014 Проект границ земельных участков Разбивочный чертеж красных линий Пояснительная записка |
| Изменения: | В настоящий проект внесены изменения следующими документами: |
Калининград
