
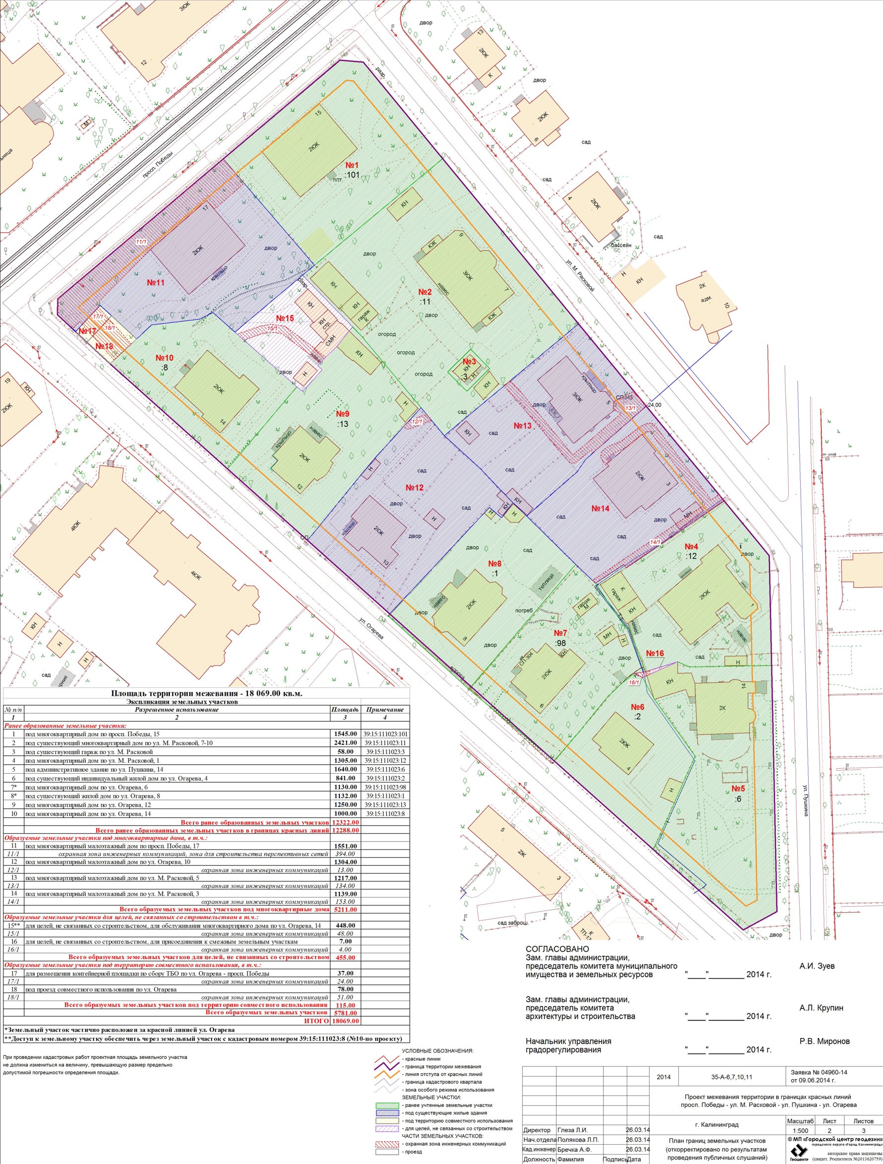
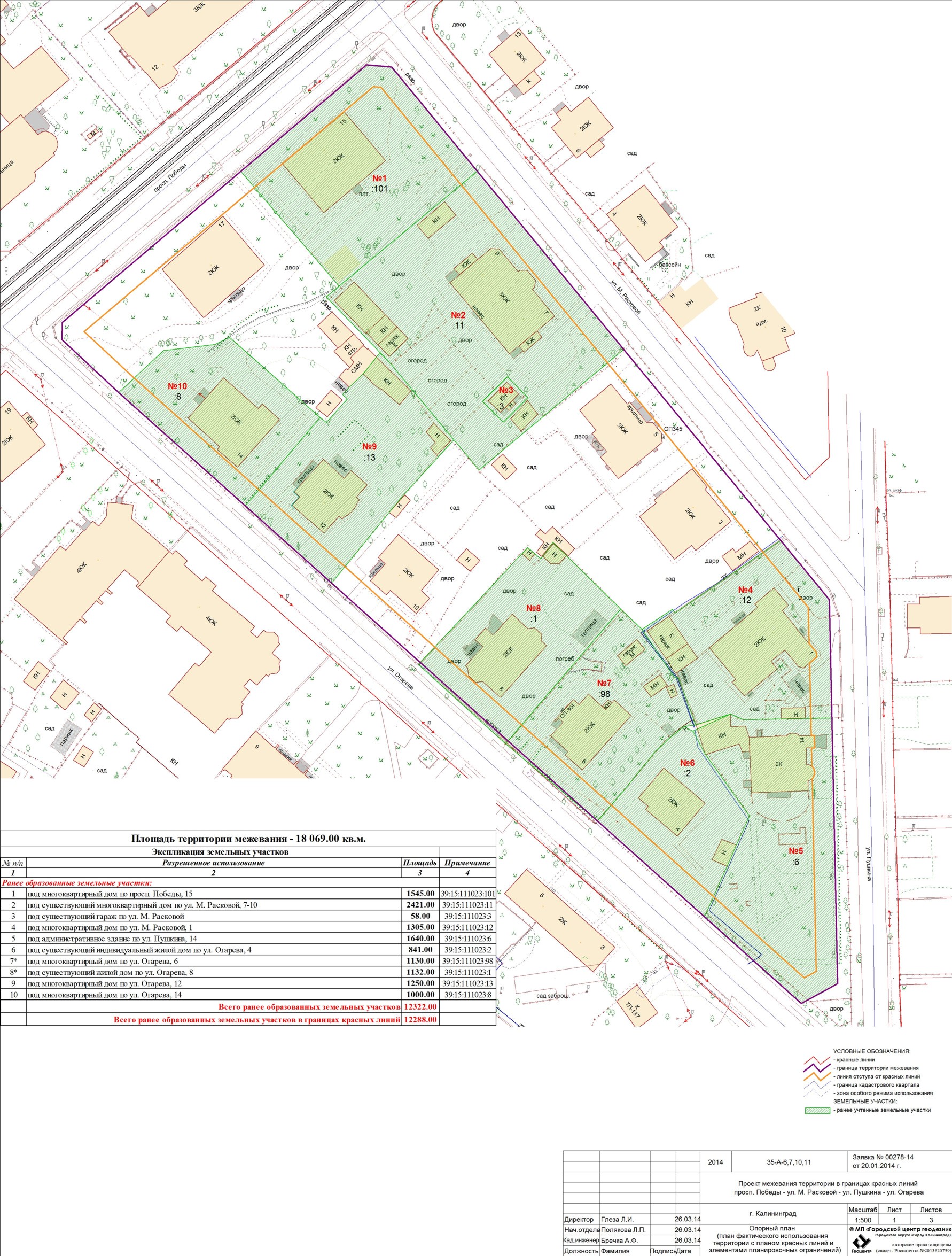
| Наименование проекта: | просп. Победы – ул. М. Расковой – ул. Пушкина – ул. Огарёва, ул. Бородинская, 8 |
|---|---|
| № на схеме: | 448 |
| Дата утверждения: | 10.07.2014 |
| Материалы проекта: | Постановление № 1057 от 10.07.2014 Данные по нормативным и проектным площадям земельных участков Опорный план Разбивочный чертеж красных линий Проект границ земельных участков Пояснительная записка |
| Изменения: | В настоящий проект внесены изменения следующими документами: |
Калининград
