
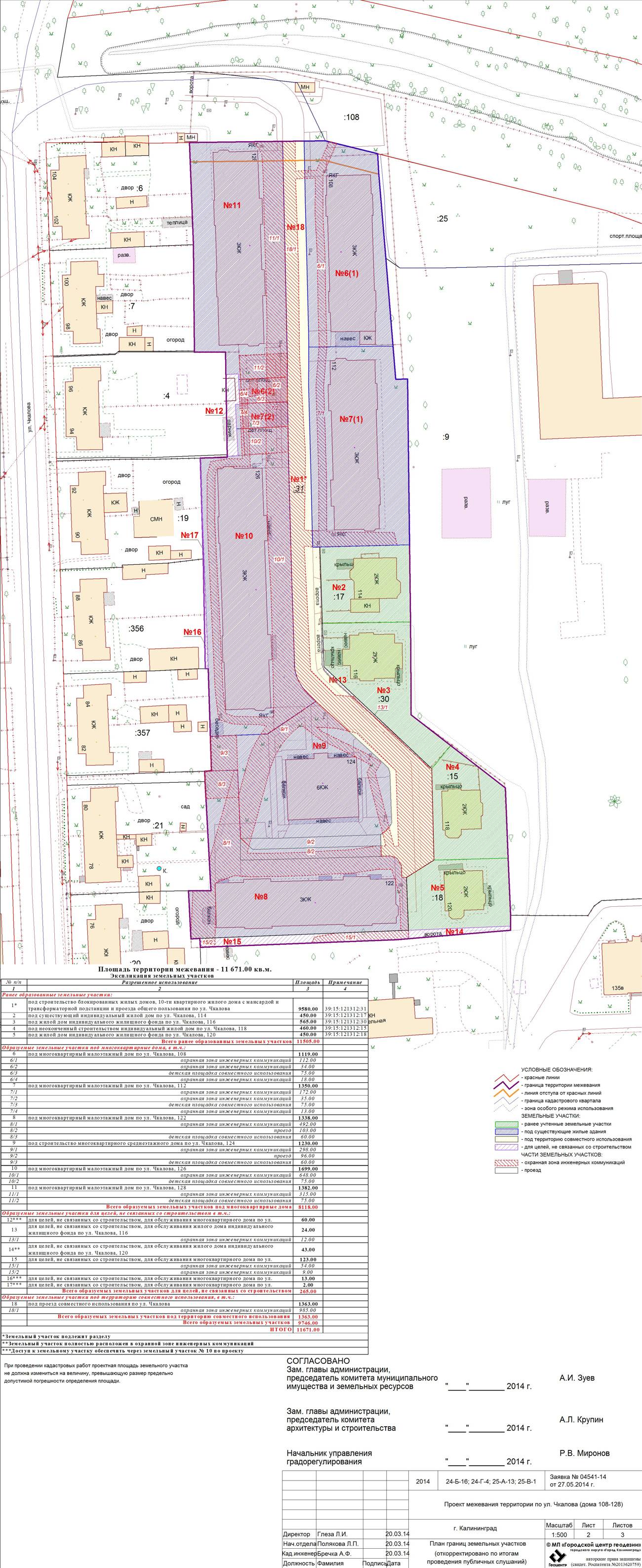
| Наименование проекта: | ул. Чкалова (дома 108-128) |
|---|---|
| № на схеме: | 455 |
| Дата утверждения: | 08.07.2014 |
| Материалы проекта: | Постановление № 1036 от 08.07.2014 Данные по нормативным и проектным площадям земельных участков Опорный план Разбивочный чертеж красных линий Проект границ земельных участков Пояснительная записка |
Калининград
