
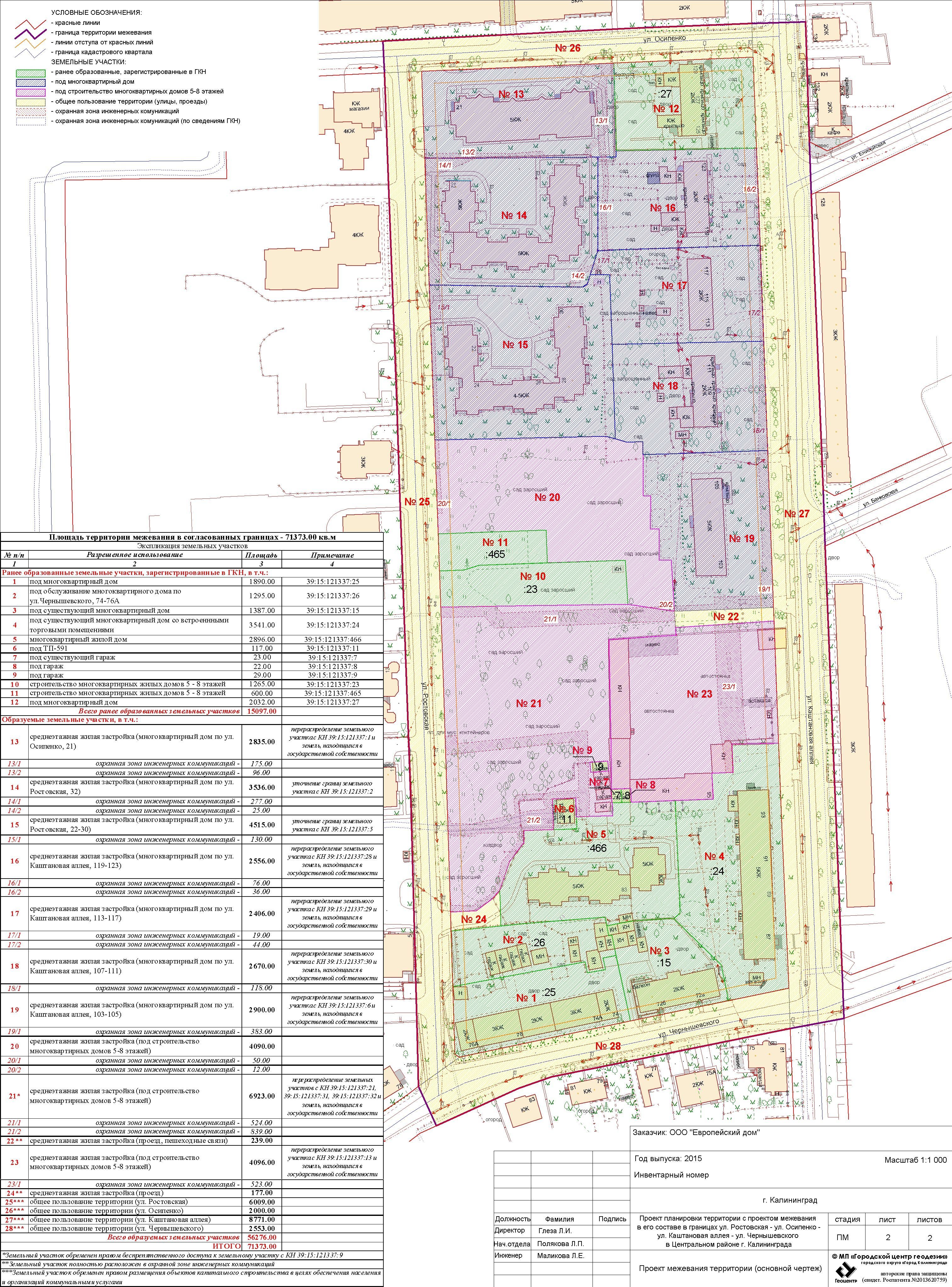
| Наименование проекта: | ул. Ростовская – ул. Осипенко – ул. Каштановая аллея – ул. Чернышевского |
|---|---|
| № на схеме: | 487 |
| Дата утверждения: | 25.11.2015 |
| Материалы проекта: | Постановление № 1962 от 25.11.2015 Опорный план Проект межевания территории Разбивочный чертеж красных линий Пояснительная записка |
Калининград
