
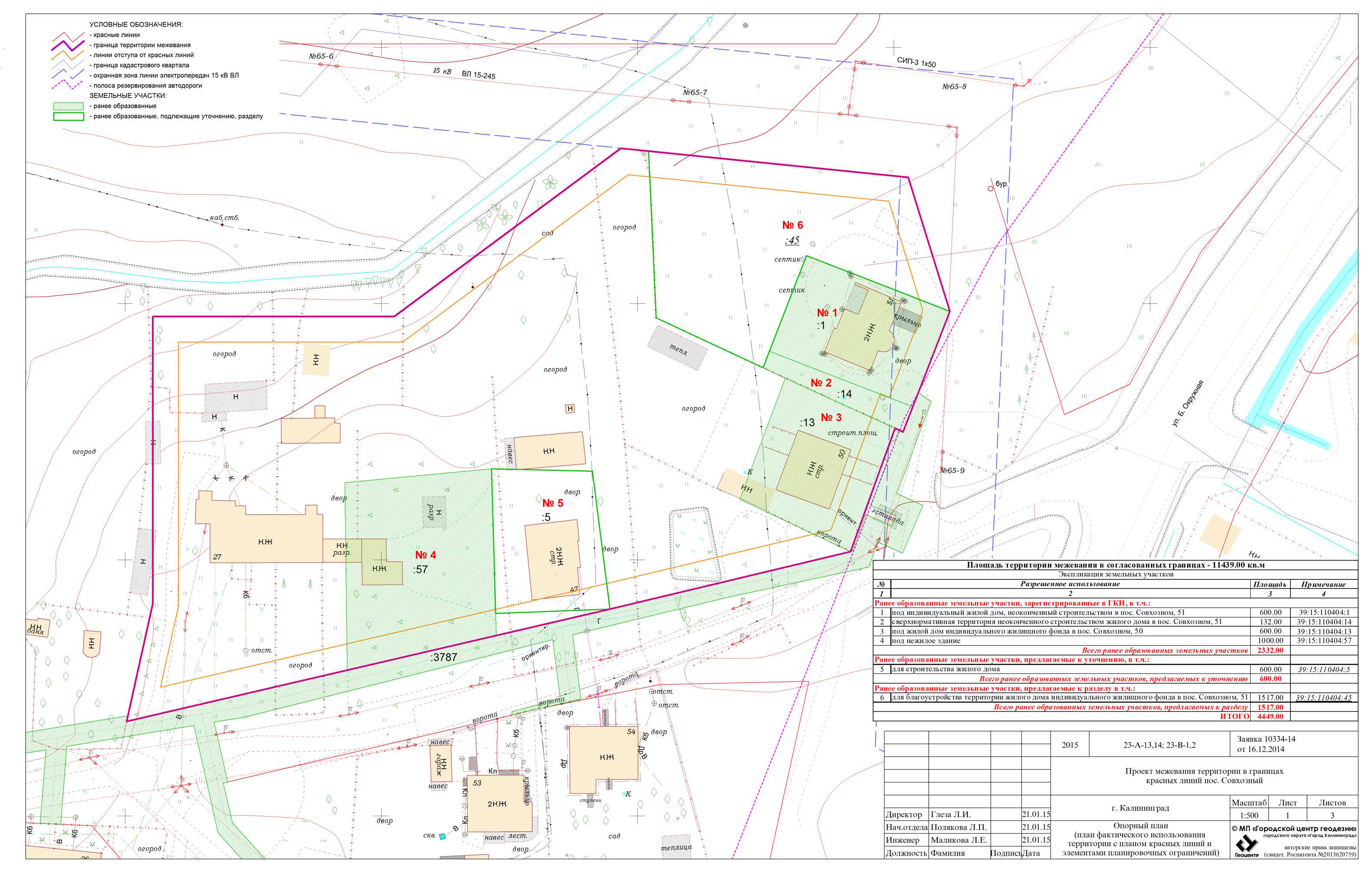
| Наименование проекта: | пос. Совхозный |
|---|---|
| № на схеме: | 492 |
| Дата утверждения: | 31.07.2015 |
| Материалы проекта: | Постановление № 1215 от 31.07.2015 Опорный план Проект границ земельных участков Разбивочный чертеж красных линий Пояснительная записка Данные по нормативным и проектным площадям земельных участков |
Калининград
