
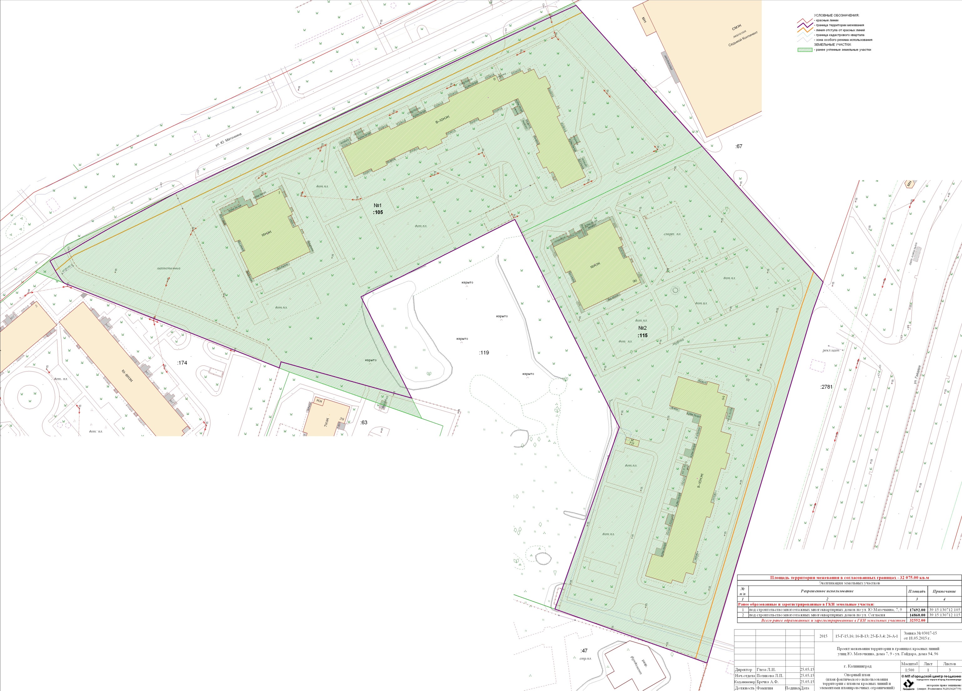
| Наименование проекта: | ул. Ю. Маточкина, дома 7, 9 – ул. Гайдара, дома 94, 96 |
|---|---|
| № на схеме: | 519 |
| Дата утверждения: | 09.09.2015 |
| Материалы проекта: | Постановление № 1528 от 09.09.2015 Опорный план Проект границ земельных участков Разбивочный чертеж красных линий Пояснительная записка Данные по нормативным и проектным площадям земельных участков |
Калининград
