
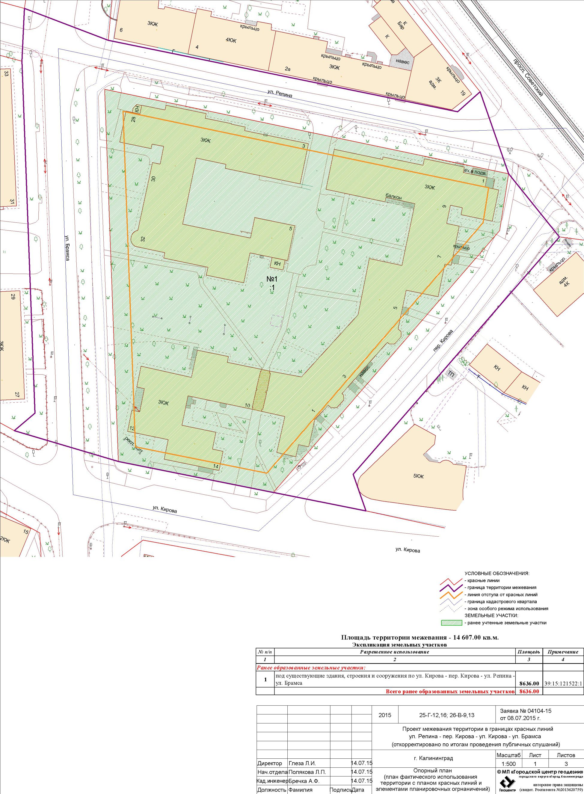
| Наименование проекта: | ул. Репина – пер. Кирова – ул. Кирова – ул. Брамса |
|---|---|
| № на схеме: | 527 |
| Дата утверждения: | 02.09.2015 |
| Материалы проекта: | Постановление № 1476 от 02.09.2015 Опорный план Проект границ земельных участков Разбивочный чертеж красных линий Пояснительная записка Данные по нормативным и проектным площадям земельных участков |
Калининград
