Сайт использует временные файлы cookie, содержащие ip-адрес устройства, с которого Вы заходите на сайт, и параметры текущей сессии. Если Вы не согласны, то Вы должны соответствующим образом установить настройки используемого браузера.
Принять
Размер:
A
A
A
Цвет:
C
C
C
Изображения
Вкл.
Выкл.
Обычная версия сайта
Калининград
Все результаты
Администрация
Администрация
Глава администрации
Сфера муниципальных услуг
Структура администрации
Телефоны для справок
Муниципальная служба
Коллегиальные органы
Наградная деятельность
Пресс-служба администрации
Прием граждан и юридических лиц
Тексты официальных выступлений
Взаимодействие с общественностью
Сведения о СМИ, учрежденных администрацией
Перечни информационных систем
План основных мероприятий администрации
Прямая трансляция
Город
Город
Символы
Почетные граждане
Международная деятельность
Улицы города
Туризм
История
Фотогалерея
Паспорт города
Документы
Документы
Устав города
Регламент администрации
Проекты документов
Информация о нормотворческой деятельности
Положения о структурных подразделениях
Формы обращений, заявлений и иных документов
Формы отчетности некоммерческих организаций
Информационная безопасность
О деятельности муниципальных предприятий
Антимонопольный комплаенс
Доклад о достигнутых значениях показателей для оценки эффективности деятельности администрации городского округа "Город Калининград"
Оценка регулирующего воздействия проектов НПА
Направления деятельности
Экономика
Земля и имущество
Городское хозяйство
Строительство
Социальная сфера
Образование
Архитектура
Транспорт и дороги
Контроль
Бюджет
Услуги
Услуги
Муниципальные услуги
Массовые социально значимые муниципальные услуги
Преимущества получения услуг в электронной форме
Перечень электронных услуг
Функции, исполняемые по заявлениям
Государственные услуги
Госуслуги, предоставляемые УМВД России по Калининградской области в электронном виде
Перечень услуг, предоставляемых муниципальными учреждениями и иными организациями, в которых размещается муниципальное задание (заказ), и предоставляемых в электронном виде
Обратная связь - оценка удовлетворенности предоставлением муниципальных услуг
Полезная информация
Полезная информация
Горячие линии
Правовое просвещение
Карта сайта по 8-ФЗ
"Доступная среда"
Земля - многодетным гражданам
Обеспечение жильем молодых семей
Взыскание по исполнительным листам
ЗАГС
Открытые данные
Подписка
Газ
RSS
Запись к врачу
Постановка на учет участников специальной военной операции и членов их семей в целях предоставления земельного участка в собственность бесплатно
Дополнительная мера социальной поддержки в виде единовременной денежной выплаты гражданам, имеющим трех и более детей
Город Калининград
›
Направления деятельности
›
Строительство
›
Градостроительная документация
›
Утвержденные проекты межевания
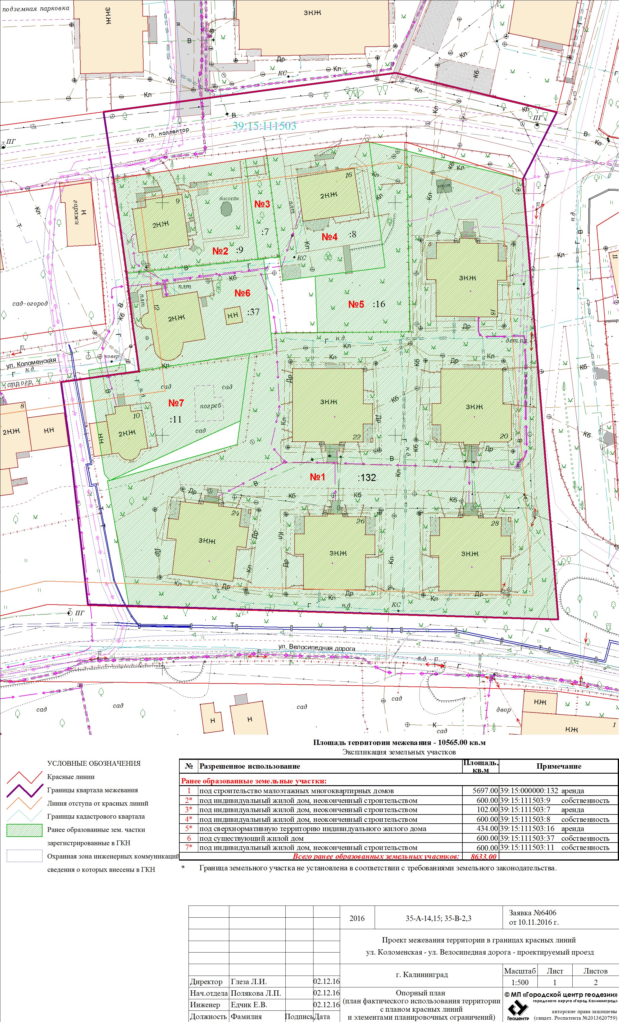
Проект межевания
Наименование проекта:
ул. Коломенская – ул. Велосипедная дорога – проектируемый проезд
№ на схеме:
716
Дата утверждения:
30.03.2017
Материалы проекта:
Постановление № 457 от 30.03.2017
Опорный план
Основной чертеж
Пояснительная записка
Градостроительная документация
Генеральный план городского округа "Город Калининград"
Правила землепользования и застройки городского округа «Город Калининград»
Местные нормативы градостроительного проектирования городского округа "Город Калининград"
Распоряжения об утверждении границ санитарно-защитных зон
Реестр санитарно-эпидемиологических заключений
Утвержденные проекты планировки
Утвержденные проекты межевания
Алгоритм оформления земельных участков по результатам утверждения документации по планировке территории
Программа комплексного развития социальной инфраструктуры
Программа комплексного развития системы коммунальной инфраструктуры
Программа комплексного развития транспортной инфраструктуры