|
№ на схеме |
Наименование проекта |
Наименование информационного материала |
Документ |
|---|---|---|---|
|
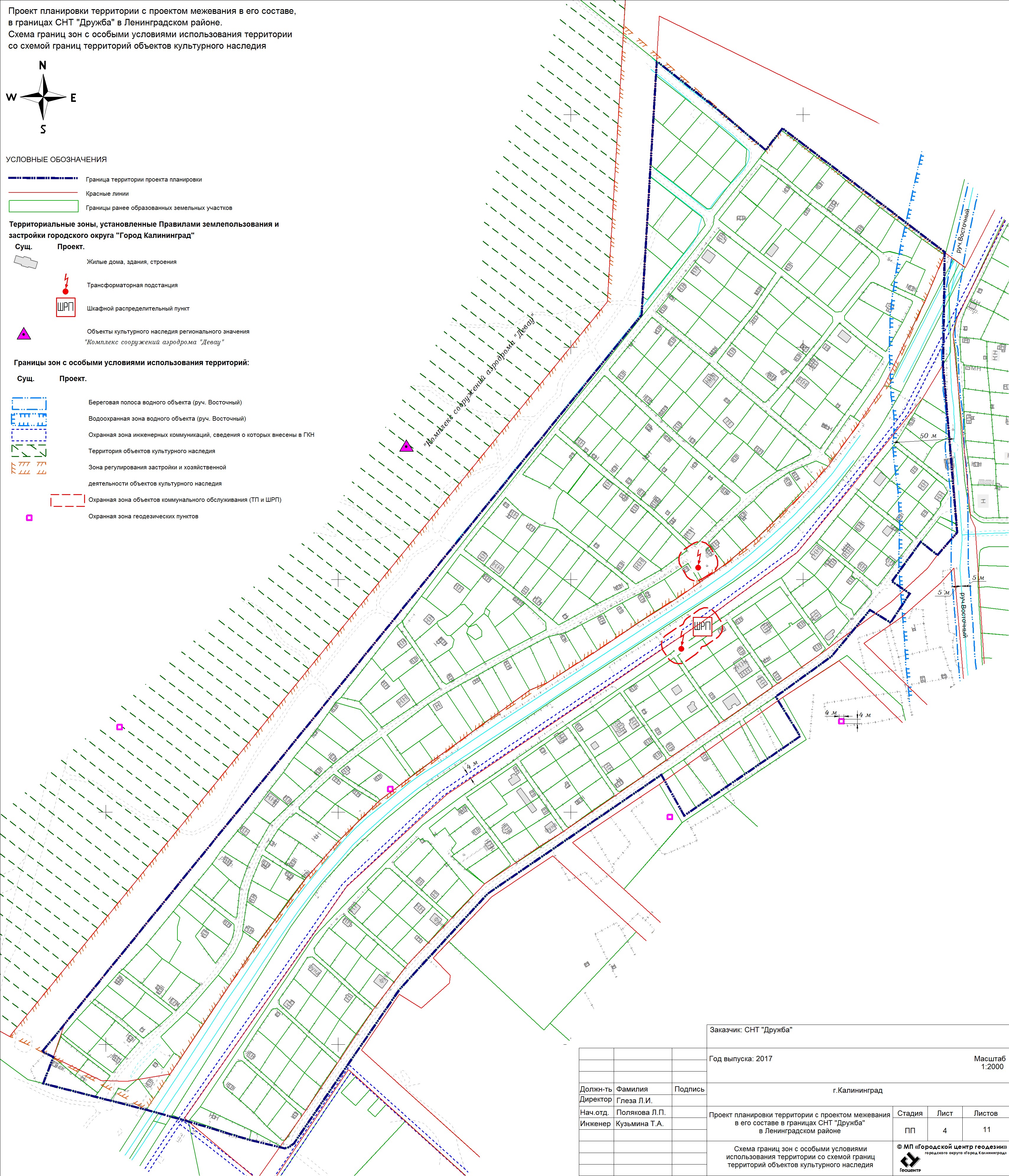
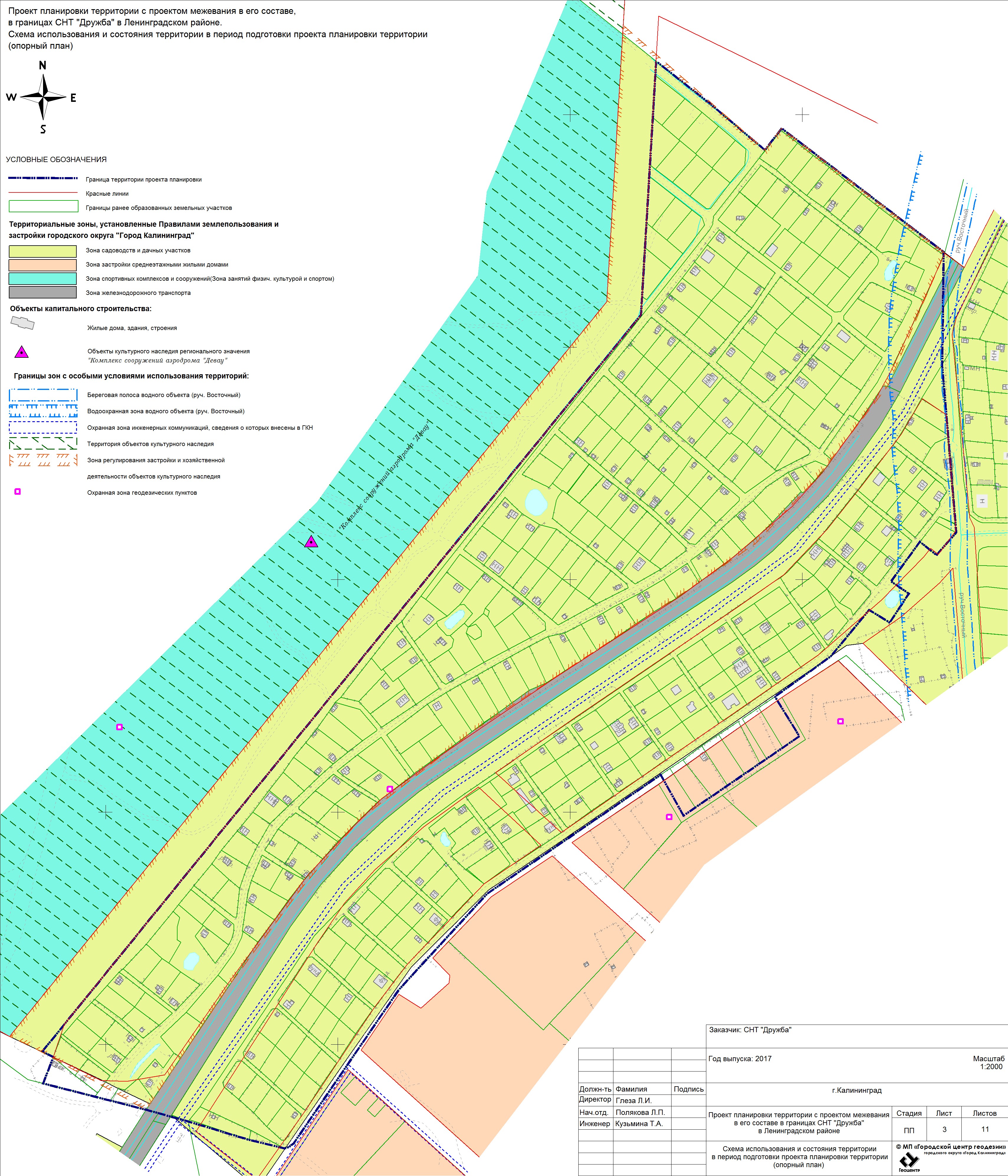
127 |
Проект планировки территории с проектом межевания в его составе в границах СНТ «Дружба» в Ленинградском районе |
|
Утвержден постановлением |