
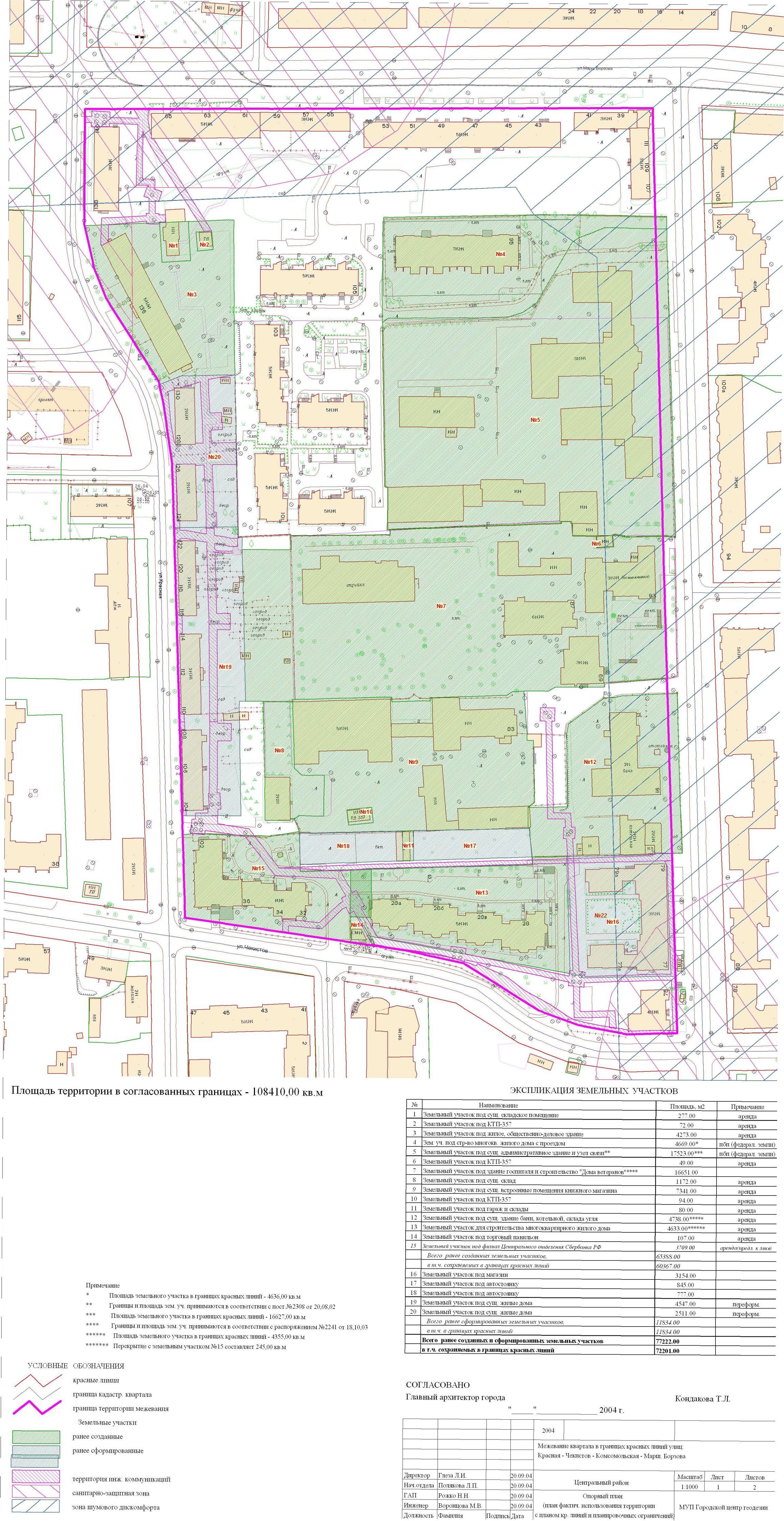
| Наименование проекта: | ул. Красная – ул. Чекистов – ул. Комсомольская – ул. Марш. Борзова |
|---|---|
| № на схеме: | 97 |
| Дата утверждения: | 15.06.2005 |
| Материалы проекта: | Постановление № 1888 от 15.06.2005 Опорный план План границ земельных участков Данные ГП Данные по нормативным и проектным площадям земельных участков Пояснительная записка |
Калининград
