
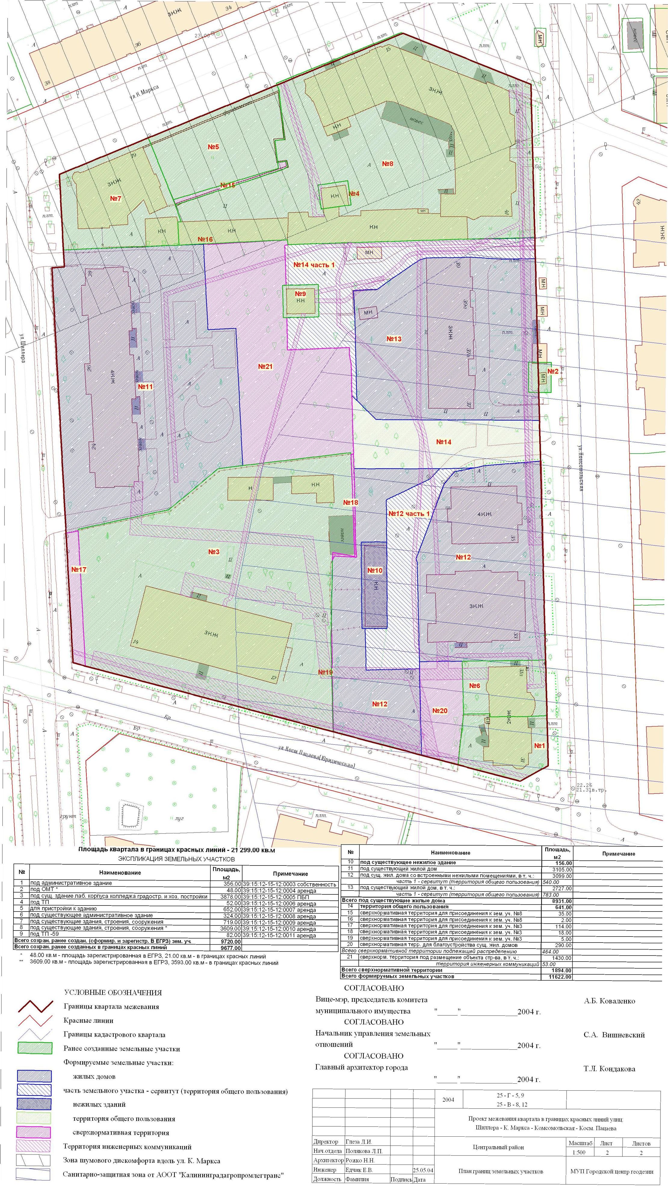
| Наименование проекта: | ул. Шиллера – ул. К. Маркса – ул. Комсомольская – ул. Косм. Пацаева |
|---|---|
| № на схеме: | 104 |
| Дата утверждения: | 14.09.2004 |
| Материалы проекта: | Постановление № 2525 от 14.09.2004 Опорный план План границ земельных участков Данные ГП Данные по нормативным и проектным площадям земельных участков Данные по существующему жилому фонду и населению Пояснительная записка |
Калининград
