
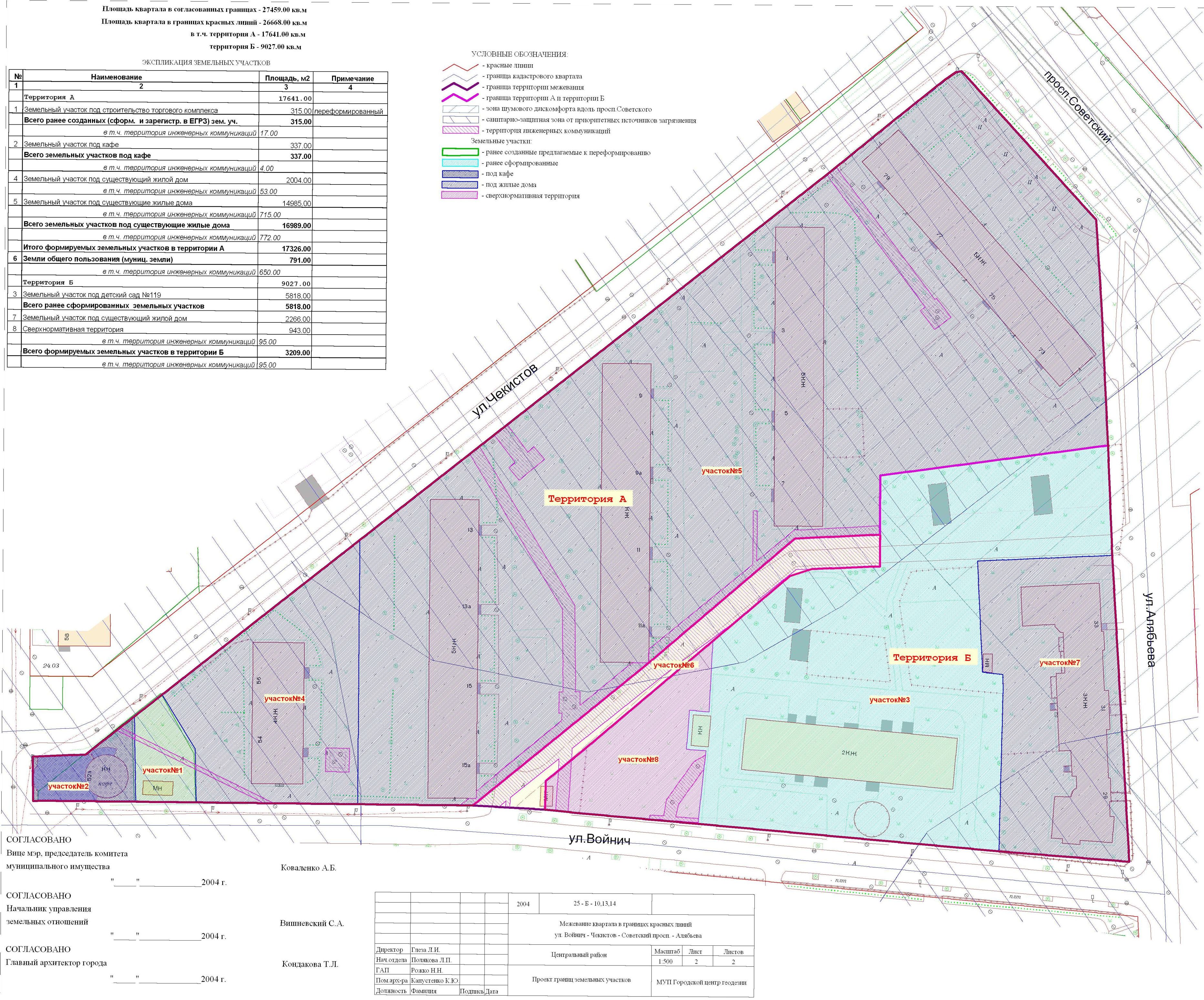
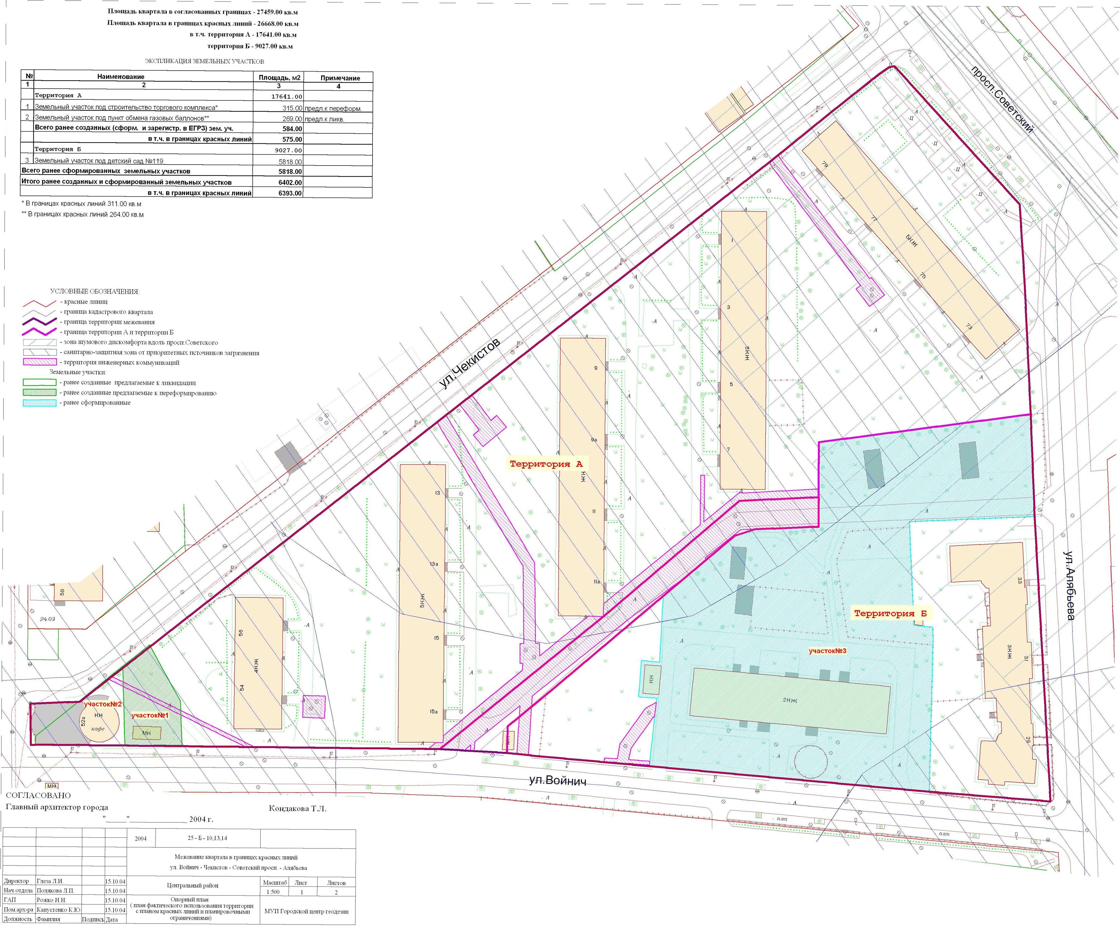
| Наименование проекта: | ул. Войнич – ул. Чекистов – просп. Советский – ул. Алябьева |
|---|---|
| № на схеме: | 112 |
| Дата утверждения: | 09.11.2006 |
| Материалы проекта: | Постановление № 2596 от 09.11.2006 Опорный план План границ земельных участков Данные ГП Данные по нормативным и проектным площадям земельных участков Данные по существующему жилому фонду и населению Пояснительная записка Нормативное благоустройство |
Калининград
