
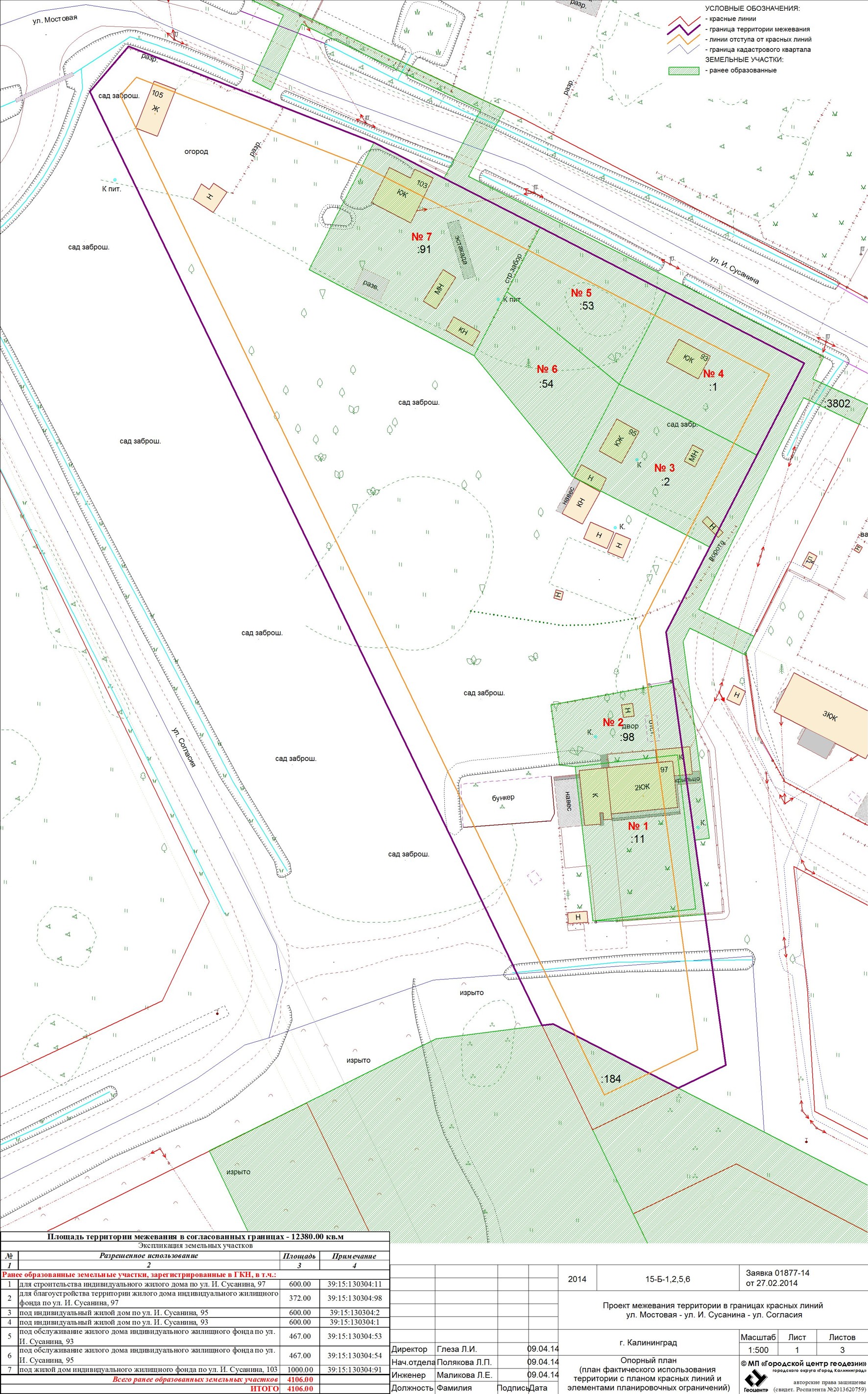
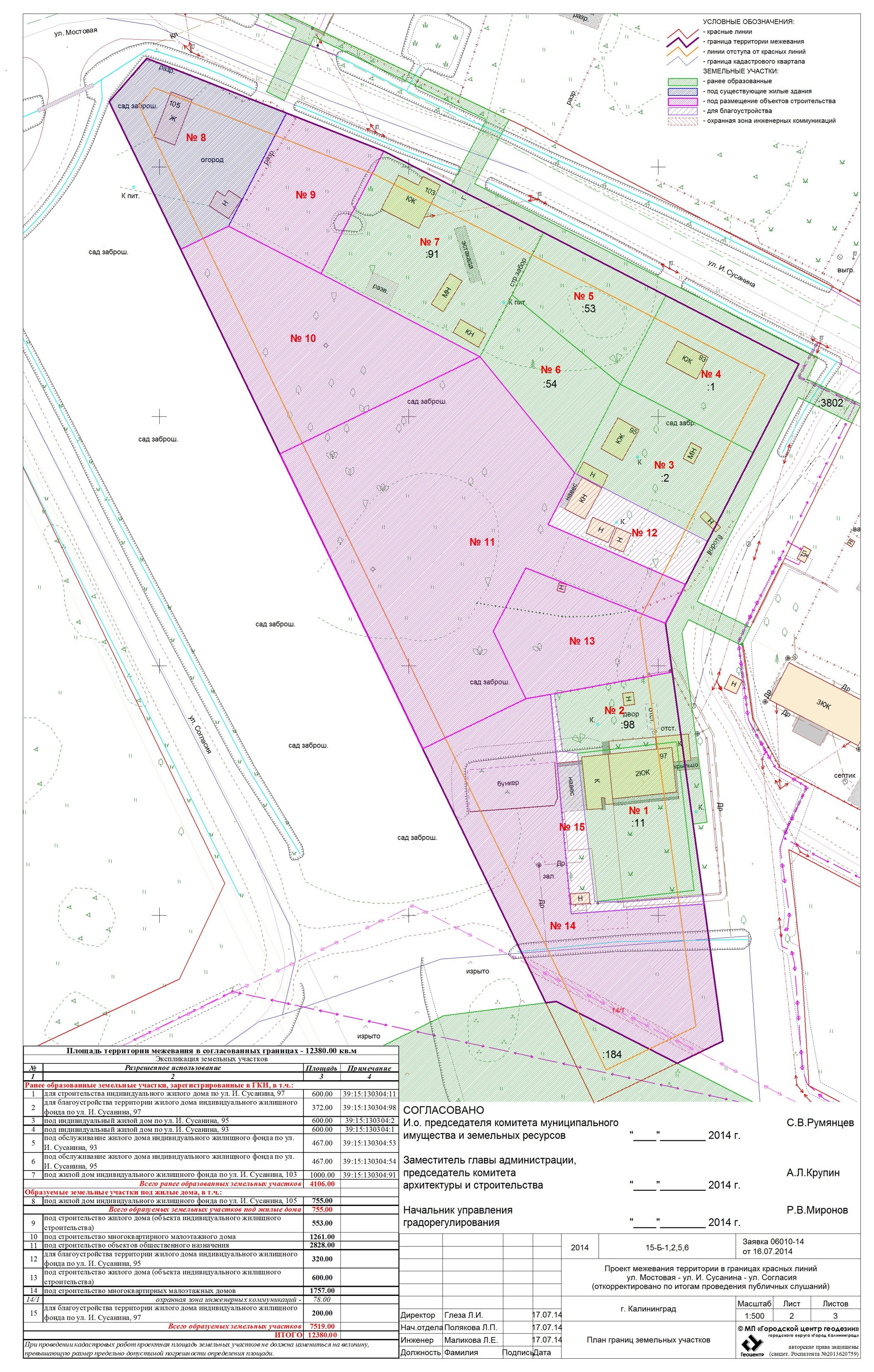
| Наименование проекта: | ул. Мостовая – ул. И. Сусанина – ул. Согласия |
|---|---|
| № на схеме: | 471 |
| Дата утверждения: | 19.08.2014 |
| Материалы проекта: | Постановление № 1250 от 19.08.2014 Проект границ земельных участков Опорный план Разбивочный чертеж красных линий Пояснительная записка Данные по нормативным и проектным площадям земельных участков |
Калининград
