
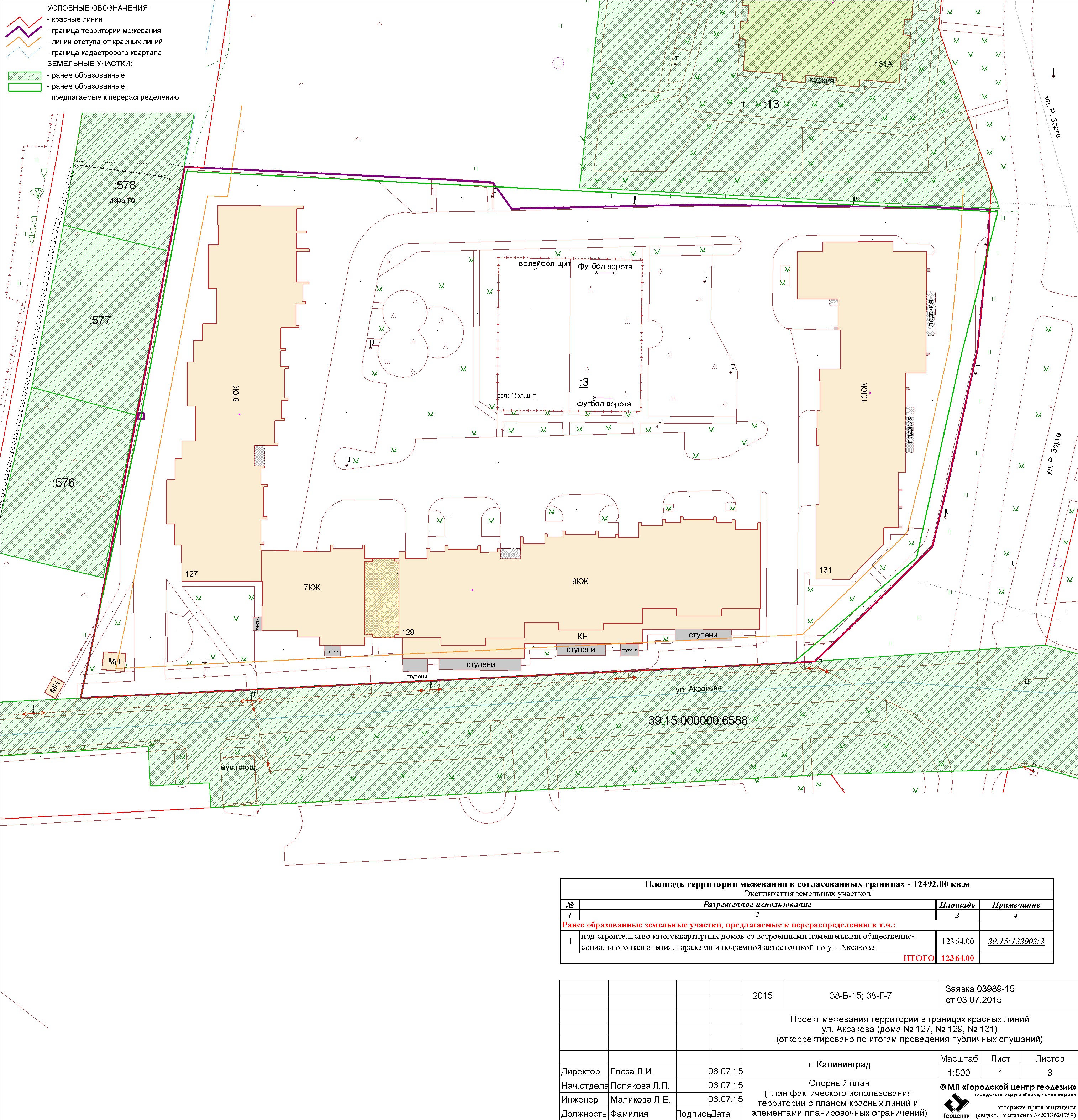
| Наименование проекта: | ул. Аксакова (дома 127, 129, 131) |
|---|---|
| № на схеме: | 513 |
| Дата утверждения: | 10.03.2016 |
| Материалы проекта: | Постановление № 276 от 10.03.2016 Опорный план Проект границ земельных участков Разбивочный чертеж красных линий Пояснительная записка Данные по нормативным и проектным площадям земельных участков |
Калининград
