
| Наименование проекта: | ул. О. Кошевого – ул. Н. Карамзина – бул. Южный |
|---|---|
| № на схеме: | 63 |
| Дата утверждения: | 13.10.2006 |
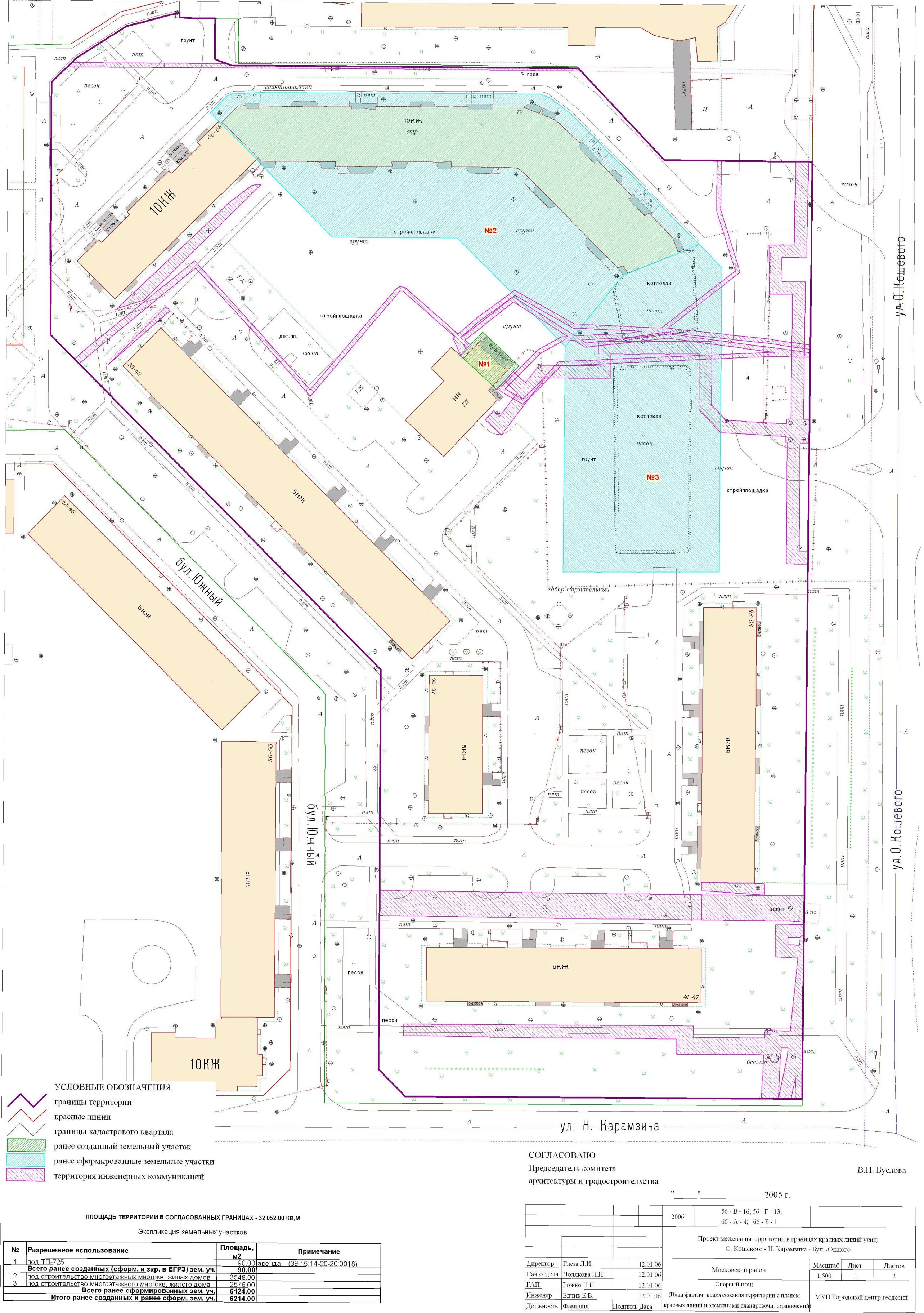
| Материалы проекта: | Постановление № 2384 от 13.10.2006 Опорный план План границ земельных участков Данные ГП Данные по нормативным и проектным площадям земельных участков Данные по существующему жилому фонду и населению Пояснительная записка Технико-экономические показатели |
Калининград
