Администрация ГО "Город Калининград". Публичные слушания по предоставлению разрешения на условно разрешенный вид использования земельного участка или объекта капитального строительства
Размер:
AAA
Цвет: CCC
Изображения Вкл.Выкл.
Обычная версия сайта

Публичные слушания по предоставлению разрешения на условно разрешенный вид использования земельного участка или объекта капитального строительства

Наименование проекта

Место и время проведения

Материалы

Заключение

О предоставлении гр. Парамоновой Т.В., гр. Павелко В.А. разрешения на условно разрешенный вид использования земельного участка по ул. Автомобильной под строительство многоквартирных жилых домов этажностью 5-16 этажей

02 ноября 2017 г. в 17-00 часов в административном здании по адресу: г. Калининград, ул. Октябрьская, 79, каб. 211

Постановление о проведении публичных слушаний

Заключение

Приказ о предоставлении разрешений

О предоставлении ООО «КалининградИнвестСтрой»разрешения на условно разрешенный вид использования земельного участка по ул. Горького в Ленинградском районе под многофункциональное общественно-жилое здание

29 ноября 2016 г. в 17-00 часов в административном здании по адресу: г. Калининград, ул. Фрунзе, 71, каб. 25А, 3-й этаж.

Постановление о проведении публичных слушаний

Заключение

О предоставлении разрешения на условно разрешенный вид использования земельного участка по шос. Балтийскому в Центральном районе под строительство часовни, храма и административного здания

20 октября 2016 в 17-30 часов в административном здании по адресу: г.Калининград, ул.Чайковского, 50-52, каб.206

Постановление о проведении публичных слушаний

Заключение

Постановление о предоставлении разрешения

О предоставлении ООО «ИНВЕСТБАЛТ» разрешения на условно разрешенный вид использования земельного участка по ул. Аксакова в Ленинградском районе под строительство многоквартирного дома этажностью 9 этажей

11 августа 2016 в 17-00 часов в административном здании по адресу: г.Калининград, ул. Фрунзе, 71, каб. 25 А

Постановление о проведении публичных слушаний

Заключение

Постановление о предоставлении разрешения

О предоставлении разрешения на условно разрешенный вид использования земельного участка по ул. Гостиной в Центральном районе под строительство театра

28 июля 2016 г. в 17 часов в административном здании по адресу: г. Калининград, ул. Чайковского,50-52, каб.206, 2-й этаж

Постановление о проведении публичных слушаний

Заключение

Постановление об отказе в предоставлении разрешения

О предоставлении ООО «Дом Строй»разрешения на условно разрешенный вид использования земельного участка по ул. Лужской, 23Б в Центральном районе под многоэтажную застройку (существующий многоквартирный дом и строительство многоквартирного дома со встроенными торговыми и административными помещениями этажностью 9 этажей)

26 мая 2016 г. в 17 часов Дворец культуры «Машиностроитель» по адресу: г. Калининград, ул. Карташева, 111

Постановление о проведении публичных слушаний

Заключение

Постановление о предоставлении разрешения

О предоставлении ООО "ЭНИМАЛХАУС" разрешения на условно разрешенный вид использования земельного участка по ул.Менделеева, 9 в Центральном районе под строительство многоквартирного дома этажностью 4 этажа со встроенными нежилыми помещениями

30 марта 2016 в 17-00 часов в административном здании по адресу: г.Калининград, ул.Чайковского, 50-52, каб.206

Постановление о проведении публичных слушаний

Заключение

Постановление о предоставлении разрешения

О предоставлении гр. Козловой О.Ю.разрешения на условно разрешенный вид использования земельного участка по ул. Д. Бедного, 2Б в Ленинградском районе для реконструкции жилого дома индивидуального жилищного фонда под гостиницу

11 февраля 2016 в 17-00 часов в административном здании по адресу: г. Калининград, ул. Фрунзе, 71, каб. 25А, 3-й этаж

Постановление о проведении публичных слушаний

Заключение

Постановление о предоставлении разрешения

О предоставлении гр. Дроновой Е.И.разрешения на условно разрешенный вид использования земельного участка по ул. Калачева, 34 в Центральном районе под реконструкцию многоквартирного дома этажностью 4 этажа

25 февраля 2016 г. в 17-30 часов в административном здании по адресу: г. Калининград, ул.Чайковского, 50-52, каб.206, 2-й этаж

Постановление о проведении публичных слушаний

Заключение

Постановление о предоставлении разрешения

О предоставлении ООО «Кремень»разрешения на условно разрешенный вид использования земельного участка по ул. Каштановая аллея, 145А в Центральном районе под строительство многоквартирного дома со встроенными административными помещениями и подземной автостоянкой

22 января 2016 г. в 17-00 часов в административном здании по адресу: г. Калининград, ул.Чайковского,50-52, каб.206, 2-й этаж

Постановление о проведении публичных слушаний

Заключение

О предоставлении ООО «Октан-Сервис» разрешения на условно разрешенный вид использования земельного участка по ул. Новгородской в Центральном районе под строительство квартала многоквартирных домов этажностью 9-10 этажей с объектами социального, культурно-бытового и спортивно-оздоровительного назначения

08 декабря 2015 в 17-00 часов во Дворце культуры «Машиностроитель» по адресу: г. Калининград, ул. Карташева, 111

Постановление о проведении публичных слушаний

Заключение

Постановление о предоставлении разрешения

О предоставлении разрешения на условно разрешенный вид использования земельного участка по просп. Калинина в Московском районе (территория парка «Южный») под строительство спортивного комплекса с плавательным бассейном

20 ноября 2015 г. в 17-00 часов в административном здании по адресу: г. Калининград, ул.Чайковского,50-52, каб.206, 2-й этаж

Постановление о проведении публичных слушаний

Заключение

Постановление опредоставлении разрешения

О предоставлении ООО «Тенистая аллея» разрешения на условно разрешенный вид использования земельного участка по ул. Тенистая аллея в Центральном районе под строительство многоквартирного 5-секционного дома этажностью 4 этажа с подвальным этажом и чердачным пространством

19 ноября 2015 г. в 17-00 часов в административном здании по адресу: г. Калининград, ул.Чайковского,50-52, каб.206, 2-й этаж

Постановление о проведении публичных слушаний

Заключение

Постановление о предоставлении разрешения

О предоставлении ООО «Центр»разрешения на условно разрешенный вид использования земельного участка по просп. Советскому в Центральном районе под строительство 9-этажного многоквартирного дома со встроенными нежилыми помещениями и встроено-пристроенной подземной автостоянкой

29 октября 2015 в 17-00 часов в административном здании по адресу: г. Калининград, ул. Чайковского,50-52, каб.206, 2-й этаж

Постановление о проведении публичных слушаний

Заключение

Постановление опредоставлении разрешения

О предоставлении гр. Рябову Д.Г.разрешения на условно разрешенный вид использования земельного участка по проезду Андреевскому 1-ому, 9 в Московском районе под строительство 3-этажного многоквартирного дома

22 октября 2015 в 17-00 часов в административном здании по адресу: г. Калининград, ул. Октябрьская, 79, каб. 211, 2-й этаж.

Постановление о проведении публичных слушаний

Заключение

Постановление об отказе

Постановление о предоставлении разрешения

О предоставлении гр. Шнайдер Х.В.разрешения на условно разрешенный вид использования земельного участка по ул. Муромской в Московском районе под строительство автомойки самообслуживания

01 октября 2015 в 17-00 часов в административном здании по адресу: г. Калининград, ул. Октябрьская, 79, каб. 211, 2-й этаж

Постановление о проведении публичных слушаний

Заключение

Постановление о предоставлении разрешения

О предоставлении ООО«АмберИнвест» разрешения на условно разрешенный вид использования земельного участка по ул. Елизаветинской в Ленинградском районе под строительство автозаправочной станции

27 августа 2015 в 17-00 часов в административном здании по адресу: г. Калининград, ул. Фрунзе, 71, каб. 25А, 3-й этаж.

Постановление о проведении публичных слушаний

Заключение

Постановление о предоставлении разрешения

О предоставлении ООО «Тенистая аллея» разрешения на условно разрешенный вид использования земельного участка по ул. Тенистая аллея в Центральном районе под строительство 4-этажного многоквартирного дома

08 июля 2015 в 17-00 часов в административном здании по адресу: г. Калининград, ул. Чайковского, 50-52, каб. 206, 2-й этаж.

Постановление о проведении публичных слушаний

Заключение

Постановление о предоставлении разрешения

О предоставлении ООО «Паркплэйс» разрешения на условно разрешенный вид использования земельного участка по ул. Крылова – ул. А. Невского в Ленинградском районе под строительство многоквартирного дома со встроенно-пристроенными помещениями

26 июня 2015 г. в 17-00 часов в административном здании по адресу: г. Калининград, ул. Фрунзе, 71, каб. 25А, 3-й этаж.

Постановление о проведении публичных слушаний

Заключение

Постановление о предоставлении разрешения

Постановление о внесении изменений

О предоставлении гр. Шабиеву Балаяру Назиру оглы разрешения на условно разрешенный вид использования земельного участка по ул. У. Громовой (СНТ «Заря») в Московском районе под строительство магазина

18 июня 2015 г. в 17-00 в админстративном здании по адресу: г.Калининград, ул. Октябрьская, 79, каб. 419, 4-й этаж

Постановление о проведении публичных слушаний

Заключение

Постановление об отказе

О предоставлении ООО «Новый дом»разрешения на условно разрешенный вид использования земельного участка по ул. А. Невского в Ленинградском районе под строительство 9-этажного многоквартирного дома

22 мая 2015 в 17-00 часов в административном здании по адресу: г. Калининград, ул. Фрунзе, 71, каб. 25А, 3-й этаж.

Постановление о проведении публичных слушаний

Заключение

Постановление о предоставлении разрешения

О предоставлении ООО «Московская Слобода» разрешения на условно разрешенный вид использования земельного участка по просп. Московскому в Ленинградском районе под строительство блокированных жилых домов

5 марта 2015 в 17-00 часов в административном здании по адресу: г. Калининград, ул. Фрунзе, 71, каб. 25А, 3-й этаж.

Постановление о проведении публичных слушаний

Заключение

Постановление о предоставлении разрешения

О предоставлении ЗАО «Грин»разрешения на условно разрешенный вид использования земельных участков по ул. Марш. Борзова, 107 в Центральном районе под строительство многоквартирных домов этажностью 7 этажей

18 декабря 2014 г. в 17-00 часов в административном здании по адресу: г.Калининград, ул.Карла Маркса, 43, актовый зал, 4-й этаж

Постановление о проведении публичных слушаний

Заключение

Постановление о предоставлении разрешения

О предоставлении ЖСК «Фортовый»разрешения на условно разрешенный вид использования земельного участка по ул. Фортовая дорога в Ленинградском районе под строительство 14-этажного многоквартирного дома со встроенно-пристроенной автостоянкой.

21 ноября 2014 года в 17.00, в здании администрации Ленинградского района, каб. 25-а по адресу: г.Калининград, ул.Фрунзе, 71

Постановление о проведении публичных слушаний

Заключение

Постановление о предоставлении разрешения

О предоставлении ООО «Штерн»разрешения на условно разрешенный вид использования земельного участка по ул. Сержанта Мишина, 32б в Центральном районе под реконструкцию многоквартирного дома

04 июля 2014 г. в 17-00 часов в административном здании по адресу: г. Калининград, ул. Чайковского, 52, каб. 206

Постановление о проведении публичных слушаний

Заключение

Постановление об отказе

О предоставлении ООО «Медео»разрешения на условно разрешенный вид использования земельного участка под строительство многоквартирного дома этажностью 9 этажей по ул. Карташева в Центральном районе

25 июня 2014 в 17-00 часов в здании МАЛДК «Машиностроитель» по адресу: г. Калининград, ул. Карташева,111 (танцевальный зал)

Постановление о проведении публичных слушаний

Заключение

Постановление о предоставлении разрешения

О предоставлении ООО «Досеан-Строй» разрешения на условно разрешенный вид использования земельного участка по ул. Краснокаменной, 65 в Ленинградском районе под строительство многоквартирного 3-этажного дома

16 мая 2014 в 17-30 часов в административном здании по адресу: г. Калининград, ул. Фрунзе, 71, каб. 25А, 3-й этаж.

Постановление о проведении публичных слушаний

Заключение

Постановление о предоставлении разрешения

О предоставлении ООО «Фидес-Строй» разрешения на условно разрешенный вид использования земельного участка по ул. Аксакова в Ленинградском районе под строительство многоквартирного 9-этажного дома

16 мая 2014 в 17-00 часов в административном здании по адресу: г. Калининград, ул. Фрунзе, 71, каб. 25А, 3-й этаж.

Постановление о проведении публичных слушаний

Заключение

Постановление о предоставлении разрешения

О предоставлении ООО «Феникс-МВВ» разрешений на условно разрешенный вид использования земельных участков по ул. Стрелецкой в Ленинградском районе под строительство 8-этажных многоквартирных домов

15 мая 2014 в 17-30 часов в административном здании по адресу: г. Калининград, ул. Фрунзе, 71, каб. 25А, 3-й этаж.

Постановление о проведении публичных слушаний

Заключение

Постановление об отказе

О предоставлении ООО «Балтийская инженерно-строительная компания»разрешения на условно разрешенный вид использования земельного участка по ул. Пионерской, 59 в Ленинградском районе под строительство многоквартирного дома со встроенными нежилыми помещениями и подземным паркингом этажностью 5-16 этажей

17 апреля 2014 в 17-00 часов в административном здании по адресу: г. Калининград, ул. Фрунзе, 71, каб. 25А, 3-й этаж.

Постановление о проведении публичных слушаний

Заключение

Постановление о предоставлении разрешения

О предоставлении ООО «Калининграднефтестрой»разрешения на условно разрешенный вид использования земельного участка по ул. Спортивной, 62 в Центральном районе под строительство 6-этажного многоквартирного дома с подземной автостоянкой

07 апреля 2014 г. в 17-00 часов в административном здании по адресу: г. Калининград, ул. Карла Маркса, 43, 4-й этаж, актовый зал

Постановление о проведении публичных слушаний

Заключение

Постановление о предоставлении разрешения

О предоставлении ООО «ИНВЕСТ групп» разрешения на условно разрешенный вид использования земельного участка по проспекту Московскому в Ленинградском районе под строительство административно-торгового здания и автозаправочной станции

20 марта 2014 в 17-00 часов в административном здании по адресу: г. Калининград, ул. Фрунзе, 71, каб. 25А, 3-й этаж.

Постановление о проведении публичных слушаний

Заключение

Постановление о предоставлении разрешения

О предоставлении ООО «ИСК «Инвент» разрешения на условно разрешенный вид использования земельного участка по ул. Горького в Ленинградском районе под строительство многоквартирного дома со встроенными нежилыми помещениями этажностью 17 этажей

06 марта 2014 в 17-00 часов в административном здании по адресу: г. Калининград, ул. Фрунзе, 71, каб. 25А, 3-й этаж.

Постановление о проведении публичных слушаний

Заключение

Постановление о предоставлении разрешения

О предоставлении гр. Гольдману М.Л. разрешений на условно разрешенный вид использования земельного участка и отклонение от предельных параметров разрешенного строительства многоквартирного дома с подземной парковкой и встроенными общественными помещениями по просп. Победы, 5 в Центральном районе

27 декабря 2013 г. в 17-30 часов в административном здании по адресу: г.Калининград, ул.Карла Маркса, 43, актовый зал, 4-й этаж

Постановление о проведении публичных слушаний

Заключение

Постановление о предоставлении разрешения

О предоставлении ООО «Иоланта-Лт» разрешения на условно разрешенный вид использования земельного участка по ул. Сержанта Мишина в Центральном районе под строительство 3, 4-этажных многоквартирных домов

19 декабря 2013 г. в 17-00 часов в административном здании по адресу: г.Калининград, ул.Карла Маркса, 43, актовый зал, 4-й этаж

Постановление о проведении публичных слушаний

Заключение

Постановление о предоставлении разрешения

О предоставлении ООО «ЕВРОСТРОЙКОМ» разрешения на условно разрешенный вид использования земельного участка по ул. Пионерской, 59 в Ленинградском районе под строительство многоквартирных жилых домов со встроенными нежилыми помещениями 5-16 этажей

27 сентября 2013 в 17-30 часов в административном здании по адресу:
г. Калининград, ул. Фрунзе, 71, каб. 25А, 3-й этаж.

Постановление о проведении публичных слушаний

Заключение

Постановление о предоставлении разрешения

Постановление о предоставлении разрешения

О предоставлении гр. Островской А.Э. разрешений на условно разрешенный вид использования земельного участка по ул. Достоевского, 21 в Ленинградском районе под реконструкцию с расширением индивидуального жилого дома

06 сентября 2013 в 17-00 часов в административном здании по адресу:
г. Калининград, ул. Фрунзе, 71, каб. 25А, 3-й этаж.

Постановление о проведении публичных слушаний

Заключение

Постановление о предоставлении разрешения

О предоставлении гр. Рабиновичу Л.Б. разрешения на условно разрешенный вид использования земельного участка по ул. Пехотной в Ленинградском районе под строительство многоквартирных домов 2-4 этажа

16 августа 2013 г. в 17-00 часов в административном здании по адресу:
г. Калининград, ул. Фрунзе, 71, каб. 25 А, 3-й этаж

Постановление о проведении публичных слушаний

Заключение

Постановление о предоставлении разрешения

О предоставлении ООО «НД-Инвест» разрешения на условно разрешенный вид использования земельного участка по ул. Задонского, 8 в Центральном районе для реконструкции гостевого дома под многоквартирный дом

09 августа 2013 г. в 17-00 часов в административном здании по адресу: г.Калининград, ул.Карла Маркса, 43, актовый зал, 4-й этаж

Постановление о проведении публичных слушаний

Заключение

Постановление о предоставлении разрешения

О предоставлении ООО «Иоланта-Лт» разрешения на условно разрешенный вид использования земельного участка по ул. Сержанта Мишина в Центральном районе под строительство 4-этажных многоквартирных домов

19 июля 2013 г. в 17-00 часов в административном здании по адресу: г.Калининград, ул.Карла Маркса, 43, актовый зал, 4-й этаж

Постановление о проведении публичных слушаний

Заключение

Постановление об отказе

О предоставлении ООО «Калининграднефтестрой» разрешения на условно разрешенный вид использования земельного участка по ул. У. Громовой в Московском районе под строительство многоквартирных домов до 10 этажей

17 мая 2013 г. в 18-00 часов в административном здании по адресу: г. Калининград, ул. Октябрьская, 79, каб. 412, 4-й этаж

Постановление о публичных слушаниях

Заключение

Постановление о предоставлении разрешения

О предоставлении ООО «РИО»разрешения на условно разрешенный вид использования земельного участка по ул. Летней – ул. Иртышской в Московском районе под строительство многоквартирных домов 12-14 этажей

17 мая 2013 г. в 17-00 часов в административном здании по адресу: г. Калининград, ул. Октябрьская, 79, каб. 412, 4-й этаж

Постановление о публичных слушаниях

Заключение

Постановление о предоставлении разрешения

О предоставлении гр. Вербицкому И.И. разрешения на условно разрешенный вид использования земельного участка по проезду Андреевскому 2-му в Московском районе под строительство многоквартирного дома

на 28 марта 2013 в 17-00 часов в административном здании по адресу: г. Калининград, ул. Октябрьская, 79, каб. 412, 4-й этаж

Постановление о публичных слушаниях

Заключение

Постановление о предоставлении разрешения

О предоставлении ООО «ВЮМ»разрешения на условно разрешенный вид использования земельного участка по ул. Горького в Ленинградском районе под строительство многофункционального делового и обслуживающего центра

22 марта 2013 г. в 17-00 часов в здании администрации Ленинградского района (кабинет 25А, 3-й этаж) по адресу: г. Калининград, ул. Фрунзе, 71

Постановление о проведении публичных слушаний

Заключение

Постановление о предоставлении разрешения

О предоставлении комитету муниципального имущества и земельных ресурсовадминистрации городского округа «Город Калининград» разрешения на условно разрешенный вид использования земельного участка по ул. Карташева в Центральном районе под строительство православного Храма

21 марта 2013 г. в 17-00 часов в здании администрации Центрального района по адресу: г.Калининград, ул.Карла Маркса, 43, актовый зал, 4-й этаж

Постановление о проведении публичных слушаний

Заключение

Постановление о предоставлении разрешения

О предоставлении гр. Батыровой Т.А. разрешения на условно разрешенный вид использования земельного участка по ул. Нарвская, 59 в Ленинградском районе под строительство административного здания

07 февраля 2013 г. в 17-30 часов в здании администрации Ленинградского района (кабинет 25А, 3-й этаж) по адресу: г. Калининград, ул. Фрунзе, 71

Постановление о проведении публичных слушаний

Заключение

Постановление о предоставлении разрешения

О предоставлении ФГКУ «Пограничное управление Федеральной службы безопасности Российской Федерации по Калининградской области» разрешения на условно разрешенный вид использования земельного участка по ул. Ульяны Громовой в Московском районе под строительство многоквартирных домов до 10 этажей

29 января 2013 г. в 17-30 часов в здании администрации Московского района (каб. 311) по адресу: г. Калининград, ул. Октябрьская, 79

Постановление о проведении публичных слушаний

Заключение

Постановление о предоставлении разрешения

О предоставлении ООО «Автосервис на Московском»разрешения на условно разрешенный вид использования земельного участка по проспекту Московскому, 270 в Ленинградском районе

31 января 2013 г. в 17-30 часов в здании администрации Ленинградского района (кабинет 25А, 3-й этаж) по адресу: г. Калининград, ул. Фрунзе, 71

Постановление о проведении публичных слушаний

Заключение

Постановление о предоставлении разрешения

О предоставлении Чашко О.Ю. для земельного участка по улице Закатная, 10 в Ленинградском районе разрешения на условно разрешенный вид использования земельного участка (под строительство многоквартирного дома)

06 декабря 2012 г. в 18-00 в здании администрации Ленинградского района (кабинет 25А, 3-й этаж) по адресу: г. Калининград, ул. Фрунзе, 71

Постановление о проведении публичных слушаний

Заключение

Постановление о предоставлении разрешения

О предоставлении гр. Яновой А.А.разрешения на условно разрешенный вид использования земельного участка по ул. Тенистая аллея в Центральном районе под строительство многоквартирного дома

13 декабря 2012 г. в 17-00 часов в здании администрации Центрального района по адресу: г.Калининград, ул.Карла Маркса, 43, актовый зал, 4-й этаж

Постановление о проведении публичных слушаний

Заключение

Постановление об отказе

О предоставлении ООО «Дельта» разрешения на условно разрешенный вид использования земельного участка по ул. Цирковая – ул. Серж. Мишина в Центральном районе под строительство группы многоквартирных домов со встроенными административными помещениями

02 ноября 2012 г.в 17-30 часов в здании администрации Центрального района по адресу: г.Калининград, ул.Карла Маркса, 43, актовый зал, 4-й этаж

Постановление о проведении публичных слушаний

Заключение

Постановление об отказе

О предоставлении гр. Седина Т.С.разрешения на условно разрешенный вид использования земельного участка в Центральном районе по пер. Серж. Колоскова, 2

08 ноября 2012 г.в 17-30 часов в здании администрации Центрального района по адресу: г.Калининград, ул.Карла Маркса, 43, актовый зал, 4-й этаж

Постановление о проведении публичных слушаний

Заключение

Постановление о предоставлении разрешения

О предоставлении ЗАО «Навигатор Тур» разрешения на условно разрешенный вид использования земельного участка в Центральном районе по проспекту Советскому, 290

08 ноября 2012 г.в 18-00 часов в здании администрации Центрального района по адресу: г.Калининград, ул.Карла Маркса, 43, актовый зал, 4-й этаж

Постановление о проведении публичных слушаний

Заключение

Постановление о предоставлении разрешения

О предоставлении ООО «Комфорт»разрешения на условно разрешенный вид использования земельного участка по ул. Арсенальная в Ленинградском районе под строительство многоквартирного дома

09 ноября 2012 г.в 17-30 часов в здании администрации Ленинградского района (кабинет 25А, 3-й этаж) по адресу:

г. Калининград,

ул. Фрунзе, 71

Постановление о проведении публичных слушаний

Заключение

Постановление о предоставлении разрешения

О предоставлении ООО «БалтТехЛайн» разрешения на условно разрешенный вид использования земельного участка в границах улиц: Карташева – Алтайская 2-я – Сестрорецкая – Алтайская 1-я в Центральном районе г. Калининграда под строительство комплекса 5-этажных многоквартирных домов

25 октября 2012 г.в 17-30 часов в здании администрации Центрального района по адресу: г.Калининград, ул.Карла Маркса, 43, актовый зал, 4-й этаж

Постановление о проведении публичных слушаний

Заключение

Постановление о предоставлении разрешения

О предоставлении ООО «ПРОМСТРОЙ» разрешения на условно разрешенный вид использования земельного участка по ул. Александра Невского в Ленинградском районе под строительство комплекса 5-этажных многоквартирных домов

27 сентября 2012 г. в 17-30 часов в здании администрации Ленинградского района (кабинет 25А, 3-й этаж) по адресу:

г. Калининград,

ул. Фрунзе, 71

Постановление о проведении публичных слушаний

Заключение

Постановление о предоставлении разрешения

О предоставлении гр. Лизогуб З.Г. разрешения на условно разрешенный вид использования существующего индивидуального жилого дома по ул. Судостроительная, 114 в Московском районе под его реконструкцию с расширением

02 августа 2012г. в 17-00 в здании администрации Московского района (каб. 311) по адресу: ул. Октябрьская, 79

Постановление о проведении публичных слушаний

Заключение

Постановление о предоставлении разрешения

О предоставлении ООО "Веха"разрешения на условно разрешенный вид использования земельного участка по ул.Тихоненко, 23 в Центральном районе под строительство 3-этажного многоквартирного дома

19 июля 2012 г. в 17-00 в здании администрации Центрального района по адресу: г.Калининград, ул.Карла Маркса, 43, актовый зал, 4-й этаж

Постановление о проведении публичных слушаний

Постановление об отмене постановления

О предоставлении ООО «ЕвроСтрой» разрешения на условно разрешенный вид использования земельного участка по ул. Закатная – ул. Пирогова в Ленинградском районе под строительство 6-этажных многоквартирных домов со встроенными апартаментами и автостоянками в цокольных этажах

08 июня 2012г. в 17-30 в здании администрации Ленинградского района (кабинет 25А, 3-й этаж) по адресу: г. Калининград, ул. Фрунзе, 71

Постановление о проведении публичных слушаний

Заключение

Постановление о предоставлении разрешения

О предоставлении разрешения на условно разрешенный вид использования земельного участка по ул. Одесской, 6-8 в Московском районе (многоквартирный жилой дом 2-4 этажа)

04 июня 2012г. в 18-00 в здании администрации Московского района (актовый зал) по адресу ул. Октябрьская, 79

Постановление о проведении публичных слушаний

Заключение

О предоставлении ООО «Риэлт Балтик Фуд» разрешения на условно разрешенный вид использования земельного участка по просп. Мира в Центральном районе под строительство многоквартирного дома с мансардой и подземной парковкой

10 мая 2012г. в 17-30 в здании администрации Центрального района по адресу: г. Калининград ул. Карла Маркса, 43, актовый зал, 4-й этаж

Постановление о проведении публичных слушаний

Заключение

Постановление об отказе

О предоставлении ООО «Мегаполис-Жилстрой» разрешения на условно разрешенный вид использования земельного участка по ул. Гайдара, 122 в Ленинградском районе под строительство многоквартирного дома со встроенными административными помещениями переменной этажностью 11-15 этажей (выше 12 этажей)

4 мая 2012 г. в 17-00 в здании администрации Ленинградского района (кабинет 25А, 3-й этаж) по адресу: г. Калининград, ул. Фрунзе, 71

Постановление о проведении публичных слушаний

Заключение

Постановление об отказе

Постановление о предоставлении разрешения

О предоставлении ООО “Номинал-Строй” разрешения на условно разрешенный вид использования земельного участка по ул. Физкультурной в Ленинградском районе под строительство 4-этажного многоквартирного дома

12 апреля 2012г. в 17-00 в административном здании по адресу: г. Калининград,ул. Судостроительная, 75, конференц-зал, 2-й этаж

Постановление о проведении публичных слушаний

Заключение

Постановление о предоставлении разрешения

О предоставлении гр. Молодых Ю.Н. разрешения на условно разрешенный вид использования существующего индивидуального жилого дома на земельном участке по проспекту Мира, 191-а в Центральном районе под административное здание

05 апреля 2012г. в 17-00 в здании администрации Центрального района по адресу: г. Калининград ул. Карла Маркса, 43, актовый зал, 4-й этаж

Постановление о проведении публичных слушаний

Заключение

Постановление о предоставлении разрешения

О предоставлении ООО «Стройцентр» разрешения на условно разрешенный вид использования земельного участка по ул. Орудийной в Ленинградском районе под строительство 14-этажных многоквартирных домов со встроенными помещениями нежилого назначения

21 февраля 2012г. в 17-30 в здании Калининградского института переподготовки кадров агробизнеса по адресу: ул.Молодой гвардии, 2

Постановление о проведении публичных слушаний

Заключение

Постановление о предоставлении разрешения

О предоставлении ООО «Балтавтолайт» разрешения на условно разрешенный вид использования земельного участка по ул. Олега Кошевого в Московском районе под строительство автомойки и открытой автостоянки

21 февраля 2012г. в 16-00 в здании администрации Московского района (каб.311) по адресу ул.Октябрьская, 79

Постановление о проведении публичных слушаний

Заключение

Постановление о предоставлении разрешения

О предоставлении ООО «Калининграднефтепродукт»разрешения на условно разрешенный вид использования существующей АЗС №50 и магазина в комплексе с операторской под ее реконструкцию по Советскому проспекту, 248 в Центральном районе

23 декабря 2011г. в 16-00 в здании администрации Центрального района по адресу: г. Калининград ул. Карла Маркса, 43, актовый зал, 4-й этаж

Постановление о проведении публичных слушаний

Заключение

Постановление о предоставлении разрешения

О предоставлении гр. Зубко И.И.разрешения на условно разрешенный вид использования существующего индивидуального жилого дома на земельном участке по ул. Тихой, 2 в Ленинградском районе под существующее административное здание

29 ноября 2011 г. в 18-00 в здании администрации Ленинградского района (кабинет 25А, 3-й этаж) по адресу: г. Калининград, ул. Фрунзе, 71

Постановления о проведении публичных слушаний

Заключение

Постановление о предоставлении разрешения

О предоставлении ООО «Эксклюзив Строй Сервис» на земельном участке по Московскому проспекту в Ленинградском районе разрешений на: условно разрешенный вид использования земельного участка под строительство центра по продаже и обслуживанию автомобилей; отклонение от предельных параметров разрешенного строительства центра по продаже и обслуживанию автомобилей

25 ноября 2011 в 17-00,
в здании центра по продаже и обслуживанию автомобилей «Шкода» (2-ой этаж) по адресу: г. Калининград, Московский проспект, 205

Постановление о проведении публичных слушаний

Заключение

Постановление о предоставлении разрешения

О предоставлении ООО «Кадо» разрешения на условно разрешенный вид использования земельного участка по ул. А.Суворова в Московском районе под строительство спортивно-оздоровительного сооружения

18 ноября 2011 в 16-00,
в помещении кафе в здании автомойки по адресу: г. Калининград, ул. А. Суворова, 54 «у»

Постановление о проведении публичных слушаний

Заключение

Постановление о предоставлении разрешения

О предоставлении ООО «Олимп»разрешения на условно разрешенный вид использования земельного участка по ул. Таганрогской – ул. Ключевой – ул. Родниковой в Ленинградском районе под строительство 4-этажных многоквартирных домов

21 октября 2011 года в 16-00,в здании администрации Ленинградского района (кабинет 25А, 3-й этаж) по адресу: г. Калининград, ул. Фрунзе, 71.

Постановления о проведении публичных слушаний

Заключение

Постановление о предоставлении разрешений

О предоставлении ООО «МакроСтрой» разрешения на условно разрешенный вид использования земельного участка по ул. Докука в Центральном районе под строительство 5-этажных многоквартирных домов

26 августа 2011 в 18-00 в индивидуальном жилом доме по адресу: г. Калининград, ул. Лукашова, 31

Постановление о проведении публичных слушаний

Заключение

Постановление о предоставлении разрешения

О предоставлении ООО «БалтГпрантСтрой» разрешения на условно разрешенный вид использования земельного участка по ул.Глинки в Ленинградском районе под строительство 6-этажного многоквартирного дома с мансардой со встроенными нежилыми помещениями и подземной автостоянкой, отклонение от предельных параметров разрешенного строительства 6-этажного многоквартирного дома с мансардой со встроенными нежилыми помещениями.

29 апреля 2011 в 16-00, в здании МОУ СОШ №8 (актовый зал) по адресу: ул.Герцена, 35

Постановления о проведении публичных слушаний

Заключение

Постановление о предоставлении разрешения

О предоставлении ООО «Калининграднефтепродукт»разрешения на условно-разрешенный вид использования действующей АЗС под ее реконструкцию с расширением по Московскому проспекту, 246 в Ленинградском районе

18.03.2011, в 16-00

в нежилом здании по ул. Миклухо-Маклая, 11

Постановление о проведении публичных слушаний

Заключение

Постановление о предоставлении разрешения

О предоставлении индивидуальному предпринимателю Буровой Е.А.разрешения на условно разрешенный вид использования земельного участка по ул. Орудийной, 18-д в Ленинградском районе под строительство 6-этажного многоквартирного дома с подземной автостоянкой и пристроенными нежилыми помещениями.

14 января 2011 в 16-00 часов в административном здании (3-й этаж) по адресу: г. Калининград, ул. Партизана Железняка, 3.

Постановление о проведении публичных слушаний

Заключение

Постановление об отказе

О предоставлении ЗАО «Спортивная юность» разрешения на условно разрешенный вид использования земельного участка по ул. Горького, 83 в Ленинградском районе под строительство представительства на территории существующего стадиона

09 декабря 2010 в 17-00 в административном здании, расположенном на стадионе по адресу: г. Калининград, ул. Горького, 83.

Постановление о проведении публичных слушаний

Заключение

Постановление о предоставлении разрешения

О предоставлении ООО «Мегаполис-Жилстрой» разрешения на условно разрешенный вид использования земельного участка по ул.Гайдара, 122 в Ленинградском районе под строительство многоквартирного жилого дома переменной этажностью (11-15 этажей) со встроенными административными помещениями

2 декабря 2010 года в здании администрации Ленинградского района по адресу: ул. Фрунзе, 71

Постановление о проведении публичных слушаний

Заключение

Постановление об отказе предоставления разрешения (отменено решением Арбитражного суда Калининградской области от 08.11.2011)

О предоставлении разрешения на условно разрешенный вид использования земельного участка площадью 0.2230 га по ул. Леонида Андреева в Ленинградском районе под строительство физкультурно-оздоровительных сооружений в целях реализации данного участка с аукциона

26 ноября 2010 года в здании администрации Ленинградского района (каб. 25 «А») по ул. Фрунзе, 71

Постановление о проведении публичных слушаний

Заключение

Постановление о предоставлении разрешения

О предоставлении ООО «Даль-Балтикстрой» разрешения на условно разрешенный вид использования земельного участка по ул.Аллея Смелых, 9193,95,97 в Московском районе под строительство многоквартирных жилых домов в 2-4 этажа

12 августа 2010 г. в 17-00 часов в здании училища Олимпийского Резерва по адресу: г. Калининград, ул. Аллея Смелых, 116.

Постановление о проведении публичных слушаний

Заключение

Постановление о предоставлении разрешения

О предоставлении ООО «Бизнес-Проект» разрешения на условно разрешенный вид использования земельного участка по ул.подп. Емельянова в Московском районе под строительство индивидуальных жилых домов

17 августа 2010 г. в 17-00 часов в административном здании по адресу: г. Калининград, ул. 9 Апреля, 58-62.

Постановление о проведении публичных слушаний

Заключение

Постановление о предоставлении разрешения

О предоставлении ООО «РОССЛИТСТРОЙ» разрешения на условно разрешенный вид использования земельного участка по ул.Ломоносова-ул.Броненосная в Центральном районе под строительство многоквартирного 3-этажного дома

19 августа 2010 г. в 17-00 часов в здании администрации Центрального района (актовый зал) по адресу: г. Калининград, ул. Карла Маркса, 43.

Постановление о проведении публичных слушаний

Заключение

Постановление о предоставлении разрешения

О предоставлении ООО «М-КУПЕ»разрешений на условно разрешенный вид использования земельного участка по Московскому проспекту в Ленинградском районе и на отклонение от предельных параметров разрешенного строительства центра по продаже и обслуживанию автомобилей

20 мая 2010 г. в 16-00 часов в здании автосервиса по адресу: г.Калининград, ул. Свердлова, 2

Постановление о проведении публичных слушаний

Заключение

Постановление о предоставлении разрешений

О предоставлении ООО «Веха»разрешения на условно разрешенный вид использования земельного участка по ул. Серж.Мишина, 73 в Центральном районе под строительство трехэтажного многоквартирного дома

03 июня 2010 г. в 17-00 часов в административном здании, зал заседаний (1-й этаж) по адресу: г.Калининград, проспект Калинина, 113

Постановление о проведении публичных слушаний

Заключение

Постановление об отказе в предоставлении разрешения

О предоставлении предпринимателю Барановой Э.К. разрешения на условно разрешенный вид использования земельного участка по ул.Третьяковская,10 "А" в Центральном районе под строительство административного здания

13 ноября 2009г. в 17-00 административное здание по адресу ул.Чернышевского, 36

Постановление о проведении публичных слушаний

Заключение

Постановление на предоставление разрешения

О предоставлении ООО "Баусервис" разрешения на условно разрешенный вид использования земельного участка по ул.Маршала Борзова- ул.Красная в Центральном районе под строительство автомойки на 7 постов со встроенными административно-хозяйственными помещениями и кафе

19 октября 2009 г. в 16-00 в актовом зале МОУ СОШ № 20 по адресу ул.Красная, 301

Постановление о проведении публичных слушаний

Генеральный план

Перспектива1

Перспектива2

Перспектива3

Фасад

Фасад1

Фасад2

Фасад3

Заключение

Постановление о предоставлении разрешения

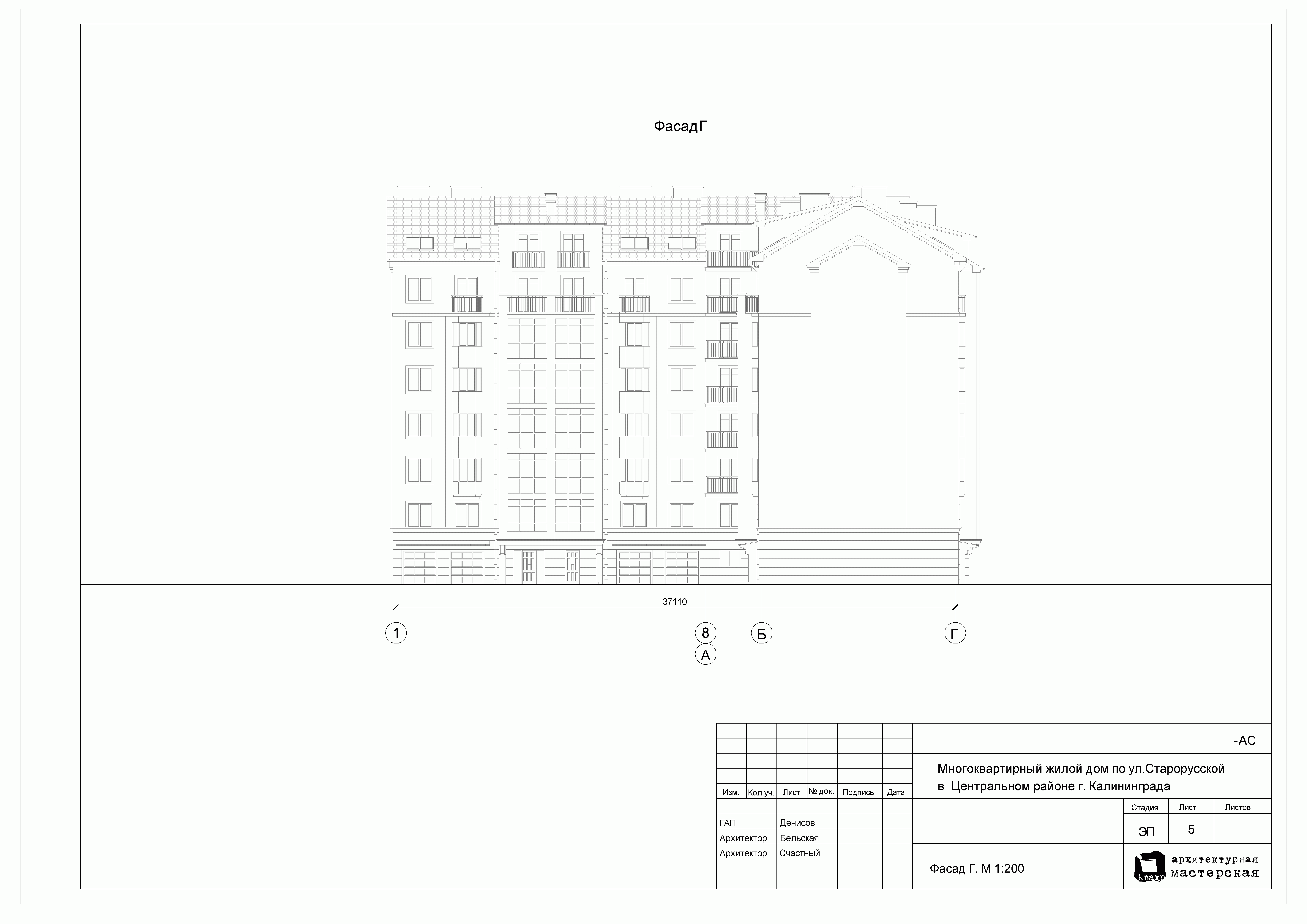
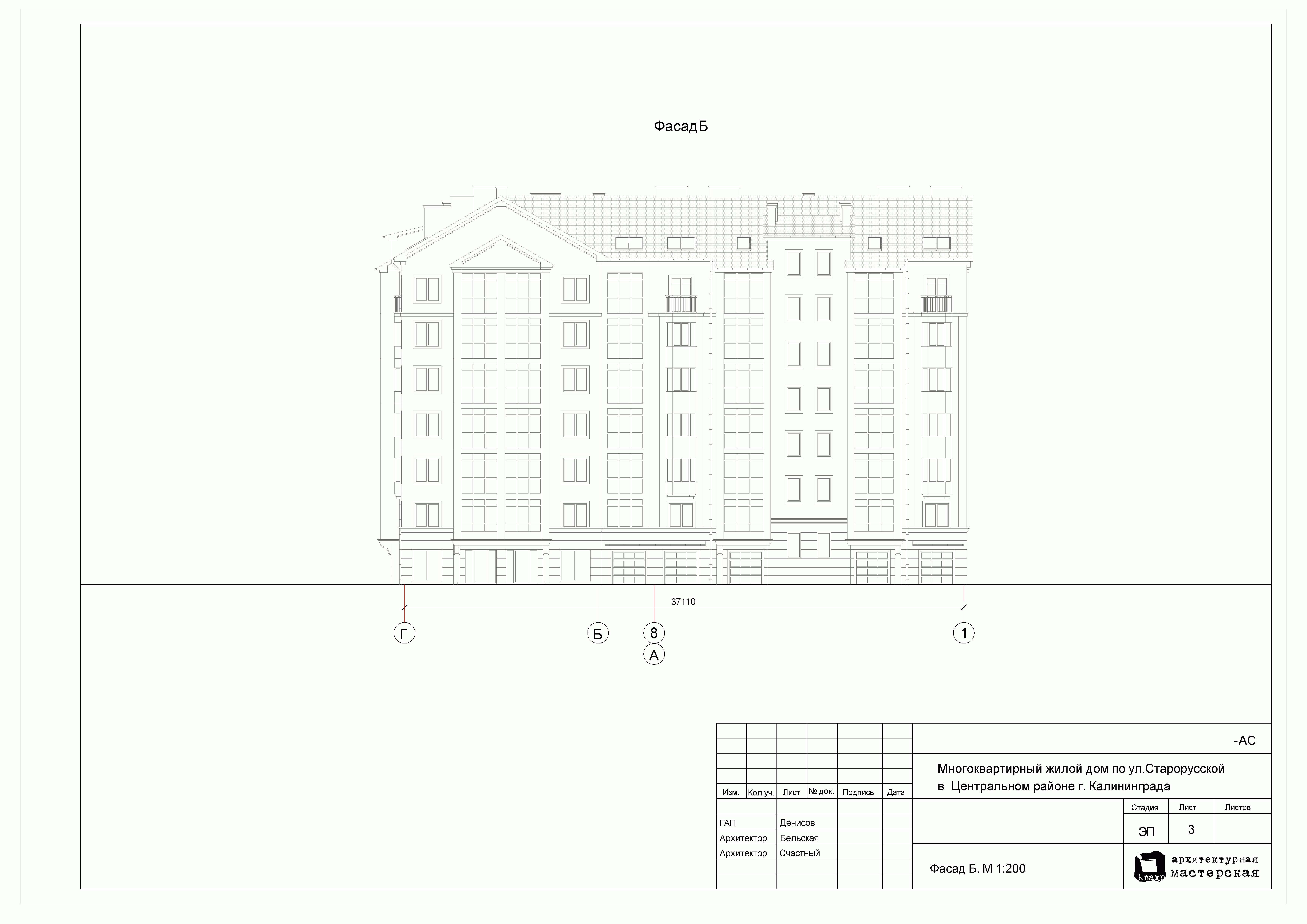
О предоставлении ООО "Регионнефтестрой" разрешения на условно разрешенный вид использования земельного участка по ул.Старорусской, 29 в Центральном районе под строительство многоквартирного 8-ми этажного дома.

19 октября 2009 г. в 17-00 в актовом зале МОУ СОШ № 20 по адресу ул.Красная, 301

Постановление о проведении публичных слушаний

Генеральный план

Компоновочный план 3-6 этаж

Разрезы

Фасад А

Фасад Б

Фасад В

Фасад Г

Заключение

Постановление о предоставлении разрешения

О предоставлении ЖСК «Инициатива плюс» разрешения на условно разрешенный вид использования земельного участка по ул.Ген.Челнокова, 2-8а в Ленинградском районе под строительство многоквартирных домов со встроенными объектами обслуживания жителей и подземной автостоянкой

25 февраля 2010г. в 17-00 в конференц-зале (4-й этаж) здания «Калининградский пассаж» по адресу: площадь Победы, 4а.

Постановление
о проведении публичных слушаний

Заключение

Постановление о предоставлении разрешения

28.06.2019