Администрация ГО "Город Калининград". Публичные слушания
Размер:
AAA
Цвет: CCC
Изображения Вкл.Выкл.
Обычная версия сайта

Публичные слушания по проектам планировки

В соответствии с законом Калининградской области от 30.11.2016 № 19 «О перераспределении полномочий в области градостроительной деятельности между органами государственной власти Калининградской области и органами местного самоуправления муниципальных образований Калининградской области» с 01.01.2017 уполномоченным органом государственной власти Калининградской области, осуществляющим функции по реализации государственной политики в области архитектурной и градостроительной деятельности, координации деятельности в сфере архитектуры и градостроительства, обеспечению деятельности по развитию территорий, территориальному планированию, градостроительному зонированию, планировке территорий, землеустройству, информационному обеспечению градостроительной деятельности, по оказанию государственных услуг в сфере градостроительства, территориального планирования и информационного обеспечения градостроительной деятельности, является Агентство по архитектуре, градостроению и перспективному развитию Калининградской области


Поиск проекта:
по наименованию проекта:
по дате:
Календарь ... Календарь
Номер на схеме. Наименование проекта Место проведения собрания, дата и время проведения собрания Срок и место размещения экспозиции проекта Дата, время и место консультирования посетителей экспозиции Материалы
Заключение
б/н. Проект внесения изменений в проект планировки территории, утвержденный постановлением администрации городского округа «Город Калининград» от 22.04.2013 № 506 «Об утверждении проекта планировки с проектом межевания в его составе территории в границах ул. Кировоградская – ул. Белорусская – ул. Полецкого – проспект Советский в Центральном районе» (с изменениями, внесенными приказами Агентства по архитектуре, градостроению и перспективному развитию Калининградской области от 02.11.2021 № 465 и от 19.10.2021 № 421) Центральная городская библиотека им. А.П. Чехова (г.Калининград, пр-кт Московский, 39),
10.01.2025 17:00:00
с 27.12.2024 по 28.12.2024; с 09.01.2025 по 10.01.2025; в МКУ «ЦДОД» (г. Калининград, пл. Победы, 1); с 27.12.2024 по 28.12.2024; с 03.01.2025 по 05.01.2025; 08.01.2025; 09.01.2025 в Центральной городской библиотеке им. А.П. Чехова (г. Калининград, пр-кт Московский, 39) 10.01.2025 с 11.00 до 12.00 МКУ «ЦДОД» (г. Калининград, пл. Победы, 1)
  • Постановление (опубликованo 19.12.2024)
  • Оповещение (опубликованo 19.12.2024)
  • Чертеж планировки территории (опубликованo 27.12.2024)
  • Положение о характеристиках планируемого развития территории (опубликованo 27.12.2024)

  • Заключение (опубликованo 16.01.2025)
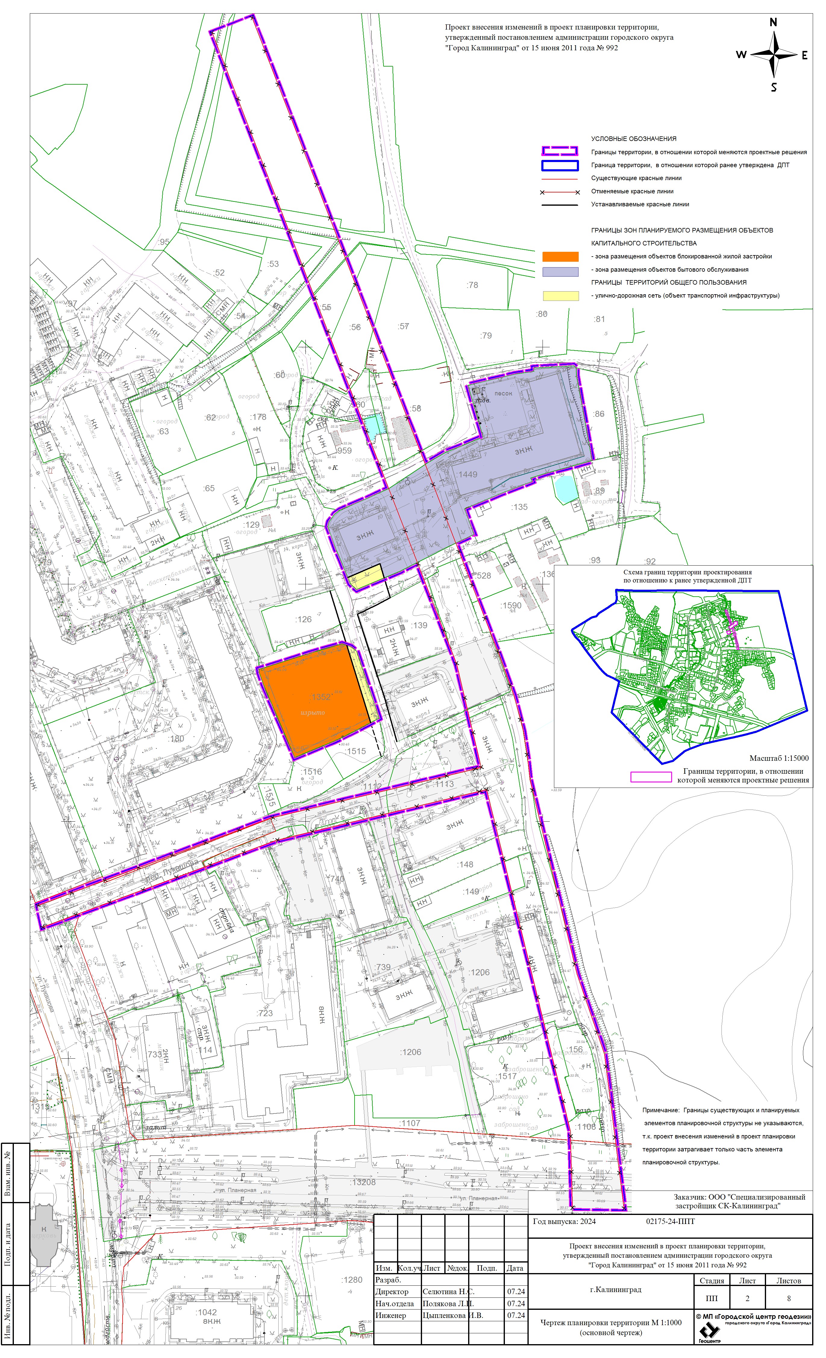
    б/н. Проект внесения изменений в проект планировки территории, утвержденный постановлением администрации городского округа «Город Калининград» от 15.06.2011 № 992 «Об утверждении «Проекта планировки территории пос. Чкаловск Центрального района г. Калининграда» Центральная городская библиотека им. А.П. Чехова (г.Калининград, пр-кт Московский, 39),
    09.01.2025 17:00:00
    27.12.2024 – 28.12.2204; 09.01.2025 02.12.2024 в МКУ «ЦДОД» (г. Калининград, пл. Победы, 1); 27.12.2024 – 28.12.2204; 03.01.2025; 05.01.2025; 08.01.2025 в Центральной городской библиотеке им. А.П. Чехова (г. Калининград, пр-кт Московский, 39) срок приема обращений с 27.12.204 по 09.01.2025 09.01.2025 с 10.00 до 11.00; МКУ «ЦДОД» (г. Калининград, пл. Победы, 1)
  • Постановление (опубликованo 19.12.2024)
  • Оповещение (опубликованo 19.12.2024)
  • Основной чертеж (опубликованo 27.12.2024)
  • Чертеж красных линий (опубликованo 27.12.2024)
  • Схема организации движения транспорта и пешеходов (опубликованo 27.12.2024)
  • Положение о характеристиках планируемого развития территории (опубликованo 27.12.2024)

  • Заключение (опубликованo 16.01.2025)
    б/н. Проект планировки территории с проектом межевания в его составе в отношении земельного участка с кадастровым номером 39:15:130508:17, расположенного по адресу г. Калининград, ул. А. Невского, д. 231, подлежащего комплексному развитию незастроенной территории Центральная городская библиотека им. А.П. Чехова (г.Калининград, пр-кт Московский, 39),
    12.12.2024 17:00:00
    с 06.12.2024 по 16.12.2024 в МКУ «ЦДОД» (г. Калининград, пл. Победы, 1); в Центральной городской библиотеке им. А.П. Чехова (г. Калининград, пр-кт Московский, 39) 10.12.2024 с 10.00 до 11.00, с 16.00 до 17.00. МКУ «ЦДОД» (г. Калининград, пл. Победы, 1)
  • Постановление (опубликованo 28.11.2024)
  • Оповещение (опубликованo 28.11.2024)
  • Проект планировки территории (опубликованo 06.12.2024)
  • Положение о характеристиках планируемого развития территории (опубликованo 06.12.2024)
  • Чертеж межевания территории (опубликованo 06.12.2024)
  • Пояснительная записка (опубликованo 06.12.2024)

  • Заключение (опубликованo 26.12.2024)
    б/н. Проект планировки территории с проектом межевания в его составе, предусматривающий размещение линейного объекта местного значения «Реконструкция участка сети дождевой канализации диаметром 450 мм с устройством очистных сооружений по ул. Колхозной в г. Калининграде» Центральная городская библиотека им. А.П. Чехова (г.Калининград, пр-кт Московский, 39),
    28.11.2024 16:30:00
    с 22.11.2024 по 02.12.2024 в МКУ «ЦДОД» (г. Калининград, пл. Победы, 1); в Центральной городской библиотеке им. А.П. Чехова (г. Калининград, пр-кт Московский, 39) 25.11.2024 с 10.00 до 11.00; с 16.00. до 17.00 МКУ «ЦДОД» (г. Калининград, пл. Победы, 1)
    Заключение (опубликованo 12.12.2024)
    б/н. Проект планировки территории с проектом межевания в его составе, предусматривающий размещение линейного объекта местного значения «Реконструкция участка сети дождевой канализации диаметром 750 мм с устройством очистных сооружений по ул. Герцена в г. Калининграде» Центральная городская библиотека им. А.П. Чехова (г.Калининград, пр-кт Московский, 39),
    28.11.2024 17:30:00
    с 22.11.2024 по 02.12.2024 в МКУ «ЦДОД» (г. Калининград, пл. Победы, 1); в Центральной городской библиотеке им. А.П. Чехова (г. Калининград, пр-кт Московский, 39) 27.11.2024 с 10.00 до 11.00; с 16.00. до 17.00 МКУ «ЦДОД» (г. Калининград, пл. Победы, 1)
    Заключение (опубликованo 12.12.2024)
    Страницы: 1 2 3 4 5 ... 15 След. Все

    Поиск проекта:
    по наименованию проекта:
    по дате:
    Календарь ... Календарь
    № на схеме Наименование проекта Место проведения
    Дата проведения
    Материалы
    Заключение
    190 ЛО Проект планировки территории с проектом межевания в его составе в границах ул. Дачная – часть ул. Стрелецкой (от пр-кта Московского до ул. Ю. Гагарина) в г. Калининграде, предусматривающий размещение линейного объекта 09 октября 2018 г. в 17-00 часов по адресу: г. Калининград, ул. Фрунзе, 71, каб. 25 А
    09.10.2018

    187 пр/ЛО Проект планировки территории с проектом межевания в его составе, предусматривающий размещение линейного объекта местного значения – улицы Юбилейной в городе Калининграде 09 октября 2018 г. в 17-30 часов по адресу: г. Калининград, ул. Фрунзе, 71, каб. 25 А
    09.10.2018

    181пр Проект планировки территории с проектом межевания в его составе в границах ул. Трудовая – ул. Б. Окружная 1-я – ул. Тенистая аллея – ул. Проточная в Центральном районе г. Калининграда 04 сентября 2018 г. в 17-00 часов по адресу: г. Калининград, ул. Чайковского, 50-52, каб. 206
    04.09.2018

    177пр Проект планировки территории с проектом межевания в его составе в границах улиц Римского-Корсакова – Чайковского – Брамса – Ш. Руставели – тупика Зоологического в Центральном районе города Калининграда 03 августа 2018 г. в 17-00 часов по адресу: г. Калининград, ул. Чайковского, 50-52, каб. 206
    03.08.2018

    165 Проект планировки территории с проектом межевания в его составе в границах ул. Каштановая аллея – ручей Воздушный – пруд Нескучный – ул. Спортивная – ул. Олимпийская – ул. Марш. Борзова в Центральном районе 27 июля 2018 г. в 17-00 часов по адресу: г. Калининград, ул. Чайковского, 50-52, каб. 206
    27.07.2018

    Страницы: 1 2 3 4 5 ... 25 След. Все
    05.06.2023