Администрация ГО "Город Калининград". Публичные слушания по проектам межевания
Размер:
AAA
Цвет: CCC
Изображения Вкл.Выкл.
Обычная версия сайта

В соответствии с законом Калининградской области от 30.11.2016 № 19 «О перераспределении полномочий в области градостроительной деятельности между органами государственной власти Калининградской области и органами местного самоуправления муниципальных образований Калининградской области» с 01.01.2017 уполномоченным органом государственной власти Калининградской области, осуществляющим функции по реализации государственной политики в области архитектурной и градостроительной деятельности, координации деятельности в сфере архитектуры и градостроительства, обеспечению деятельности по развитию территорий, территориальному планированию, градостроительному зонированию, планировке территорий, землеустройству, информационному обеспечению градостроительной деятельности, по оказанию государственных услуг в сфере градостроительства, территориального планирования и информационного обеспечения градостроительной деятельности, является Агентство по архитектуре, градостроению и перспективному развитию Калининградской области

Схема границ проектов межевания

Публичные слушания по проектам межевания до 2020 года


№ на схеме

Наименование проекта

Место и время проведения

Материалы

Заключение

 

Проект внесения изменений в проект межевания территории в составе проекта планировки территории, утвержденного постановлением администрации городского округа «Город Калининград» от 12.10.2015 № 1722 «Об утверждении проекта планировки территории с проектом межевания в его составе в границах проспект Московский – граница реки Преголи – набережная Петра Великого в Ленинградском районе»

Срок проведения публичных слушаний

с 19.12.2024 по 16.01.2025

Срок приема обращений с 27.12.2024 по 09.01.2025

Публичные слушания назначены на

09.01..2025 в 16:30
по адресу: г. Калининград, Московский пр-кт, 39 (Центральная городская библиотека им. А.П. Чехова)

Период и место проведения экспозиции:

с 27.12.2024 по 28.12.2024;

09.01.2025
в помещении МКУ “ЦДОД” (пл. Победы, 1),

27.12.2024-28.12.2024;

03.01.2025;

05.01.2025;

08.01.2025

в Центральной городской библиотеке им. А.П. Чехова  (Московский пр-кт, 39)


Консультации:

09.01.2025

с 11.00 до 12.00
в помещении МКУ “ЦДОД” (пл. Победы, 1)

Постановление
(опубликовано 19.12.2024)

Оповещение
(опубликовано 19.12.2024)

Чертеж межевания территории
(опубликовано 27.12.2024)

Пояснительная записка
(опубликовано 27.12.2024)


Заключение
(опубликовано 16.01.2025)
 

Проект внесения изменений в проект межевания территории, утвержденный постановлением администрации городского округа «Город Калининград» от 30.12.2016 № 2052 «Об утверждении проекта межевания территории в границах красных  линий   ул. Красносельская – ул. Саратовская – ул. Воздушная – просп.Мира и проекта межевания территории в границах красных линий ул. П. Флоренского – ул. А. Болотова – пер. П. Флоренского в г. Калининграде»

Срок проведения публичных слушаний

с 21.11.2024 по 19.12.2024

Публичные слушания назначены на

05.12.2024 в 17:00
по адресу: г. Калининград, Московский пр-кт, 39 (Центральная городская библиотека им. А.П. Чехова)

Период и место проведения экспозиции:

с 29.11.2024 по 09.12.2024
в помещении МКУ “ЦДОД” (пл. Победы, 1),

в Центральной городской библиотеке им. А.П. Чехова  (Московский пр-кт, 39)


Консультации:

03.12.2024

с 10.00 до 11.00,
с 16.00 до 17.00
в помещении МКУ “ЦДОД” (пл. Победы, 1)

Постановление
(опубликовано 21.11.2024)

Оповещение
(опубликовано 21.11.2024)

Чертеж межевания территории (основной чертеж)
(опубликовано 29.11.2024)

Пояснительная записка
(опубликовано 29.11.2024)

Заключение (опубликовано 19.12.2024)

 

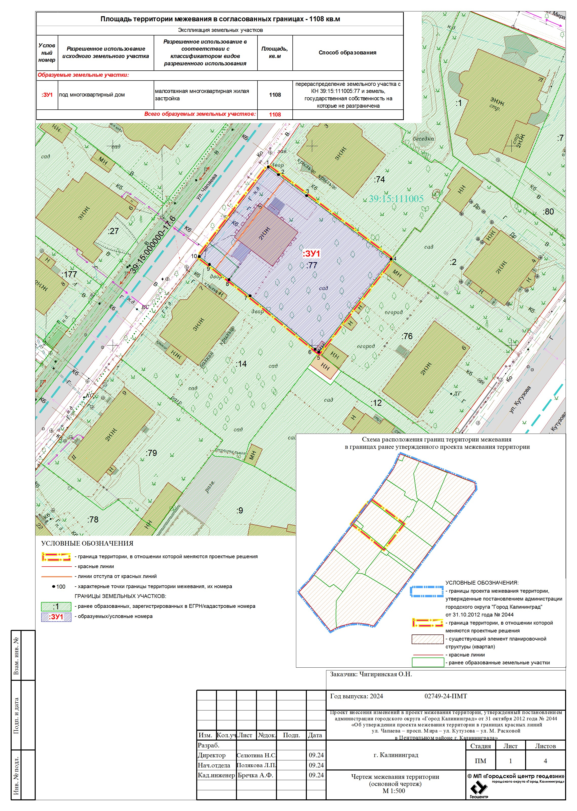
Проект внесения изменений в проект межевания территории, утвержденный постановлением администрации городского округа «Город Калининград» от 31.10.2012 № 2044 «Об утверждении проекта межевания территории в границах красных линий ул. Чапаева – просп. Мира – ул. Кутузова – ул. М. Расковой в Центральном районе г. Калининграда»

Срок проведения публичных слушаний

с 07.11.2024 по 05.12.2024

Публичные слушания назначены на

20.11.2024 в 17:00
по адресу: г. Калининград, Московский пр-кт, 39 (Центральная городская библиотека им. А.П. Чехова)

Период и место проведения экспозиции:

с 15.11.2024 по 25.11.2024
в помещении МКУ “ЦДОД” (пл. Победы, 1),

в Центральной городской библиотеке им. А.П. Чехова  (Московский пр-кт, 39)

Консультации:

18.11.2024

с 10.00 до 11.00,
с 16.00 до 17.00
в помещении МКУ “ЦДОД” (пл. Победы, 1)

Постановление
(опубликовано 07.11.2024)

Оповещение
(опубликовано 07.11.2024)

Чертеж межевания территории
(опубликовано 15.11.2024)

Пояснительная записка
(опубликовано 15.11.2024)


Заключение
(опубликовано 05.12.2024)
 

Проект внесения изменений в проект межевания территории в составе проекта планировки территории, утвержденного постановлением администрации городского округа «Город Калининград» от 15.09.2016 № 1371 «Об утверждении проекта планировки с проектом межевания в его составе территории в границах ул. А. Невского – ул.Артиллерийская – ул. Аэропортная – ул. Орудийная – ул. Ю. Гагарина – ул. Куйбышева в Ленинградском районе» (с изменениями, внесенными приказами Министерства градостроительной политики Калининградской области от 02.09.2022 № 348 и от 21.02.2023 № 69)

Срок проведения публичных слушаний

с 07.11.2024 по 05.12.2024

Публичные слушания назначены на

20.11.2024 в 17:30
по адресу: г. Калининград, Московский пр-кт, 39 (Центральная городская библиотека им. А.П. Чехова)

Период и место проведения экспозиции:

с 15.11.2024 по 25.11.2024
в помещении МКУ “ЦДОД” (пл. Победы, 1),

в Центральной городской библиотеке им. А.П. Чехова  (Московский пр-кт, 39)

Консультации:

18.11.2024

с 11.00 до 12.00,
с 17.00 до 18.00
в помещении МКУ “ЦДОД” (пл. Победы, 1)

Постановление
(опубликовано 07.11.2024)

Оповещение
(опубликовано 07.11.2024)

Чертеж межевания территории
(опубликованo 15.11.2024)

Пояснительная записка
(опубликованo 15.11.2024)

Заключение
(опубликовано 05.12.2024)

 
Проект внесения изменений в проект межевания территории, утвержденный постановлением мэра города Калининграда от 30.12.2003 № 3142 «Об утверждении проекта межевания квартала в границах красных линий улиц Чернышевского – Каштановая аллея – Фестивальная аллея  - Чкалова в Центральном районе» 

Срок проведения публичных слушаний

с 19.09.2024 по 17.10.2024

Публичные слушания назначены на

03.10.2024 в 17:00
по адресу: г. Калининград, Московский пр-кт, 39 (Центральная городская библиотека им. А.П. Чехова)

Период и место проведения экспозиции:

с 27.09.2024 по 07.10.2024
в помещении МКУ “ЦДОД” (пл. Победы, 1),

в Центральной городской библиотеке им. А.П. Чехова  (Московский пр-кт, 39)


Консультации:

01.10.2024

с 10.00 до 11.00,
с 16.00 до 17.00
в помещении МКУ “ЦДОД” (пл. Победы, 1)

Постановление
(опубликованo 19.09.2024)

Оповещение
(опубликованo 19.09.2024)

Чертеж межевания территории
(опубликованo 27.09.2024)

Пояснительная записка
(опубликованo 27.09.2024)



Заключение
(опубликовано 17.10.2024)
 

О проведении публичных слушаний по проекту внесения изменений в проект межевания территории, утвержденный постановлением администрации городского округа «Город Калининград»  от 10.07.2017 № 992 «Об утверждении проекта межевания территории  в границах западная граница земельных участков по адресам ул. В. Дубинина, 10, ул. Цирковая, 11 Б, ул. Цирковая, 11 – ул. Цирковая –  ул. Менделеева – ул. В. Дубинина в г. Калининграде»

Срок проведения публичных слушаний

с 12.09.2024 по 10.10.2024

Публичные слушания назначены на

25.09.2024 в 17:00
по адресу: г. Калининград, Московский пр-кт, 39 (Центральная городская библиотека им. А.П. Чехова)

Период и место проведения экспозиции:

с 20.09.2024 по 30.09.2024
в помещении МКУ “ЦДОД” (пл. Победы, 1),

в Центральной городской библиотеке им. А.П. Чехова  (Московский пр-кт, 39)

Консультации:

23.09.2024

с 10.00 до 11.00,
с 16.00 до 17.00
в помещении МКУ “ЦДОД” (пл. Победы, 1)

Постановление
(опубликованo 12.09.2024)

Оповещение
(опубликованo 12.09.2024)

Чертеж межевания территории
(опубликовано 20.09.2024)

Пояснительная записка
(опубликовано 20.09.2024)


Заключение
(опубликовано 10.10.2024)
 
Проект внесения изменений в проект межевания территории, утвержденный приказом Агентства по архитектуре, градостроению и перспективному развитию Калининградской области от 10.02.2021 № 40 «Об утверждении проекта межевания территории в границах улицы Яблочная – река Старая Преголя – река Лесная в городе Калининграде»

Срок проведения публичных слушаний

с 23.05.2024 по 20.06.2024

Публичные слушания назначены на

05.06.2024 в 17:00
по адресу: г. Калининград, Московский пр-кт, 39 (Центральная городская библиотека им. А.П. Чехова)

Период и место проведения экспозиции:

с 31.05.2024 по 10.06.2024
в помещении МКУ “ЦДОД” (пл. Победы, 1),

в Центральной городской библиотеке им. А.П. Чехова  (Московский пр-кт, 39)

Консультации:

03.06.2024

с 10.00 до 11.00,
с 16.00 до 17.00
в помещении МКУ “ЦДОД” (пл. Победы, 1)

Постановление
(опубликовано 23.05.2024)

Оповещение
(опубликовано 23.05.2024)

Чертеж межевания территории (основной чертеж)
(опубликовано 31.05.2024)

Пояснительная записка
(опубликовано 31.05.2024)


Заключение
(опубликовано 20.06.2024)
 

Проект внесения изменений в проект межевания территории, утвержденный постановлением администрации городского округа «Город Калининград» от 15.06.2016 № 835 «Об утверждении проекта межевания территории в границах красных линий просп. Московский – ул. Ялтинская – пер. Ялтинский в Ленинградском районе г. Калининграда»

Срок проведения публичных слушаний

с 04.04.2024 по 02.05.2024

Публичные слушания назначены на

17.04.2024 в 16:00
по адресу: г. Калининград, Московский пр-кт, 39 (Центральная городская библиотека им. А.П. Чехова)

Период и место проведения экспозиции:

с 12.04.2024 по 22.04.2024
в помещении МКУ “ЦДОД” (пл. Победы, 1),

в Центральной городской библиотеке им. А.П. Чехова  (Московский пр-кт, 39).

Консультации:

15.04.2024

с 10.00 до 11.00,
с 16.00 до 17.00
в помещении МКУ “ЦДОД” (пл. Победы, 1)

Постановление
(опубликовано 04.04.2024)

Оповещение
(опубликовано 04.04.2024)

Чертеж межевания территории (основной чертеж)
(опубликовано 12.04.2024)

Пояснительная записка
(опубликовано 12.04.2024)


Заключение
(опубликовано 02.05.2024)
 

Проект межевания территории в районе ул. Танковой, 13 в г. Калининграде

Срок проведения публичных слушаний

с 04.04.2024 по 02.05.2024

Публичные слушания назначены на

18.04.2024 в 17:00
по адресу: г. Калининград, Московский пр-кт, 39 (Центральная городская библиотека им. А.П. Чехова)

Период и место проведения экспозиции:

с 12.04.2024 по 22.04.2024
в помещении МКУ “ЦДОД” (пл. Победы, 1),

в Центральной городской библиотеке им. А.П. Чехова  (Московский пр-кт, 39).

Консультации:

16.04.2024

с 10.00 до 11.00,
с 15.00 до 16.00
в помещении МКУ “ЦДОД” (пл. Победы, 1)

Постановление
(опубликовано 04.04.2024)

Оповещение
(опубликовано 04.04.2024)

Проект межевания территории
(опубликовано 12.04.2024)

Пояснительная записка
(опубликовано 12.04.2024)


Заключение
(опубликовано 02.05.2024)
 

Проект межевания территории в границах улиц Красной – Псковской – Велижской - внутриквартального проезда в городе Калининграде

Срок проведения публичных слушаний

с 23.11.2023 по 21.12.2023

Публичные слушания назначены на

07.12.2023 в 17:00
по адресу: г. Калининград, Московский пр-кт, 39 (Центральная городская библиотека им. А.П. Чехова)

Период и место проведения экспозиции:

с 01.12.2023 по 11.12.2023
в помещении МКУ “ЦДОД” (пл. Победы, 1),

в Центральной городской библиотеке им. А.П. Чехова  (Московский пр-кт, 39)


Консультации:

05.12.2023

с 10.00 до 11.00,
с 16.00 до 17.00
в помещении МКУ “ЦДОД” (пл. Победы, 1)

Постановление
(опубликовано 23.11.2023)

Оповещение
(опубликовано 23.11.2023)

Чертеж межевания территории
(опубликовано 01.12.2023)

Чертеж красных линий
(опубликовано 01.12.2023)

Пояснительная записка
(опубликовано 01.12.2023)


Заключение
(опубликовано 21.12.2023)
 
Проект межевания территории в границах улиц Каштановая аллея – Чекистов в городе Калининграде

Срок проведения публичных слушаний

с 23.11.2023 по 21.12.2023

Публичные слушания назначены на

06.12.2023 в 17:00
по адресу: г. Калининград, Московский пр-кт, 39 (Центральная городская библиотека им. А.П. Чехова)

Период и место проведения экспозиции:

с 01.12.2023 по 11.12.2023
в помещении МКУ “ЦДОД” (пл. Победы, 1),

в Центральной городской библиотеке им. А.П. Чехова  (Московский пр-кт, 39)


Консультации:

04.12.2023

с 10.00 до 11.00,
с 16.00 до 17.00
в помещении МКУ “ЦДОД” (пл. Победы, 1)

Постановление
(опубликовано 23.11.2023)

Оповещение

(опубликовано 23.11.2023)

Чертеж межевания территории
(опубликовано 01.12.2023)

Чертеж красных линий
(опубликовано 01.12.2023)

Пояснительная записка
(опубликовано 01.12.2023)



Заключение
(опубликовано 21.12.2023)
 Проект внесения изменений в проект межевания территории в составе проекта планировки территории, утвержденного постановлением администрации городского округа «Город Калининград» от 19.07.2017 № 1081 «Об утверждении проекта планировки территории с проектом межевания в его составе в границах ул. Горького –ул. Ракитная – ул. Госпитальная – озеро Верхнее – ул. Черняховского –ул. Пролетарская – ул. Проф. Баранова в Ленинградском районе»
Срок проведения публичных слушаний
с 28.09.2023 по 26.10.2023

Публичные слушания назначены на
12.10.2023 в 17:00
по адресу: г. Калининград, Московский пр-кт, 39 (Центральная городская библиотека им. А.П. Чехова)

Период и место проведения экспозиции:
с 06.10.2023 по 16.10.2023
в помещении МКУ “ЦДОД” (пл. Победы, 1),
в Центральной городской библиотеке им. А.П. Чехова  (Московский пр-кт, 39)

Консультации:
10.10.2023
с 10.00 до 11.00,
с 16.00 до 17.00
в помещении МКУ “ЦДОД” (пл. Победы, 1)
Постановление
(опубликовано 28.09.2023г.)

Оповещение
(опубликовано 28.09.2023г.)

Чертеж межевания территории
(опубликовано 06.10.2023г.)

Пояснительная записка
(опубликовано 06.10.2023г.)
Заключение
(опубликовано 26.10.2023г.)
 

Проект межевания территории в границах красных линий улицы Крымской – улицы Б. Окружной – Московского проспекта – ручья Восточного в городе Калининграде

Срок проведения публичных слушаний
с 14.09.2023 по 12.10.2023
Публичные слушания назначены на

28.09.2023 в 17:00
по адресу: г. Калининград, Московский пр-кт, 39 (Центральная городская библиотека им. А.П. Чехова)

Период и место проведения экспозиции:
с 22.09.2023 по 02.10.2023
в помещении МКУ “ЦДОД” (пл. Победы, 1),

в Центральной городской библиотеке им. А.П. Чехова  (Московский пр-кт, 39)

Консультации:

26.09.2023
с 10.00 до 11.00,
с 16.00 до 17.00
в помещении МКУ “ЦДОД” (пл. Победы, 1)


Постановление
(опубликовано 14.09.2023г.)

Оповещение
(опубликовано 14.09.2023г.)

Чертеж межевания территории
(основной чертеж)

(опубликовано 22.09.2023г.)

Чертеж красных линий
(опубликовано 22.09.2023г.)

Пояснительная записка
(опубликовано 22.09.2023г.)


Заключение
(опубликовано 12.10.2023г.)
 Проект внесения изменений в проект межевания территории в границах красных линий ул. Закавказская – ул. Чапаева – ул. Каштановая аллея – пер. Каштановый в Центральном районе, утвержденный постановлением администрации городского округа «Город Калининград» от 23.06.2014 № 931 Срок проведения публичных слушаний

с 01.06.2023 по 29.06.2023

Публичные слушания назначены на

15.06.2023 в 17:00
по адресу: г. Калининград, Московский пр-кт, 39 (Центральная городская библиотека им. А.П. Чехова)

Период и место проведения экспозиции:

с 09.06.2023 по 19.06.2023
в помещении МКУ “ЦДОД” (пл. Победы, 1),

в Центральной городской библиотеке им. А.П. Чехова  (Московский пр-кт, 39)


Консультации:

13.06.2023

с 10.00 до 11.00,
с 16.00 до 17.00
в помещении МКУ “ЦДОД” (пл. Победы, 1)
Постановление
(опубликовано 01.06.2023г.)

Оповещение
(опубликовано 01.06.2023г.)

Чертеж межевания территории (основной чертеж)
(опубликовано 09.06.2023г.)

Пояснительная записка
(опубликовано 09.06.2023г.)

Заключение
 

Проект межевания территории в границах улиц Нарвской – Калужской в городе Калининграде

Срок проведения публичных слушаний

с 18.05.2023 по 15.06.2023

Публичные слушания назначены на

01.06.2023 в 17:00
по адресу: г. Калининград, Московский пр-кт, 39 (Центральная городская библиотека им. А.П. Чехова)

Период и место проведения экспозиции:

с 26.05.2023 по 05.06.2023
в помещении МКУ “ЦДОД” (пл. Победы, 1),

в Центральной городской библиотеке им. А.П. Чехова  (Московский пр-кт, 39)


Консультации:

30.05.2023

с 10.00 до 11.00,
с 16.00 до 17.00
в помещении МКУ “ЦДОД” (пл. Победы, 1)

Постановление

Оповещение

Чертеж межевания территории

Чертеж красных линий

Текстовая часть


Заключение
 Рассмотрение схемы расположения земельного участка на кадастровом плане территории, на котором расположен многоквартирный дом по адресу г. Калининград, ул. Минина и Пожарского, д. 13 и иные входящие в состав дома объекты недвижимого имущества. Срок проведения публичных слушаний с 11.05.2023 по 15.06.2023.
Публичные слушания назначены на 25.05.2023 в 17.00 по адресу: г. Калининград, Московский пр-кт, 39 (Центральная городская библиотека им. А.П. Чехова).
Период и место проведения экспозиции: с 15.05.2023 по 01.06.2023 в помещении МКУ «ЦДОД» (пл. Победы, 1), в Центральной городской библиотеке им. А.П. Чехова (Московский пр-кт, 39).
Консультации: 18.05.2023 с 10.00 до 11.00, с 16.00 до 17.00 в помещении МКУ «ЦДОД» (пл. Победы, 1).
Постановление

Схема расположения
Заключение
 Проект межевания территории в границах улицы Каштановая аллея, 179 – ручья Воздушного

Срок проведения публичных слушаний

с 16.03.2023 по 13.04.2023

Публичные слушания назначены на

30.03.2023 в 17:00
по адресу: г. Калининград, Московский пр-кт, 39 (Центральная городская библиотека им. А.П. Чехова)

Период и место проведения экспозиции:

с 24.03.2023 по 03.04.2023
в помещении МКУ “ЦДОД” (пл. Победы, 1),

в Центральной городской библиотеке им. А.П. Чехова  (Московский пр-кт, 39)


Консультации:

28.03.2023

с 10.00 до 11.00,
с 16.00 до 17.00
в помещении МКУ “ЦДОД” (пл. Победы, 1)

Постановление

Оповещение

Чертеж межевания территории

Пояснительная записка


Заключение
 Проект внесения изменений в проект межевания территории, утвержденный постановлением мэра города Калининграда от 20.01.2005 №106 «Об утверждении проекта межевания квартала в границах красных линий улиц Радищева – Станочная – Нефтяная – пер. Станочный в Октябрьском районе» Срок проведения публичных слушаний

с 09.03.2023 по 06.04.2023

Публичные слушания назначены на

23.03.2023 в 17:00
по адресу: г. Калининград, Московский пр-кт, 39 (Центральная городская библиотека им. А.П. Чехова)

Период и место проведения экспозиции:

с 17.03.2023 по 27.03.2023
в помещении МКУ “ЦДОД” (пл. Победы, 1),

в Центральной городской библиотеке им. А.П. Чехова  (Московский пр-кт, 39)


Консультации:

21.03.2023

с 10.00 до 11.00,
с 16.00 до 17.00
в помещении МКУ “ЦДОД” (пл. Победы, 1)
Постановление

Оповещение

Чертеж межевания территории

Фрагмент карты функциональных зон

Пояснительная записка

Заключение
 

Проект внесения изменений в проект межевания территории, утвержденный постановлением мэра города Калининграда от 25.07.2002 № 2054 «Об утверждении проекта межевания квартала в границах красных линий улиц Литовский вал – Московский проспект – Гагарина и ручья Литовского в Ленинградском районе»

Срок проведения публичных слушаний

с 02.02.2023 по 02.03.2023

Публичные слушания назначены на

16.02.2023 в 17:00
по адресу: г. Калининград, Московский пр-кт, 39 (Центральная городская библиотека им. А.П. Чехова)

Период и место проведения экспозиции:

с 10.02.2023 по 20.02.2023
в помещении МКУ “ЦДОД” (пл. Победы, 1),

в Центральной городской библиотеке им. А.П. Чехова  (Московский пр-кт, 39)


Консультации:

14.02.2023

с 10.00 до 11.00,
с 16.00 до 17.00
в помещении МКУ “ЦДОД” (пл. Победы, 1)

Постановление

Оповещение

Чертеж красных линий

Основной чертеж

Пояснительная записка



Заключение
 

Проект межевания территории в границах ул. Туруханской – ул. Б. Окружной в г. Калининграде

Срок проведения публичных слушаний

с 19.01.2023 по 16.02.2023

Публичные слушания назначены на

02.02.2023 в 17:00
по адресу: г. Калининград, Московский пр-кт, 39 (Центральная городская библиотека им. А.П. Чехова)

Период и место проведения экспозиции:

с 27.01.2023 по 06.02.2023
в помещении МКУ “ЦДОД” (пл. Победы, 1),

в Центральной городской библиотеке им. А.П. Чехова  (Московский пр-кт, 39)


Консультации:

31.01.2023

с 10.00 до 11.00,
с 16.00 до 17.00
в помещении МКУ “ЦДОД” (пл. Победы, 1)

Постановление

Оповещение

Чертеж межевания территории

Чертеж красных линий

Текстовая часть



Заключение
 

Проект внесения изменений в проект межевания территории, утвержденный постановлением администрации городского округа «Город Калининград» от 27.12.2011 № 2330 «Об утверждении проекта межевания квартала в границах красных линий ул. Велижской – ул. Невельской – ул. Ставропольской в Центральном районе г.Калининграда».

Срок проведения публичных слушаний

с 01.12.2022 по 29.12.2022

Публичные слушания назначены на

15.12.2022 в 17:00
по адресу: г. Калининград, Московский пр-кт, 39 (Центральная городская библиотека им. А.П. Чехова)

Период и место проведения экспозиции:

с 09.12.2022 по 19.12.2022
в помещении МКУ “ЦДОД” (пл. Победы, 1),

в Центральной городской библиотеке им. А.П. Чехова  (Московский пр-кт, 39)


Консультации:

13.12.2022

с 10.00 до 11.00,
с 16.00 до 17.00
в помещении МКУ “ЦДОД” (пл. Победы, 1)

Постановление

Оповещение

Чертеж межевания

Пояснительная записка


Заключение
 

Проект межевания территории в границах улиц Тихорецкой – Школьной – Киевской – Великолукской в городе Калининграде

Срок проведения публичных слушаний

с 24.11.2022 по 22.12.2022

Публичные слушания назначены на

08.12.2022 в 17:00
по адресу: г. Калининград, Московский пр-кт, 39 (Центральная городская библиотека им. А.П. Чехова)

Период и место проведения экспозиции:

с 02.12.2022 по 12.12.2022
в помещении МКУ “ЦДОД” (пл. Победы, 1),

в Центральной городской библиотеке им. А.П. Чехова  (Московский пр-кт, 39)


Консультации:

06.12.2022

с 10.00 до 11.00,
с 16.00 до 17.00
в помещении МКУ “ЦДОД” (пл. Победы, 1)

Постановление

Оповещение

Чертеж межевания территории (основная часть)

Чертеж красных линий

Пояснительная записка

Заключение

 

Проект межевания территории в границах улиц Согласия – Ф. Воейкова- Нарвская – Гайдара в городе Калининграде

Срок проведения публичных слушаний

с 24.11.2022 по 22.12.2022

Публичные слушания назначены на

07.12.2022 в 17:00
по адресу: г. Калининград, Московский пр-кт, 39 (Центральная городская библиотека им. А.П. Чехова)

Период и место проведения экспозиции:

с 02.12.2022 по 12.12.2022
в помещении МКУ “ЦДОД” (пл. Победы, 1),

в Центральной городской библиотеке им. А.П. Чехова (Московский пр-кт, 39)


Консультации:

05.12.2022

с 10.00 до 11.00,
с 16.00 до 17.00
в помещении МКУ “ЦДОД” (пл. Победы, 1)

Постановление

Оповещение

Чертеж межевания территории (основной чертеж)

Пояснительная записка

Заключение

 

Проект межевания территории в границах пр-кта Гвардейского – ул. Театральной – ул. Ген. Галицкого в г. Калининграде

Срок проведения публичных слушаний

с 03.11.2022 по 01.12.2022

Публичные слушания назначены на

17.11.2022 в 17:00
по адресу: г. Калининград, Московский пр-кт, 39 (Центральная городская библиотека им. А.П. Чехова)

Период и место проведения экспозиции:

с 11.11.2022 по 21.11.2022
в помещении МКУ “ЦДОД” (пл. Победы, 1),

в Центральной городской библиотеке им. А.П. Чехова  (Московский пр-кт, 39)


Консультации:

15.11.2022

с 10.00 до 11.00,
с 16.00 до 17.00
в помещении МКУ “ЦДОД” (пл. Победы, 1)

Постановление

Оповещение

Чертеж межевания территории

Чертеж организации движения транспорта со схемой организации УДС

Пояснительная записка


Заключение
 

Проект внесения изменений в проект межевания территории в составе документации по планировке территории, утвержденной постановлением администрации городского округа «Город Калининград» от 22.10.2014 № 1659 «Об утверждении проекта планировки с проектом межевания в его составе территории в границах ул. Суворова – ул. Железнодорожная – ул. Портовая – ул. Ген. Буткова – проспект    Московский – ул. Горная – железная дорога в Ленинградском и Московском районах».

Срок проведения публичных слушаний

с 03.11.2022 по 01.12.2022

Публичные слушания назначены на


16.11.2022 в 17:00
по адресу: г. Калининград, Московский пр-кт, 39 (Центральная городская библиотека им. А.П. Чехова)

Период и место проведения экспозиции:

с 11.11.2022 по 21.11.2022
в помещении МКУ “ЦДОД” (пл. Победы, 1),

в Центральной городской библиотеке им. А.П. Чехова  (Московский пр-кт, 39)


Консультации:

14.11.2022

с 10.00 до 11.00,
с 16.00 до 17.00
в помещении МКУ “ЦДОД” (пл. Победы, 1)

Постановление

Оповещение

Проект межевания (основная часть)

Чертеж красных линий

Пояснительная записка

 
Заключение
 

Проект внесения изменений в проект межевания территории, утвержденный постановлением главы города Калининграда – мэра города от 09.11.2006 № 2597 «Об утверждении проекта межевания квартала в границах красных линий   ул. Красных Зорь – Сурикова – Букетная – Закатная в Ленинградском районе»

Срок проведения публичных слушаний

с 06.10.2022 по 03.11.2022

Публичные слушания назначены на

19.10.2022 в 17:00
по адресу: г. Калининград, Московский пр-кт, 39 (Центральная городская библиотека им. А.П. Чехова)

Период и место проведения экспозиции:

с 14.10.2022 по 24.10.2022
в помещении МКУ “ЦДОД” (пл. Победы, 1),

в Центральной городской библиотеке им. А.П. Чехова  (Московский пр-кт, 39)


Консультации:

17.10.2022

с 10.00 до 11.00,
с 16.00 до 17.00
в помещении МКУ “ЦДОД” (пл. Победы, 1)

Постановление

Оповещение

Чертеж межевания

Текстовая часть


Заключение
 

Проект внесения изменений в проект межевания территории, утвержденный постановлением администрации городского округа «Город Калининград» от 23.12.2011 № 2307 «Об утверждении проекта межевания квартала в границах красных линий ул. Парковая аллея – ул. Ладожской – ул. Загородной – ул. Музыкальной в Ленинградском районе г. Калининграда»

Срок проведения публичных слушаний

с 06.10.2022 по 03.11.2022

Публичные слушания назначены на

20.10.2022 в 17:00
по адресу: г. Калининград, Московский пр-кт, 39 (Центральная городская библиотека им. А.П. Чехова)

Период и место проведения экспозиции:

с 14.10.2022 по 24.10.2022
в помещении МКУ “ЦДОД” (пл. Победы, 1),

в Центральной городской библиотеке им. А.П. Чехова  (Московский пр-кт, 39)


Консультации:

18.10.2022

с 10.00 до 11.00,
с 16.00 до 17.00
в помещении МКУ “ЦДОД” (пл. Победы, 1)

Постановление

Оповещение

Чертеж межевания территории (основной чертеж)

Пояснительная записка


Заключение
 

Проект внесения изменений в проект межевания территории, утвержденный постановлением администрации городского округа «Город Калининград» от 20.06.2017 № 928 «Об утверждении проекта межевания территории в границах ул. Ю. Гагарина – береговая полоса руч. Литовского в г. Калининграде»

Срок проведения публичных слушаний

с 29.09.2022 по 27.10.2022

Публичные слушания назначены на

13.10.2022 в 17:00
по адресу: г. Калининград, Московский пр-кт, 39 (Центральная городская библиотека им. А.П. Чехова)

Период и место проведения экспозиции:

с 07.10.2022 по 17.10.2022
в помещении МКУ “ЦДОД” (пл. Победы, 1),

в Центральной городской библиотеке им. А.П. Чехова  (Московский пр-кт, 39)


Консультации:

11.10.2022

с 10.00 до 11.00,
с 16.00 до 17.00
в помещении МКУ “ЦДОД” (пл. Победы, 1)

Постановление

Оповещение

Основной чертеж

Материалы по обоснованию проекта межевания

Пояснительная записка


Заключение
 

Проект межевания территории в границах улиц Чернышевского – Чкалова в городе Калининграде

Срок проведения публичных слушаний

с 15.09.2022 по 13.10.2022

Публичные слушания назначены на

29.09.2022 в 17:00
по адресу: г. Калининград, Московский пр-кт, 39 (Центральная городская библиотека им. А.П. Чехова)

Период и место проведения экспозиции:

с 23.09.2022 по 03.10.2022
в помещении МКУ “ЦДОД” (пл. Победы, 1),

в Центральной городской библиотеке им. А.П. Чехова  (Московский пр-кт, 39)


Консультации:

27.09.2022

с 10.00 до 11.00,
с 16.00 до 17.00
в помещении МКУ “ЦДОД” (пл. Победы, 1)

Постановление

Оповещение

Основной чертеж межевания

Чертеж красных линий

Текстовая часть


Заключение
 Проект межевания территории в границах улицы Куйбышева – внутриквартального проезда – южной границы земельного участка с кадастровым номером 39:15:131931:77 по улице Еловая аллея – переулка Куйбышева Ленинградского района города Калининграда

Срок проведения публичных слушаний

с 01.09.2022 по 29.09.2022

Публичные слушания назначены на

15.09.2022 в 17:00
по адресу: г. Калининград, Московский пр-кт, 39 (Центральная городская библиотека им. А.П. Чехова)

Период и место проведения экспозиции:

с 09.09.2022 по 19.09.2022
в помещении МКУ “ЦДОД” (пл. Победы, 1),

в Центральной городской библиотеке им. А.П. Чехова  (Московский пр-кт, 39)


Консультации:

13.09.2022

с 10.00 до 11.00,
с 16.00 до 17.00
в помещении МКУ “ЦДОД” (пл. Победы, 1)

Постановление

Оповещение

Чертеж межевания территории (основной чертеж)

Чертеж красных линий

Пояснительная записка


 
Заключение
 Проект межевания территории в границах улиц Генерала Галицкого – Диккенса – Космической - Бесселя в городе Калининграде

Срок проведения публичных слушаний

с 01.09.2022 по 29.09.2022

Публичные слушания назначены на

16.09.2022 в 17:00
по адресу: г. Калининград, Московский пр-кт, 39 (Центральная городская библиотека им. А.П. Чехова)

Период и место проведения экспозиции:

с 09.09.2022 по 19.09.2022
в помещении МКУ “ЦДОД” (пл. Победы, 1),

в Центральной городской библиотеке им. А.П. Чехова  (Московский пр-кт, 39)


Консультации:

14.09.2022

с 10.00 до 11.00,
с 16.00 до 17.00
в помещении МКУ “ЦДОД” (пл. Победы, 1)

Постановление

Оповещение

Чертеж красных линий

Чертеж межевания территории (основной чертеж)

Пояснительная записка


 
Заключение
  Проект внесения изменений в проект межевания территории в составе документации по планировке территории, утвержденной постановлением администрации городского округа «Город Калининград» от 04.08.2015 №1256 «Об утверждении проекта планировки территории с проектом межевания в его составе в границах проспект Победы – ул. Горная – ул. Велосипедная дорога – ул. Радищева в Центральном районе»  Срок проведения публичных слушаний с 25.08.2022 по 22.09.2022

Публичные слушания назначены на
09.09.2022 в 17:00
по адресу: г. Калининград, Московский пр-кт, 39 (Центральная городская библиотека им. А.П. Чехова)

Период и место проведения экспозиции: с 02.09.2022 по 13.09.2022 в помещении МКУ “ЦДОД” (пл. Победы, 1), в Центральной городской библиотеке им. А.П. Чехова  (Московский пр-кт, 39)

Постановление

Оповещение

Чертеж красных линий

Чертеж межевания территории (основной чертеж)

Схема организации движения транспорта

Пояснительная записка

Заключение
  Проект внесения изменений в проект межевания территории, утвержденный постановлением администрации городского округа «Город Калининград» от 27.08.2013 №1269 «Об утверждении проекта межевания территории в границах красных линий ул. Воздушная – ул. Художественная – ул. Бассейная – ул. Белинского в Центральном районе Срок проведения публичных слушаний с 25.08.2022 по 22.09.2022

Публичные слушания назначены на 
08.09.2022 в 17:00
по адресу: г. Калининград, Московский пр-кт, 39 (Центральная городская библиотека им. А.П. Чехова)

Период и место проведения экспозиции: с 02.09.2022 по 12.09.2022 в помещении МКУ “ЦДОД” (пл. Победы, 1), в Центральной городской библиотеке им. А.П. Чехова  (Московский пр-кт, 39)

Консультации: 06.09.2022 с 10.00 до 11.00, с 16.00 до 17.00 в помещении МКУ “ЦДОД” (пл. Победы, 1)

Постановление

Оповещение

Чертеж межевания территории (основной чертеж)

Пояснительная записка
Заключение
  Проект межевания территории в границах красных линий улиц И. Франко – Б. Окружной 3-й – Малой лесной в городе Калининграде Срок проведения публичных слушаний

с 14.07.2022 по 11.08.2022

Публичные слушания назначены на

28.07.2022 в 17:00
по адресу: г. Калининград, Московский пр-кт, 39 (Центральная городская библиотека им. А.П. Чехова)

Период и место проведения экспозиции:

с 22.07.2022 по 01.08.2022
в помещении МКУ “ЦДОД” (пл. Победы, 1),

в Центральной городской библиотеке им. А.П. Чехова  (Московский пр-кт, 39)


Консультации:

26.07.2022

с 10.00 до 11.00,
с 16.00 до 17.00
в помещении МКУ “ЦДОД” (пл. Победы, 1)

Постановление

Оповещение

Чертеж межевания территории (основная часть)


       Заключение
 

Проект внесения изменений в проект межевания территории в составе документации по планировке территории, утвержденный постановлением администрации городского округа «Город Калининград» от 15.09.2016 № 1371, применительно к территории в границах ул. Орудийной – ул. Ю. Гагарина – пер. Полевого в г. Калининграде

Срок проведения публичных слушаний

с 12.05.2022 по 09.06.2022

Публичные слушания назначены на

26.05.2022 в 17:00
по адресу: г. Калининград, Московский пр-кт, 39 (Центральная городская библиотека им. А.П. Чехова)

Период и место проведения экспозиции:

с 20.05.2022 по 02.06.2022
в помещении МКУ “ЦДОД” (пл. Победы, 1),

в Центральной городской библиотеке им. А.П. Чехова  (Московский пр-кт, 39)


Консультации:

24.05.2022

с 10.00 до 11.00,
с 16.00 до 17.00
в помещении МКУ “ЦДОД” (пл. Победы, 1)

Постановление

Оповещение

Чертеж межевания

Материалы по обоснованию проекта межевания

Пояснительная записка

Заключение

  Проект внесения изменений в проект межевания территории в составе документации по планировке территории «Проект планировки территории с проектом межевания в его составе территории в границах ул. Транспортная – туп. Транспортный в Московском районе», утвержденный постановлением администрации городского округа «Город Калининград» от 08.08.2013 № 1172 Срок проведения публичных слушаний

с 17.03.2022 по 05.05.2022

Публичные слушания назначены на

13.04.2022 в 17:00
по адресу: г. Калининград, Московский пр-кт, 39 (Центральная городская библиотека им. А.П. Чехова)

Период и место проведения экспозиции:

с 25.03.2022 по 19.04.2022
с 9.00 до 18.00
в помещении МКУ “ЦДОД” (пл. Победы, 1),

с 25.03.2022 по 19.04.2022
в Центральной городской библиотеке им. А.П. Чехова  (Московский пр-кт, 39)
вт. - пт. - с 11.00 до 20.00,
сб. - вс - с 10.00 до 18.00.

Консультации:

11.04.2022

с 10.00 до 11.00,
с 16.00 до 17.00
в помещении МКУ “ЦДОД” (пл. Победы, 1)
Постановление

Оповещение

Чертеж межевания территории (основной чертеж)

Чертеж красных линий

Материалы по обоснованию проекта межевания территории

Пояснительная записка


Заключение
  Проект внесения изменений в проект межевания территории, утвержденный постановлением администрации городского округа «Город Калининград» от 28.10.2016 № 1598 «Об утверждении проекта межевания территории в границах красных линий ул. Тихорецкая – ул. Киевская в г. Калининграде» Срок проведения публичных слушаний

с 10.03.2022 по 28.04.2022

Публичные слушания назначены на

31.03.2022 в 17:00
по адресу: г. Калининград, Московский пр-кт, 39 (Центральная городская библиотека им. А.П. Чехова)

Период и место проведения экспозиции:

с 18.03.2022 по 12.04.2022 с 9.00 до 18.00 в помещении МКУ “ЦДОД” (пл. Победы, 1),

с 18.03.2022 по 12.04.2022
в Центральной городской библиотеке им. А.П. Чехова  (Московский пр-кт, 39)
вт. - пт. - с 11.00 до 20.00,
сб. - вс - с 10.00 до 18.00,

Консультации:

29.03.2022

с 10.00 до 11.00,
с 16.00 до 17.00
в помещении МКУ “ЦДОД” (пл. Победы, 1)


Постановление

Оповещение

Чертеж межевания территории (основная часть)

Чертеж красных линий

Материалы по обоснованию проекта межевания

Пояснительная записка

Заключение
  Проект межевания территории в границах переулка Арсенального – улицы Краснокаменной в городе Калининграде.

Срок проведения публичных слушаний

с 10.02.2022 по 31.03.2022

Публичные слушания назначены на

10.03.2022 в 17:00
по адресу: г. Калининград, Московский пр-кт, 39 (Центральная городская библиотека им. А.П. Чехова)

Период и место проведения экспозиции:

с 18.02.2022 по 15.03.2022 с 9.00 до 18.00 в помещении МКУ “ЦДОД” (пл. Победы, 1),

с 18.02.2022 по 15.03.2022
в Центральной городской библиотеке им. А.П. Чехова  (Московский пр-кт, 39)
вт. - пт. - с 11.00 до 20.00,
сб. - вс - с 10.00 до 18.00,
последний день месяца – санитарный день,
пн.- выходной

Консультация

03.03.2022

c 10.00 до 11.00,
с 16-00 до 17-00
в помещении МКУ “ЦДОД” (пл. Победы, 1),

Оповещение

Постановление

Чертеж межевания (основной чертеж)

Чертеж красных линий

Материалы по обоснованию проекта межевания территории

Пояснительная записка

Заключение
  Проект внесения изменений в проект межевания территории в границах красных линий ул. Минина и Пожарского - просп. Мира - ул. Е. Ковальчук - просп. Победы в Центральном районе г. Калининграда, утвержденный постановлением администрации городского округа «Город Калининград» от 31.10.2012 № 2062, применительно к территории в границах ул. Минина и Пожарского – пр-кта Победы Срок проведения публичных слушаний

с 10.02.2022 по 31.03.2022

Публичные слушания назначены
на 10.03.2022 в 17:00
по адресу: г. Калининград, Московский пр-кт, 39
(Центральная городская библиотека им. А.П. Чехова)

Период и место проведения экспозиции:

с 18.02.2022 по 15.03.2022
с 9.00 до 18.00
в помещении МКУ “ЦДОД” (пл. Победы, 1),

с 18.02.2022 по 15.03.2022
в Центральной городской библиотеке им. А.П. Чехова (Московский пр-кт, 39)
вт. - пт. - с 11.00 до 20.00,
сб. - вс – с 10.00 до 18.00,
последний день месяца – санитарный день,
пн.- выходной

Консультация

03.03.2022
c 10.00 до 11.00,
с 16-00 до 17-00
в помещении МКУ “ЦДОД” (пл. Победы, 1),

Оповещение

Постановление

Чертеж межевания (основной чертеж)

Чертеж красных линий

Материалы по обоснованию проекта межевания территории

Пояснительная записка

Заключение
  б/н. Проект внесения изменений в проект межевания территории в составе документации по планировке территории «Проект планировки территории с проектом межевания в его составе в границах ул. Парковая аллея – ул. Онежская – ул. Платова – ул. Малая Лесная – ул. Б. Окружная 3-я – железная дорога – ул. Островского в г. Калининграде», утвержденной постановлением администрации городского округа «Город Калининград» от 13.01.2020 № 14 Срок проведения публичных слушаний с 23.12.2021 по 10.02.2022

Публичные слушания назначены  на 20.01.2022 в 17:00 по адресу:
г. Калининград, ул. Фрунзе, 71, каб. 25А

Период и место проведения экспозиции:

с 30.12.2021 по 25.01.2022 в помещении по ул. Фрунзе, 71, каб. 25А

Консультация 18.01.2022

с 17-00 до 18-00
Оповещение

Постановление

Материалы по обоснованию проекта межевания территории

Чертеж красных линий

Чертеж межевания территории (основной чертеж)

Пояснительная записка
Заключение
  Проект межевания территории в районе ул. А. Невского – ул. Краснокаменной в городе Калининграде

Срок проведения публичных слушаний

с 23.12.2021 по 10.02.2022

Публичные слушания назначены  на 19.01.2022 в 17:00 по адресу:
г. Калининград, ул. Фрунзе, 71, каб. 25 А

Период и место проведения экспозиции:

с 30.12.2021 по 25.01.2022 в помещении по ул. Фрунзе, 71, каб. 25 А

Консультация 17.01.2022

с 17-00 до 18-00
Оповещение
Постановление
Материалы по обоснованию проекта межевания территории
Чертеж межевания территории
Чертеж красных линий
Пояснительная записка
Заключение
  Проект о внесении изменений в проект межевания территории в границах красных линий улицы А. Невского – проектная улица в городе Калининграде, утвержденный постановлением администрации городского округа «Город Калининград» от 17.08.2017 № 520

Срок проведения публичных слушаний

с 11.11.2021 по 30.12.2021

Публичные слушания назначены  на 01.12. 2021 в 17:00 по адресу:
г. Калининград, ул. Фрунзе, 71, каб. 25 А

Период и место проведения экспозиции:

с 19.11.2021 по 14.12.2021 в помещении по ул. Фрунзе, 71, каб. 25 А

Консультация 24.11.2021

с 17-00 до 18-00

Оповещение Постановление
Чертеж красных линий
Чертеж межевания территории (основная часть)
Пояснительная записка
  Заключение
  Проект межевания территории в границах улицы Ольштынская – переулок Калинина – проспектов Калинина – Ленинский в городе Калининграде

Срок проведения публичных слушаний

с 28.10.2021 по 16.12.2021

Публичные слушания назначены  на 25.11. 2021 в 17:00 по адресу:  г. Калининград, ул. Октябрьская, 79, каб. 211

Период и место проведения экспозиции:

с 05.11.2021 по 30.11.2021 в помещении по ул. Октябрьская, 79, каб. 211

Консультации 16.11.2021 и 18.11.2021

с 17-00 до 18-00
Оповещение Постановление Основной чертеж Опорный план Пояснительная записка Заключение
  Проект о внесении изменений в проект межевания территории в составе документации по планировке территории «Проект планировки с проектом межевания в его составе территории в границах пер. Алданский 2-й – ул. Аральская – ул. Макаренко – ул. Карташева –  ул. Алтайская 2-я – ул. Славянская – ул. Тихоокеанская – Балтийское шоссе в Центральном районе (пос. им. А. Космодемьянского)», утвержденной постановлением администрации городского округа «Город Калининград» от 02.10.2013 № 1510, применительно к территории в границах улиц Лазурной – Благодатной в городе Калининграде Срок проведения публичных слушаний

с 01.07.2021 по 19.08.2021

Публичные слушания назначены  на 29.07. 2021 в 17:00 по адресу:  г. Калининград, ул. К. Маркса, 41, каб. 212

Период и место проведения экспозиции:

с 09.07.2021 по 03.08.2021 в помещении по ул. К. Маркса, 41, каб. 212

Консультации 19.07.2021, 22.07.2021

с 17-00 до 18-00
Оповещение
Постановление
Основной чертеж
Опорный план
Пояснительная записка
Заключение
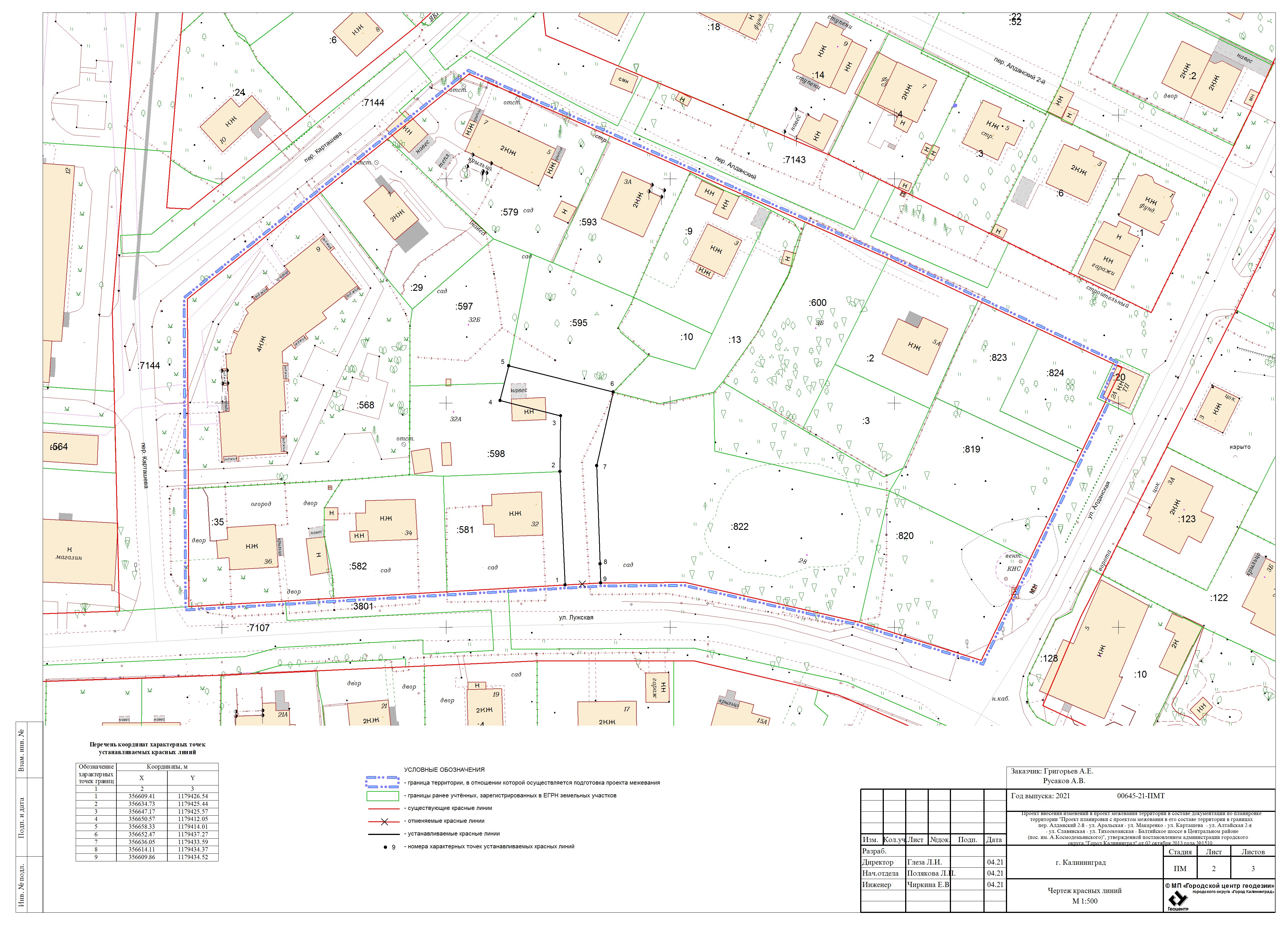
   Проект о внесении изменений в проект межевания территории в составе документации по планировке территории «Проект планировки с проектом межевания в его составе территории в границах пер. Алданский 2-й – ул. Аральская – ул. Макаренко – ул. Карташева –  ул. Алтайская 2-я – ул. Славянская – ул. Тихоокеанская – Балтийское шоссе в Центральном районе (пос. им. А. Космодемьянского)», утвержденной постановлением администрации городского округа «Город Калининград» от 02.10.2013 № 1510, применительно к территории в границах ул. Алданская – ул. Лужская – пер. Карташева – пер. Алданский в городе Калининграде     Срок проведения публичных слушаний

с 05.08.2021 по 23.09.2021

Публичные слушания назначены  на 26.08. 2021 в 17:00 по адресу:  г. Калининград, ул. Чайковского, 52, каб. 206

Период и место проведения экспозиции:

с 13.08.2021 по 07.09.2021 в помещении по ул. К. Маркса, 41, каб. 212

Консультации 17.08.2021, 19.08.2021

с 17-00 до 18-00
Оповещение
Постановление
Основной чертеж
Чертеж красных линий
Опорный план
Пояснительная записка
 Заключение
  Проект межевания территории в границах улицы Д. Донского в городе Калининграде Срок проведения публичных слушаний

с 05.08.2021 по 23.09.2021

Публичные слушания назначены  на 25.08. 2021 в 17:00 по адресу:  г. Калининград, ул. Чайковского, 52, каб. 206

Период и место проведения экспозиции:

с 13.08.2021 по 07.09.2021 в помещении по ул. К. Маркса, 41, каб. 212

Консультации 16.08.2021, 18.08.2021

с 17-00 до 18-00 
Оповещение
Постановление
Основной чертеж
Чертеж красных линий
Опорный план
Пояснительная записка
Заключение

Проект о внесении изменений в проект межевания территории в границах железной дороги – границы городского округа «Город Калининград», утвержденный приказом Агентства по архитектуре, градостроению и перспективному развитию Калининградской области от 08.04.2020 № 144.

Срок проведения публичных слушаний

с 27.05.2021 по 15.07.2021

Публичные слушания назначены  на 16.06. 2021 в 17:00 по адресу:  г. Калининград, ул. Фрунзе, 71, каб. 25А

Период и место проведения экспозиции:

с 04.06.2021 по 29.06.2021 в помещении по

ул. Фрунзе, 71.

Консультации 10.06.2021, 14.06.2021

с 17-00 до 18-00
Оповещение
Постановление
Основной чертёж
Опорный план
Пояснительная записка

Заключение

Проект о внесении изменений в проект межевания территории в границах улиц Старорусская – Третьяковская – Волховская в городе Калининграде, утвержденный постановлением администрации городского округа «Город Калининград» от 31.10.2012 № 2059.

Срок проведения публичных слушаний

с 27.05.2021 по 15.07.2021

Публичные слушания назначены  на 17.06. 2021 в 17:00 по адресу:  г. Калининград, ул. К.Маркса, 41, каб. 212

Период и место проведения экспозиции:

с 04.06.2021 по 29.06.2021 в помещении по

ул. К.Маркса, 41, каб. 212.

Консультации 08.06.2021, 15.06.2021

с 17-00 до 18-00
Оповещение
Постановление
Основной чертёж
Опорный план
Чертёж красных линий
Пояснительная записка
Заключение

Проект межевания территории в границах проспекта Мира – улиц Зоологической – Чайковского – Ш. Руставели – Брамса – Носова в городе Калининграде

Срок проведения публичных слушаний

с 15.04.2021 по 20.05.2021

Публичные слушания назначены  на  29.04. 2021  в 17:00 по адресу:  г. Калининград, ул. Чайковского, 50-52, 2-й этаж,  каб. 206

Период и место проведения экспозиции:

с 23.04.2021 по 04.05.2021 в помещении по ул. К. Маркса, 41, каб. 212.

Консультация 26.04.2021

с 17-00 до 18-00
Оповещение
Постановление
Основной чертеж
Опорный план
Чертеж красных линий
Пояснительная записка
Приложение к пояснительной записке

Заключение
  Проект о внесении изменений в проект межевания территории в составе документации по планировке территории «Проект планировки территории жилого района с проектом межевания в его составе в границах  ул. А. Невского – ул. Куйбышева – ул. Ю. Гагарина – ул. Литовский вал в Ленинградском районе»

Срок проведения публичных слушаний

с 08.04.2021 по 13.05.2021

Публичные слушания назначены  на  22.04. 2021  в 17:00 по адресу:  г. Калининград, ул. Фрунзе, 71, каб. 25А

Период и место проведения экспозиции:

с 16.04.2021 по 27.04.2021 в помещении ул. Фрунзе, 71

Консультация 19.04.2021

с 17-00 до 18-00
Оповещение
Постановление
Основной чертёж
Опорный план
Чертеж красных линий
Пояснительная записка


Заключение
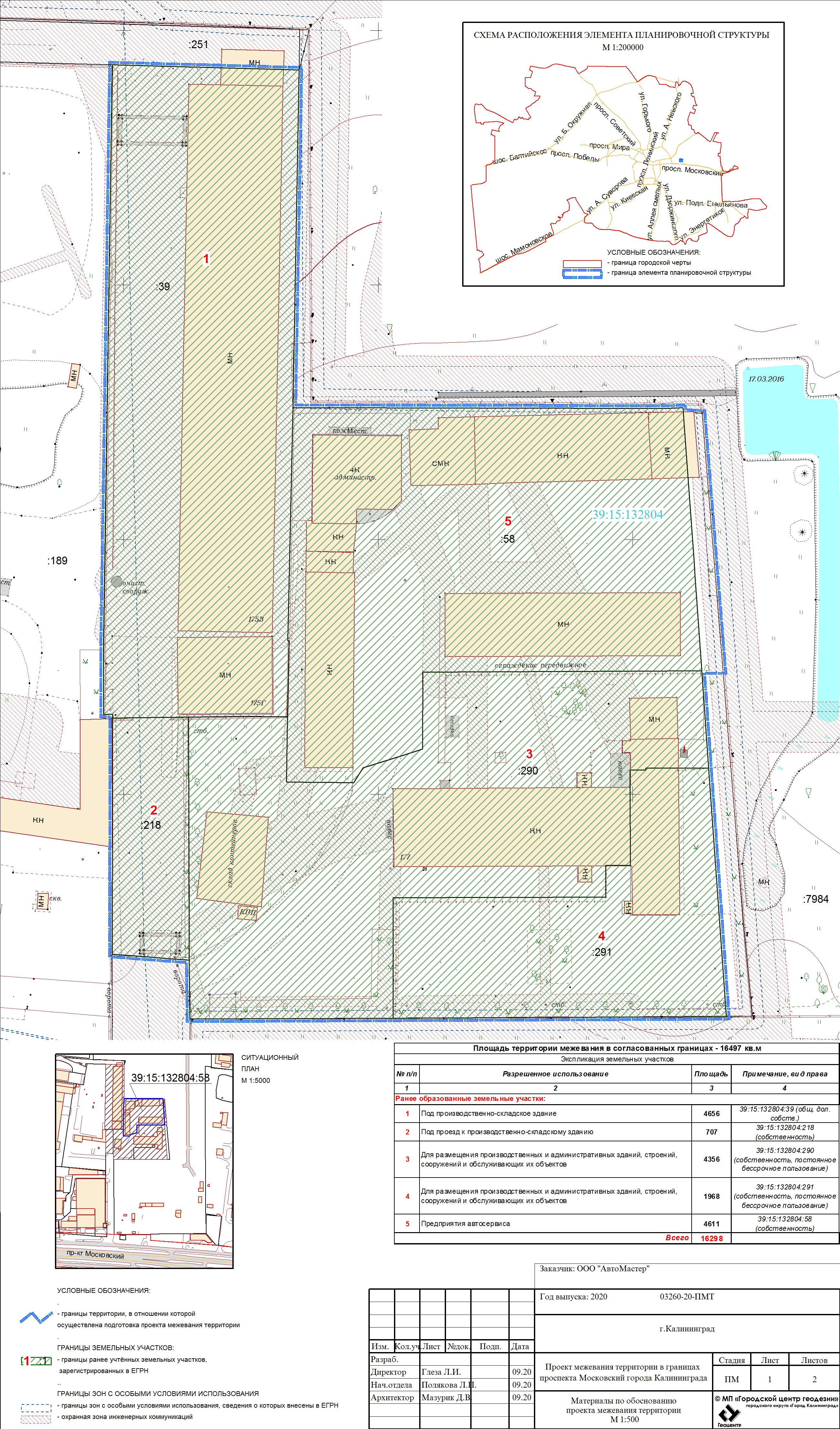
  Проект межевания территории в границах проспекта Московского города Калининграда

Срок проведения публичных слушаний

с 04.03.2021 по 08.04.2021

Публичные слушания назначены  на 18 марта 2021 г. в 17:00 по адресу:  г. Калининград, ул. Фрунзе, 71, каб. 25А

Период и место проведения экспозиции:

с 12.03.2021 по 23.03.2021 в помещении ул. Фрунзе, 71

Консультация 16.03.2021

с 17-00 до 18-00
Оповещение
Постановление
Основной чертёж
Опорный план
Пояснительная записка

Заключение
  Проект о внесении изменений в проект межевания территории  в границах красных линий ул. Судостроительной – ул. Батальной в Московском районе, утвержденный постановлением администрации городского округа «Город Калининград» от 21.05.2014 № 723

Публичные слушания назначены  на 25 февраля 2021 г. в 17:00 по адресу:  г. Калининград,                 ул. Октябрьская, 79, 2-й этаж,  каб. 211.

Период и место проведения экспозиции:

с 19.02.2021 по 02.03.2021 в помещении ул. Октябрьская, 79, 2-й этаж,  каб. 211

Консультация 24.02.2021

с 16-30 до 17-30
Оповещение
Постановление
Основной чертеж
Чертеж красных линий
Опорный план
Пояснительная записка

Заключение
  Проект о внесении изменений в проект межевания территории  в границах улиц Цирковой – Тихоненко – Жуковского – Сержанта Мишина, утвержденный постановлением мэра от 20.07.2004 № 1926

Публичные слушания назначены  на 18 февраля 2021 г. в 17:30 по адресу:  г. Калининград, ул. К. Маркса, 41, каб. 212.

Период и место проведения экспозиции:

с 12.02.2021 по 23.02.2021 в помещении ул. К. Маркса, 41, каб. 212.

Консультация 17.02.2021

с 16-30 до 17-30

Оповещение Постановление Основной чертеж Опорный план Пояснительная записка

Заключение
  Проект о внесении изменений в проект межевания территории  в составе документации по планировке территории «Проект планировки территории  с проектом межевания в его составе территории в границах ул. Кировоградская – ул. Белорусская – ул. Полецкого – проспект Советский в Центральном районе

Публичные слушания назначены  на 18 февраля 2021 г. в 17:00 по адресу:  г. Калининград, ул. К. Маркса, 41, каб. 212.

Период и место проведения экспозиции:

с 12.02.2021 по 23.02.2021 в помещении ул. К. Маркса, 41, каб. 212.

Консультация 15.02.2021

с 16-30 до 17-30

Оповещение Постановление Основной чертеж Чертеж красных линий Опорный план Пояснительная записка


Заключение
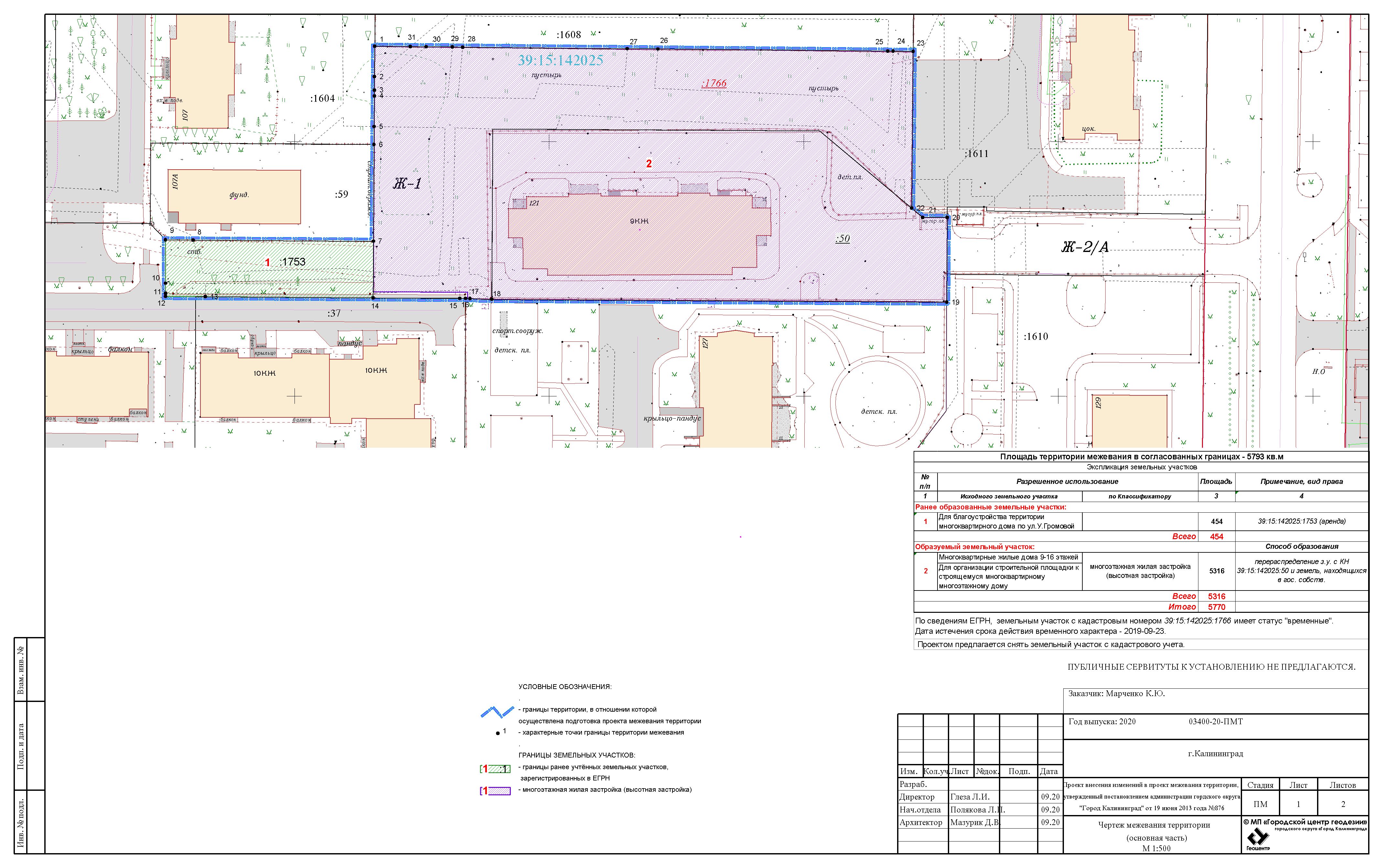
  Проект о внесении изменений в проект межевания территории в границах красных линий ул. У. Громовой, дома с 99 по 129, в Московском районе, утвержденный постановлением администрации городского округа «Город Калининград» от 19.06.2013 № 876 Публичные слушания назначены  на 04 февраля 2021 г. в 17:00 по адресу:  г. Калининград, ул. Октябрьская, 79, 2-й этаж, каб. 211.

Период и место проведения экспозиции: с 28.01.2021 по 04.02.2021 в помещении по ул. Октябрьская, 79, 1-й этаж, консультация 02.02.2021 с 16-30 до 17-30
Оповещение
Постановление
Основной чертеж
Опорный план
Пояснительная записка
Заключение
  Проект межевания территории в границах улицы Аксакова в городе Калининграде Публичные слушания назначены  на 28 января 2021 г. в 17:00 по адресу:  г. Калининград, ул. Фрунзе, 71, каб. 25А

Период и место проведения экспозиции: с 21.01.2021 по 28.01.2021 в помещении по ул. Фрунзе, 71, консультация 25.01.2021 с 16-30 до 17-30
Оповещение
Постановление
Основной чертеж
Чертеж красных линий
Опорный план
Пояснительная записка
Заключение
 

Проект межевания территории в границах улицы Яблочная – река Старая Преголя – река Лесная в города Калининграде 

Публичные слушания назначены  на 15 октября 2020 г. в 17:00 по адресу: г. Калининград, ул. Октябрьская, 79, 2-й этаж, каб. 211

Оповещение
Постановление
Основном чертеж
Чертеж красных линий
Опорный план
Пояснительная записка
Заключение
   Проект межевания территории в  границах  улица Театральная – улица Ушинского – проспект Мира – проспект Гвардейский в городе Калининграде Публичные слушания назначены  на 13 августа 2020 г. в 17:00 по адресу: г. Калининград, ул. Чайковского, 50-52, 2-й этаж, каб. 206 Оповещение
Постановление
Основной чертеж
Чертеж красных линий
Опорный план
Пояснительная записка

Заключение
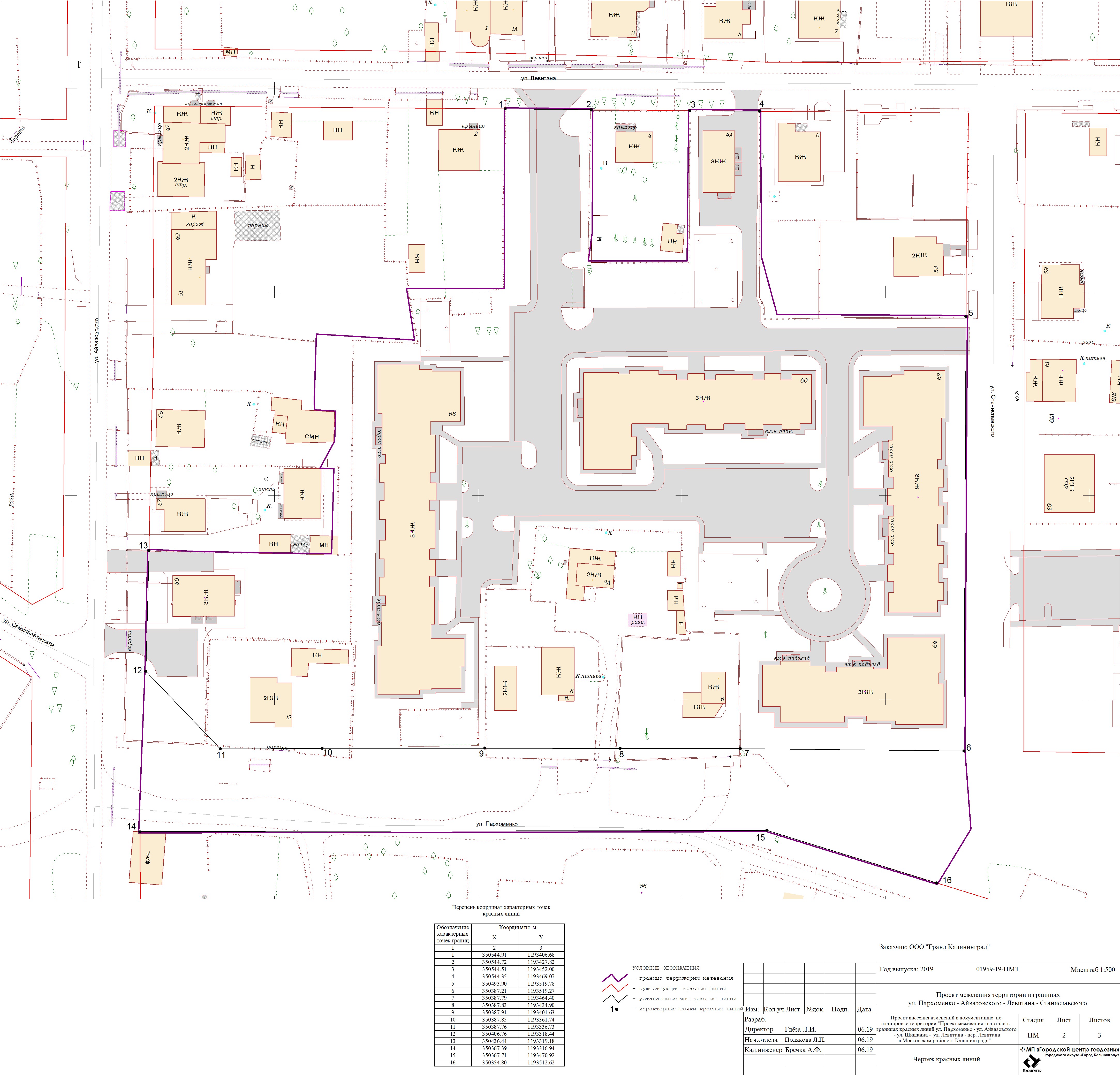
   Проект внесения изменений в документацию по планировке территории «Проект межевания квартала в границах красных линий  ул. Пархоменко – ул. Айвазовского –  ул. Шишкина – ул. Левитана – пер. Левитана в Московском районе г. Калининграда»  Публичные слушания назначены  на 25 июня 2020 г. в 17.00 по адресу: г. Калининград,    ул. Октябрьская, 79, 2-й этаж, каб. 211 Оповещение
Постановление
Основной чертеж
Опорный план
Чертеж красных линий
Пояснительная записка
Заключение

Проект межевания территории в границах улиц Чекистов- Мл. лейт. Родителева в городе Калининграде
Публичные слушания назначены на 18 марта 2020г. в 17:00 по адресу: г. Калининград, ул. Чайковского, 50-52, 2-й этаж, каб. 206
Оповещение
Постановление
Основной чертеж
Чертеж красных линий
Опорный план
Пояснительная записка
Заключение
  Проект внесения изменений в проект межевания квартала в границах красных линий улиц Горбунова – Мира – Безымянная – Жиленкова – Беланова в Центральном районе
Публичные слушания назначены на 27 февраля 2020 г. в 17:30 по адресу: г. Калининград, ул. Чайковского, 50-52, 2-й этаж, каб. 206.
Оповещение
Постановление
Основной чертеж
Опорный план
Пояснительная записка
Заключение
  Проект межевания территории в границах улиц Чернышевского – Каштановая аллея – Фестивальная аллея в городе Калининграде
Публичные слушания назначены на 27 февраля 2020 г. в 17:00 по адресу: г. Калининград, ул. Чайковского, 50-52, 2-й этаж, каб. 206.
Оповещение
Постановление
Основной чертеж
Опорный план
Пояснительная записка

Заключение
  Проект межевания территории в границах улиц Коммунистическая – Павлика Морозова – Летняя – перспективный проезд в городе Калининграде
Публичные слушания назначены на 26 февраля 2020 г. в 17:30 по адресу: г. Калининград, ул. Октябрьская, 79, 2-й этаж, каб. 211
Оповещение
Постановление
Основной чертеж
Опорный план
Пояснительная записка
Заключение
  Проект межевания территории в границах улицы Айвазовского в городе Калининграде
Публичные слушания назначены на 26 февраля 2020 г. в 17:00 по адресу: г. Калининград, ул. Октябрьская, 79, 2-й этаж, каб. 211
Оповещение
Постановление
Основной чертеж
Опорный план
Пояснительная записка
Заключение
  Проект межевания территории в границах железной дороги – границы городского округа «Город Калининград»
Публичные слушания назначены на 20 февраля 2020 г. в 17:00 по адресу: г. Калининград, ул. Фрунзе, 71, каб. 25А.
Оповещение
Постановление
Основной чертеж
Опорный план
Пояснительная записка
Заключение
16.01.2025