В соответствии с законом Калининградской области от 30.11.2016 № 19 «О перераспределении полномочий в области градостроительной деятельности между органами государственной власти Калининградской области и органами местного самоуправления муниципальных образований Калининградской области» с 01.01.2017 уполномоченным органом государственной власти Калининградской области, осуществляющим функции по реализации государственной политики в области архитектурной и градостроительной деятельности, координации деятельности в сфере архитектуры и градостроительства, обеспечению деятельности по развитию территорий, территориальному планированию, градостроительному зонированию, планировке территорий, землеустройству, информационному обеспечению градостроительной деятельности, по оказанию государственных услуг в сфере градостроительства, территориального планирования и информационного обеспечения градостроительной деятельности, является Агентство по архитектуре, градостроению и перспективному развитию Калининградской области
| Номер на схеме. Наименование проекта | Место проведения собрания, дата и время проведения собрания | Срок и место размещения экспозиции проекта | Дата, время и место консультирования посетителей экспозиции | Материалы Заключение |
|---|---|---|---|---|
| б/н. Проект внесения изменений в документацию по планировке территории, утвержденную постановлением администрации городского округа «Город Калининград» от 02.10.2013 № 1510, «Об утверждении проекта планировки с проектом межевания в его составе территории в границах пер. Алданский 2-й – ул.Аральская – ул. Макаренко – ул. Карташева – ул. Алтайская 2-я – ул.Славянская –ул. Тихоокеанская – Балтийское шоссе в центральном районе (пос. им. А. Космодемьянского)» | Центральная городская библиотека им. А.П. Чехова (г.Калининград, пр-кт Московский, 39), 02.04.2024 17:00:00 |
с 29.03.2024 по 08.04.2024 в МКУ «ЦДОД» (г. Калининград, пл. Победы, 1); в Центральной городской библиотеке им. А.П. Чехова (г. Калининград, пр-кт Московский, 39) | 01.04.2024 с 10.00 до 11.00; с 16.00. до 17.00 МКУ «ЦДОД» (г. Калининград, пл. Победы, 1) |
Заключение
(опубликованo 18.04.2024)
|
| б/н. Проект внесения изменений в проект планировки территории с проектом межевания в его составе в границах ул. Горького – ул. М. Цветаевой – пер. М. Зощенко в Ленинградском районе, утвержденный постановлением администрации городского округа «Город Калининград» от 06.03.2014 № 374 | Центральная городская библиотека им. А.П. Чехова (г.Калининград, пр-кт Московский, 39), 08.02.2024 17:00:00 |
с 02.02.2024 по 15.02.2024 в МКУ «ЦДОД» (г. Калининград, пл. Победы, 1); в Центральной городской библиотеке им. А.П. Чехова (г. Калининград, пр-кт Московский, 39) | 06.02.2024 с 10.00 до 11.00, с 16.00 до 17.00. МКУ «ЦДОД» (г. Калининград, пл. Победы, 1) |
Заключение
(опубликованo 22.02.2024)
|
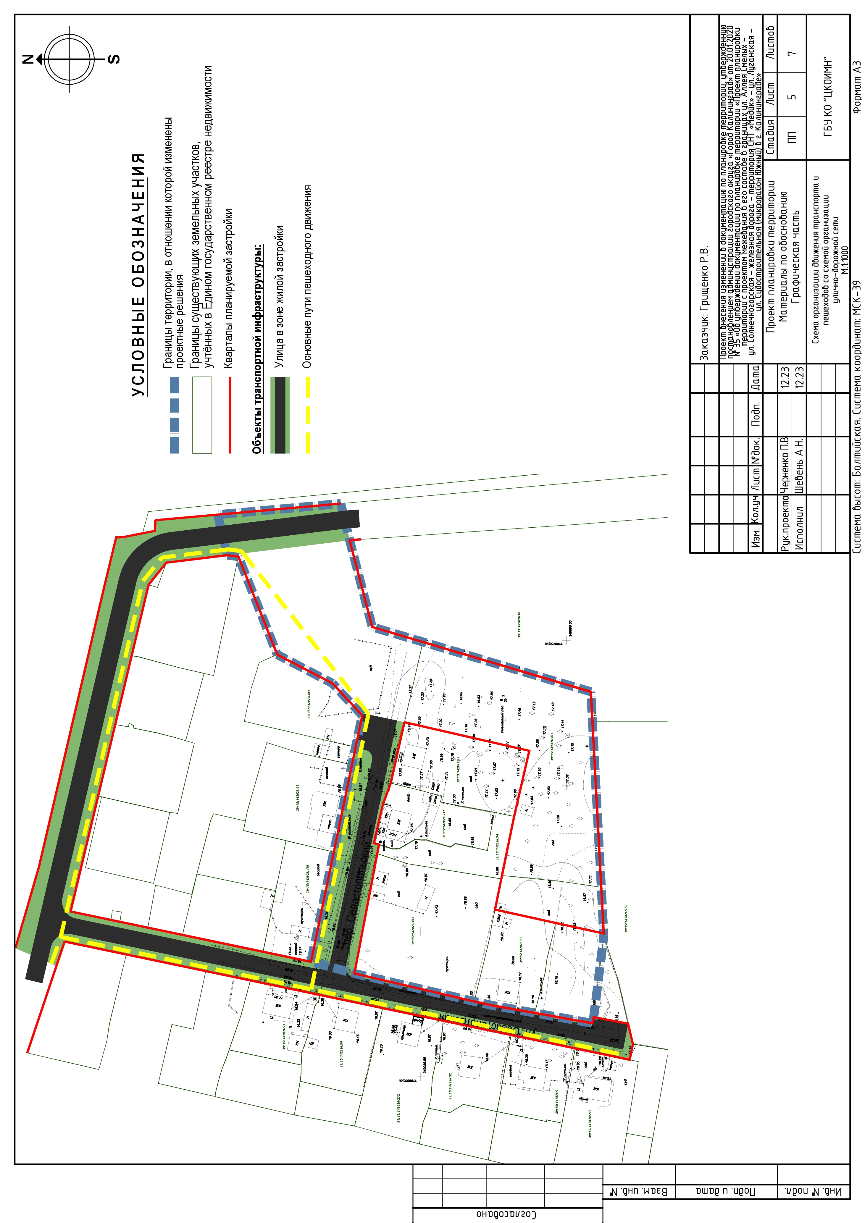
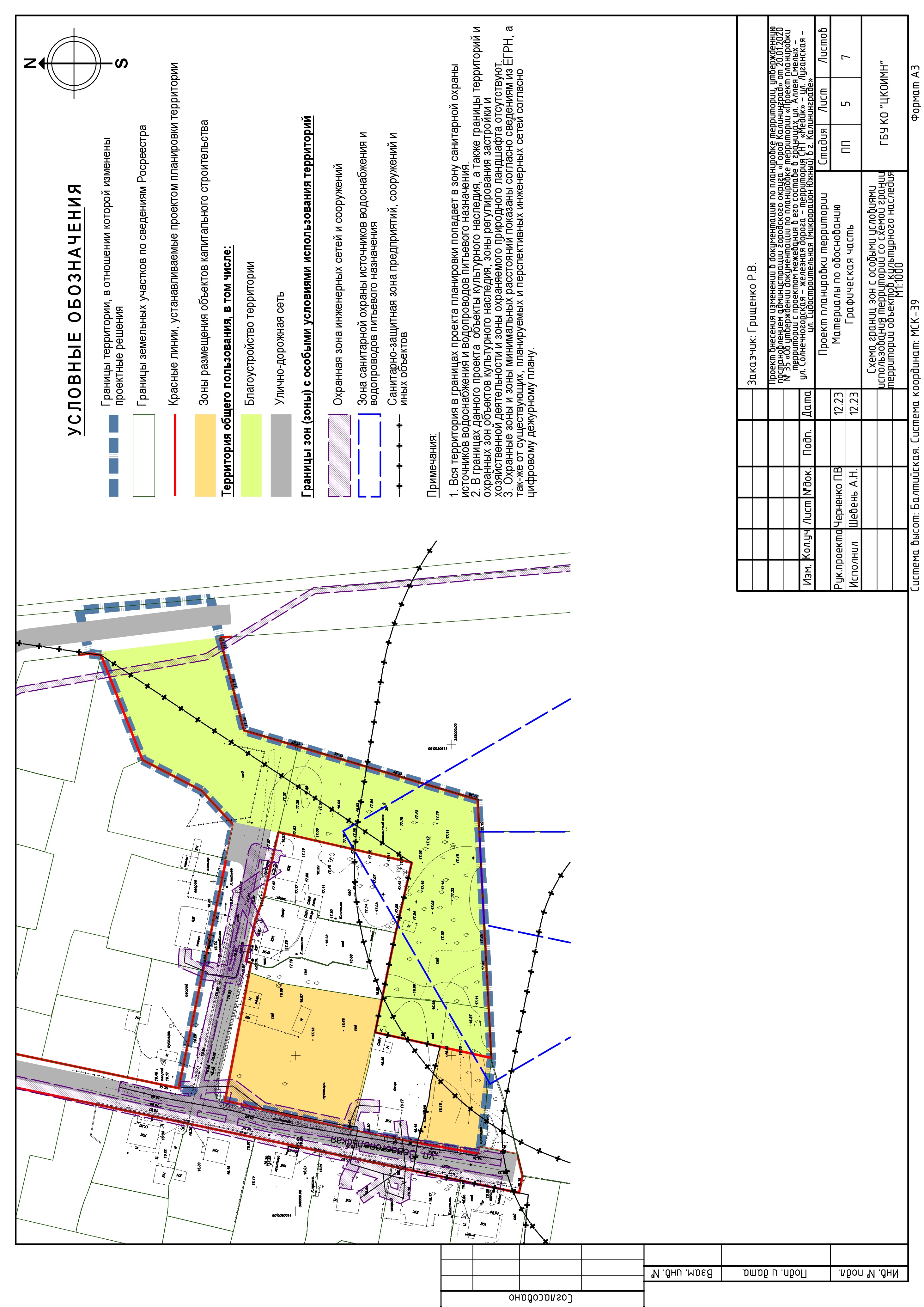
| б/н. Проект внесения изменений в документацию по планировке территории, утвержденную постановлением администрации городского округа «Город Калининград» от 20.01.2020 № 35 «Об утверждении документации по планировке территории «Проект планировки территории с проектом межевания в его составе в границах ул. Аллея смелых – ул. Солнечногорская – железная дорога – территория СНТ «Медик» - ул. Луганская – ул. Судостроительная (микрорайон Южный) в г. Калининграде» | Центральная городская библиотека им. А.П. Чехова (г.Калининград, пр-кт Московский, 39), 31.01.2024 17:00:00 |
с 18.01.2024 по 15.02.2024 в МКУ «ЦДОД» (г. Калининград, пл. Победы, 1); в Центральной городской библиотеке им. А.П. Чехова (г. Калининград, пр-кт Московский, 39) | 29.01.2024 с 10.00 до 11.00, с 16.00 до 17.00 в МКУ «ЦДОД» (г. Калининград, пл. Победы, 1) |
Заключение
(опубликованo 15.02.2024)
|
| б/н. Проект планировки территории с проектом межевания в его составе в границах улиц Красная – Степана Разина – Шиллера в городе Калининграде | Центральная городская библиотека им. А.П. Чехова (г.Калининград, пр-кт Московский, 39), 24.01.2024 17:00:00 |
с 19.01.2024 по 29.01.2024 в МКУ «ЦДОД» (г. Калининград, пл. Победы, 1); в Центральной городской библиотеке им. А.П. Чехова (г. Калининград, пр-кт Московский, 39) | 22.01.2024 с 10.00 до 11.00, с 16.00 до 17.00. МКУ «ЦДОД» (г. Калининград, пл. Победы, 1) |
|
| б/н. Проект внесения изменений в проект планировки территории, утвержденный приказом Агентства по архитектуре, градостроению и перспективному развитию Калининградской области от 19.05.2020 № 205 «Об утверждении проекта планировки территории с проектом межевания в его составе в границах бульвара Сергея Снегова – улиц Молодой гвардии – Юбилейная (продолжение) в городе Калининграде (1 этап)» | Центральная городская библиотека им. А.П. Чехова (г..Калининград, пр-кт Московский, 39), 27.12.2023 17:00:00 |
с 22.12.2023 по 29.12.2023 в МКУ «ЦДОД» (г. Калининград, пл. Победы, 1); в Центральной городской библиотеке им. А.П. Чехова (г. Калининград, пр-кт Московский, 39) | 26.12.2023 с 10.00 до 11.00, с 16.00 до 17.00. МКУ «ЦДОД» (г. Калининград, пл. Победы, 1) |
|