Администрация ГО "Город Калининград". Общественные обсуждения: проекты планировки, проекты межевания
Размер:
AAA
Цвет: CCC
Изображения Вкл.Выкл.
Обычная версия сайта

Согласие на обработку персональных данных является обязательным требованием при внесении предложений.

Поиск:
по названию:

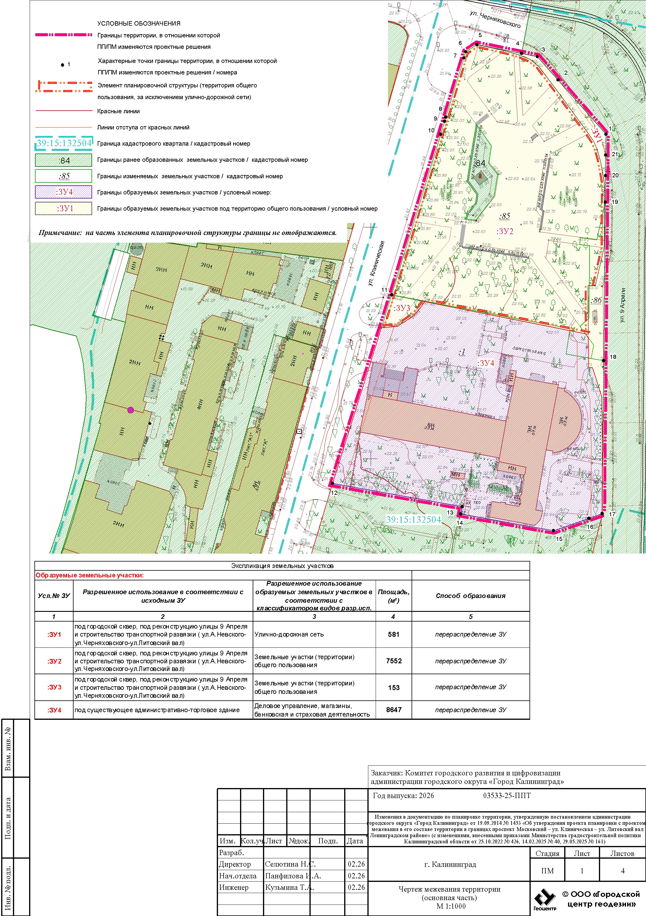
Проект внесения изменений в документацию по планировке территории, утвержденную постановлением администрации городского округа «Город Калининград» от 19.09.2014 № 1453 «Об утверждении проекта планировки с проектом межевания в его составе территории в границах проспект Московский – ул. Клиническая – ул. Литовский вал в Ленинградском районе»

Период проведения общественных обсуждений 16.04.2026 – 07.05.2026
Срок приема обращений и место размещения экспозиции 24.04.2026- 30.04.2026 в МКУ «ЦДОД» (пл. Победы, 1), в Центральной городской библиотеке им. А.П. Чехова (Московский пр-кт, 39)
Дата, время, место проведения консультаций 27.04.2026 с 14-00 до 17-00; 29.04.2026 с 10.00 до 13.00 в МКУ «ЦДОД» (пл. Победы, 1)
Информационные материалы Постановление (опубликованo 16.04.2026)
Оповещение (опубликованo 16.04.2026)
Согласие на обработку персональных данных (опубликованo 16.04.2026)
Чертеж межевания территории (опубликованo 24.04.2026)
Пояснительная записка (опубликованo 24.04.2026)
Чертеж планировки территории (опубликованo 24.04.2026)
Пояснительная записка (опубликованo 24.04.2026)
Заключение
Внести предложения Для физических лиц       Для юридических лиц
Контактный телефон организатора т. 92-31-46

Проект межевания территории в составе проекта планировки территории, утвержденного постановлением администрации городского округа «Город Калининград» от 15 января 2014 года № 10 «Об утверждении проекта планировки с проектом межевания в его составе территории в границах ул. Б. Окружная 1-я – ул. Дубовая аллея – проспект Победы в Центральном районе»

Период проведения общественных обсуждений 16.04.2026 – 07.05.2026
Срок приема обращений и место размещения экспозиции 24.04.2026- 30.04.2026 в МКУ «ЦДОД» (пл. Победы, 1), в Центральной городской библиотеке им. А.П. Чехова (Московский пр-кт, 39)
Дата, время, место проведения консультаций 27.04.2026 с 10-00 до 13-00; 29.04.2026 с 14-00 до 17-00 в МКУ «ЦДОД» (пл. Победы, 1)
Информационные материалы Постановление (опубликованo 16.04.2026)
Оповещение (опубликованo 16.04.2026)
Согласие на обработку персональных данных (опубликованo 16.04.2026)
Чертеж межевания территории (опубликованo 24.04.2026)
Пояснительная записка (опубликованo 24.04.2026)
Заключение
Внести предложения Для физических лиц       Для юридических лиц
Контактный телефон организатора т. 92-31-46

Проект внесения изменений в проект межевания территории, утвержденный постановлением мэра города Калининграда от 02.02.2005 № 255 «Об утверждении проекта межевания квартала в границах красных линий улиц Менделеева – Воздушная – Радистов – Белинского в Октябрьском районе»

Период проведения общественных обсуждений с 26.03.2026 по 16.04.2026
Срок приема обращений и место размещения экспозиции с 03.04.2026 по 09.04.2026 в МКУ «ЦДОД» (пл. Победы, 1) в Центральной городской библиотеке им. А.П. Чехова (Московский пр-кт, 39)
Дата, время, место проведения консультаций 03.04.2026 с 14.00 до 17.00; 07.04.2026 с 10.00 до 13.00 в МКУ «ЦДОД» (пл. Победы, 1)
Информационные материалы Постановление (опубликованo 26.03.2026)
Оповещение (опубликованo 26.03.2026)
Согласие на обработку персональных данных (опубликованo 26.03.2026)
Чертеж межевания территории (опубликованo 03.04.2026)
Текстовая часть проекта межевания (опубликованo 03.04.2026)
Заключение Заключение (опубликованo 16.04.2026)
Внести предложения Срок приема предложений завершен      
Контактный телефон организатора т. 92-32-11
 
Разрешения 1 - 3 из 38
Начало | Пред. | 1 2 3 4 5 | След. | Конец Все