| |
|
| Порубочный билет: |
упб-31 от 22.04.2022
|
Кому выдан: Скан билета:
|
ООО "Уют"
Скан билета |
| Мероприятия: |
вырубка |
| Компенсационная стоимость: |
7 950 |
|
Cкан платежного поручения |
| Адрес земельного участка: |
ул. Носова, 22-26
Ссылка на карту
|
| Перечетная ведомость: |
Перечетная ведомость |
|
Подеревная съемка:
|
|
Видовые фото:
земельного участка:
фото отдельных деревьев (при возможности):
Фото
Фото
Фото
|
|
Акт освидетельствования места вырубки (сноса), пересадки и обрезки зеленых насаждений: |
Скан акта |
| Видовые фото территории на которой была произведена вырубка:
Фото
|
|
Проект компенсационного озеленения |
Скачать
|
|
Акт оценки объемов и качества выполненных работ (выполненное компенсационное озеленение): |
Скан акта
Видовые фото:
Фото
|
|
Отметка о закрытии / нарушении: |
не закрыт |
|
|
| |
|
|
| |
|
| Порубочный билет: |
упб-29 от 19.04.2022
|
Кому выдан: Скан билета:
|
МКУ "Калининградская служба заказчика"
Скан билета |
| Мероприятия: |
вырубка, пересадка (реконструкция зеленых насаждений) |
| Компенсационная стоимость: |
не взимается |
|
|
| Адрес земельного участка: |
ул. Ген. Соммера, ул. Рокоссовского
|
| Перечетная ведомость: |
|
|
Подеревная съемка:
|
|
Видовые фото:
земельного участка:
фото отдельных деревьев (при возможности):
Фото
Фото
Фото
Фото
|
|
Акт освидетельствования места вырубки (сноса), пересадки и обрезки зеленых насаждений: |
Скан акта |
| Видовые фото территории на которой была произведена вырубка:
Фото
Фото
Фото
Фото
Фото
Фото
Фото
Фото
Фото
Фото
Фото
Фото
Фото
Фото
Фото
Фото
Фото
Фото
Фото
Фото
Фото
|
|
Проект компенсационного озеленения |
Скачать
Скачать
|
|
Акт оценки объемов и качества выполненных работ (выполненное компенсационное озеленение): |
Скан акта
Видовые фото:
Фото
|
|
Отметка о закрытии / нарушении: |
не закрыт, замечания |
|
|
| |
|
| Порубочный билет: |
упб-27 от 11.04.2022
|
Кому выдан: Скан билета:
|
МАДОУ ЦРР д/с № 130
Скан билета |
| Мероприятия: |
вырубка |
| Компенсационная стоимость: |
7 252, 50 |
|
Cкан платежного поручения |
| Адрес земельного участка: |
ул. Батальная, 71а
Ссылка на карту
|
| Перечетная ведомость: |
Перечетная ведомость |
|
Подеревная съемка:
|
|
Видовые фото:
земельного участка:
Фото
фото отдельных деревьев (при возможности):
|
|
Акт освидетельствования места вырубки (сноса), пересадки и обрезки зеленых насаждений: |
Скан акта |
| Видовые фото территории на которой была произведена вырубка:
Фото
|
|
Проект компенсационного озеленения |
Скачать
|
|
Акт оценки объемов и качества выполненных работ (выполненное компенсационное озеленение): |
Скан акта
Видовые фото:
Фото
|
|
Отметка о закрытии / нарушении: |
закрыт |
|
|
| |
|
| Порубочный билет: |
упб-26 от 08.04.2022
|
Кому выдан: Скан билета:
|
ООО "Вояж"
Скан билета |
| Мероприятия: |
вырубка |
| Компенсационная стоимость: |
595 067, 50 |
|
Cкан платежного поручения |
| Адрес земельного участка: |
ул. Ю. Гагарина
Ссылка на карту
|
| Перечетная ведомость: |
Перечетная ведомость |
|
Подеревная съемка:
|
|
Видовые фото:
земельного участка:
Фото
Фото
Фото
Фото
фото отдельных деревьев (при возможности):
|
|
Акт освидетельствования места вырубки (сноса), пересадки и обрезки зеленых насаждений: |
Скан акта |
| Видовые фото территории на которой была произведена вырубка:
Фото
Фото
Фото
Фото
|
|
Проект компенсационного озеленения |
Скачать
Скачать
|
|
Акт оценки объемов и качества выполненных работ (выполненное компенсационное озеленение): |
Видовые фото:
|
|
Отметка о закрытии / нарушении: |
|
|
|
| |
|
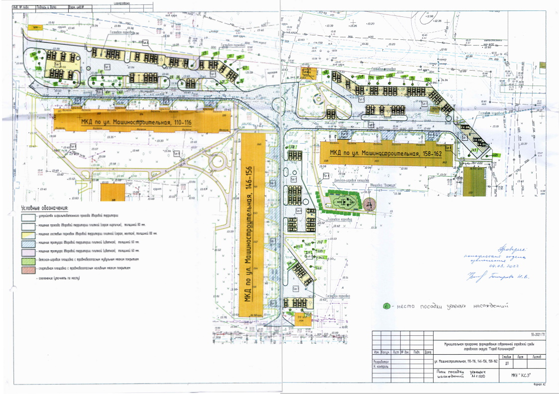
| Порубочный билет: |
упб-25 от 06.04.2022
|
Кому выдан: Скан билета:
|
МКУ "Калининградская служба заказчика"
Скан билета |
| Мероприятия: |
вырубка, пересадка (реконструкция зеленых насаждений) |
| Компенсационная стоимость: |
|
|
|
| Адрес земельного участка: |
ул. Машиностроительная, 110-116, 146-156, 158-162
Ссылка на карту
|
| Перечетная ведомость: |
Перечетная ведомость |
|
Подеревная съемка:
|
|
Видовые фото:
земельного участка:
фото отдельных деревьев (при возможности):
Фото
Фото
Фото
Фото
Фото
Фото
Фото
Фото
Фото
Фото
|
|
Акт освидетельствования места вырубки (сноса), пересадки и обрезки зеленых насаждений: |
Скан акта |
| Видовые фото территории на которой была произведена вырубка:
Фото
Фото
Фото
Фото
Фото
Фото
Фото
|
|
Проект компенсационного озеленения |
Скачать
Скачать
|
|
Акт оценки объемов и качества выполненных работ (выполненное компенсационное озеленение): |
Скан акта
Видовые фото:
Фото
|
|
Отметка о закрытии / нарушении: |
не закрыт |
|
|
| |
|
| Порубочный билет: |
упб-24 от 06.04.2022
|
Кому выдан: Скан билета:
|
МКУ "Калининградская служба заказчика"
Скан билета |
| Мероприятия: |
вырубка (реконструкция зеленых насаждений) |
| Компенсационная стоимость: |
не взимается |
|
|
| Адрес земельного участка: |
ул. Ген. Соммера, 12-22
Ссылка на карту
|
| Перечетная ведомость: |
Перечетная ведомость |
|
Подеревная съемка:
|
|
Видовые фото:
земельного участка:
Фото
Фото
Фото
Фото
Фото
Фото
Фото
Фото
Фото
Фото
Фото
Фото
фото отдельных деревьев (при возможности):
|
|
Акт освидетельствования места вырубки (сноса), пересадки и обрезки зеленых насаждений: |
Скан акта |
| Видовые фото территории на которой была произведена вырубка:
|
|
Проект компенсационного озеленения |
Скачать
Скачать
|
|
Акт оценки объемов и качества выполненных работ (выполненное компенсационное озеленение): |
Скан акта
Видовые фото:
Фото
|
|
Отметка о закрытии / нарушении: |
закрыт |
|
|
| |
|
| Порубочный билет: |
упб-23 от 06.04.2022
|
Кому выдан: Скан билета:
|
МКУ "Калининградская служба заказчика"
Скан билета |
| Мероприятия: |
вырубка, пересадка (реконструкция зеленых насаждений) |
| Компенсационная стоимость: |
не взимается |
|
|
| Адрес земельного участка: |
ул. Аксакова, 78-88, 90-100, ул. Куприна, 22
Ссылка на карту
|
| Перечетная ведомость: |
Перечетная ведомость |
|
Подеревная съемка:
|
|
Видовые фото:
земельного участка:
Фото
Фото
Фото
Фото
Фото
Фото
Фото
Фото
Фото
Фото
Фото
фото отдельных деревьев (при возможности):
|
|
Акт освидетельствования места вырубки (сноса), пересадки и обрезки зеленых насаждений: |
|
| Видовые фото территории на которой была произведена вырубка:
|
|
Проект компенсационного озеленения |
Скачать
Скачать
|
|
Акт оценки объемов и качества выполненных работ (выполненное компенсационное озеленение): |
Скан акта
Видовые фото:
Фото
|
|
Отметка о закрытии / нарушении: |
не закрыт |
|
|
| |
|
| Порубочный билет: |
упб-22 от 06.04.2022
(продлен до 27.04.2025) |
Кому выдан: Скан билета:
|
ООО "Специализированный застройщик "Промстройсервис"
Скан билета |
| Мероприятия: |
вырубка |
| Компенсационная стоимость: |
113 937, 5 |
|
Cкан платежного поручения |
| Адрес земельного участка: |
ул. Левитана
Ссылка на карту
|
| Перечетная ведомость: |
Перечетная ведомость |
|
Подеревная съемка:
|
|
Видовые фото:
земельного участка:
Фото
Фото
Фото
фото отдельных деревьев (при возможности):
|
|
Акт освидетельствования места вырубки (сноса), пересадки и обрезки зеленых насаждений: |
Скан акта |
| Видовые фото территории на которой была произведена вырубка:
Фото
|
|
Проект компенсационного озеленения |
Скачать
Скачать
|
|
Акт оценки объемов и качества выполненных работ (выполненное компенсационное озеленение): |
Скан акта
Видовые фото:
Фото
|
|
Отметка о закрытии / нарушении: |
|
|
|
| |
|
| Порубочный билет: |
упб-21 (закрыт) от 05.04.2022
|
Кому выдан: Скан билета:
|
МБУ "Чистота"
Скан билета |
| Мероприятия: |
вырубка (рубки ухода) |
| Компенсационная стоимость: |
не взимается |
|
|
| Адрес земельного участка: |
ш. Балтийское, КН 39:15:111201:611
Ссылка на карту
Ссылка на карту
Ссылка на карту
Ссылка на карту
|
| Перечетная ведомость: |
|
|
Подеревная съемка:
|
|
Видовые фото:
земельного участка:
Фото
Фото
Фото
Фото
Фото
Фото
Фото
фото отдельных деревьев (при возможности):
|
|
Акт освидетельствования места вырубки (сноса), пересадки и обрезки зеленых насаждений: |
Скан акта |
| Видовые фото территории на которой была произведена вырубка:
Фото
Фото
Фото
Фото
|
|
Проект компенсационного озеленения |
|
|
Акт оценки объемов и качества выполненных работ (выполненное компенсационное озеленение): |
Видовые фото:
|
|
Отметка о закрытии / нарушении: |
Закрыт |
|
|
| |
|
| Порубочный билет: |
упб-20 от 04.04.2022
|
Кому выдан: Скан билета:
|
ООО "Специализированный застройщик "Новый дом"
Скан билета |
| Мероприятия: |
вырубка |
| Компенсационная стоимость: |
60 955 |
|
Cкан платежного поручения |
| Адрес земельного участка: |
ул.Мл.лейт. Родителева
Ссылка на карту
|
| Перечетная ведомость: |
|
|
Подеревная съемка:
|
|
Видовые фото:
земельного участка:
Фото
Фото
Фото
Фото
Фото
фото отдельных деревьев (при возможности):
|
|
Акт освидетельствования места вырубки (сноса), пересадки и обрезки зеленых насаждений: |
Скан акта |
| Видовые фото территории на которой была произведена вырубка:
Фото
Фото
|
|
Проект компенсационного озеленения |
Скачать
Скачать
|
|
Акт оценки объемов и качества выполненных работ (выполненное компенсационное озеленение): |
Скан акта
Видовые фото:
Фото
|
|
Отметка о закрытии / нарушении: |
закрыт |
|
|
| |
|
| Порубочный билет: |
упб-19 от 30.03.2022
(продлен до 29.09.2024) |
Кому выдан: Скан билета:
|
ООО "Специализированный застройщик "Саламандра"
Скан билета |
| Мероприятия: |
вырубка |
| Компенсационная стоимость: |
не взимается |
|
|
| Адрес земельного участка: |
ул. Земельная
Ссылка на карту
|
| Перечетная ведомость: |
|
|
Подеревная съемка:
|
|
Видовые фото:
земельного участка:
Фото
фото отдельных деревьев (при возможности):
|
|
Акт освидетельствования места вырубки (сноса), пересадки и обрезки зеленых насаждений: |
Скан акта |
| Видовые фото территории на которой была произведена вырубка:
Фото
|
|
Проект компенсационного озеленения |
Скачать
Скачать
Скачать
|
|
Акт оценки объемов и качества выполненных работ (выполненное компенсационное озеленение): |
Видовые фото:
|
|
Отметка о закрытии / нарушении: |
|
|
|
| |
|
| Порубочный билет: |
упб-18 от 25.03.2022
|
Кому выдан: Скан билета:
|
МАУ ДО ДЮСШ № 7 по теннису и настольному теннису
Скан билета |
| Мероприятия: |
вырубка (рубки ухода) |
| Компенсационная стоимость: |
не взимается |
|
|
| Адрес земельного участка: |
просп. Московский, 169а
Ссылка на карту
|
| Перечетная ведомость: |
|
|
Подеревная съемка:
|
|
Видовые фото:
земельного участка:
Фото
Фото
фото отдельных деревьев (при возможности):
|
|
Акт освидетельствования места вырубки (сноса), пересадки и обрезки зеленых насаждений: |
Скан акта |
| Видовые фото территории на которой была произведена вырубка:
Фото
Фото
Фото
Фото
|
|
Проект компенсационного озеленения |
|
|
Акт оценки объемов и качества выполненных работ (выполненное компенсационное озеленение): |
Видовые фото:
|
|
Отметка о закрытии / нарушении: |
Закрыт |
|
|
| |
|
| Порубочный билет: |
упб-17 от 22.03.2022
|
Кому выдан: Скан билета:
|
ООО "СЗ "КалининградИнвестСтрой"
Скан билета |
| Мероприятия: |
вырубка (рубки ухода) |
| Компенсационная стоимость: |
не взимается |
|
|
| Адрес земельного участка: |
проезд Тихорецкий
Ссылка на карту
|
| Перечетная ведомость: |
|
|
Подеревная съемка:
|
|
Видовые фото:
земельного участка:
Фото
Фото
фото отдельных деревьев (при возможности):
|
|
Акт освидетельствования места вырубки (сноса), пересадки и обрезки зеленых насаждений: |
Скан акта |
| Видовые фото территории на которой была произведена вырубка:
Фото
Фото
Фото
Фото
|
|
Проект компенсационного озеленения |
|
|
Акт оценки объемов и качества выполненных работ (выполненное компенсационное озеленение): |
Видовые фото:
|
|
Отметка о закрытии / нарушении: |
Закрыт |
|
|
| |
|
| Порубочный билет: |
упб-16 от 14.03.2022
|
Кому выдан: Скан билета:
|
ООО "Европейская промышленная группа"
Скан билета |
| Мероприятия: |
вырубка |
| Компенсационная стоимость: |
не взимается |
|
|
| Адрес земельного участка: |
ул. Чапаева
Ссылка на карту
|
| Перечетная ведомость: |
Перечетная ведомость |
|
Подеревная съемка:
|
|
Видовые фото:
земельного участка:
Фото
фото отдельных деревьев (при возможности):
|
|
Акт освидетельствования места вырубки (сноса), пересадки и обрезки зеленых насаждений: |
Скан акта |
| Видовые фото территории на которой была произведена вырубка:
Фото
Фото
|
|
Проект компенсационного озеленения |
Скачать
Скачать
|
|
Акт оценки объемов и качества выполненных работ (выполненное компенсационное озеленение): |
Скан акта
Видовые фото:
Фото
|
|
Отметка о закрытии / нарушении: |
закрыт |
|
|
| |
|
| Порубочный билет: |
упб-15 (действие прекращено, выдан порубочный билет от 28.09.2022 № упб-86) от 09.03.2022
|
Кому выдан: Скан билета:
|
МКУ "Городское дорожное строительство и ремонт"
Скан билета |
| Мероприятия: |
вырубка |
| Компенсационная стоимость: |
не взимается |
|
|
| Адрес земельного участка: |
ул. Судостроительная
|
| Перечетная ведомость: |
|
|
Подеревная съемка:
|
|
Видовые фото:
земельного участка:
фото отдельных деревьев (при возможности):
|
|
Акт освидетельствования места вырубки (сноса), пересадки и обрезки зеленых насаждений: |
|
| Видовые фото территории на которой была произведена вырубка:
|
|
Проект компенсационного озеленения |
Скачать
Скачать
|
|
Акт оценки объемов и качества выполненных работ (выполненное компенсационное озеленение): |
Видовые фото:
|
|
Отметка о закрытии / нарушении: |
|
|
|
| |
|
| Порубочный билет: |
упб-14 от 09.03.2022
|
Кому выдан: Скан билета:
|
МКУ "Калининградская служба заказчика"
Скан билета |
| Мероприятия: |
вырубка (реконструкция зеленых насаждений) |
| Компенсационная стоимость: |
не взимается |
|
|
| Адрес земельного участка: |
ул. Нарвская
Ссылка на карту
|
| Перечетная ведомость: |
|
|
Подеревная съемка:
|
|
Видовые фото:
земельного участка:
Фото
Фото
Фото
Фото
фото отдельных деревьев (при возможности):
|
|
Акт освидетельствования места вырубки (сноса), пересадки и обрезки зеленых насаждений: |
Скан акта |
| Видовые фото территории на которой была произведена вырубка:
Фото
Фото
Фото
|
|
Проект компенсационного озеленения |
Скачать
|
|
Акт оценки объемов и качества выполненных работ (выполненное компенсационное озеленение): |
Скан акта
Видовые фото:
Фото
|
|
Отметка о закрытии / нарушении: |
закрыт |
|
|
| |
|
| Порубочный билет: |
упб-13 от 03.03.2022
|
Кому выдан: Скан билета:
|
ООО "Специализированный застройщик "Интер-Инвест"
Скан билета |
| Мероприятия: |
вырубка |
| Компенсационная стоимость: |
687 345 |
|
|
| Адрес земельного участка: |
ул. Тихоненко
Ссылка на карту
|
| Перечетная ведомость: |
Перечетная ведомость |
|
Подеревная съемка:
|
|
Видовые фото:
земельного участка:
Фото
Фото
Фото
Фото
фото отдельных деревьев (при возможности):
|
|
Акт освидетельствования места вырубки (сноса), пересадки и обрезки зеленых насаждений: |
Скан акта |
| Видовые фото территории на которой была произведена вырубка:
Фото
Фото
|
|
Проект компенсационного озеленения |
Скачать
Скачать
Скачать
Скачать
|
|
Акт оценки объемов и качества выполненных работ (выполненное компенсационное озеленение): |
Скан акта
Видовые фото:
Фото
|
|
Отметка о закрытии / нарушении: |
закрыт |
|
|
| |
|
| Порубочный билет: |
упб-12 от 02.03.2022
(продлен до 12.01.2025) |
Кому выдан: Скан билета:
|
МКУ "Городское дорожное строительство и ремонт"
Скан билета |
| Мероприятия: |
вырубка |
| Компенсационная стоимость: |
не взимается |
|
|
| Адрес земельного участка: |
ул. В. Денисова, ул. 3-го Белорусского фронта, ул. Брестская, ул. Р. Зорге, ул. Михайловская
Ссылка на карту
|
| Перечетная ведомость: |
|
|
Подеревная съемка:
|
|
Видовые фото:
земельного участка:
фото отдельных деревьев (при возможности):
|
|
Акт освидетельствования места вырубки (сноса), пересадки и обрезки зеленых насаждений: |
Скан акта |
| Видовые фото территории на которой была произведена вырубка:
Фото
Фото
Фото
Фото
Фото
Фото
Фото
Фото
Фото
Фото
Фото
Фото
Фото
Фото
Фото
Фото
Фото
Фото
Фото
Фото
Фото
|
|
Проект компенсационного озеленения |
Скачать
Скачать
Скачать
Скачать
Скачать
|
|
Акт оценки объемов и качества выполненных работ (выполненное компенсационное озеленение): |
Скан акта
Видовые фото:
Фото
|
|
Отметка о закрытии / нарушении: |
закрыт
Скан билета |
|
|
| |
|
| Порубочный билет: |
упб-11 от 02.03.2022
|
Кому выдан: Скан билета:
|
МКУ "Калининградская служба заказчика"
Скан билета |
| Мероприятия: |
вырубка (рубки ухода) |
| Компенсационная стоимость: |
не взимается |
|
|
| Адрес земельного участка: |
ул. Бассейная - ул. Лейт. Катина - ул. Спортивная
Ссылка на карту
|
| Перечетная ведомость: |
|
|
Подеревная съемка:
|
|
Видовые фото:
земельного участка:
Фото
Фото
Фото
Фото
Фото
Фото
фото отдельных деревьев (при возможности):
|
|
Акт освидетельствования места вырубки (сноса), пересадки и обрезки зеленых насаждений: |
Скан акта |
| Видовые фото территории на которой была произведена вырубка:
|
|
Проект компенсационного озеленения |
|
|
Акт оценки объемов и качества выполненных работ (выполненное компенсационное озеленение): |
Видовые фото:
|
|
Отметка о закрытии / нарушении: |
Закрыт |
|
|