Публичные слушания по проектам межевания после 2020 года
№ на схеме | Наименование проекта | Место и время проведения | Материалы | Заключение | Проект межевания территории в границах улиц
Нефтяной – Радищева в городе Калининграде | Публичные слушания назначены на 21 ноября 2019 г. в
17:00 по адресу: г. Калининград, ул. Чайковского, 50-52, 2-й
этаж, каб. 206. | Оповещение Постановление Основной чертеж Опорный план Пояснительная записка | Заключение |
|---|---|---|---|---|
| Проект межевания территории в границах улиц Льва
Толстого – Достоевского в городе Калининграде | Публичные слушания назначены на 31 октября 2019 г. в 17:00 по адресу:
г. Калининград, ул. Фрунзе, 71, каб. 25А | Оповещение Постановление Основной чертеж Опорный план Пояснительная записка | Заключение | |
| Проект межевания территории в
границах улиц Багратиона – Подп. Половца – Б. Хмельницкого –
Мл. лейт. Ротко в Московском районе города
Калининграда | Публичные слушания назначены на 26 сентября 2019 г. в 17:30 по адресу:
г. Калининград, ул. Октябрьская, 79, 2-й этаж, каб. 211 | Оповещение Постановление Основной чертеж Опорный план Пояснительная записка | Заключение | |
| Проект внесения изменений в документацию по планировке территории «Проект межевания квартала в границах красных линий ул. Нарвская – ул. Памяти павших в Афганистане – ул. Гайдара – река Голубая в Центральном районе г. Калининграда» | Публичные слушания назначены на 29 августа 2019 в 17:00 по адресу: г. Калининград, ул. Чайковского, 50-52, 2-й этаж, каб. 206 | Оповещение Постановление Основной чертеж Опорный план Пояснительная записка | Заключение | |
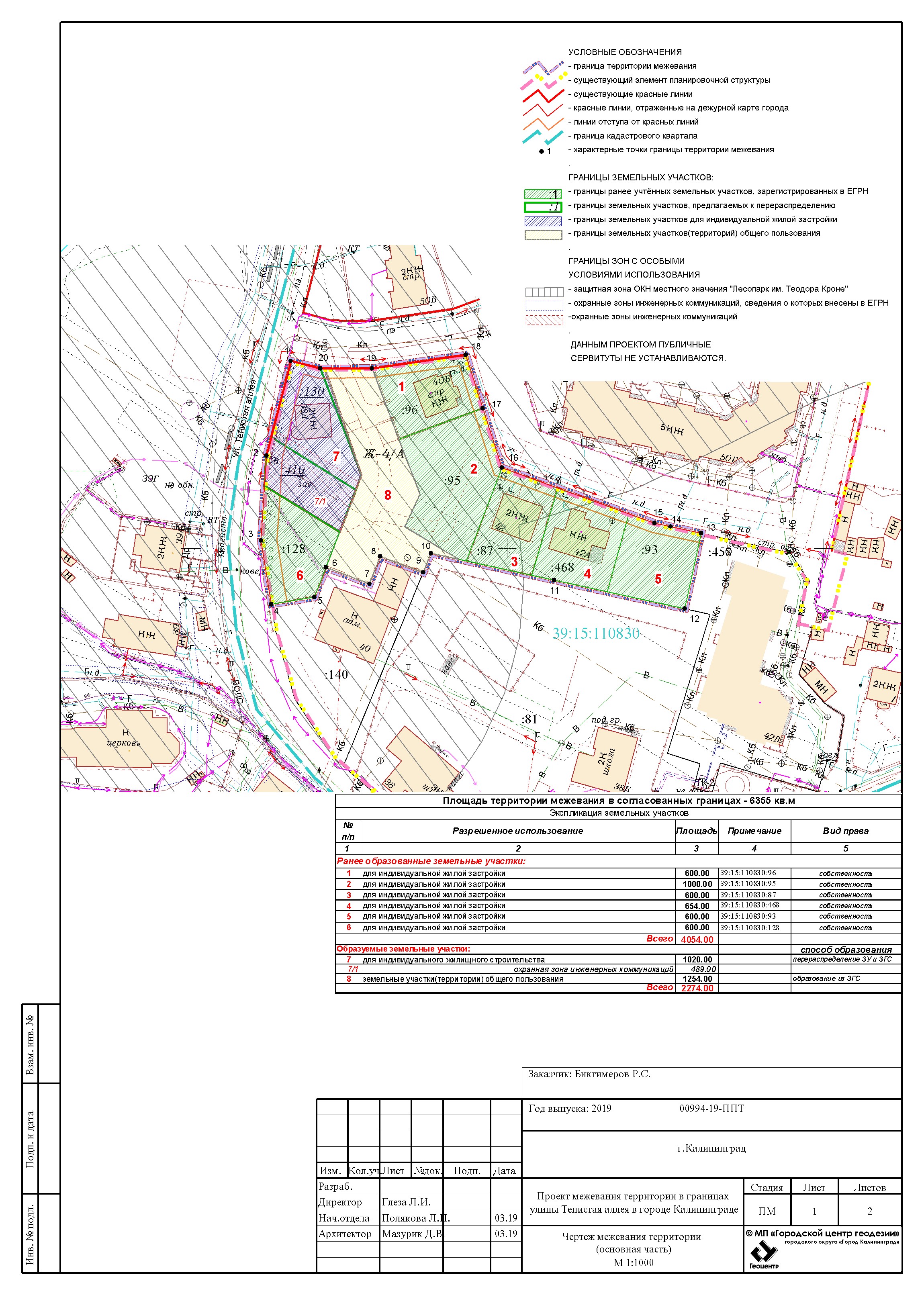
| Проект межевания территории в границах улицы Тенистая аллея в городе Калининграде | Публичные слушания назначены на 15 августа 2019 г. в 17:30 по адресу:
г. Калининград, ул. Чайковского, 50-52, 2-й этаж, каб. 206. | Оповещение Постановление Основной чертеж Опорный план Пояснительная записка | Заключение | |
| Проект межевания территории в
границах улиц Воздушной - Белинского – Саперной
в городе Калининграде | Публичные слушания назначены на 15 августа 2019 г. в 17:00 по адресу:
г. Калининград, ул. Чайковского, 50-52, 2-й этаж, каб. 206. | Оповещение Постановление Основной чертеж Опорный план Пояснительная записка | Заключение | |
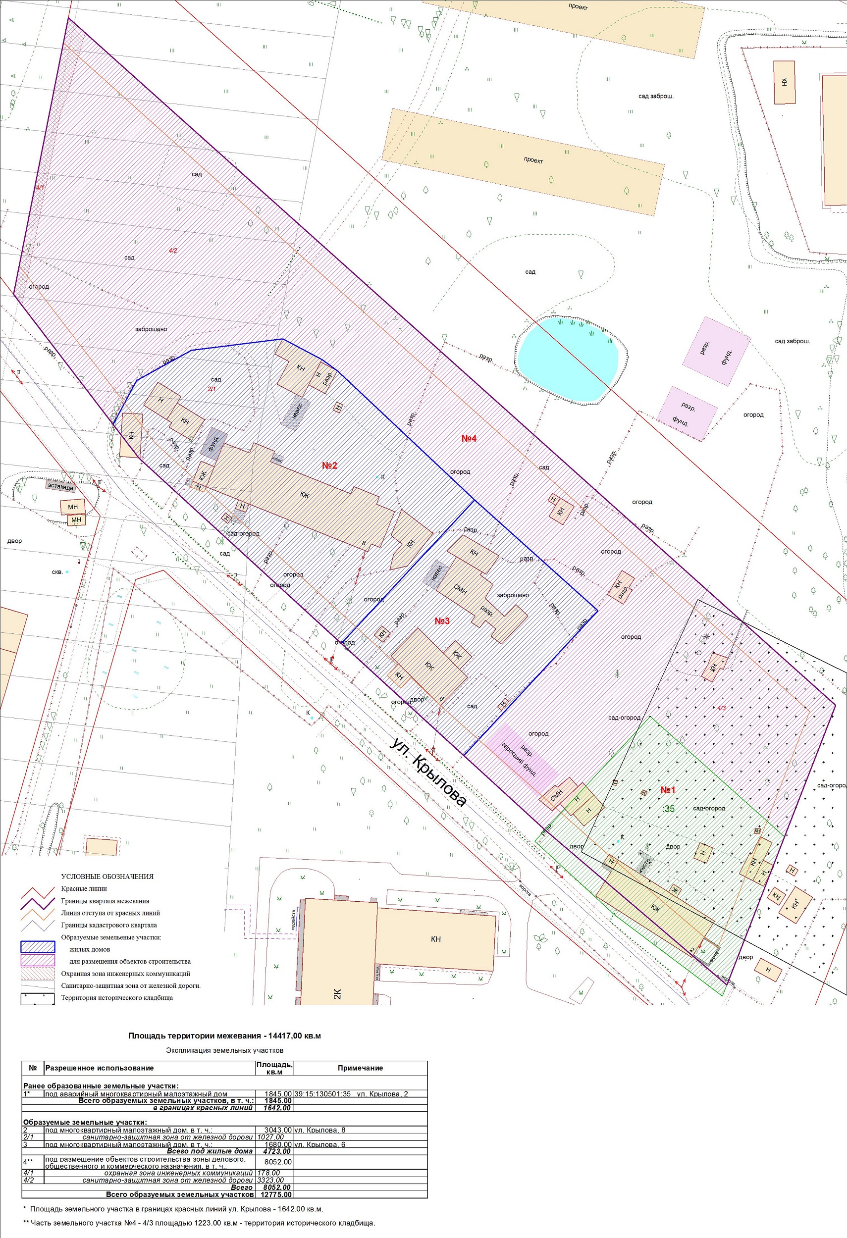
| Проект межевания территории в границах улиц Фурманова – Крылова – Генерала Белобородова в городе Калининграде | Публичные слушания назначены на 08 августа 2019 г. в 17:00 по адресу: г. Калининград, ул. Фрунзе, 71, каб. 25А. | Оповещение Постановление Основной чертеж Опорный план Пояснительная записка | Заключение | |
| Проект межевания территории в границах улиц Ватутина – Белинского – Глазунова – Добролюбова в г. Калининграде | Публичные слушания назначены на 04 июля 2019 г. в 17 часов 00 минут по адресу: г. Калининград, ул. Чайковского, 50-52, 2-й этаж, каб. 206 | Оповещение Постановление Основной чертеж Опорный план Пояснительная записка | Заключение | |
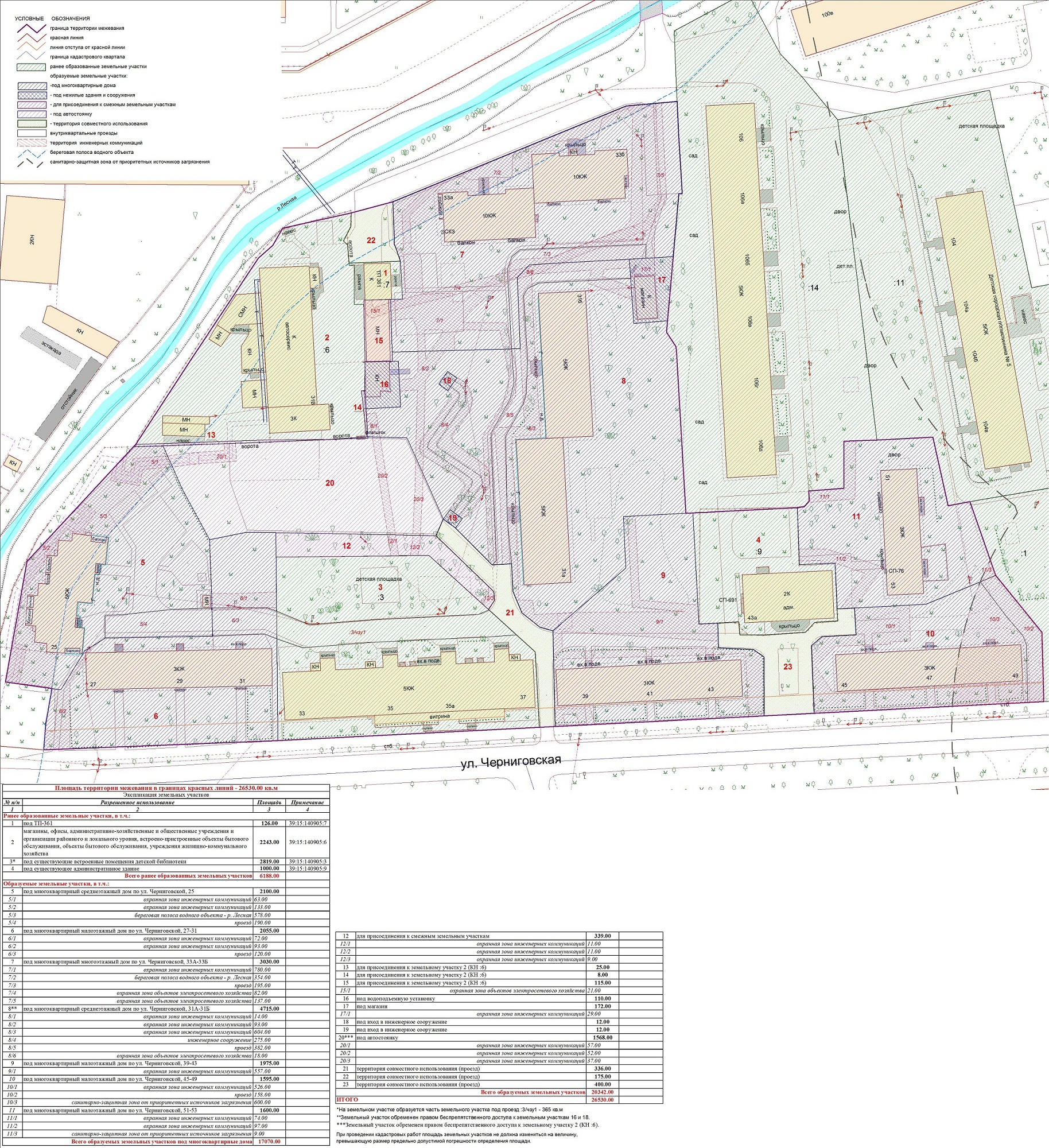
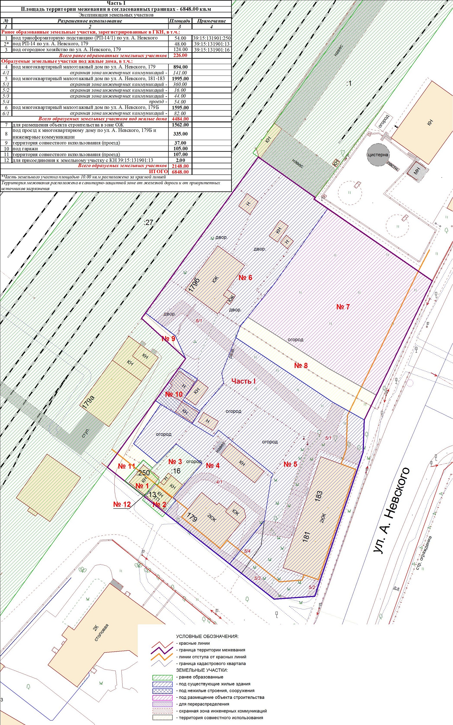
| Проект межевания территории в границах улиц В. Дубинина – Менделеева Центрального района города Калининграда | Публичные слушания назначены на 13 июня 2019 г. в 17:30 по адресу: г. Калининград, ул. Чайковского, 50-52, 2-й этаж, каб. 206 |
Оповещение Постановление Основной чертеж Опорный план Пояснительная записка |
Заключение | |
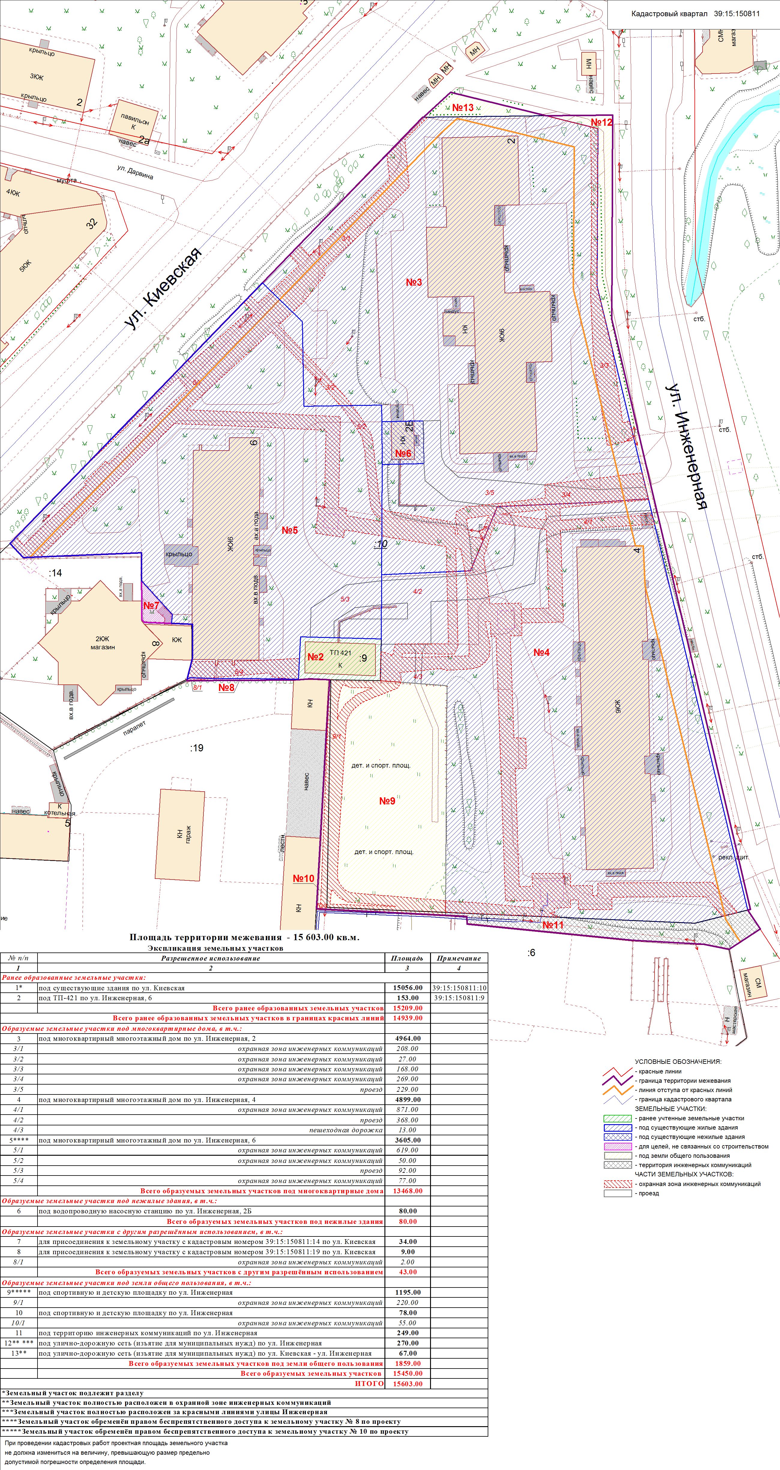
| Проект межевания территории в границах красных линий улицы Южной – переулка Трамвайного, 2-го – улицы Киевской в Московском районе города Калининграда | Публичные слушания назначены на 06 июня 2019 г. в 17:00 по адресу: г. Калининград, ул. Октябрьская, 79, 2-й этаж, каб. 211 |
Оповещение Постановление Постановление о внесении изменений Основной чертеж Опорный план Пояснительная записка |
Заключение | |
| Проект межевания территории в границах улиц Луговая – Гайдара в городе Калининграде | Публичные слушания назначены на 23 мая 2019 г. в 17:30 по адресу: г. Калининград, ул. Фрунзе, 71, каб. 25А |
Оповещение Постановление Основной чертеж Опорный план Пояснительная записка |
Заключение | |
| Проект межевания территории в границах улицы Генерал-лейтенанта Озерова – переулка Северного – улицы Ракитной – переулка Партизанского в Ленинградском районе города Калининграда | Публичные слушания назначены на 23 мая 2019 г. в 17:00 по адресу: г. Калининград, ул. Фрунзе, 71, каб. 25А |
Оповещение Постановление Основной чертеж Опорный план Пояснительная записка |
Заключение | |
| Проект межевания территории в границах улицы Радищева – внутриквартального проезда – улиц Каштановая аллея – Евгения Колесникова в Центральном районе города Калининграда | Публичные слушания назначены на 15 мая 2019 г. в 17:00 по адресу. г. Калининград, ул. Чайковского, 50-52, 2-й этаж, каб. 206 (административное здание) |
Оповещение Постановление Основной чертеж Опорный план Пояснительная записка |
Заключение | |
| Проект межевания территории в границах улиц Лескова – Некрасова – Ленинградской Ленинградского района города Калининграда | Публичные слушания назначены на 17 апреля 2019 г. в 17 часов по адресу г. Калининград, ул. Фрунзе, 71, каб. 25А (административное здание) | Оповещение Постановление Основной чертеж Опорный план Пояснительная записка | Заключение | |
| Проект межевания территории территории по шоссе Балтийскому в Центральном районе города Калининграда | Публичные слушания назначены на 14 марта 2019 г. в 17 часов 30 минут по адресу г. Калининград, ул. Чайковского, 50-52, 2-й этаж, каб. 206 (административное здание) | Оповещение Постановление Чертеж межевания территории | Заключение | |
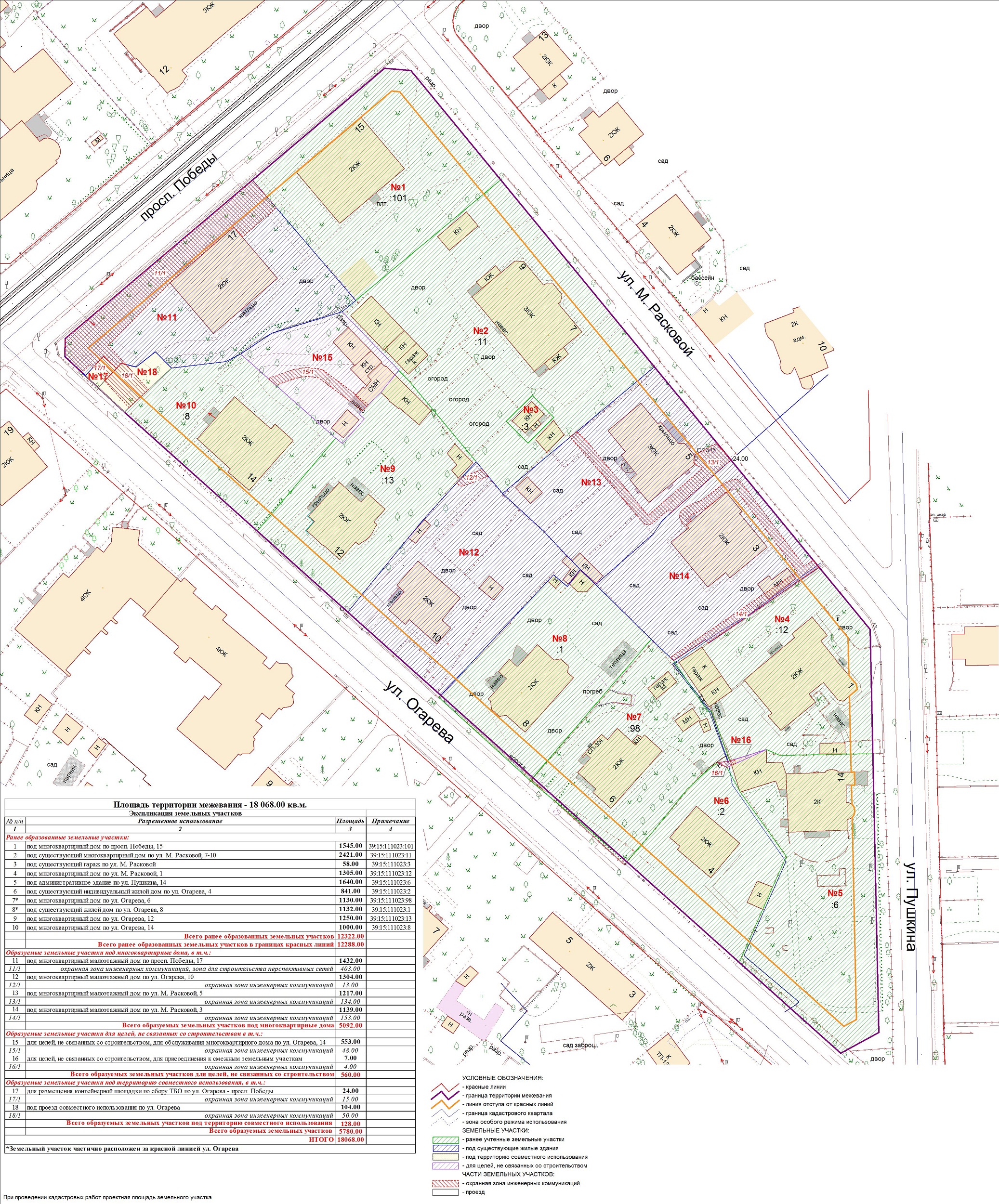
| Проект межевания территории территории в границах улицы Менделеева – проспекта Победы в Центральном районе города Калининграда | Публичные слушания назначены на 14 марта 2019 г. в 17 часов по адресу г. Калининград, ул. Чайковского, 50-52, 2-й этаж, каб. 206 (административное здание) | Оповещение Постановление Чертеж межевания территории | Заключение | |
| Проект межевания территории территории в границах улицы Менделеева – проспекта Мира в Центральном районе города Калининграда | Оповещение Проект границ | Заключение | ||
| Проект межевания территории в границах ул. Куйбышева – внутриквартального проезда – южной границы земельного участка с кадастровым номером 39:15:131931:77 по ул. Еловая аллея – пер. Куйбышева Ленинградского района города Калининграда | Оповещение Проект границ | Заключение | ||
| Проект межевания территории по ул. Бассейной в Центральном города Калининграда | Публичные слушания по проекту межевания территории по ул. Бассейной в Центральном города Калининграда состоятся 12.11.2018 в 17 часов по адресу: г. Калининград, ул. Чайковского, 52, кабинет № 206 (административное здание) | Проект границ | Заключение | |
| Проект межевания территории в границах улицы Артиллерийской – внутриквартального проезда в Ленинградском районе города Калининграда | Публичные слушания назначены на 01.11.2018 в 17-00 по адресу: ул. Фрунзе, 71, каб. 25а по проекту межевания территории в границах улицы Артиллерийской – внутриквартального проезда в Ленинградском | Оповещение Проект границ | Заключение | |
| Проект межевания территории в границах улиц Щорса – Красная – Лейт. Яналова – проезда в Центральном районе города Калининграда и территориальной зоны застройки многоэтажными жилыми домами (индекс «Ж-1»). | Публичные слушания назначены на 27.09.2018 в 17-00 по адресу: ул. Чайковского, 50-52, каб. 206 (административное здание) по проекту межевания территории в границах улиц Щорса – Красная – Лейт. Яналова – проезда в Центральном районе города Калининграда и территориальной зоны застройки многоэтажными жилыми домами (индекс «Ж-1»).П | Оповещение Проект границ | Заключение | |
| Проект межевания территории в границах красных линий улиц Галактическая – Брусничная – Тенистая аллея и территориальных зон застройки многоэтажными (индекс «Ж-1»), среднеэтажными (индекс «Ж-2»), индивидуальными жилыми домами (индекс «Ж-4»). | Публичные слушания по проекту межевания территории в границах красных линий улиц Галактическая – Брусничная – Тенистая аллея и территориальных зон застройки многоэтажными (индекс «Ж-1»), среднеэтажными (индекс «Ж-2»), индивидуальными жилыми домами (индекс «Ж-4») состоятся 30.08.2018 в 17 часов по адресу: г. Калининград, ул. Чайковского, 52, кабинет № 206 (административное здание). | Постановление Проект границ | Заключение | |
| Проект межевания территорий в границах улиц Загородной – Островского – пер. Островского в Ленинградском районе г. Калининграда | Публичные слушания назначены на 07.08.2017 в 17-00 по адресу: ул. Фрунзе, 71, каб.25а (административное здание) по проектам межевания территорий в границах улиц Загородной – Островского – пер. Островского в Ленинградском районе г. Калининграда | Проект границ | Заключение | |
| Проект межевания территории в границах улиц Таганрогской – Арсенальной – Б. Окружной 4-й – земельного участка с кадастровым номером 39:15:000000:3671 в Ленинградском районе города Калининграда | Публичные слушания назначены на 07.08.2018 в 17 часов по адресу: ул. Фрунзе, 71, каб.25а (административное здание) по проекту межевания территории в границах улиц Таганрогской – Арсенальной – Б. Окружной 4-й – земельного участка с кадастровым номером 39:15:000000:3671 в Ленинградском районе города Калининграда | Проект границ | Заключение | |
| Проект межевания территории в границах улиц Яблочной – Дзержинского – Елецкой – Запорожской – проектной улицы в Московском районе города Калининграда | Публичные слушания по проекту межевания территорий в границах улиц Яблочной – Дзержинского – Елецкой – Запорожской – проектной улицы в Московском районе города Калининграда состоятся 14 июня 2018 в 17 часов по адресу г. Калининград, ул. Октябрьская, 79, кабинет № 211 (административное здание). | Проект границ | Заключение | |
| Проект межевания территории в границах улиц Аэропортной – Орудийной в Ленинградском районе г. Калининград | Публичные слушания назначены на 28.03.2018 в 17-00 по адресу: ул. Фрунзе, 71, каб.25а (административное здание) по проекту межевания территории в границах улиц Аэропортной – Орудийной в Ленинградском районе г. Калининград | Проект границ | Заключение | |
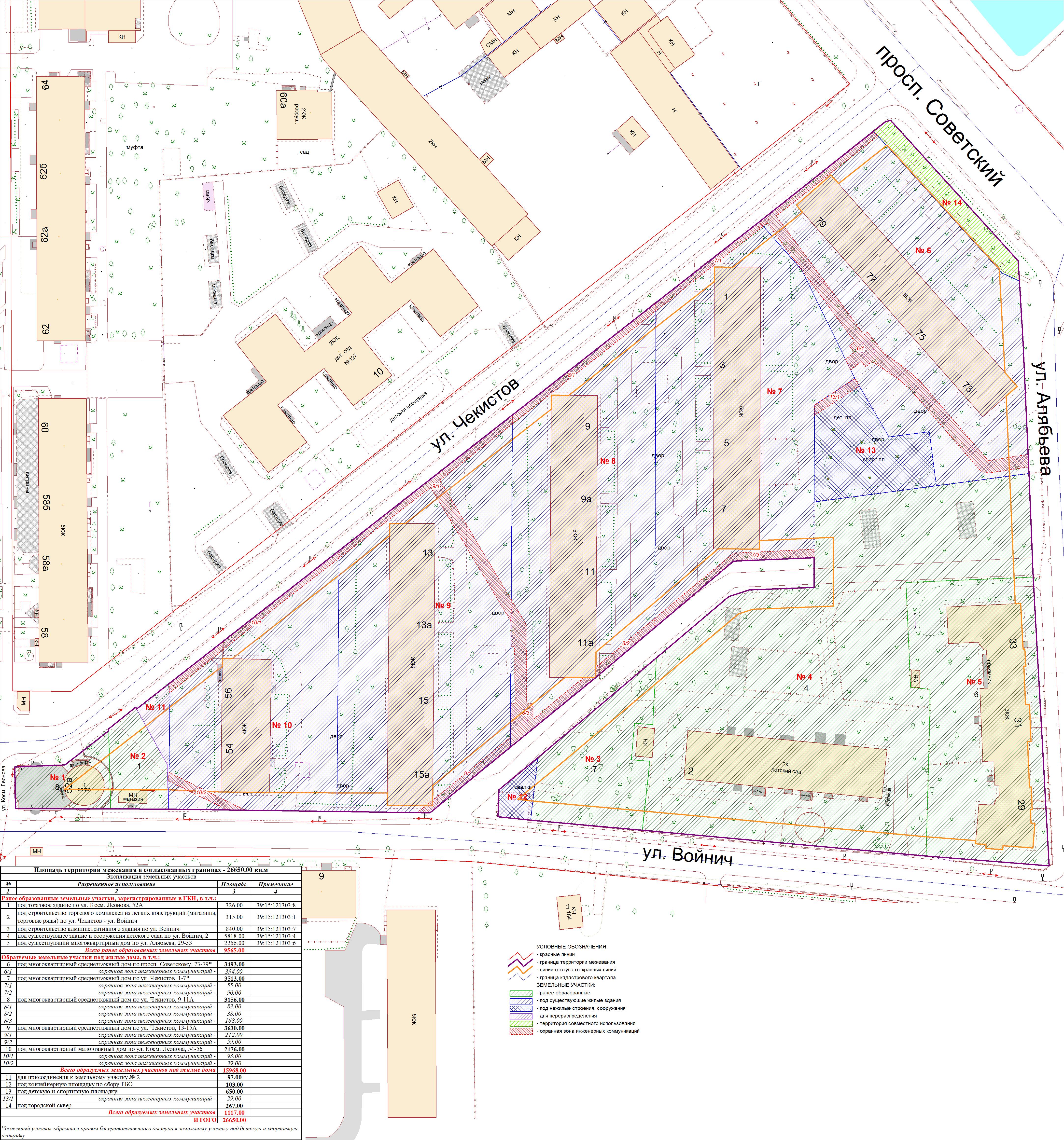
| Проект межевания территории в границах проспекта Советского-ул. Красной – Каштановой аллеи Центрального района г. Калининграда | Публичные слушания назначены на 22.03.2018 в 17-00 по адресу: ул. Чайковского, 52, каб. 206 (административное здание) по проекту межевания территории в границах проспекта Советского-ул. Красной – Каштановой аллеи Центрального района г. Калининграда | Проект границ | Заключение | |
| Проект межевания территории в границах проспекта Мира – улиц Красносельской – Добролюбова в Центральном районе города Калининграда | Публичные слушания по проекту межевания территории в границах проспекта Мира – улиц Красносельской – Добролюбова в Центральном районе города Калининграда назначены на 15.03.2018 в 17-00 по адресу: ул. Чайковского, 52 (административное здание) каб. 206 | Проект границ | Заключение | |
| Проект межевания территории в границах улиц Лесной - Беломорской - Стрелковой в Ленинградском районе г.Калининграда | Публичные слушания назначены на 17.01.2018 в 17-00 по адресу: ул.Фрунзе, 71, каб.25а (административное здание) по проекту межевания территории в границах улиц Лесной - Беломорской - Стрелковой в Ленинградском районе г.Калининграда | Проект границ | Заключение | |
| Проект межевания территорий в границах улицы Кирова – переулка Кирова Центрального района города Калининграда | Публичные слушания по проекту межевания территорий в границах улицы Кирова – переулка Кирова Центрального района города Калининграда состоятся 14 декабря 2017 в 17 часов по адресу г. Калининград, ул. Чайковского, 52, кабинет № 206 (административное здание). | Проект границ | Заключение | |
| Проект межевания территорий в границах улиц Тургенева - Гоголя - Тельмана - Л. Голикова в Ленинградском районе г. Калининграда | Публичные слушания назначены на 13.12.2017 в 17-00 по адресу: ул.Фрунзе, 71, каб.25а (административное здание) по проектам межевания территорий в границах улиц Тургенева - Гоголя - Тельмана - Л. Голикова в Ленинградском районе г. Калининграда | Проект границ | Заключение | |
| Проект межевания территории по ул. Печатной в г.Калининграде | Публичные слушания назначены на 20.11.2017 в 17-00 по адресу: ул. Октябрьская, 79, каб. 412 (административное здание) по проекту межевания территории по ул. Печатной в г.Калининграде | Проект границ | Заключение | |
| Проект межевания территории в границах ул. Менделеева - пер. Розовый - пер. Рябиновый - ул. Серж. Мишина - ул. Жуковского в г.Калининграде | Публичные слушания назначены на 22.11.2017 в 17.00 по адресу ул. Чайковского, 52, каб. 206 по проекту межевания территории в границах ул. Менделеева - пер. Розовый - пер. Рябиновый - ул. Серж. Мишина - ул. Жуковского в г.Калининграде | Проект границ | Заключение | |
| Проект межевания территории в границах улиц Лауреатной - Гурьева - Ломоносова - проектной улицы в Центральном районе города Калининграда | Публичные слушания по проекту межевания территории в границах улиц Лауреатной - Гурьева - Ломоносова - проектной улицы в Центральном районе города Калининграда назначены на 31 октября 2017 г. в 17 часов по адресу: г. Калининград, ул.Чайковского, 52, кабинет № 206 (административное здание) | Проект границ | Заключение | |
| Проект межевания территории в границах в границах красных линий ул. Славянская – ул. Макаренко – ул. Селегинская – ул. Механическая в г. Калининграде | Публичные слушания состоятся 14 сентября 2017 г. в 17 часов по адресу г. Калининград, ул. Чайковского, 52, кабинет № 206 (административное здание) по проекту межевания территории в границах в границах красных линий ул. Славянская – ул. Макаренко – ул. Селегинская – ул. Механическая в г. Калининграде | Проект границ | Заключение | |
| Проект межевания территории в границах красных линий ул. Гурьева – ул. Б. Окружная – 2-я – ул. Ломоносова – ул. Лауреатная в г. Калининграде | Публичные слушания состоятся 14 сентября 2017 г. в 17 часов по адресу г. Калининград, ул. Чайковского, 52, кабинет № 206 (административное здание) по проекту межевания территории в границах красных линий ул. Гурьева – ул. Б. Окружная – 2-я – ул. Ломоносова – ул. Лауреатная в г. Калининграде | Проект границ | Заключение | |
| Проект межевания территории в границах красных линий просп. Победы - пер. Лесная аллея в г. Калининграде | Публичные слушания назначены на 09 августа 2017 г. в 17 часов по адресу г. Калининград, ул. Чайковского, 52 каб. 206 (административное здание) по проекту межевания территории в границах красных линий просп. Победы - пер. Лесная аллея в г. Калининграде | Проект границ | Заключение | |
| Проект межевания территории по просп. Мира, 174 Б, 176 в г.Калининграде | Публичные слушания назначены на 09 августа 2017 г. в 17 часов по адресу г. Калининград, ул. Чайковского, 52 каб. 206 (административное здание) по проекту межевания территории по просп. Мира, 174 Б, 176 в г.Калининграде | Проект границ | Заключение | |
| Проект межевания территории в границах ул. А.Невского – ул. Ю. Смирнова в г. Калининграде | Проект границ | Заключение | ||
| Проект межевания территории в границах красных линий ул. Тургенева – ул. Тельмана – ж/д пути (Калининград Южн. – Советск, Зеленоградск, П. Курорт) в г. Калининграде | Проект границ | Заключение | ||
| Проект межевания территории в границах красных линий ул . А.Невского – ул. Краснокаменная в г. Калининграде | Проект границ | Заключение | ||
| Проект межевания территорий в границах красных линий ул. Двинская – ул. Севастопольская – пер. Севастопольский | Публичные слушания по проектам межевания территорий в границах красных линий ул. Двинская – ул. Севастопольская – пер. Севастопольский состоятся 7 июня в 17 час. 30 мин. по адресу г. Калининград, ул. Октябрьская, 79, каб. 211 (административное здание) | Проект границ | Заключение | |
| Проект межевания территорий в границах красных линий ул. Г. Тимофеевой – ул. Керченская – пер. Г. Тимофеевой 1-й | Публичные слушания по проектам межевания территорий в границах красных линий ул. Г. Тимофеевой – ул. Керченская – пер. Г. Тимофеевой 1-й состоятся 7 июня в 17 час. 30 мин. по адресу г. Калининград, ул. Октябрьская, 79, каб. 211 (административное здание) | Проект границ | Заключение | |
| Проект межевания территории в границах красных линий ул.Арзамасская - пер. Сызранский - ул. Казахская - пер. Арзамасский в г. Калининграде | Публичные слушания назначены на 06.06.2017 в 17-00 по адресу: ул.Чайковского, 52, каб. 206 (административное здание) по проекту межевания территории ул.Арзамасская - пер. Сызранский - ул. Казахская - пер. Арзамасский в г. Калининграде | Проект границ | Заключение | |
| Проект межевания территории по ул. Адм. Макарова, 16, 18, 20 в г. Калининграде | Публичные слушания назначены на 25.04.2017 в 17-00 по адресу: ул. Фрунзе, 71, каб.25а (административное здание) по проекту межевания территории по ул. Адм. Макарова, 16, 18, 20 в г. Калининграде | Проект границ | Заключение | |
| Проект межевания территории в границах красных линий ул. Бакинская- ул. Шуйская 1-я – ул. Тульская – ул. Шуйская 2-я в г. Калининграде | Публичные слушания назначены на 25.04.2017 в 17-00 по адресу: ул. Фрунзе, 71, каб.25 а (административное здание) по проекту межевания территории в границах красных линий ул. Бакинская- ул. Шуйская 1-я – ул. Тульская – ул. Шуйская 2-я в г. Калининграде | Проект границ | Заключение | |
| Проект межевания территории в границах ул. Ю. Гагарина – береговая полоса руч. Литовского в г. Калининграде | Публичные слушания назначены на 25.04.2017 в 17-00 по адресу: ул. Фрунзе, 71, каб.25 а (административное здание) по проекту межевания территории в границах ул. Ю. Гагарина – береговая полоса руч. Литовского в г. Калининграде | Проект границ | Заключение | |
| Проект межевания территории в границах красных линий ул. Херсонская – ул. Ломоносова – ул. Соколиная – ул. Кировоградская в г.Калининграде | Публичные слушания назначены на 19.04.2017 в 17-00 по адресу: ул. Чайковского, 52, кабинет № 206 (административное здание) по проекту межевания территории в границах красных линий ул. Херсонская – ул. Ломоносова – ул. Соколиная – ул. Кировоградская | Проект границ | Заключение Изменения к заключению | |
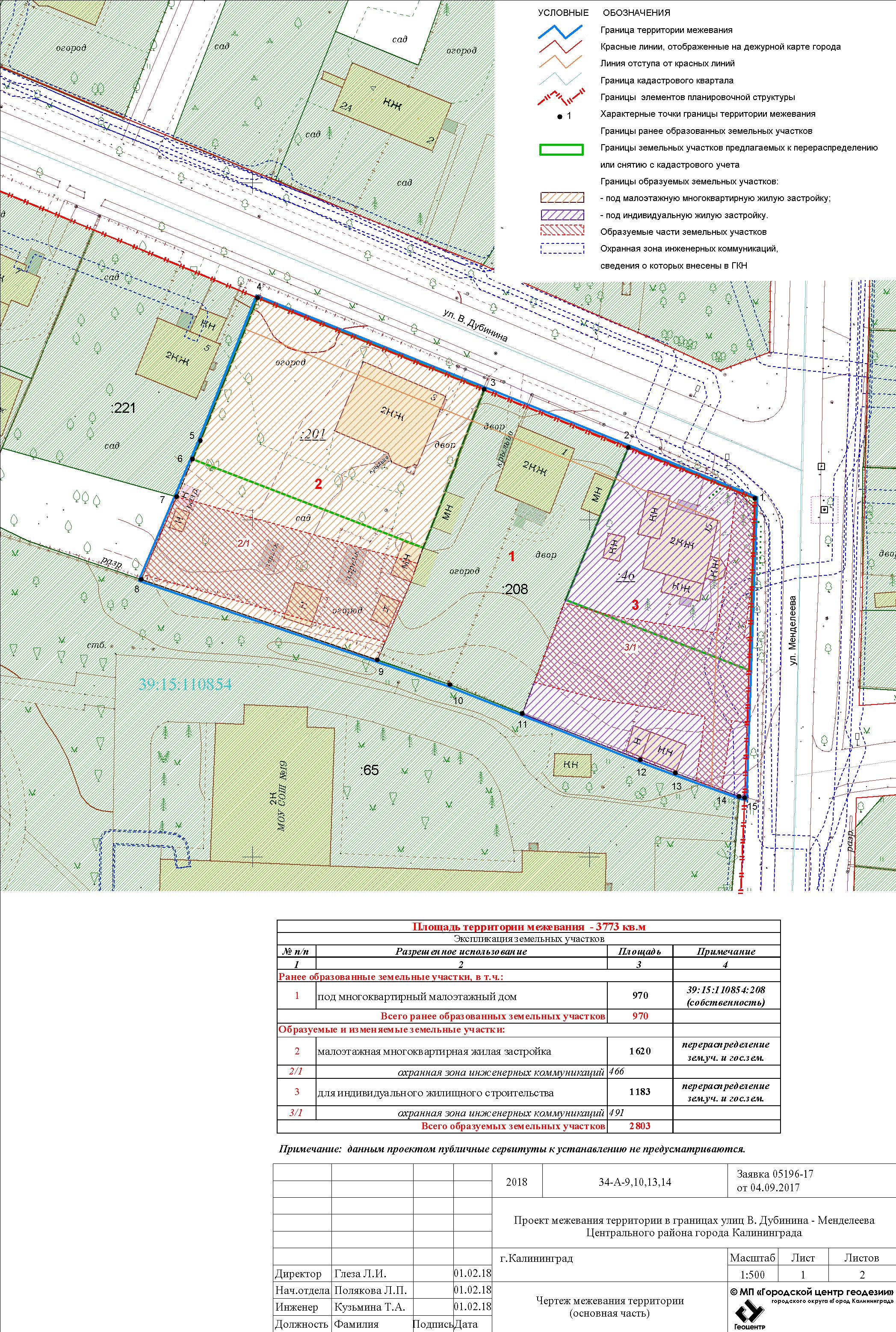
| Проект межевания территории в границах: западная граница земельных участков по адресам: ул. В. Дубинина, 10, ул. Цирковая, 11Б, ул. Цирковая, 11 – ул. Цирковая – ул. Менделеева – ул. В. Дубинина в г. Калининграде. | Публичные слушания назначены на 19.04.2017 в 17-00 по адресу: ул. Чайковского, 52, кабинет № 206 (административное здание) по проекту межевания территории в границах: западная граница земельных участков по адресам: ул. В. Дубинина, 10, ул. Цирковая, 11Б, ул. Цирковая, 11 – ул. Цирковая – ул. Менделеева – ул. В. Дубинина в г. Калининграде. | Проект границ | Заключение | |
| Проект межевания территорий в границах красных линий по ул. Эльблонгской, 16, 18, 18А в г. Калининграде | Публичные слушания по проектам межевания территорий в границах красных линий по ул. Эльблонгской, 16, 18, 18А состоятся 12.04.2017 в 17 час. 30 мин. по адресу г. Калининград, ул. Октябрьская, 79, каб. 211 (административное здание). | Проект границ | Заключение | |
| Проект межевания территорий в границах красных линий ул. Г. Тимофеевой – пер. 1-й Камский – железная дорога – ул. Камская в г. Калининграде | Публичные слушания по проектам межевания территорий в границах красных линий ул. Г. Тимофеевой – пер. 1-й Камский – железная дорога – ул. Камская, состоятся 12.04.2017 в 17 час. 30 мин. по адресу г. Калининград, ул. Октябрьская, 79, каб. 211 (административное здание). | Проект границ | Заключение | |
| Проект межевания территории в границах красных линий ул. Белорусская – ул. Гравийная – ул. Херсонская – ул. Полецкого в г. Калининграде | Публичные слушания назначены на 06.04.2017 в 17-00 по адресу: ул. Чайковского, 52, каб. 206 по проекту межевания территории в границах красных линий ул. Белорусская – ул. Гравийная – ул. Херсонская – ул. Полецкого в г. Калининграде | Проект границ | Заключение Дополнение к заключению | |
| Проект межевания территории в границах красных линий ул. Жиленкова – р. Голубая в г. Калининграде | Публичные слушания назначены на 06.04.2017 в 17-00 по адресу: ул. Чайковского, 52, каб. 206 по проекту межевания территории в границах красных линий ул. Жиленкова – р. Голубая в г. Калининграде | Проект границ | ||
| Проект межевания территории в границах красных линий просп. Советский – ул. Габайдулина – шос. Люблинское – граница береговой полосы р. Голубой в г. Калининграде | Публичные слушания назначены на 06.04.2017 в 17-00 по адресу: ул. Чайковского, 52, каб. 206 по проекту межевания территории в границах красных линий просп. Советский – ул. Габайдулина – шос. Люблинское – граница береговой полосы р. Голубой в г. Калининграде | Проект границ | Заключение | |
| Проект межевания территории в границах красных линий ул. Баженова – ул. Тульская – ул. Ялтинская – ул. Бакинская в г. Калининграде | Публичные слушания назначены на 15.03.2017 в 17-00 по адресу: ул. Фрунзе, 71, каб.25а (административное здание) по проекту межевания территории в границах красных линий ул. Баженова – ул. Тульская – ул. Ялтинская – ул. Бакинская в г. Калининграде | Проект границ | Заключение | |
| Проект межевания территории в границах красных линий ул. Артиллерийская – перспективные проезды в г. Калининграде» | Публичные слушания назначены на 15.03.2017 в 17-00 по адресу: ул. Фрунзе, 71, каб.25а (административное здание) по проекту межевания территории в границах красных линий ул. Артиллерийская – перспективные проезды в г. Калининграде». | Проект границ | Заключение | |
| Проект межевания территории в границах красных линий ул. А. Невского – проектная улица в г. Калининграде | Публичные слушания назначены на 15.03.2017 в 17-00 по адресу: ул. Фрунзе, 71, каб.25а (административное здание) по проекту межевания территории в границах красных линий ул. А. Невского – проектная улица в г. Калининграде | Проект границ | Заключение | |
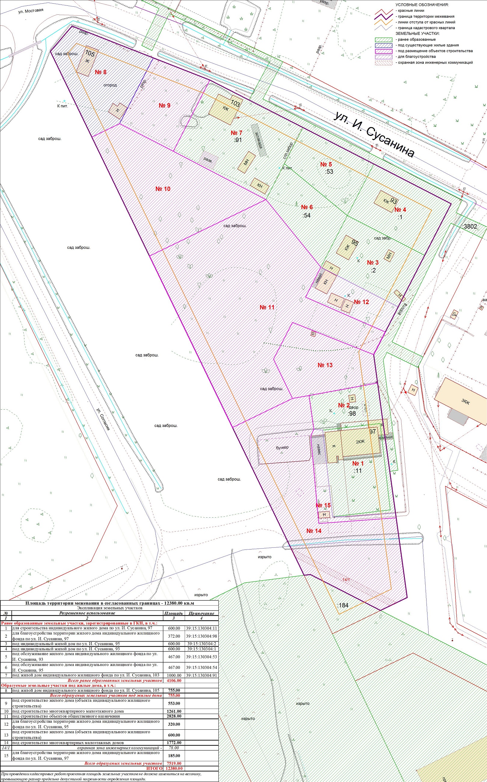
| Проект межевания территории в границах красных линий ул. Поселковая – ул. Георгиновая – ул. И. Сусанина – ул. Прицельная в г. Калининграде | Публичные слушания назначены на 15.03.2017 в 17-00 по адресу: ул. Фрунзе, 71, каб.25а (административное здание) по проекту межевания территории в границах красных линий ул. Поселковая – ул. Георгиновая – ул. И. Сусанина – ул. Прицельная в г. Калининграде | Проект границ | Заключение | |
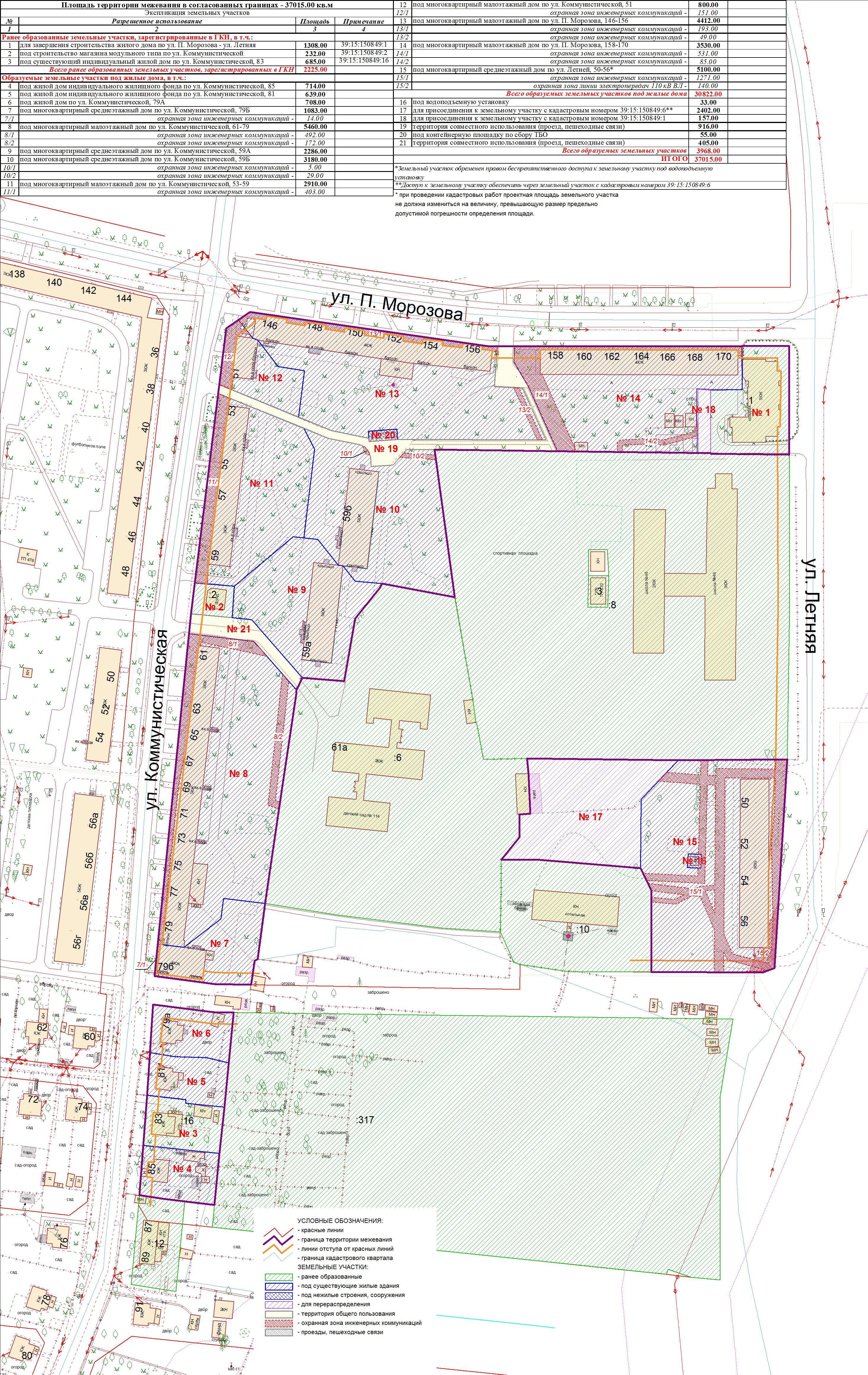
| Проект межевания территории в границах ул. Коммунистическая – ул. Летняя – ул. П. Морозова в г. Калининграде | Публичные слушания по проекту межевания по проекту межевания территории в границах ул. Коммунистическая – ул. Летняя – ул. П. Морозова в г. Калининграде состоятся 01 марта 2017 г. в 17 час. 30 мин. по адресу г. Калининград, ул. Октябрьская, 79, каб. 211 (административное здание). | Проект границ | Заключение | |
| Проект межевания территории в границах красных линий ул. Горького - ул. Б. Окружная - территория военного городка в г. Калининграде | Публичные слушания по проекту межевания территории в границах красных линий ул. Горького - ул. Б. Окружная - территория военного городкав г. Калининграде состоятся 09 февраля 2017 года в 17.00 по адресу: г.Калининград, ул.Фрунзе, 71, каб.25а | Проект границ | Заключение | |
| Проект межевания территории в границах красных линий ул. Старосаперная - ул. Староорудийная - ул. Краснокаменная в г. Калининграде | Публичные слушания по проекту межевания территории в границах красных линий ул. Старосаперная - ул. Староорудийная - ул. Краснокаменная в г. Калининграде состоятся 09 февраля 2017 года в 17.00 по адресу: г.Калининград, ул.Фрунзе, 71, каб.25а | Проект границ | Заключение | |
| Проект межевания территории в границах красных линий ул. Поселковая - ул. Черноморская - ул. Георгиновая - ул. И. Сусанина в г. Калининграде | Публичные слушания по проекту межевания территории в границах красных линий ул. Поселковая - ул. Черноморская - ул. Георгиновая - ул. И. Сусанина в г. Калининграде состоятся 09 февраля 2017 года в 17.00 по адресу: г.Калининград, ул.Фрунзе, 71, каб.25а | Проект границ | Заключение | |
| Проект межевания территории в границах красных линий ул. Кировоградская в г. Калининграде | Публичные слушания по проекту межевания территории в границах красных линий ул. Кировоградская в г. Калининграде состоятся 08 февраля 2017 года в 17.30 по адресу: г.Калининград, ул.Чайковского, 52, каб.206 | Проект границ | Заключение | |
| Проект межевания территории в границах красных линий ул. Коломенская - ул. Велосипедная дорога - проектируемый проезд в г. Калининграде | Публичные слушания по проекту межевания территории в границах красных линий ул. Коломенская - ул. Велосипедная дорога - проектируемый проезд в г. Калининграде состоятся 08 февраля 2017 года в 17.30 по адресу: г.Калининград, ул.Чайковского, 52, каб.206 | Проект границ | Заключение | |
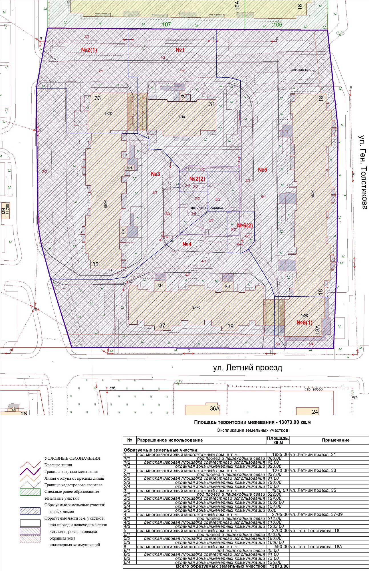
| Проект межевания территории в границах красных линий ул. Ген. Толстикова -ул. Автомобильная - ул. Летняя в г. Калининграде | Публичные слушания по проекту межевания территории в границах красных линий ул. Ген. Толстикова -ул. Автомобильная - ул. Летняя в г. Калининграде состоятся 22 декабря 2016 г. в 17.30 по адресу г. Калининград, ул. Октябрьская, 79, каб 211 (административное здание) | Проект границ | Заключение | |
| Проект межевания территории в границах красных линий ул. Сурикова - ул. Букетная - ул. Артиллерийская - ул. Пирогова | Публичные слушания по проекту межевания территории в границах красных линий ул. Сурикова - ул. Букетная - ул. Артиллерийская - ул. Пирогова состоятся 22 декабря 2016 г. в 17.00 по адресу г. Калининград, ул. Фрунзе, 71, кабинет №25а (административное здание) | Проект границ | Заключение | |
| Проект межевания территории в границах красных линий ул. Малоярославская - проектируемый проезд - водный объект | Публичные слушания по проекту межевания территории в границах красных линий ул. Малоярославская - проектируемый проезд - водный объект состоятся 22 декабря 2016 г. в 17.00 по адресу г. Калининград, ул. Фрунзе, 71, кабинет №25а (административное здание) | Проект границ | Заключение | |
| Проект межевания территории в границах красных линий ул. М. Цветаевой - ул. И. Франко - ул. Б. Пастернака - ул. М. Волошина в г. Калининграде | Публичные слушания по проекту межевания территории в границах красных линий ул. М. Цветаевой - ул. И. Франко - ул. Б. Пастернака - ул. М. Волошина в г. Калининграде состоятся 22 декабря 2016 г. в 17.00 по адресу г. Калининград, ул. Фрунзе, 71, кабинет №25а (административное здание) | Проект границ | Заключение | |
| Проект межевания территории в границах пер. Войнова - ул. Дзержинского - береговая полоса р. Лесной в г. Калининграде | Публичные слушания по проекту межевания территории в границах пер. Войнова - ул. Дзержинского - береговая полоса р. Лесной в г. Калининграде состоятся 9 декабря 2016 г. в 17 часов по адресу г. Калининград, ул. Октябрьская, 79, каб. 211 (административное здание) | Проект границ | ||
| Проект межевания территории в границах ул. Дзержинского - проектируемый проезд в г. Калининграде | Публичные слушания по проекту межевания территории в границах ул. Дзержинского - проектируемый проезд в г. Калининграде состоятся 9 декабря 2016 г. в 17 часов по адресу г. Калининград, ул. Октябрьская, 79, каб. 211 (административное здание) | Проект границ | ||
| Проект межевания территории в границах красных линий ул. Летная - ул. Аллея смелых | Публичные слушания по проекту межевания территории в границах красных линий ул. Летная - ул. Аллея смелых состоятся 9 декабря 2016 г. в 17 часов по адресу г. Калининград, ул. Октябрьская, 79, каб. 211 (административное здание) | Проект границ | ||
| Проект межевания территории в границах ул. Б. Окружная - ул. Печатная в г. Калининграде | Публичные слушания по проекту межевания территории в границах ул. Калачева - ул. Гавриленко - ул. Габайдулина - граница водного объекта состоятся 9 декабря 2016 г. в 17 часов по адресу г. Калининград, ул. Октябрьская, 79, каб. 211 (административное здание) | Проект границ | Заключение | |
| Проект межевания территории в границах ул. Калачева - ул. Гавриленко - ул. Габайдулина - граница водного объекта | Публичные слушания по проекту межевания территории в границах ул. Калачева - ул. Гавриленко - ул. Габайдулина - граница водного объекта состоятся 12 декабря 2016 г. в 17 часов по адресу г. Калининград, ул. Чайковского, 52, кабинет №206 (административное здание) | Проект границ | Заключение | |
| Проект межевания территории в границах красных линий ул. Дм. Донского - ул. Горная - ж/д пути (Калининград Южн. - Советск, Зеленоградск, П. Курорт) в г. Калининграде | Публичные слушания по проекту межевания территории в границах красных линий ул. Дм. Донского - ул. Горная - ж/д пути (Калининград Южн. - Советск, Зеленоградск, П. Курорт) в г. Калининграде состоятся 12 декабря 2016 г. в 17 часов по адресу г. Калининград, ул. Чайковского, 52, кабинет №206 (административное здание) | Проект границ | Заключение | |
| Проект межевания территории в границах красных линий ул. Соколиная - ул. Ломоносова - ул. Б. Окружная 2-я в г. Калининграде | Публичные слушания по проекту межевания территории в границах красных линий ул. Соколиная - ул. Ломоносова - ул. Б. Окружная 2-я в г. Калининграде состоятся 12 декабря 2016 г. в 17 часов по адресу г. Калининград, ул. Чайковского, 52, кабинет №206 (административное здание) | Проект границ | Заключение | |
| Проект межевания территории в границах красных линий ул. Полецкого - ул. Гурьева - ул. Белостокская - гаражное общество "Сатурн" в Центральном районе г. Калининграда | Публичные слушания по проекту межевания территории в границах красных линий ул. Полецкого - ул. Гурьева - ул. Белостокская -гаражное общество "Сатурн" в Центральном районе г. Калининграда состоятся 12 декабря 2016 г. в 17 часов по адресу г. Калининград, ул. Чайковского, 52, кабинет №206 (административное здание) | Проект границ | Заключение | |
| Проект межевания территории по ул. М. Зощенко в г. Калининграде | Публичные слушания по проекту межевания территории по ул. М. Зощенко в г. Калининграде состоятся 14 декабря 2016 г. в 17 часов по адресу г. Калининград, ул. Фрунзе, 71, кабинет №25а (административное здание | Проект границ Проект границ | Заключение | |
| Проект межевания территории в границах красных линий ул. Грига - пер. Черепичный - ул. Черепичная - наб. Адм. Трибуца | Публичные слушания по проекту межевания территории в границах красных линий ул. Грига - пер. Черепичный - ул. Черепичная - наб. Адм. Трибуца состоятся 14 декабря 2016 г. в 17.00 по адресу: г. Калининград, ул. Фрунзе, 71 (административное здание), каб. 25а | Проект границ | Заключение | |
| Проект межевания территории в границах красных линий ул. Сурикова - ул. Старокаменная - пер. Старокаменный | Публичные слушания по проекту межевания территории в границах красных линий ул. Сурикова - ул. Старокаменная - пер. Старокаменный состоятся 14 декабря 2016 г. в 17.00 по адресу: г. Калининград, ул. Фрунзе, 71 (административное здание), каб. 25а | Проект границ | Заключение | |
| Проект межевания территории в границах красных линий ул. Арсенальная - пер. Арсенальный | Публичные слушания по проекту межевания территории в границах красных линий ул. Арсенальная - пер. Арсенальный состоятся 14 декабря 2016 г. в 17.00 по адресу: г. Калининград, ул. Фрунзе, 71 (административное здание), каб. 25а | Проект границ | Заключение | |
| Проект межевания территории в границах ул. Парусная - ул. Новый вал - ул. Казанская в г. Калининграде | Публичные слушания по проекту межевания территории в границах ул. Парусная - ул. Новый вал - ул. Казанская в г. Калининграде состоятся состоятся 23 ноября 2016 г. в 17.00 по адресу г. Калининград, ул. Октябрьская, 79, каб. 211 (административное здание) | Проект границ | Заключение | |
| Проект межевания территории в границах красных линий ул. Киевская - ул. Березовая - железная дорога в Московском районе г. Калининграда | Публичные слушания по проекту межевания территории в границах красных линий ул. Киевская - ул. Березовая - железная дорога в Московском районе г. Калининграда состоятся 23 ноября 2016 г. в 17.00 по адресу г. Калининград, ул. Октябрьская, 79, каб. 211 (административное здание) | Проект границ | Заключение | |
| Проект межевания территории в границах красных линий ул. Л. Толстого - ул. Лескова - ул. Некрасова - граница береговой полосы водных объектов (ручья Северного, пруда Верхнего) в г. Калининграде | Публичные слушания по проекту межевания территории в границах красных линий ул. Л. Толстого - ул. Лескова - ул. Некрасова - граница береговой полосы водных объектов (ручья Северного, пруда Верхнего) в г. Калининграде состоятся 29 ноября 2016 г. в 17.30 по адресу: г. Калининград, ул. Фрунзе, 71 (административное здание), каб. 25а | Проект границ | Заключение | |
| Проект межевания территории в границах красных линий ул. Тельмана - ул. Некрасова в г. Калининграде | Публичные слушания по проекту межевания территории в границах красных линий ул. Тельмана - ул. Некрасова в г. Калининграде состоятся 29 ноября 2016 г. в 17.30 по адресу: г. Калининград, ул. Фрунзе, 71 (административное здание), каб. 25а | Проект границ | Заключение | |
| Проект межевания территории в границах красных линий ул. П. Флоренского - ул. А. Болотова - пер. П. Флоренского в г. Калининграде | Публичные слушания по проекту межевания территории в границах красных линий ул. П. Флоренского - ул. А. Болотова - пер. П. Флоренского в г. Калининграде состоятся 16 ноября 2016 г. в 17.00 по адресу г. Калининград, ул. Чайковского, 52 (административное здание), каб. 206 | Проект границ | Заключение | |
| Проект межевания территории в границах красных линий ул. Карташева - пер. Бодайбинский в г. Калининграде | Публичные слушания по проекту межевания территории в границах красных линий ул. Карташева - пер. Бодайбинский в г. Калининграде состоятся 16 ноября 2016 г. в 17.00 по адресу г. Калининград, ул. Чайковского, 52 (административное здание), каб. 206 | Проект границ | Заключение | |
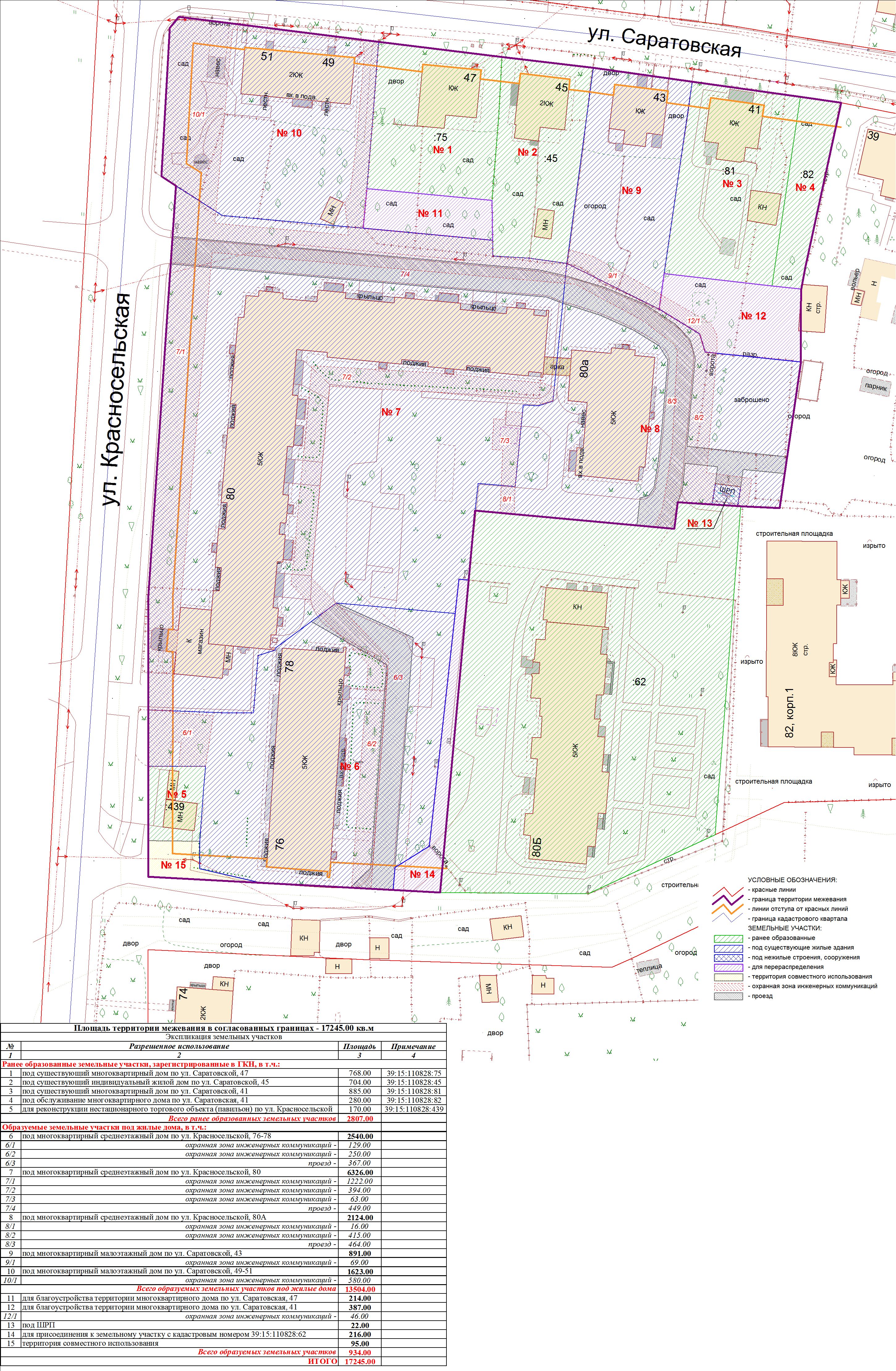
| Проект межевания территории в границах ул. Красносельская - ул. Саратовская - ул. Воздушная - просп. Мира в г. Калининграде | Публичные слушания по проекту межевания территории в границах ул. Красносельская - ул. Саратовская - ул. Воздушная - просп. Мира в г. Калининграде состоятся 16 ноября 2016 г. в 17.00 по адресу г. Калининград, ул. Чайковского, 52 (административное здание), каб. 206 | Проект границ | Заключение | |
| Проект межевания территории в границах красных линий ул. Ген.Толстикова - ул. Батальная - пер. 2-й Альпийский - пер. 1-й Альпийский в г. Калининграде | Публичные слушания по проекту межевания территории в границах красных линий ул. Ген.Толстикова - ул. Батальная - пер. 2-й Альпийский - пер. 1-й Альпийский в г. Калининграде состоятся 14 ноября 2016 г., в 17.30 по адресу г. Калининград, ул. Октябрьская, 79, каб. 211 (административное здание) | Проект границ | Заключение | |
| Проект межевания территории в границах красных линий ул. Г. Тимофеевой - пер. Г. Тимофеевой 1-й в г. Калининграде | Публичные слушания по проекту межевания территории в границах красных линий ул. Г. Тимофеевой - пер. Г. Тимофеевой 1-й в г. Калининграде состоятся 14 ноября 2016 г., в 17.30 по адресу г. Калининград, ул. Октябрьская, 79, каб. 211 (административное здание) | Проект границ | Заключение | |
| Проект межевания территории в границах красных линий ул. Орудийная - береговая полоса ручья Гагаринского в г. Калининграде | Публичные слушания по проекту межевания территории в границах красных линий ул. Орудийная - береговая полоса ручья Гагаринского в г. Калининграде состоятся 19.10.2016 г. в 17.30 по адресу г. Калининград, ул. Фрунзе, 71, кабинет №25а (административное здание) | Проект границ | Заключение | |
| Проект межевания территории в границах красных линий ул. Урицкого - ул. Карташева - ул. Каблукова - пер. Джамбула в г. Калининграде | Публичные слушания по проекту межевания территории в границах красных линий ул. Урицкого - ул. Карташева - ул. Каблукова - пер. Джамбула в г. Калининграде состоятся 05 октября 2016 г. в 17.00 по адресу: г. Калининград, ул. Чайковского, 52 (административное здание), каб. 206 | Проект границ | Заключение | |
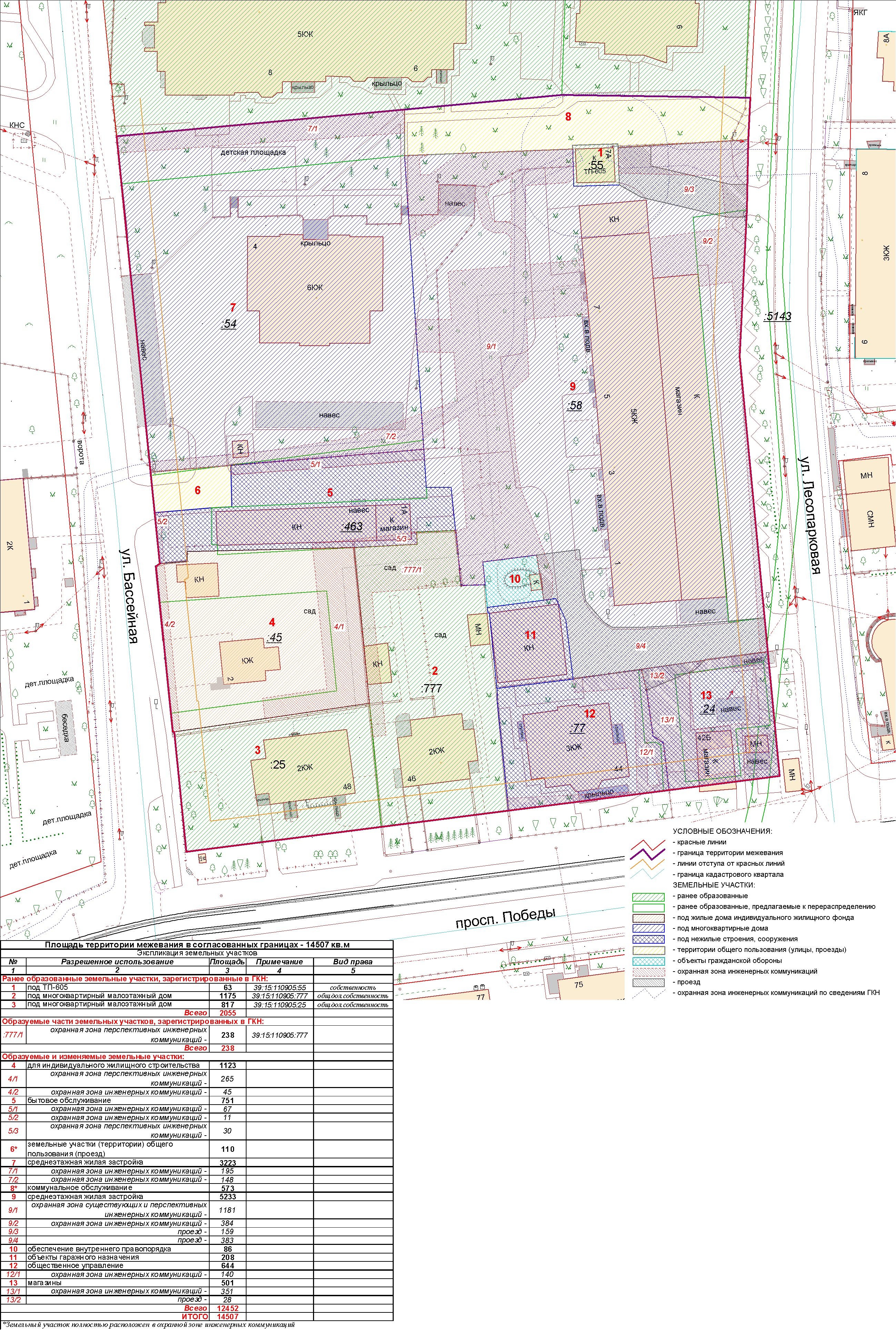
| Проект межевания территории в границах красных линий ул. Бассейная - просп. Победы - ул. Лесопарковая - пер. Лесопарковый в г. Калининграде | Публичные слушания по проекту межевания территории в границах красных линий ул. Бассейная - просп. Победы - ул. Лесопарковая - пер. Лесопарковый в г. Калининграде состоятся 05 октября 2016 г. в 17.00 по адресу: г. Калининград, ул. Чайковского, 52 (административное здание), каб. 206 | Проект границ | Заключение | |
| Проект межевания территории в границах красных линий ул. Жуковского - ул. Менделеева - ул. Белинского - ул. Радистов в г. Калининграде | Публичные слушания по проекту межевания территории в границах красных линий ул. Жуковского - ул. Менделеева - ул. Белинского - ул. Радистов в г. Калининграде состоятся 05 октября 2016 г. в 17.00 по адресу: г. Калининград, ул. Чайковского, 52 (административное здание), каб. 206 | Проект границ | Заключение | |
| Проект межевания территории в границах красных линий ул. Пугачева - ул. С. Разина - ул. Красная в Центральном районе г. Калининграда | Публичные слушания по проекту межевания территории в границах красных линий ул. Пугачева - ул. С. Разина - ул. Красная в Центральном районе г. Калининграда состоятся 05 октября 2016 г. в 17.00 по адресу: г. Калининград, ул. Чайковского, 52 (административное здание), каб. 206 | Проект границ | Заключение | |
| Проект межевания территории в границах красных линий ул. Галактическая - ул. Тенистая аллея - ул. Брусничная в г. Калининграде | Публичные слушания по проекту межевания территории в границах красных линий ул. Галактическая - ул. Тенистая аллея - ул. Брусничная в г. Калининграде состоятся 17.10.2016 г. в 17.30 по адресу: г. Калининград, ул. Чайковского, 52, каб. 206 (административное здание) | Проект границ | Заключение | |
| Проект межевания территории в границах красных линий ул. Северная - проектируемый проезд в г. Калининграде | Публичные слушания по проекту межевания территории в границах красных линий ул. Северная - проектируемый проезд в г. Калининграде состоятся 21 сентября 2016 г. в 17.00 по адресу: г. Калининград, ул. Фрунзе, 71, кабинет №25а (административное здание) | Проект границ | Заключение | |
| Проект межевания территории в границах красных линий |ул. А. Невского, 214, 216, 218, 222 в г. Калининграде | Публичные слушания по проекту межевания территории в границах красных линий |ул. А. Невского, 214, 216, 218, 222 в г. Калининграде состоятся 21 сентября 2016 г. в 17.00 по адресу: г. Калининград, ул. Фрунзе, 71, кабинет №25а (административное здание) | Проект границ | Заключение | |
| Проект межевания территории в границах красных линий |ул. Р. Люксембург - пер. Р. Люксембург в г. Калининграде | Публичные слушания по проекту межевания территории в границах красных линий |ул. Р. Люксембург - пер. Р. Люксембург в г. Калининграде состоятся 21 сентября 2016 г. в 17.00 по адресу: г. Калининград, ул. Фрунзе, 71, кабинет №25а (административное здание) | Проект границ | Заключение | |
| Проект межевания территории в границах красных линий ул. Черноморская - ул. Поселковая - ул. Билибина - ул. И. Сусанина в Ленинградском районе г. Калининграда | Публичные слушания по проекту межевания территории в границах красных линий ул. Черноморская - ул. Поселковая - ул. Билибина - ул. И. Сусанина в Ленинградском районе г. Калининграда состоятся 21 сентября 2016 г. в 17.00 по адресу: г. Калининград, ул. Фрунзе, 71, кабинет №25а (административное здание) | Проект границ | Заключение | |
| Проект межевания территории в границах красных линий |ул. Броненосная - ул. Осетинская - ул. Бердянская - пер. Броненосный | Публичные слушания по проекту межевания территории в границах красных линий |ул. Броненосная - ул. Осетинская - ул. Бердянская - пер. Броненосный состоятся 05 сентября 2016 г. в 17.00 по адресу: г. Калининград, ул. Чайковского, 52 (административное здание, каб. 206) | Проект границ | Заключение | |
| Проект межевания территории в границах красных линий ул.Лейтенанта Яналова - ул.Комсомольская - ул.Чернышевского - ул.Туркменская в городе Калининграде | Публичные слушания по проекту межевания территории в границах красных линий ул.Лейтенанта Яналова - ул.Комсомольская - ул.Чернышевского - ул.Туркменская в городе Калининграде состоятся 05 сентября 2016 г. в 17.00 по адресу: г. Калининград, ул. Чайковского, 52 (административное здание, каб. 206) | Проект границ | Заключение | |
| Проект межевания территории в границах красных линий ул. Енисейская - ул. Каштановая аллея - пер. Коммунальный - пер. Енисейский в Центральном районе г. Калининграда | Публичные слушания по проекту межевания территории в границах красных линий ул. Енисейская - ул. Каштановая аллея - пер. Коммунальный - пер. Енисейский в Центральном районе г. Калининграда состоятся 05 сентября 2016 г. в 17.00 по адресу: г. Калининград, ул. Чайковского, 52 (административное здание, каб. 206) | Проект границ | Заключение | |
| Проект межевания территории в границах красных линий ул. Тенистая аллея - ул. Брусничная - ул. Млечная в г. Калининграде | Публичные слушания по проекту межевания территории в границах красных линий ул. Тенистая аллея - ул. Брусничная - ул. Млечная в г. Калининграде состоятся 05 сентября 2016 г. в 17.00 по адресу: г. Калининград, ул. Чайковского, 52 (административное здание, каб. 206) | Проект границ | Заключение | |
| Проект межевания территории в границах красных линий ул. Тихорецкая - ул. Киевская в г. Калининграде | Публичные слушания по проекту межевания территории в границах красных линий ул. Тихорецкая - ул. Киевская в г. Калининграде состоятся 06 сентября 2016 г. в 17.30 по адресу г. Калининград, ул. Октябрьская, д. 79, каб. 211 (административное здание) | Проект границ | Заключение | |
| Проект межевания территории в границах красных линий ул. Билибина - ул. Поселковая - ул. Пулеметная - ул. Минометная в г. Калининграде | Публичные слушания по проекту межевания территории в границах красных линий ул. Билибина - ул. Поселковая - ул. Пулеметная - ул. Минометная в г. Калининграде состоятся 07.09.2016 г. в 17.00 по адресу г. Калининград, ул. Фрунзе, 71, кабинет №25а (административное здание) | Проект границ | Заключение | |
| Проект межевания территории в границах красных линий ул. Розы Люксембург - ул. Фурманова в г. Калининграде | Публичные слушания по проекту межевания территории в границах красных линий ул. Розы Люксембург - ул. Фурманова в г. Калининграде состоятся 07.09.2016 г. в 17.00 по адресу г. Калининград, ул. Фрунзе, 71, кабинет №25а (административное здание) | Проект границ | Заключение | |
| Проект межевания территории в границах красных линий ул. Киевская - ул. Беговая - проезд - граница земельного участка ул. Киевская - ул. Беговая - проезд - граница земельного участка с кадастровым номером 39:15:150830:780 | Публичные слушания по проекту межевания территории в границах красных линий ул. Киевская - ул. Беговая - проезд - граница земельного участка ул. Киевская - ул. Беговая - проезд - граница земельного участка с кадастровым номером 39:15:150830:780 состоятся 30 августа 2016 г. в 17.00 по адресу г. Калининград, ул. Октябрьская, 79, каб. 211 (административное здание) | Проект границ | Заключение | |
| Проект межевания территории по ул. Аллея смелых (дома №№ 154, 156, 160) | Публичные слушания по проекту межевания территории по ул. Аллея смелых (дома №№ 154, 156, 160) состоятся 30 августа 2016 г. в 17.00 по адресу г. Калининград, ул. Октябрьская, 79, каб. 211 (административное здание) | Проект границ | Заключение | |
| Проект межевания территории в границах красных линий ул. А. Невского - ул. Тельмана - руч. Северный | Публичные слушания по проекту межевания территории в границах красных линий ул. А. Невского - ул. Тельмана - руч. Северный состоятся 17 августа 2016 г., в 17.00 по адресу: г. Калининград, ул. Фрунзе, 71 (административное здание, каб. 25а) | Проект границ | Заключение | |
| Проект межевания территории в границах красных линий просп. Московский - ул. Ботаническая - территория МОУ СОШ № 23 в г. Калининграде | Публичные слушания по проекту межевания территории в границах красных линий просп. Московский - ул. Ботаническая - территория МОУ СОШ № 23 в г. Калининграде состоятся 17 августа 2016 г., в 17.00 по адресу: г. Калининград, ул. Фрунзе, 71 (административное здание, каб. 25а) | Проект границ | Заключение | |
| Проект межевания территории в границах красных линий ул. М. Зощенко - ул. М. Булгакова - граница береговой полосы ручья Северного в г. Калининграде | Публичные слушания по проекту межевания территории в границах красных линий ул. М. Зощенко - ул. М. Булгакова - граница береговой полосы ручья Северного в г. Калининграде состоятся 17 августа 2016 г., в 17.00 по адресу: г. Калининград, ул. Фрунзе, 71 (административное здание, каб. 25а) | Проект границ | Заключение | |
| Проект межевания территории в границах красных линий ул.Горького - ул.Ген.лейт.Озерова - ул.Калязинская - граница береговой полосы | Публичные слушания по проекту межевания территории в границах красных линий ул.Горького - ул.Ген.лейт.Озерова - ул.Калязинская - граница береговой полосы состоятся 17 августа 2016 г., в 17.00 по адресу: г. Калининград, ул. Фрунзе, 71 (административное здание, каб. 25а) | Проект границ | Заключение | |
| Проект межевания территории в границах красных линий ул. Казанская - ул. Новый вал - ул. Багратиона | Публичные слушания по проекту межевания территории в границах красных линий ул. Казанская - ул. Новый вал - ул. Багратиона состоятся 09.08.2016 г. в 17.00 по адресу г. Калининград, ул. Октябрьская, д.79, каб. 211 (административное здание) | Проект границ | Заключение | |
| Межевание территории в границах красных линий ул. Краснооктябрьская - ул. Парусная - ул. Новый вал - наб. Старопрегольская в городе Калининграде | Публичные слушания по проекту межевания территории в границах красных линий ул. Краснооктябрьская - ул. Парусная - ул. Новый вал - наб. Старопрегольская в городе Калининграде состоятся 09.08.2016 г. в 17.00 по адресу г. Калининград, ул. Октябрьская, д.79, каб. 211 (административное здание) | Проект границ | Заключение | |
| Проект межевания территории к границах красных линий ул. Мечникова - ул. Шишкина - ул. Семипалатинская - ул. Мичурина в г. Калининграде | Публичные слушания по проекту межевания территории к границах красных линий ул. Мечникова - ул. Шишкина - ул. Семипалатинская - ул. Мичурина в г. Калининграде состоятся 09.08.2016 г. в 17.00 по адресу г. Калининград, ул. Октябрьская, д.79, каб. 211 (административное здание) | Проект границ | Заключение | |
| Проект межевания территории в границах красных линий ул. Бородинская - ул. Дм. Донского - просп. Победы | Публичные слушания по проекту межевания территории в границах красных линий ул. Бородинская - ул. Дм. Донского - просп. Победы состоятся 10 августа 2016 г. в 17.00 по адресу: г. Калининград, ул. Чайковского, 52 (административное здание) | Проект границ | Заключение | |
| Проект межевания территории в границах красных линий ул. Гурьева - ул. Белостокская - ул. Ломоносова в Центральном районе г. Калининграда | Публичные слушания по проекту межевания территории в границах красных линий ул. Гурьева - ул. Белостокская - ул. Ломоносова в Центральном районе г. Калининграда состоятся 10 августа 2016 г. в 17.00 по адресу: г. Калининград, ул. Чайковского, 52 (административное здание) | Проект границ | Заключение | |
| Проект межевания территории по просп. Победы, дома №№ 62, 64, 66, 68, 70, 70А в г. Калининграде | Публичные слушания по проекту межевания территории по просп. Победы, дома №№ 62, 64, 66, 68, 70, 70А в г. Калининграде состоятся 10 августа 2016 г. в 17.00 по адресу: г. Калининград, ул. Чайковского, 52 (административное здание) | Проект границ | Заключение | |
| Проект межевания территории в границах красных линий ул. Черняховского - ул. Подп. Иванникова - ул. Ген. Соммера - просп. Ленинский в г. Калининграде | Публичные слушания по проекту межевания территории в границах красных линий ул. Черняховского - ул. Подп. Иванникова - ул. Ген. Соммера - просп. Ленинский в г. Калининграде состоятся 4 августа 2016 года в 17.30 по адресу: г. Калининграда, ул. Фрунзе, 71, каб. 25а (административное здание) | Проект границ | Заключение | |
| Проект межевания территории в границах красных линий ул. Пригородная - проезд - аэродром III-го класса Малое Исаково - военный городок в г. Калининграде | Публичные слушания по проекту межевания территории в границах красных линий ул. Пригородная - проезд - аэродром III-го класса Малое Исаково - военный городок в г. Калининграде состоятся 4 августа 2016 года в 17.30 по адресу: г. Калининграда, ул. Фрунзе, 71, каб. 25а (административное здание) | Проект границ | Заключение | |
| Проект межевания территории в границах красных линий ул. Соколиная - ул. Полецкого - ул. Б. Окружная 2-я - ул. Ломоносова | Публичные слушания по проекту межевания территории в границах красных линий ул. Соколиная - ул. Полецкого - ул. Б. Окружная 2-я - ул. Ломоносова состоятся 27 июля 2016 г. в 17.00 по адресу: г. Калининград, ул. Чайковского, 52 (административное здание) | Проект границ | Заключение | |
| Проект межевания территории в границах красных линий ул. Маршала Борзова - ул. Красная - ул. Генерал-лейтенанта Захарова - ул. Авторемонтная | Публичные слушания по проекту межевания территории в границах красных линий ул. Маршала Борзова - ул. Красная - ул. Генерал-лейтенанта Захарова - ул. Авторемонтная состоятся 27 июля 2016 г. в 17.00 по адресу: г. Калининград, ул. Чайковского, 52 (административное здание) | Проект границ | Заключение | |
| Проект межевания территории в границах красных линий ул. Лукашова - ул. Лейтенанта Калинина - СНТ "Лесное" - СНТ "Сокол" в городе Калининграде | Публичные слушания по проекту межевания территории в границах красных линий ул. Лукашова - ул. Лейтенанта Калинина - СНТ "Лесное" - СНТ "Сокол" в городе Калининграде состоятся 27 июля 2016 г. в 17.00 по адресу: г. Калининград, ул. Чайковского, 52 (административное здание) | Проект границ | Заключение | |
| Проект межевания территории в границах красных линий ул. Камышовая - ул. Подп. Емельянова - граница пруда Мельничного в г. Калининграде | Публичные слушания по проекту межевания территории в границах красных линий ул. Камышовая - ул. Подп. Емельянова - граница пруда Мельничного в г. Калининграде состоятся 14 июля 2016 г. в 17.30 по адресу: г. Калининград, ул.Октябрьская, 79, каб.211 (административное здание) | Проект границ | Заключение | |
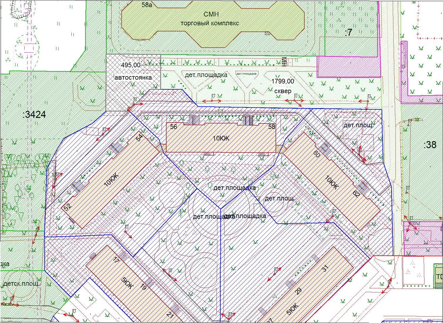
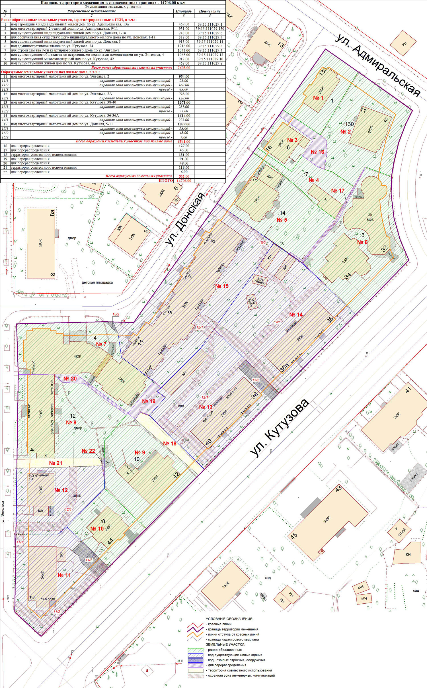
| Проект межевания территории в границах красных линий ул. Каштановая аллея - ул. Адмиральская - ул. Кутузова в Центральном районе г. Калининграда | Публичные слушания по проекту межевания территории в границах красных линий ул. Каштановая аллея - ул. Адмиральская - ул. Кутузова в Центральном районе г. Калининграда состоятся 12 июля 2016 г. в 17.30 по адресу: г. Калининград, ул. К. Маркса, 43 (административное здание каб. 401) | Проект границ | Заключение | |
| Проект межевания территории в границах красных линий ул. Ижорская - ул. Каблукова - ул. Джамбула - ул. Урицкого в г. Калининграде | Публичные слушания по проекту межевания территории в границах красных линий ул. Ижорская - ул. Каблукова - ул. Джамбула - ул. Урицкого в г. Калининграде состоятся 12 июля 2016 г. в 17.30 по адресу: г. Калининград, ул. К. Маркса, 43 (административное здание каб. 401) | Проект границ | Заключение | |
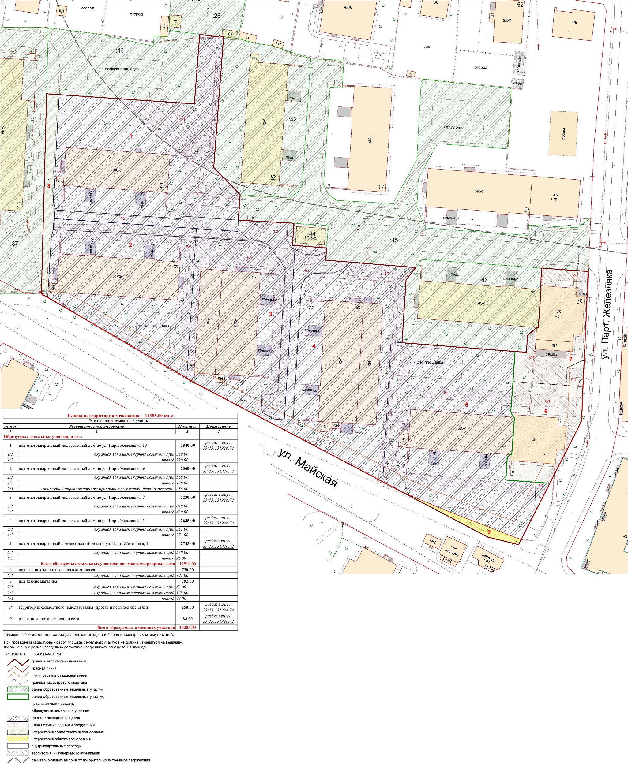
| Проект межевания территории в границах красных линий ул. 1812 года - ул. Грига - просп. Московский -ул. Лазаретная в Ленинградском районе г. Калининграда | Публичные слушания по проекту межевания территории в границах красных линий ул. 1812 года - ул. Грига - просп. Московский -ул. Лазаретная в Ленинградском районе г. Калининграда состоятся 22 июня 2016 года в 17.30 по адресу: г. Калининград, ул. Фрунзе, 71, кабинет №25а (административное здание) | Проект границ | Заключение | |
| Проект межевания территории в границах красных линий ул. Печатная - ул. П.Морозова - ул. Коммунистическая в г. Калининграде | Публичные слушания по проекту межевания территории в границах красных линий ул. Печатная - ул. П.Морозова - ул. Коммунистическая в г. Калининграде состоятся 15 июня 2016 г. в 17.30 по адресу: г. Калининград, ул. Октябрьская, 79, кабинет №211 (административное здание) | Проект границ | Заключение | |
| Проект межевания квартала в границах красных линий ул. Бассейная - ул. Саратовская - ул. Воздушная - просп. Мира | Публичные слушания по проекту межевания квартала в границах красных линий ул. Бассейная - ул. Саратовская - ул. Воздушная - просп. Мира состоятся 02 июня 2016 г. в 17.30 по адресу г. Калининград, ул. К. Маркса, 43, актовый зал, 4-й этаж (административное здание) | Проект границ Проект границ(откореектированный по итогам публичных слушаний) | Заключение | |
| Проект межевания квартала в границах красных линий ул. Сержанта Мишина - ул. Менделеева - граница СНТ «Лето» г. Калининграда | Публичные слушания по проекту межевания квартала в границах красных линий ул. Сержанта Мишина - ул. Менделеева - граница СНТ «Лето» г. Калининграда состоятся 02 июня 2016 г. в 17.30 по адресу г. Калининград, ул. К. Маркса, 43, актовый зал, 4-й этаж (административное здание) | Проект границ | Заключение | |
| Проект межевания территории в границах красных линий ул. М. Светлова - ручей Молодежный в г. Калининграде | Публичные слушания по проекту межевания территории в границах красных линий ул. М. Светлова - ручей Молодежный в г. Калининграде состоятся 12 мая 2016 г. в 17.30 по адресу: г. Калининград, ул. Фрунзе, 71, кабинет №25а (административное здание) | Проект границ | Заключение | |
| Проект межевания территории в границах красных линий ул. Аллея смелых - ул. Н. Карамзина - приток р. Товарной в Московском районе г. Калининграда | Публичные слушания по проекту межевания территории в границах красных линий ул. Аллея смелых - ул. Н. Карамзина - приток р. Товарной в Московском районе г. Калининграда состоятся 20 апреля 2016 г. в 17.30 по адресу: г. Калининград, ул. Октябрьская, 79, каб. 211 (административное здание) | Проект границ | Заключение | |
| Проект межевания территории в границах красных линий просп. Московский - ул. Ялтинская - пер. Ялтинский в Ленинградском районе г. Калининграда | Публичные слушания по проекту межевания территории в границах красных линий просп. Московский - ул. Ялтинская - пер. Ялтинский в Ленинградском районе г. Калининграда состоятся 14 апреля 2016 г. в17.30 по адресу: г. Калининград, ул. Фрунзе, 71, кабинет №25а (административное здание) | Проект границ | Заключение | |
| Проект межевания территории в границах красных линий ул. Нахимова - ул. Яблоневая аллея - ул. Чапаева - ул. Энгельса г. Калининграда | Публичные слушания по проекту межевания территории в границах красных линий ул. Нахимова - ул. Яблоневая аллея - ул. Чапаева - ул. Энгельса г. Калининграда состоятся 23 марта 2016 г. в 17 часов 30 минут по адресу: г. Калининград, ул. Чайковского, 52 (административное здание, каб. 206) | Проект границ | Заключение | |
| Проект межевания территории в границах красных линий ул. Гайдара - ул. Нарвская - проектная улица в Ленинградском районе г. Калининграда | Публичные слушания по проекту межевания территории в границах красных линий ул. Гайдара - ул. Нарвская - проектная улица в Ленинградском районе г. Калининграда состоятся 22 марта 2016 г. в 17 часов по адресу: г. Калининград, ул. Фрунзе, д. 71, кабинет №25а (административное здание) | Проект границ | Заключение | |
| Проект межевания территории в границах красных линий ул. Фурманова - проектная улица - ул. Ген. Белобородова - ул. Б.Окружная 3-я в Ленинградском районе г. Калининграда | Публичные слушания по проекту межевания территории в границах красных линий ул. Фурманова - проектная улица - ул. Ген. Белобородова - ул. Б.Окружная 3-я в Ленинградском районе г. Калининграда состоятся 22 марта 2016 г. в 17 часов по адресу: г. Калининград, ул. Фрунзе, д. 71, кабинет №25а (административное здание) | Проект границ | Заключение | |
| Проект межевания территории в границах красных линий ул. Розы Люксембург - водный объект в г. Калининграде | Публичные слушания по проекту межевания территории в границах красных линий ул. Розы Люксембург - водный объект в г. Калининграде состоятся 22 марта 2016 г. в 17 часов по адресу: г. Калининград, ул. Фрунзе, д. 71, кабинет №25а (административное здание) | Проект границ | Заключение | |
| Проект межевания территории в границах красных линий ул. Парковая - проектируемая дорога - ул. Строительная в Московском районе г. Калининграда | Публичные слушания по проекту межевания территории в границах красных линий ул. Парковая - проектируемая дорога - ул. Строительная в Московском районе г. Калининграда состоятся 19 февраля 2016 г. в 17 часов 30 минут по адресу: г. Калининград, ул. Октябрьская, 79, каб. 211 (административное здание) | Проект границ | Заключение | |
| Проект межевания территории в границах красных линий ул. А.Суворова - ул. Щепкина - ул. Лаптевых в Московском районе г. Калининграда | Публичные слушания по проекту межевания территории в границах красных линий ул. А.Суворова - ул. Щепкина - ул. Лаптевых в Московском районе г. Калининграда состоятся 19 февраля 2016 г. в 17 часов 30 минут по адресу: г. Калининград, ул. Октябрьская, 79, каб. 211 (административное здание) | Проект границ | Заключение | |
| Проект межевания территории в границах красных линий ул. Некрасова - ул. Верхнеозерная - ул. Грибоедова в Ленинградском районе г. Калининграда | Публичные слушания по проекту межевания территории в границах красных линий ул. Некрасова - ул. Верхнеозерная - ул. Грибоедова в Ленинградском районе г. Калининграда состоятся 10.02.2016 г. в 17.30 по адресу: г. Калининград, ул. Фрунзе, 71, кабинет №25а (административное здание) | Проект границ | Заключение | |
| Проект межевания территории в границах красных линий ул. Щепкина - пер. Лаптевых - ул. Лаптевых | Публичные слушания по проекту межевания территории в границах красных линий ул. Щепкина - пер. Лаптевых - ул. Лаптевых состоятся 17 декабря 2015 г. в 17.30 по адресу: г. Калининград, ул. Суворова, 139 (здание МАОУ СОШ №28) | Проект границ Проект границ (отредактированный по итогам публичных слушаний) Проект границ (отредактированный по итогам публичных слушаний) | Заключение | |
| Проект межевания территории в границах красных линий ул. Ломоносова - ул. Гурьева - ул. Лауреатная | Проект границ | Заключение | ||
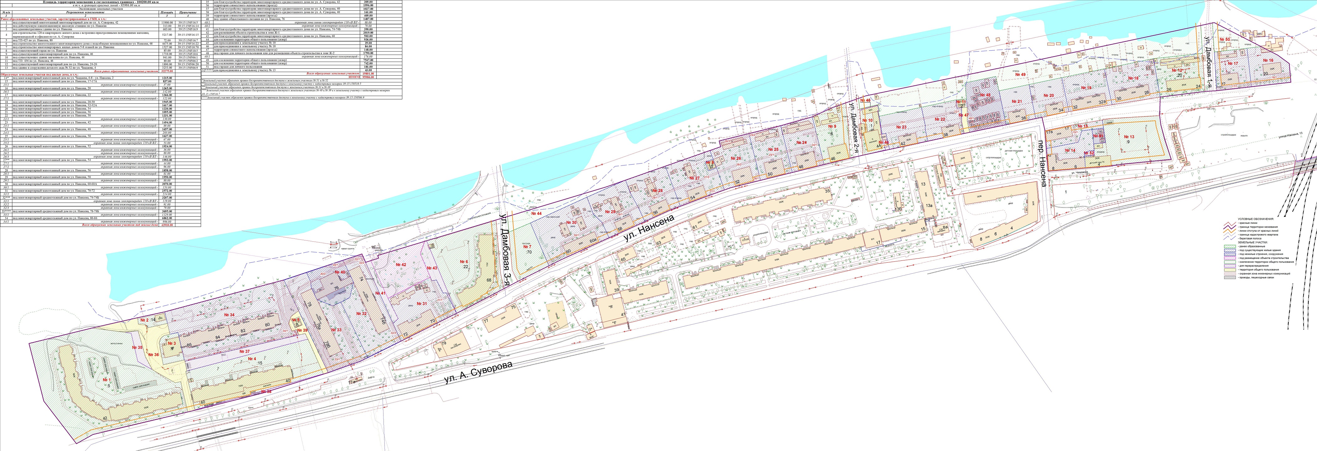
| Публичные слушания по внесению изменений в муниципальную адресную программу по сносу, реконструкции многоквартирных домов в целях развития застроенных территорий г. Калининграда на 2012-2016 годы, в части включения в адресный перечень многоквартирных домов №№ 20, 22, 24-26, 28-30, 32-32а, 34, 36, 38, 42 по ул. Нансена в Московском районе и включения в перечень застроенных территорий, планируемых к развитию, территорию в границах ул. Нансена – ул. Дамбовая 1-я в Московском районе, состоявшихся 20 октября 2015 года. | Заключение | |||
| Проект межевания территории в границах красных линий ул. Ялтинская (дома №26, №28-30, №32-34, №38-40) | Публичные слушания по проекту межевания территории в границах красных линий ул. Ялтинская (дома №26, №28-30, №32-34, №38-40) состоятся 26 ноября 2015 г. в 17.30 по адресу: г. Калининград, ул. Фрунзе, 71, кабинет №25а (административное здание) | Проект границ | ||
| Проект межевания территории в границах красных линий ул. Северная - ул. И.Сусанина | Публичные слушания по проекту межевания территории в границах красных линий ул. Северная - ул. И.Сусанина состоятся 26 ноября 2015 г. в 17.30 по адресу: г. Калининград, ул. Фрунзе, 71, кабинет №25а (административное здание) | Проект границ | Заключение | |
| Проект межевания территории в границах красных линий ул. Заводская -ул. Рабочая - ул. Поморская - ул. Залесская - проезд Кольский - пер. Рабочий в Московском районе г. Калининграда | Публичные слушания по проекту межевания территории в границах красных линий ул. Заводская -ул. Рабочая - ул. Поморская - ул. Залесская - проезд Кольский - пер. Рабочий в Московском районе г. Калининграда состоятся 05 ноября 2015 г. в 17.30 по адресу: г. Калининград, пос. Прибрежный, ул. Заводская, 27б (здание МАОУ СОШ №48) | Проект границ Проект границ откорректированный по итогам публичных слушаний | Заключение | |
| Проект межевания территории в границах красных линий ул. А.Суворова - ул.Заводская в Московском районе г.Калининграда | Проект границ | Заключение | ||
| Проект межевания территории в границах красных линий ул.Нансена-ул.Чаадаева-ул.А.Суворова | Проект границ | Заключение | ||
| Проект межевания территории в границах красных линий ул. П. Морозова, дом 101-113 - ул. Беговая, дом 70-80 | Публичные слушания по проекту межевания территории в границах красных линий ул. П. Морозова, дом 101-113 - ул. Беговая, дом 70-80 состоятся 22 июля 2015 г. в 17.30 по адресу: г. Калининград, ул. Октябрьская, 79, каб. 211 (административное здание) | Проект границ | Заключение | |
| Проект межевания территории в границах красных линий ул. Ю. Гагарина - ручей Гагаринский | Публичные слушания по проекту межевания территории в границах красных линий ул. Ю. Гагарина - ручей Гагаринский состоятся 21 июля 2015 г. в 17.30 по адресу: г. Калининград, ул. Фрунзе, 71, кабинет №25а (административное здание) | Проект границ | ||
| Проект межевания территории в границах красных линий ул. Ломоносова - ул. Белорусская - ул. Гравийная - ул. Херсонская | Публичные слушания по проекту межевания территории в границах красных линий ул. Ломоносова - ул. Белорусская - ул. Гравийная - ул. Херсонская состоятся 07 июля 2015 г. в 17.30 по адресу: г. Калининград, ул. Фрунзе, 71, кабинет №25а (административное здание) | Проект границ | Заключение | |
| Проект межевания территории по пер. Заводскому в Московском районе | Публичные слушания по проекту межевания территории по пер. Заводскому в Московском районе состоятся 22 июля 2015 г. в 17.30 по адресу: г. Калининград, ул. Октябрьская, 79, каб. 211 (административное здание) | Проект границ | Заключение | |
| Проект межевания территории в границах красных линий улиц Ю. Маточкина, дома 7, 9 - ул. Гайдара, дома 94, 96 | Публичные слушания по проекту межевания территории в границах красных линий улиц Ю. Маточкина, дома 7, 9 - ул. Гайдара, дома 94, 96 состоятся 21 июля 2015 г. в 17.30 по адресу: г. Калининград, ул. Фрунзе, 71, кабинет №25а (административное здание) | Проект границ | Заключение | |
| Проект межевания территории по ул. Машиностроительной, дома №64Б, 68-72, 74-84, 86-96, 98-108. | Публичные слушания по проекту межевания территории по ул. Машиностроительной, дома №64Б, 68-72, 74-84, 86-96, 98-108 состоятся 22 июля 2015 г. в 17.30 по адресу: г. Калининград, ул. Октябрьская, 79, каб. 211 (административное здание) | Проект границ | Заключение | |
| Проект межевания территории в границах красных линий ул. Пулеметная - ул. Поселковая - ул. Валдайская в Ленинградском районе г. Калининграда | Публичные слушания по проекту межевания территории в границах красных линий ул. Пулеметная - ул. Поселковая - ул. Валдайская в Ленинградском районе г. Калининграда состоятся 14 июля 2015 г. в 17.30 по адресу: г. Калининград, ул. Фрунзе, 71, кабинет №25а (административное здание) | Проект границ | Заключение | |
| Проект межевания территории в границах красных линий ул. И. Сусанина - ул. Георгиновая - ул. Поселковая - ул. Черноморская в Ленинградском районе г. Калининграда | Публичные слушания по проект межевания территории в границах красных линий ул. И. Сусанина - ул. Георгиновая - ул. Поселковая - ул. Черноморская в Ленинградском районе г. Калининграда состоятся 14 июля 2015 г. в 17.30 по адресу: г. Калининград, ул. Фрунзе, 71, кабинет №25а (административное здание) | Проект границ | Заключение | |
| Проект межевания территории по ул. А. Невского (дома №44, №46) | Публичные слушания по проекту межевания территории по ул. А. Невского (дома №44, №46) состоятся 28 мая 2015 г. в 17.30 по адресу: г. Калининград, ул. Фрунзе, 71, кабинет №25а (административное здание) | Проект границ | Заключение | |
| Проект межевания территории по ул. Стрелецкой (дома № 14-16, № 18-24) | Публичные слушания по проекту межевания территории по ул. Стрелецкой (дома № 14-16, № 18-24) состоятся 28 мая 2015 г. в 17.30 по адресу: г. Калининград, ул. Фрунзе, 71, кабинет №25а (административное здание) | Проект границ | Заключение | |
| Проект межевания территории в границах красных линий ул. Аксакова (дома № 127, № 129, № 131) | Публичные слушания по проекту межевания территории в границах красных линий ул. Аксакова (дома № 127, № 129, № 131) состоятся 28 мая 2015 г. в 17.30 по адресу: г. Калининград, ул. Фрунзе, 71, кабинет №25а (административное здание) | Проект границ | Заключение | |
| Проект межевания территории в границах красных линий ул. Ген. Челнокова - ул. В. Фермора | Публичные слушания по проекту межевания территории в границах красных линий ул. Ген. Челнокова - ул. В. Фермора состоятся 26 мая 2015 г. в 17.30 по адресу г. Калининград, ул. Фрунзе, 71, кабинет №25а (административное здание) | Проект границ | Заключение | |
| Проект межевания территории в границах красных линий ул. Иртышская - пер. Иртышский - ул. Летняя | Публичные слушания по проекту межевания территории в границах красных линий ул. Иртышская - пер. Иртышский - ул. Летняя состоятся 20 мая 2015 г. в 17.30 по адресу г. Калининград, ул. Ген. Толстикова, 18а (помещение управляющей компании «Мой дом -1») | Проект границ | Заключение | |
| Проект межевания территории в границах ул. Кутузова (дома №12, №12а) | Публичные слушания по проекту межевания территории в границах ул. Кутузова (дома №12, №12а) состоятся 19 мая 2015 г. в 17.30 по адресу г. Калининград, ул. К.Маркса, 43, актовый зал (административное здание) | Проект границ | Заключение | |
| Проект межевания территории в границах красных линий ул. Репина - пер. Кирова - ул. Кирова - ул. Брамса | Публичные слушания по проекту межевания территории в границах красных линий ул. Репина - пер. Кирова - ул. Кирова - ул. Брамса состоятся 19 мая 2015 г. в 17.30 по адресу г. Калининград, ул. К.Маркса, 43, актовый зал (административное здание) | Проект границ Проект границ откорректированный по итогам публичных слушаний | Заключение | |
| Проект межевания территории пос. Совхозного | Публичные слушания по проекту межевания территории пос. Совхозного состоятся 19 мая 2015 г. в 17.30 по адресу г. Калининград, ул. К.Маркса, 43, актовый зал (административное здание) | Проект границ | Заключение | |
| Проект межевания территории в границах красных линий ул. Воскресенская - пер. Заводской - ул. Заводская | Публичные слушания по проекту межевания территории в границах красных линий ул. Воскресенская - пер. Заводской - ул. Заводская состоятся 14 мая 2015 г. в 17.30 по адресу: г. Калининград, ул. Октябрьская, 79, каб. 211 (административное здание) | Проект границ | Заключение | |
| Проект межевания территории в границах красных линий ул. Мечникова - ул. Мичурина - ул. С. Халтурина - ул. Шишкина | Публичные слушания по проекту межевания территории в границах красных линий ул. Мечникова - ул. Мичурина - ул. С. Халтурина - ул. Шишкина состоятся 14 мая 2015 г. в 17.30 по адресу: г. Калининград, ул. Октябрьская, 79, каб. 211 (административное здание) | Проект границ | Заключение | |
| Проект межевания территории по ул. Комсомольской (дома 46-48, 50-56) | Публичные слушания по проекту межевания территории по ул. Комсомольской (дома 46-48, 50-56) состоятся 16 марта 2015 г. в 17.30 по адресу: г. Калининград, ул. К. Маркса, 43, актовый зал (административное здание) | Проект границ | Заключение | |
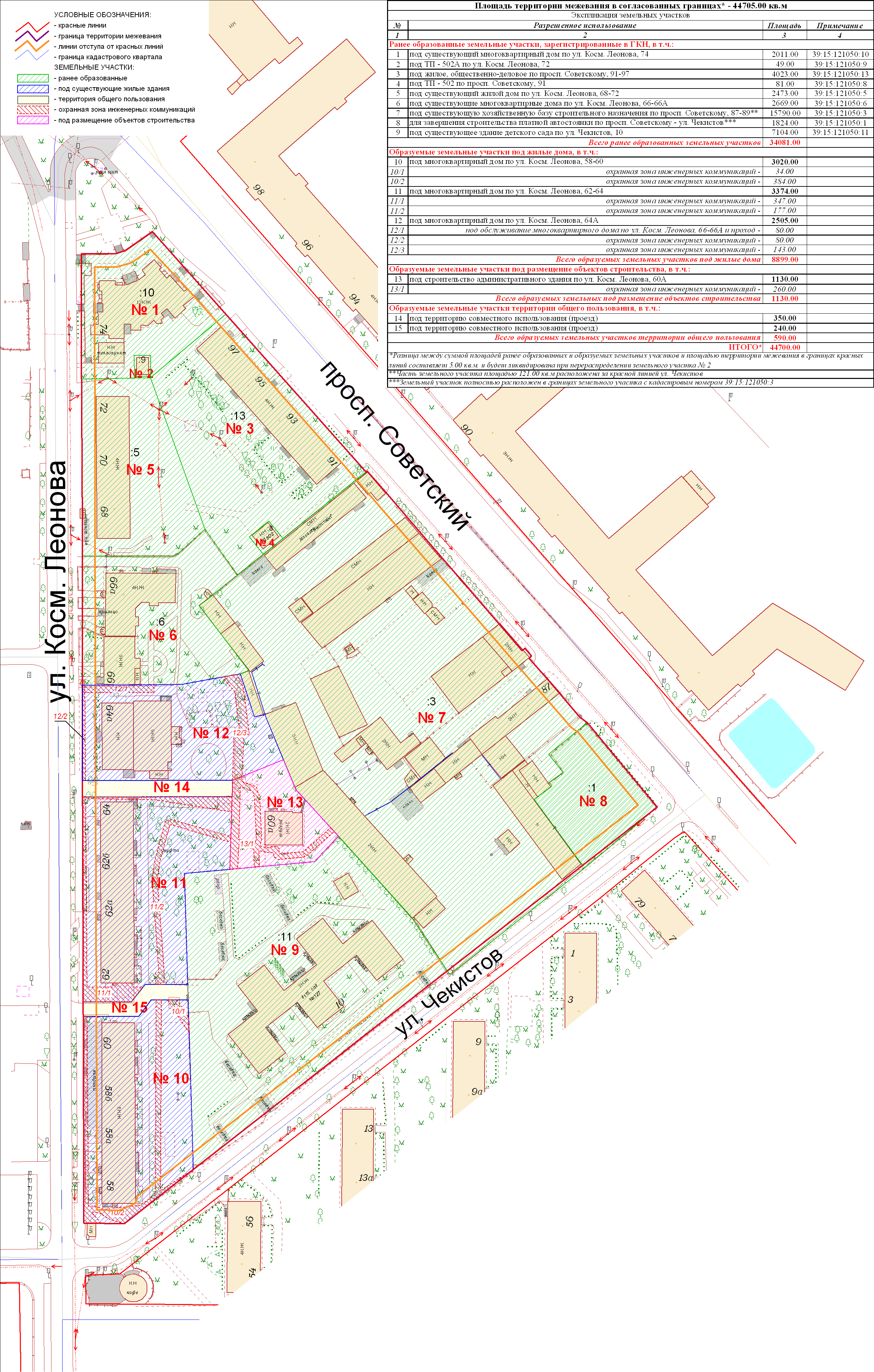
| Проект межевания территории в границах красных линий ул. Косм. Леонова - ул. Полк. Сафронова - ул. Зоологическая - пер. Зоологический | Публичные слушания по проекту межевания территории в границах красных линий ул. Косм. Леонова - ул. Полк. Сафронова - ул. Зоологическая - пер. Зоологический состоятся 23 марта 2015 г. в 17.30 по адресу: г. Калининград, ул. К. Маркса, 43, актовый зал (административное здание) | Проект границ | Заключение | |
| Проект межевания территории по ул.Белорусской, 38 - ул.Кировоградской, 53, 55 в Центральном районе | Публичные слушания по роекту межевания территории по ул.Белорусской, 38 - ул.Кировоградской, 53, 55 в Центральном районе состоятся 16 марта 2015 г. в 17.30 по адресу: г. Калининград, ул. К. Маркса, 43, актовый зал (административное здание) | Проект границ | Заключение | |
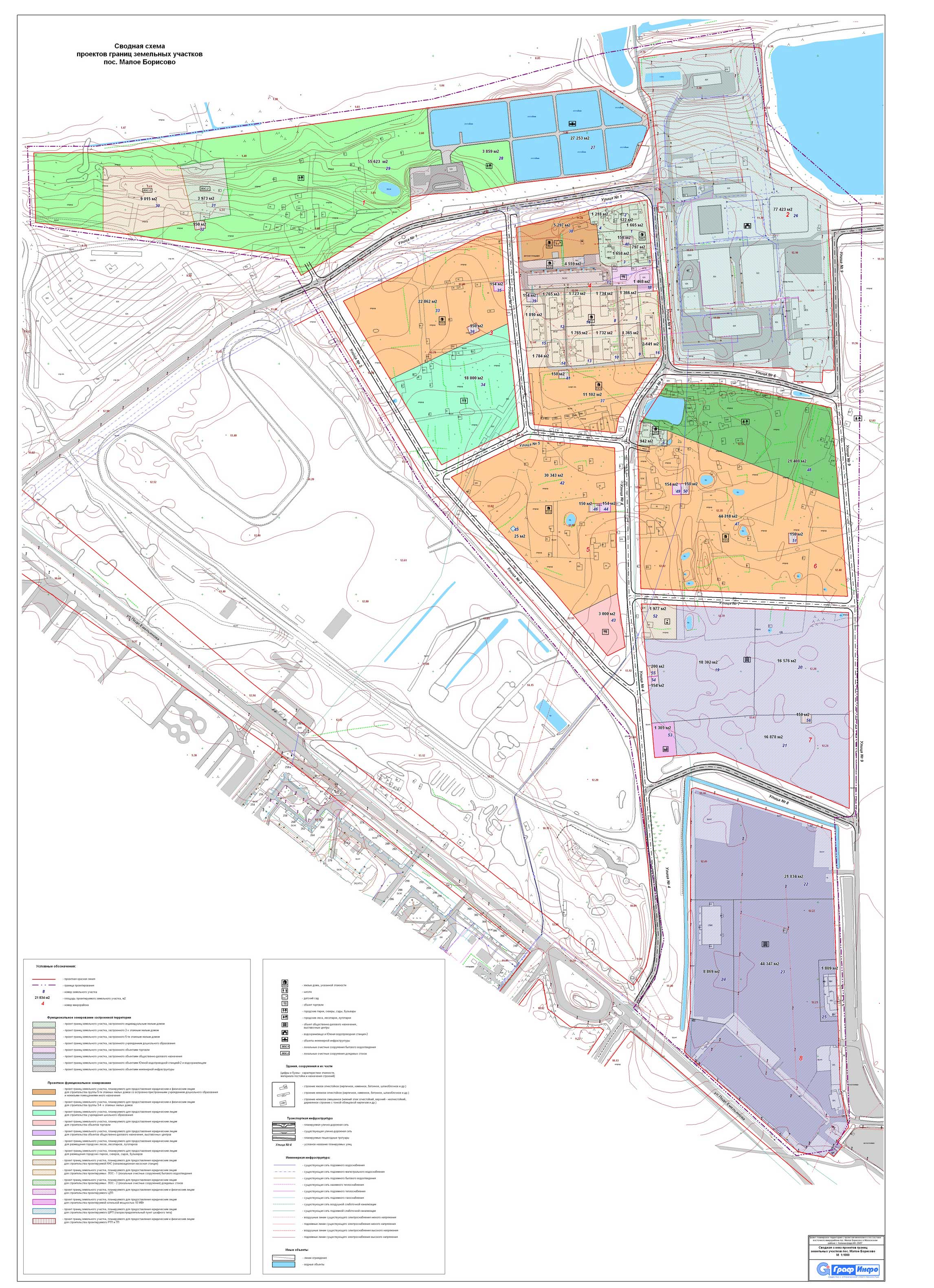
| Проект межевания территории пос. М. Борисово (дома 1-11) | Публичные слушания по проекту межевания территории пос. М. Борисово (дома 1-11) состоятся 17 марта 2015 г. в 17.30 по адресу: г. Калининград, ул. Октябрьская, д. 79, каб. 211 (административное здание) | Проект границ | Заключение | |
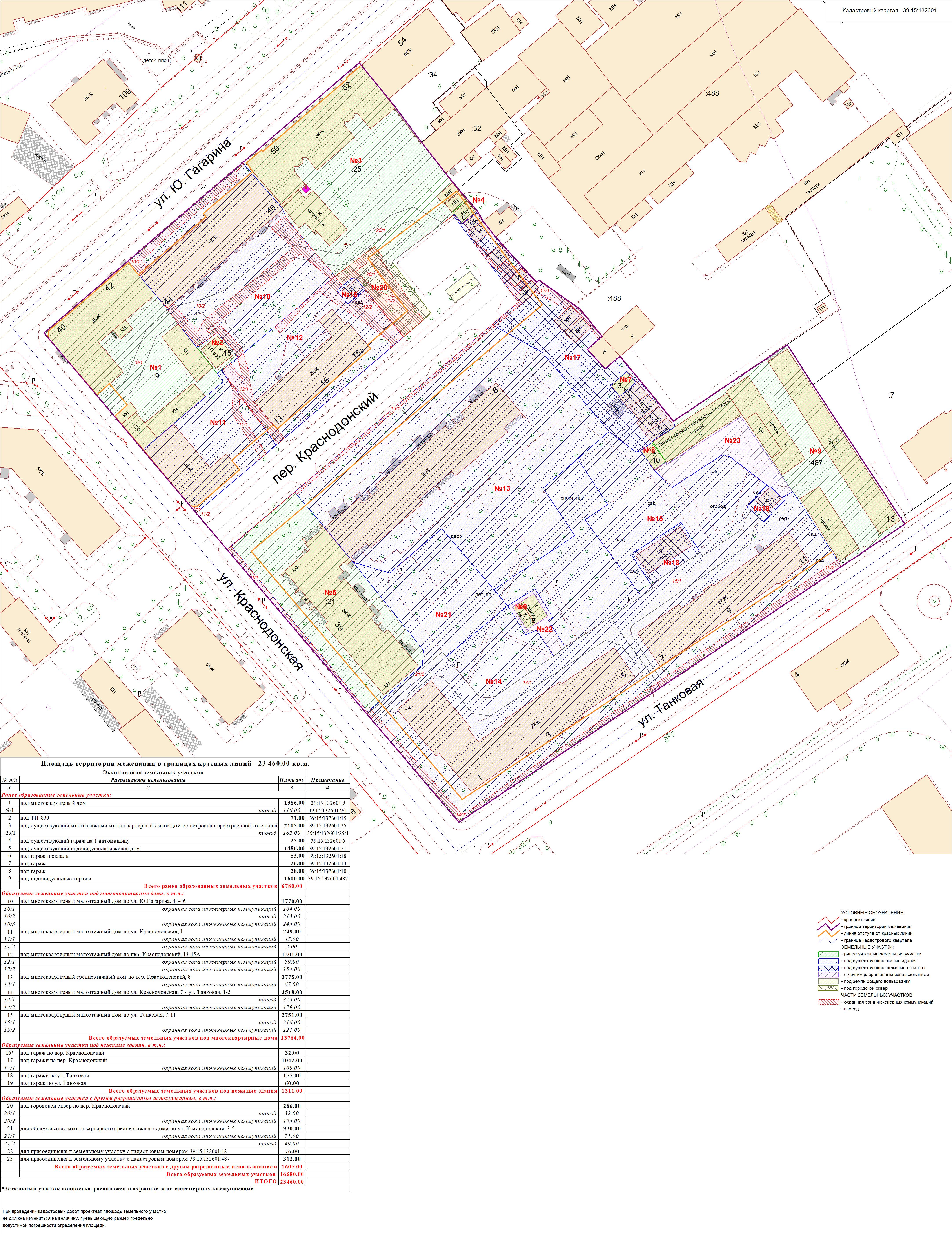
| Проект межевания территории в границах красных линий ул. Лейт. Яналова - ул. Красная - ул. Чернышевского | Публичные слушания по проекту межевания территории в границах красных линий ул. Лейт. Яналова - ул. Красная - ул. Чернышевского состоятся 16 марта 2015 г. в 17.30 по адресу: г. Калининград, ул. К. Маркса, 43, актовый зал (административное здание) | Проект границ | Заключение | |
| Проект межевания территории в границах красных линий ул. Солдатская - пер. Солдатский 1-ый - пер. Солдатский 2-ой | Публичные слушания по проекту межевания территории в границах красных линий ул. Солдатская - пер. Солдатский 1-ый - пер. Солдатский 2-ой состоятся 16 марта 2015 г. в 17.30 по адресу: г. Калининград, ул. К. Маркса, 43, актовый зал (административное здание) | Проект границ | Заключение | |
| Проект межевания территории в границах красных линий пос. Совхозный | Публичные слушания по проекту межевания территории в границах красных линий пос. Совхозный состоятся 16 марта 2015 г. в 17.30 по адресу: г. Калининград, ул. К. Маркса, 43, актовый зал (административное здание) | Проект границ Проект границ откорректированный по итогам публичных слушаний | Заключение | |
| Проект межевания территории по ул. Береговой в пос. Прибрежном (дома 17 - 27) | Публичные слушания по проекту межевания территории по ул. Береговой в пос. Прибрежном (дома 17 - 27) состоятся 18 марта 2015 г. в 17.30 по адресу: г. Калининград, пос. Прибрежный, ул. Заводская, 27Б (здание школы №48) | Проект границ Проект границ откорректированный по итогам публичных слушаний | Заключение | |
| Проект межевания территории по ул. Береговой в пос. Прибрежном (дома 24, 64, 66) | Публичные слушания по проекту межевания территории по ул. Береговой в пос. Прибрежном (дома 24, 64, 66) состоятся 18 марта 2015 г. в 17.30 по адресу: г. Калининград, пос. Прибрежный, ул. Заводская, 27Б (здание школы №48) | Проект границ | Заключение | |
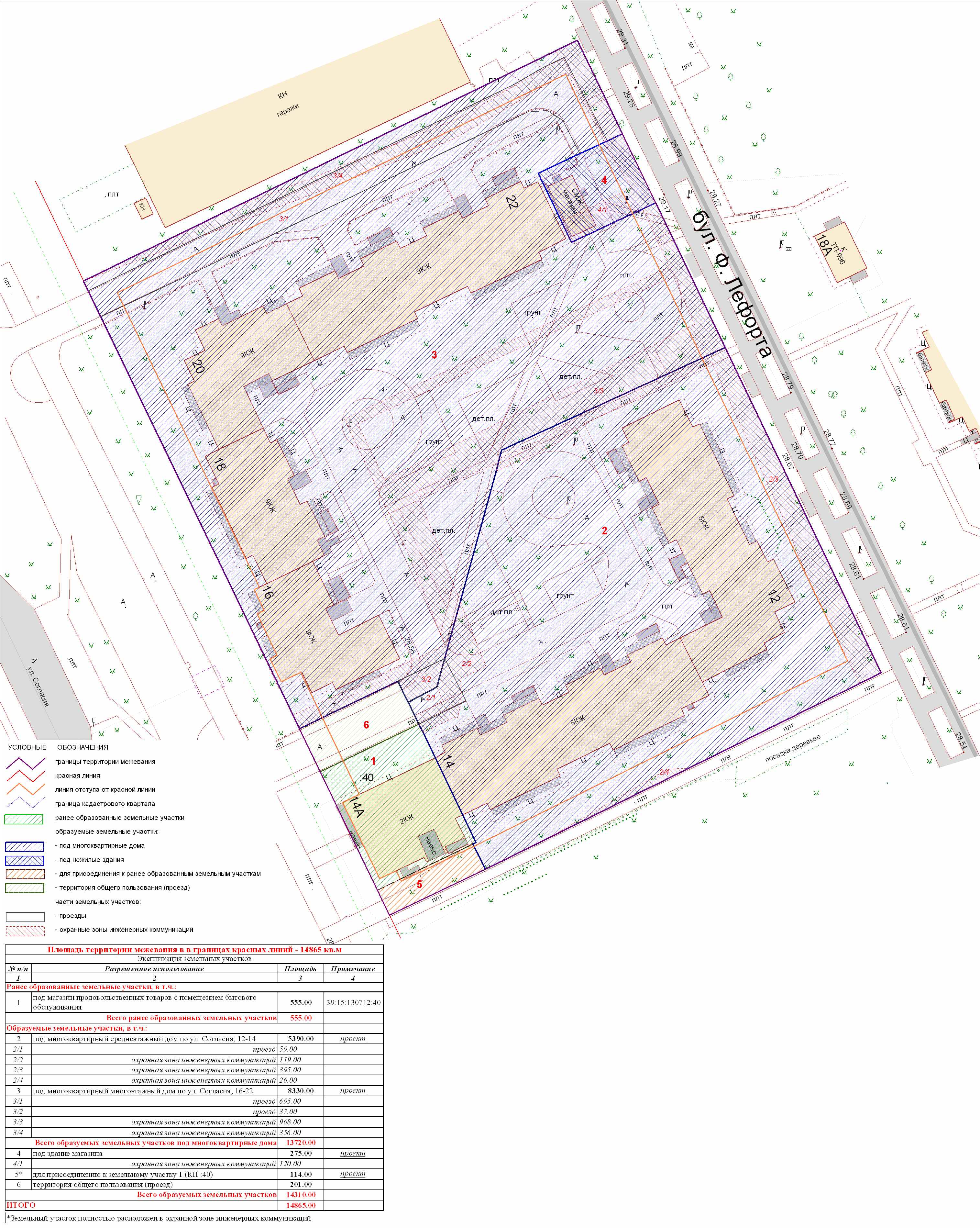
| Проект межевания территории по бул. Ф.Лефорта (дома 14, 16) | Публичные слушания по проекту межевания территории по бул. Ф.Лефорта (дома 14, 16) состоятся 12 марта 2015 г. в 17.30 по адресу: г. Калининград, ул. Фрунзе, 71, кабинет №25а (административное здание) | Проект границ | Заключение | |
| Проект межевания территории по ул. Тамбовской (дома 1-3, 21-23) | Публичные слушания по проекту межевания территории по ул. Тамбовской (дома 1-3, 21-23) состоятся 12 марта 2015 г. в 17.30 по адресу: г. Калининград, ул. Фрунзе, 71, кабинет №25а (административное здание) | Проект границ | Заключение | |
| Проект межевания территории в границах красных линий ул. Косм. Леонова - пер. Зоологический - ул. Зоологическая - просп. Мира | Публичные слушания по проекту межевания территории в границах красных линий ул. Косм. Леонова - пер. Зоологический - ул. Зоологическая - просп. Мира состоятся 23 марта 2015 г. в 17.30 по адресу: г. Калининград, ул. К. Маркса, 43, актовый зал (административное здание) | Проект границ | Заключение | |
| Проект межевания территории в границах красных линий: ул. Тульская - ул. Балашовская - ул. Тамбовская - ул. Баженова | Публичные слушания по проекту межевания территории в границах красных линий: ул. Тульская - ул. Балашовская - ул. Тамбовская - ул. Баженова состоятся 27 февраля 2015 г. в 17.30 по адресу: г. Калининград, ул. Фрунзе, 71, кабинет №25а (административное здание) | Проект границ | Заключение | |
| Проект межевания территории в границах красных линий ул. Печатная - ул. П.Морозова-ул. Коммунистическая в Московском районе | Публичные слушания по проекту межевания территории в границах красных линий ул. Печатная - ул. П. Морозова-ул. Коммунистическая в Московском районе состоятся 29.01.2015 в 17.00 в здании дворца творчества детей и молодежи «Янтарь» по адресу: г. Калининград, ул. Судостроительная, 2 | Проект границ Проект границ откорректированный по итогам публичных слушаний | Заключение | |
| Проект раздела земельного участка с кадастровым номером 39:15:150802:22 по ул. Киевской 108, 108а | Публичные слушания по разделу земельного участка с кадастровым номером 39:15:150802:22 по ул. Киевской 108, 108а состоятся 20 августа 2014 г. в 17.30 по адресу: г. Калининград, ул. Октябрьская, 79 (административное здание) в кабинете 419. | Проект границ | ||
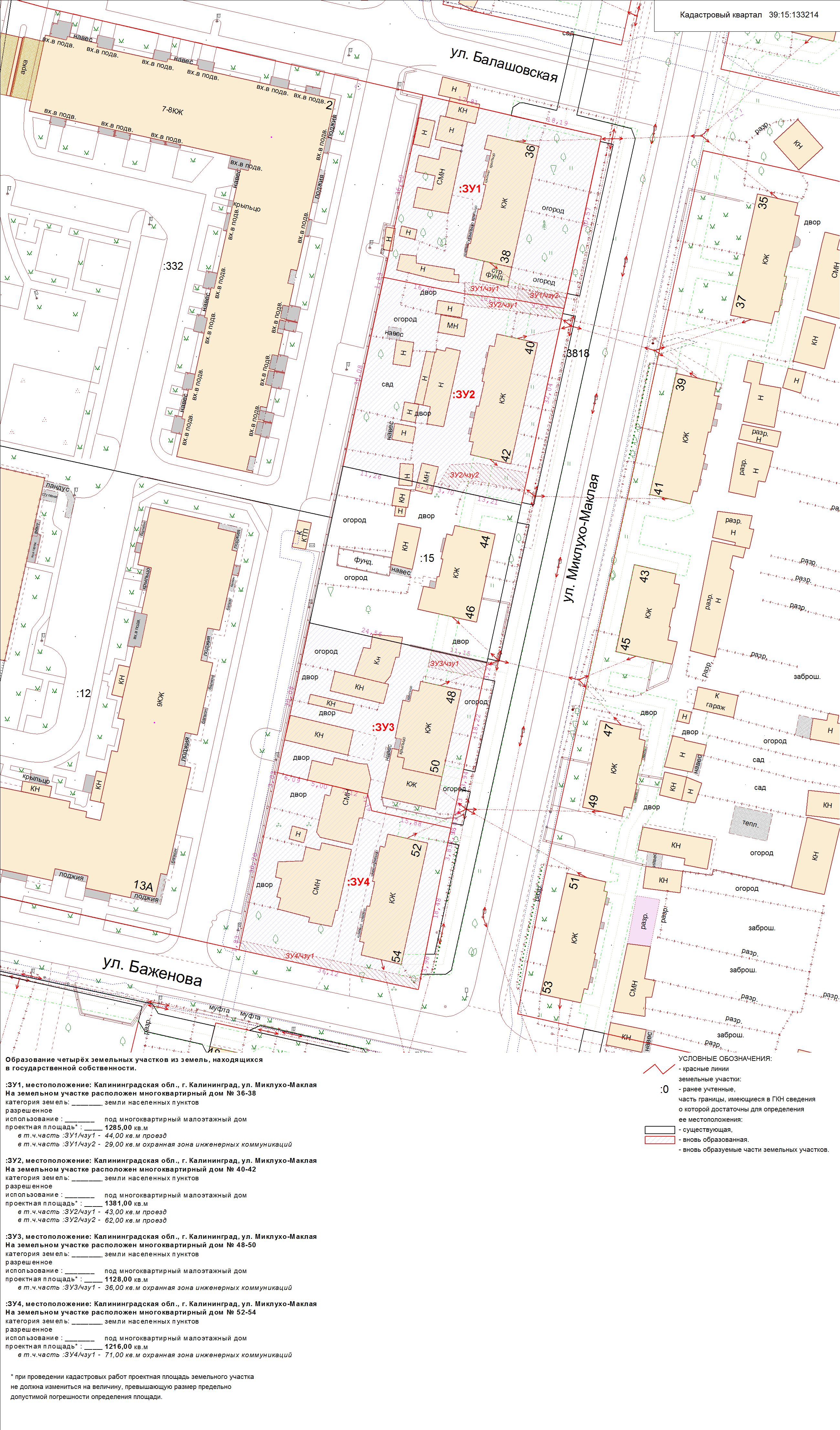
| Образование земельных участков под многоквартирные дома по ул. Миклухо-Маклая, 36-38, 40-42, 48-50, 52-54 | Публичные слушания состоятся 13 августа 2014 г. в 17.30 по адресу: г. Калининград, ул. Фрунзе, 71, кабинет №25а (административное здание) | Проект границ | ||
| Образование земельных участков под многоквартирные дома по ул. Чекистов 97-99, 101-103 | Публичные слушания состоятся 23 июня 2014 г., в 17.30 по адресу: г. Калининград, ул. К.Маркса, 43, актовый зал, 4-й этаж (административное здание) | Проект границ | ||
| Образование земельных участков под многоквартирные дома по ул. Чекистов 141 - ул. Каштановая аллея 158-164 | Публичные слушания состоятся 23 июня 2014 г., в 17.30 по адресу: г. Калининград, ул. К.Маркса, 43, актовый зал, 4-й этаж (административное здание) | Проект границ | ||
| Образование земельных участков под многоквартирные дома по проспекту Победы 149, 153-155, 159 | Публичные слушания состоятся 23 июня 2014 г., в 17.30 по адресу: г. Калининград, ул. К.Маркса, 43, актовый зал, 4-й этаж (административное здание) | Проект границ | ||
| Организация проезда к земельному участку с кадастровым номером 39:15:132403:291 по наб. Маринеско в Ленинградском районе | Публичные слушания состоятся 30 июня 2014 г. в 17.30 часов в административном здании по адресу: г. Калининград, ул. Фрунзе, 71, каб. 25а Повторные публичные слушания состоятся состоятся 18 августа 2014 г. в 18-30 на придомовой территории многоквартирного дома по адресу: г. Калининград, ул. Клиническая, 25 | Проект границ | Заключение | |
| Проект межевания территории в пос. Западном | Публичные слушания по проекту межевания территории в пос. Западном состоятся 12.05.2014 г. в 17.30 в административном здании по адресу: г. Калининград, ул. К.Маркса, 43, актовый зал, 4-й этаж. | Проект границ Проект межевания территории откорректированные по итогам публичных слушаний | Заключение | |
| Проект межевания территории в границах красных линий ул. Галактическая - ул. Тенистая аллея - ул. Брусничная, ул. Серж. Мишина, 1 | Публичные слушания по проекту межевания территории в границах красных линий ул. Галактическая - ул. Тенистая аллея - ул. Брусничная, ул. Серж. Мишина, 1 состоятся 15.07.2014 г. в 17.30 в здании МОУ СОШ №14 (школа №14) по адресу: г. Калининград, ул. Радищева, 81, актовый зал | Проект границ | Заключение | |
| Проект межевания в составе проекта планировки территории в границах ул. Подп. Емельянова – ул. Дзержинского – железная дорога – ул. Энергетиков – ул. Ямская – ул. С. Лазо – ул. Новинская в Московском районе г. Калининграда | Проект границ 1 Проект границ 2 Проект границ 3 | |||
| Проект межевания территории в границах красных линий улицы Чекистов (дома №№ 69-71, 73-75, 77-79) | Публичные слушания по проекту межевания территории в границах красных линий улицы Чекистов (дома №№ 69-71, 73-75, 77-79) состоятся 12 мая 2014 г., в 17.30 по адресу: г. Калининград, ул. К.Маркса, 43, актовый зал, 4-й этаж (административное здание) | Проект границ Проект межевания территории в границах красных линий откорректированные по итогам публичных слушаний | Заключение | |
| Проект межевания территории по ул. Солнечногорской (дома с 19 по 33) | Публичные слушания по проекту межевания территории по ул. Солнечногорской (дома с 19 по 33) состоятся 29 апреля 2014 г., в 17.30 по адресу: г. Калининград, ул. Окрябрьская, 79 (административное здание) | Проект границ | Заключение | |
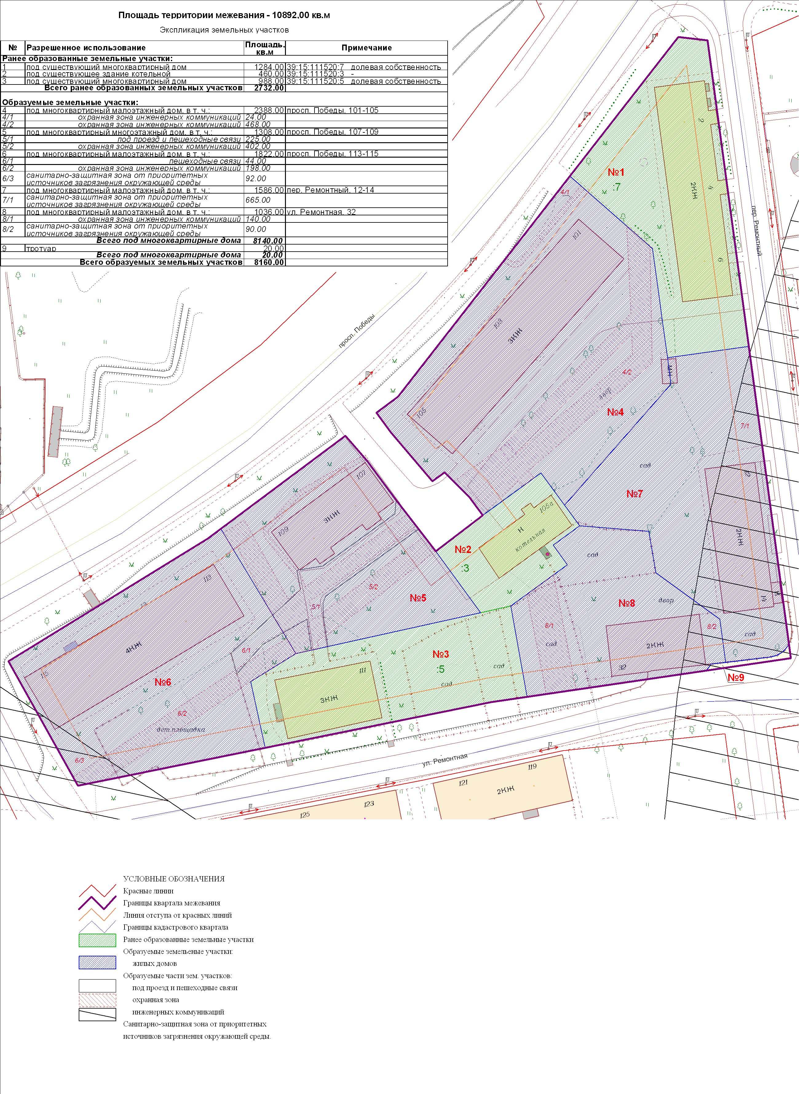
| Проект межевания территории в границах красных линий просп. Победы – пер. Ремонтный - ул. Ремонтная | Публичные слушания по проекту межевания территории в границах красных линий просп. Победы – пер. Ремонтный - ул. Ремонтная состоятся 28 апреля 2014 г., в 17.30 по адресу: г. Калининград, ул. К.Маркса, 43, актовый зал, 4-й этаж (административное здание) | Проект границ Проект межевания территории в границах красных линий откорректированный по итогам публичных слушаний | Заключение | |
| Проект межевания территории в границах красных линий ул. Мостовая – ул. И. Сусанина – ул. Согласия | Публичные слушания по проекту межевания территории в границах красных линий ул. Мостовая – ул. И. Сусанина – ул. Согласия состоятся 30.06.2014 г. в 17.30 по адресу: г. Калининград, ул. Фрунзе, 71, кабинет 25а (административное здание) | Проект границ Проект границ откорректированный по итогам публичных слушаний | Заключение | |
| Проект межевания территории в границах красных линий пер. Клинской – ул. Грунтовая – ул. Муромская | Публичные слушнания по проекту межевания территории проекту межевания территории в границах красных линий пер. Клинской – ул. Грунтовая – ул. Муромская состоятся 29 апреля 2014 г., в 17.30 по адресу: г. Калининград, ул. Окрябрьская, 79 (административное здание) | Проект границ | Заключение | |
| Проект межевания территории по ул. Ялтинская (дома 28-30, 32-34, 38-40) | Публичные слушания по проекту межевания территории по ул. Ялтинская (дома 28-30, 32-34, 38-40) состоятся 25 апреля 2014 г., в 17-30 по адресу: г. Калининград, ул. Фрунзе, 71, кабинет №25а (административное здание) | Проект границ | Заключение | |
| Проект межевания территории в границах красных линий ул. Рокоссовского – ул. Черняховского – ул. Минская – ул. Пролетарская | Публичные слушния по проекту межевания территории в границах красных линий ул. Рокоссовского – ул. Черняховского – ул. Минская – ул. Пролетарская состоятся 25 апреля 2014 г., в 17-30 по адресу: г. Калининград, ул. Фрунзе, 71, кабинет №25а (административное здание) | Проект границ Проект границ откорректированный по итогам публичных слушаний | Заключение | |
| Проект межевания территории по ул. Артиллерийской (дома 53, 55, 57, 59) | Публичные слушания по проекту межевания территории по ул. Артиллерийской (дома 53, 55, 57, 59) состоятся 25 апреля 2014 г., в 17-30 по адресу: г. Калининград, ул. Фрунзе, 71, кабинет №25а (административное здание) | Проект границ | Заключение | |
| Проект межевания территории по ул. Аллея смелых, 77, 79-81 | Публичные слушания по проекту межевания территории по ул. Аллея смелых, 77, 79-81 состоятся 22 апреля 2014 г., в 17.30 по адресу: г. Калининград, ул. Окрябрьская, 79 (административное здание) | Проект границ Проект границ откорректированный по итогам публичных слушаний | Заключение | |
| Проект межевания территории по ул. Судостроительной (дома 77-81, 81а) | Публичные слушания по проекту межевания территории по ул. Судостроительной (дома 77-81, 81а) состоятся 29 апреля 2014 г., в 17.30 по адресу: г. Калининград, ул. Окрябрьская, 79 (административное здание) | Проект границ | Заключение | |
| Проект межевания территории по ул. К. Назаровой (дома с 17 по 49) | Публичные слушания по проекту межевания территории по ул. К. Назаровой (дома с 17 по 49) состоятся 22 апреля 2014 г., в 17.30 по адресу: г. Калининград, ул. Окрябрьская, 79 (административное здание) | Проект границ | Заключение | |
| Проект межевания территории в границах красных линий ул. Красноярская – ул. Марш. Баграмяна | Публичные слушания по проекту межевания территории в границах красных линий ул. Красноярская – ул. Марш. Баграмяна состоятся 24 апреля 2014 г., в 17-30 по адресу: г. Калининград, ул. Фрунзе, 71, кабинет №25а (административное здание) | Проект границ Проект границ откорректированный по итогам публичных слушаний | Заключение | |
| Проект межевания территории в границах красных линий ул. Аллея смелых – ул. Клинская | Публичные слушания по проекту межевания территории в границах красных линий ул. Аллея смелых – ул. Клинская состоятся 22 апреля 2014 г., в 17.30 по адресу: г. Калининград, ул. Окрябрьская, 79 (административное здание) | Проект границ Проект границ откорректированный по итогам публичных слушаний | Заключение | |
| Проект раздела земельного участка с кадастровым номером 39:15:151408:3 по ул. Эльблонгская, 29-29а, 31 | Публичные слушания по проекту Проект раздела земельного участка с кадастровым номером 39:15:151408:3 по ул. Эльблонгская, 29-29а, 31 в Московском районе состоятся 15 апреля 2014 г. по адресу г. Калининград, ул. Октябрьская, 79, (административное здание) | Проект границ | ||
| Проект межевания территории в границах красных линий ул. Толбухина – ул. Кутаисская – пер. Кутаисский | Публичные слушания по проекту межевания территории в границах красных линий ул. Толбухина – ул. Кутаисская – пер. Кутаисский состоятся 24 апреля 2014 г., в 17-30 по адресу: г. Калининград, ул. Фрунзе, 71, кабинет №25а (административное здание) | Проект границ Проект границ откорректированный по итогам публичных слушаний | Заключение | |
| Проект межевания территории в границах красных линий ул. Станочная – ул. Радищева – ул. Поперечная – ул. Ремонтная – ул. Станочная, 21 – ул. Харьковская, 5-21 | Публичные слушания по проекту межевания территории в границах красных линий ул. Станочная – ул. Радищева – ул. Поперечная – ул. Ремонтная – ул. Станочная, 21 – ул. Харьковская, 5-21 состоятся 28 апреля 2014 г., в 17.30 по адресу: г. Калининград, ул. К.Маркса, 43, актовый зал, 4-й этаж (административное здание) | Проект границ | Заключение | |
| Проект межевания территории в границах красных линий просп. Победы – ул. М.Расковой – ул. Пушкина – ул. Огарева | Публичные слушания по проекту межевания территории в границах красных линий просп. Победы – ул. М.Расковой – ул. Пушкина – ул. Огарева состоятся 28 апреля 2014 г., в 17.30 по адресу: г. Калининград, ул. К.Маркса, 43, актовый зал, 4-й этаж (административное здание) | Проект границ Проект межевания территории в границах красных линий откорректированный по итогам публичных слушаний | Заключение | |
| Проект межевания территории в границах красных линий пер. Калинина – ул. Б. Хмельницкого - ул. Ольштынская – пер. Ольштынский - просп. Калинина | Публичные слушания по проекту межевания территории в границах красных линий пер. Калинина – ул. Б. Хмельницкого - ул. Ольштынская – пер. Ольштынский - просп. Калинина состоятся 22 апреля 2014 г., в 17.30 по адресу: г. Калининград, ул. Окрябрьская, 79 (административное здание) | Проект границ | Заключение | |
| Проект межевания территории в границах красных линий ул. Ялтинская - пер. Ялтинский | Публичные слушания по проекту межевания территории в границах красных линий ул. Ялтинская - пер. Ялтинский состоятся 25 апреля 2014 г., в 17-30 по адресу: г. Калининград, ул. Фрунзе, 71, кабинет №25а (административное здание) | Проект границ Проект границ откорректированный по итогам публичных слушаний | Заключение | |
| Проект межевания территории в границах красных линий ул. Тульская - ул. Балашовская - ул. Тамбовская - ул. Баженова | Публичные слушания по проекту межевания территории в границах красных линий ул. Тульская - ул. Балашовская - ул. Тамбовская - ул. Баженова состоятся 24 апреля 2014 г., в 17-30 по адресу: г. Калининград, ул. Фрунзе, 71, кабинет №25а (административное здание) Повторные публичные слушания по проекту межевания территории в границах красных линий ул. Тульская - ул. Балашовская - ул. Тамбовская - ул. Баженова состоятся 13 августа2014 г. в 17.30 по адресу: г. Калининград, ул. Фрунзе, 71, кабинет №25а | Проект границ Проект границ откорректированный по итогам публичных слушаний | Заключение Заключение | |
| Проект межевания территории в границах красных линий пер. Трамвайный 2-й – пер. Трамвайный – ул. Киевская | Публичные слушания по проекту межевания территории в границах красных линий пер. Трамвайный 2-й – пер. Трамвайный – ул. Киевская состоятся 15 апреля 2014 г., в 17.30 по адресу: г. Калининград, ул. Окрябрьская, 79 (административное здание) | Проект границ | Заключение | |
| Проект межевания территории по просп. Победы, 37, ул. Дм. Донского, 50 | Публичные слушания по проекту межевания территории по просп. Победы, 37, ул. Дм. Донского, 50 состоятся 28 апреля 2014 г., в 17-30 по адресу: г. Калининград, ул. К.Маркса, 43, актовый зал, 4-й | Проект границ | Заключение | |
| Проект межевания территории в границах красных линий ул. Ореховая - ул. Багратиона - ул. Омская - ул. Б. Хмельницкого | Публичные слушания по проекту межевания территории в границах красных линий ул. Ореховая - ул. Багратиона - ул. Омская - ул. Б. Хмельницкого состоятся 15 апреля 2014 г., в 17.30 по адресу: г. Калининград, ул. Окрябрьская, 79 (административное здание) | Проект границ Проект границ откорректированный по итогам публичных слушаний | Заключение | |
| Проект межевания территории в границах красных линий ул. Майская - ул. Парт. Железняка | Публичные слушания по проекту межевания территории в границах красных линий ул. Майская - ул. Парт. Железняка состоятся 25 апреля 2014 г., в 17-30 по адресу: г. Калининград, ул. Фрунзе, 71, кабинет №25а (административное здание) | Проект границ Проект границ откорректированный по итогам публичных слушаний | Заключение | |
| Проект межевания территории в границах красных линий ул. Летний проезд - ул. Ген. Толстикова | Публичные слушания по проекту межевания территории в границах красных линий ул. Летний проезд - ул. Ген. Толстикова состоятся 15 апреля 2014 г., в 17.30 по адресу: г. Калининград, ул. Окрябрьская, 79 (административное здание) | Проект границ | Заключение | |
| Проект межевания в составе проекта планировки территории в границах улиц: Парковая аллея – Герцена – Богатырская – Платова – Малая Лесная – Большая Окружная 3-я – железная дорога – Островского (микрорайон Северная гора – южнее ул. Большая Окружная 3-я) г. Калининграда. | Публичные слушания по проекту межевания в составе проекта планировки территории в границах улиц: Парковая аллея – Герцена – Богатырская – Платова – Малая Лесная – Большая Окружная 3-я – железная дорога – Островского (микрорайон Северная гора – южнее ул. Большая Окружная 3-я) г. Калининграда состоятся 21 апреля 2014 г. в 18.00 по адресу: ул. Герцена, 35 (в здании МАОУ СОШ №8) | Проект_границ_1 Проект_границ_2 Проект_границ_3 Проект_границ_4 | ||
| Проект межевания территории по ул. Чкалова (дома 108-128) | Публичные слушания по проекту межевания территории по ул. Чкалова (дома 108-128)состоятся 14 апреля 2014 г., в 17.30 по адресу: г. Калининград, ул. К.Маркса, 43, актовый зал, 4-й этаж (административное здание) | Проект границ Проект межевания территории откорректированный по итогам публичных слушаний | Заключение | |
| Проект межевания территории по ул. Карташева (дома с 91 по 101) | Публичные слушания по проекту межевания территории по ул. Карташева (дома с 91 по 101)состоятся 21 апреля 2014 г., в 17.30 по адресу: г. Калининград, ул. К.Маркса, 43, актовый зал, 4-й этаж (административное здание) | Проект границ Проект межевания территории откорректированный по итогам публичных слушаний | Заключение | |
| Проект межевания территории в границах красных линий ул. Фабричная - ул. Осиновая - пл. Октябрьская - ул. Сосновая | Публичные слушания по проекту межевания территории в границах красных линий ул. Фабричная - ул. Осиновая - пл. Октябрьская - ул. Сосновая состоятся 8 апреля 2014 г., в 17.30 по адресу: г. Калининград, ул. Окрябрьская, 79 (административное здание) | Проект границ Проект границ откорректированный по итогам публичных слушаний | Заключение | |
| Проект межевания территории в границах красных линий ул. Ленинградская – ул. Некрасова – ул. Грибоедова – пер. Грибоедова | Публичные слушания по проекту межевания территории в границах красных линий ул. Ленинградская – ул. Некрасова – ул. Грибоедова – пер. Грибоедова состоятся 10 апреля 2014 г., в 17-30 по адресу: г. Калининград, ул. Фрунзе, 71, кабинет №25а (административное здание) | Проект границ | Заключение | |
| Проект межевания территории по ул. Красноармейской, 19-29, ул. Б. Песочной, 7-17 | Публичные слушания по проекту межевания территории по ул. Красноармейской, 19-29, ул. Б. Песочной, 7-17 состоятся 15 апреля 2014 г., в 17.30 по адресу: г. Калининград, ул. Окрябрьская, 79 (административное здание) | Проект границ | Заключение | |
| Проект межевания территории в границах красных линий ул. Балтийская - ул. Озерная | Публичные слушания по проекту межевания территории в границах красных линий ул. Балтийская - ул. Озерная состоятся 10 апреля 2014 г., в 17-30 по адресу: г. Калининград, ул. Фрунзе, 71, кабинет №25а (административное здание) | Проект границ | Заключение | |
| Проект межевания территории по ул. Зеленой (дома 72, 74) | Публичные слушания по проекту межевания территории по ул. Зеленой (дома 72, 74) состоятся 24 апреля 2014 г., в 17-30 по адресу: г. Калининград, ул. Фрунзе, 71, кабинет №25а (административное здание) | Проект границ | Заключение | |
| Проект межевания территории по ул. Калужской (дома 24, 26, 28) | Публичные слушания по проекту межевания территории по ул. Калужской (дома 24, 26, 28) состоятся 21 апреля 2014 г., в 17.30 по адресу: г. Калининград, ул. К.Маркса, 43, актовый зал, 4-й этаж (административное здание) | Проект границ | Заключение | |
| Проект межевания территории по ул. Крылова, (дома с 2 по 8) | Публичные слушания по проекту межевания территории по ул. Крылова, (дома с 2 по 8) состоятся 10 апреля 2014 г., в 17-30 по адресу: г. Калининград, ул. Фрунзе, 71, кабинет №25а (административное здание) | Проект границ Проект границ откорректированный по итогам публичных слушаний | Заключение | |
| Проект межевания территории в границах красных линий ул. Вагоностроительная – ул. Косогорная – пер. Косогорный | Публичные слушания по проекту межевания территории в границах красных линий ул. Вагоностроительная – ул. Косогорная – пер. Косогорный состоятся 07 апреля 2014 г., в 17.30 по адресу: г. Калининград, ул. К.Маркса, 43, актовый зал, 4-й этаж (административное здание) | Проект границ | Заключение | |
| Проект межевания территории в границах красных линий ул. Л. Толстого – ул. А. Невского | Публичные слушания по проекту межевания территории в границах красных линий ул. Л. Толстого – ул. А. Невского состоятся 03 апреля 2014 г., в 17-30 по адресу: г. Калининград, ул. Фрунзе, 71, кабинет №25а (административное здание) | Проект границ | Заключение | |
| Проект межевания территории в границах красных линий ул. Ушинского - ул. Театральная | Публичные слушания по проекту межевания территории в границах красных линий ул. Ушинского - ул. Театральная состоятся 14 апреля 2014 г., в 17.30 по адресу: г. Калининград, ул. К.Маркса, 43, актовый зал, 4-й этаж (административное здание) | Проект границ Проект межевания территории в границах красных линий откорректированный по итогам публичных слушаний | Заключение | |
| Проект межевания территории по наб. Старопрегольской (дома 2-8, 10-18) | Публичные слушания по проекту межевания территории по наб. Старопрегольской (дома 2-8, 10-18) состоятся 29 апреля 2014 г., в 17.30 по адресу: г. Калининград, ул. Окрябрьская, 79 (административное здание) | Проект границ | Заключение | |
| Проект межевания территории в границах красных линий пер. Арсенальный, 16-90 | Публичные слушания по проекту межевания территории в границах красных линий пер. Арсенальный, 16-90 состоятся 10 апреля 2014 г., в 17-30 по адресу: г. Калининград, ул. Фрунзе, 71, кабинет №25а (административное здание) | Проект границ вариант 1 Проект границ вариант 2 Проект межевания территории в границах красных линий откорректированный по итогам публичных слушаний | Заключение | |
| Проект межевания территории в границах красных линий ул. Кутузова – ул. Каштановая аллея – ул. Адмиральская | Публичные слушания по проекту межевания территории в границах красных линий ул. Кутузова – ул. Каштановая аллея – ул. Адмиральская состоятся 14 апреля 2014 г., в 17.30 по адресу: г. Калининград, ул. К.Маркса, 43, актовый зал, 4-й этаж (административное здание) | Проект границ Проект межевания территории в границах красных линий откорректированный по итогам публичных слушаний | Заключение | |
| Проект межевания территории в границах красных линий ул. К.Маркса - пер. Энгельса - проспект Мира | Публичные слушания по проекту межевания территории в границах красных линий ул. К.Маркса - пер. Энгельса - проспект Мира состоятся 31 марта 2014 г., в 17.30 по адресу: г. Калининград, ул. К.Маркса, 43, актовый зал, 4-й этаж (административное здание) | Проект границ | ||
| Проект межевания территории по ул. Комсомольской, 33, 35 | Публичные слушания по проекту межевания территории по ул. Комсомольской, 33, 35 состоятся 21 апреля 2014 г., в 17.30 по адресу: г. Калининград, ул. К.Маркса, 43, актовый зал, 4-й этаж (административное здание) | Проект границ | Заключение | |
| Межевание квартала в границах красных линий ул. Юношеской (дома 6-8Б, 10-16) | Публичные слушания по проекту межевания квартала в границах красных линий ул. Юношеской (дома 6-8Б, 10-16) состоятся 21 апреля 2014 г., в 17.30 по адресу: г. Калининград, ул. К.Маркса, 43, актовый зал, 4-й этаж (административное здание) | Проект границ Проект межевания территории откорректированный по итогам публичных слушаний | Заключение | |
| Проект межевания территории в границах красных линий ул. Садовая – ул. Киевская – пер. Портовиков 2-й | Публичные слушания по проекту межевания территории в границах красных линий ул. Садовая – ул. Киевская – пер. Портовиков 2-й состоятся 08 апреля 2014 г., в 17.30 по адресу: г. Калининград, ул. Окрябрьская, 79 (административное здание) | Проект границ Проект границ откорректированный по итогам публичных слушаний | Заключение | |
| Проект межевания территории по ул.Мусоргского (дома 52, 54) | Публичные слушания по проекту межевания территории по ул.Мусоргского (дома 52, 54) состоятся 21 апреля 2014 г., в 17.30 по адресу: г. Калининград, ул. К.Маркса, 43, актовый зал, 4-й этаж (административное здание) | Проект границ | Заключение | |
| Проект межевания территории в границах красных линий ул. Лесопарковая – ул. Яблоневая аллея – ул. Нахимова | Публичные слушания по проекту межевания территории в границах красных линий ул. Лесопарковая – ул. Яблоневая аллея – ул. Нахимова состоятся 07 апреля 2014 г., в 17-30 по адресу: г. Калининград, ул. К.Маркса, 43, актовый зал, 4-й этаж (административное здание) | Проект границ | Заключение | |
| Проект межевания территории по ул. Красносельской (дома 2-6, 8-12) | Публичные слушания по проекту межевания территории по ул. Красносельской (дома 2-6, 8-12) состоятся 14 апреля 2014 г., в 17.30 по адресу: г. Калининград, ул. К.Маркса, 43, актовый зал, 4-й этаж (административное здание) | Проект границ | Заключение | |
| Проект межевания территории по ул. Земельной (дома 16,18,20) | Публичные слушания по проекту межевания территории по ул. Земельной (дома 16,18,20) состоятся 10 апреля 2014 г., в 17-30 по адресу: г. Калининград, ул. Фрунзе, 71, кабинет №25а (административное здание) | Проект границ Проект границ откорректированный по итогам публичных слушаний | Заключение | |
| Проект межевания территории в границах красных линий по ул. Бойко – железная дорога | Публичные слушания по проекту межевания территории в границах красных линий по ул. Бойко – железная дорога состоятся 07 апреля 2014 г., в 17.30 по адресу: г. Калининград, ул. К.Маркса, 43, актовый зал, 4-й этаж (административное здание) | Проект границ Проект границ откорректированный по итогам публичных слушаний | ||
| Проект межевания территории в границах красных линий по ул. Судостроительная – ул. Батальная | Публичные слушания по проекту межевания территории в границах красных линий по ул. Судостроительная – ул. Батальная состоятся 01 апреля 2014 г., в 17.30 по адресу: г. Калининград, ул. Окрябрьская, 79 (административное здание) | Проект границ | Заключение | |
| Проект межевания территории в границах красных линий пер. Чернышевского - ул. Банковская - ул. Коммунальная - ул. Чернышевского | Публичные слушания по проекту межевания территории в границах красных линий пер. Чернышевского - ул. Банковская - ул. Коммунальная - ул. Чернышевского состоятся 07 апреля 2014 г., в 17-30 по адресу: г. Калининград, ул. Фрунзе, 71, кабинет №25а (административное здание) | Проект границ Проект границ откорректированный по итогам публичных слушаний | Заключение | |
| Проект межевания территории в границах красных линий ул. Закавказская – ул. Чапаева – ул. Каштановая аллея – пер. Каштановый | Публичные слушания по проекту межевания территории в границах красных линий ул. Закавказская – ул. Чапаева – ул. Каштановая аллея – пер. Каштановый состоятся 14 апреля 2014 г., в 17.30 по адресу: г. Калининград, ул. К.Маркса, 43, актовый зал, 4-й этаж (административное здание) | Проект границ Проект границ откорректированный по итогам публичных слушаний | Заключение | |
| Проект межевания территории по ул. Киевской, 126-130, 130А | Публичные слушания по проекту межевания территории по ул. Киевской, 126-130, 130А состоятся 08 апреля 2014 г., в 17.30 по адресу: г. Калининград, ул. Окрябрьская, 79 (административное здание) | Проект границ | Заключение | |
| Проект межевания территории в границах красных линий| ул. А. Невского (дома 145-145б, 147, 149-153, 179, 179б, 181-183) | Проект межевания территории в границах красных линий ул. А. Невского (дома 145-145б, 147, 149-153, 179, 179б, 181-183) состоятся 03 апреля 2014 г., в 17-30 по адресу: г. Калининград, ул. Фрунзе, 71, кабинет №25а (административное здание) | Проект границ лист 1 Проект границ лист 2 Проект границ откорректированный по итогам публичных слушаний | Заключение | |
| Проект межевания территории в границах красных линий ул. Черниговская – р. Лесная | Публичные слушания по проекту межевания территории в границах красных линий ул. Черниговская – р. Лесная состоятся 01 апреля 2014 г., в 17.30 по адресу: г. Калининград, ул. Окрябрьская, 79 (административное здание) | Проект границ Проект границ откорректированный по итогам публичных слушаний | Заключение | |
| Проект межевания территории по ул. Типографской (дома с 2 по 12) | Публичные слушания по проекту межевания территории по ул. Типографской (дома с 2 по 12) состоятся 01 апреля 2014 г., в 17.30 по адресу: г. Калининград, ул. Окрябрьская, 79 (административное здание) | Проект границ | Заключение | |
| Проект межевания территории в границах красных линий| ул. Некрасова - ул. Верхнеозерная - ул. Грибоедова | Публичные слушания по проекту межевания территории в границах красных линий ул. Некрасова - ул. Верхнеозерная - ул. Грибоедова состоятся 03 апреля 2014 г., в 17-30 по адресу: г. Калининград, ул. Фрунзе, 71, кабинет №25а (административное здание) | Проект границ лист 1 Проект границ лист 2 | Заключение | |
| Проект межевания территории в границах красных линий| ул. Ю. Маточкина, 6-16 | Публичные слушания по проекту межевания территории в границах красных линий. ул. Ю. Маточкина, 6-16 состоятся 03 апреля 2014 г., в 17-30 по адресу: г. Калининград, ул. Фрунзе, 71, кабинет №25а (административное здание) | Проект границ Проект границ откорректированный по итогам публичных слушаний | Заключение | |
| Проект межевания территории по ул. Каштановая аллея, 73 – ул. К. Маркса, 120-158 – просп. Мира, 132 | Публичные слушания по проекту межевания территории по ул. Каштановая аллея, 73 – ул. К. Маркса, 120-158 – просп. Мира, 132 состоятся 31 марта 2014 г., в 17.30 по адресу: г. Калининград, ул. К.Маркса, 43, актовый зал, 4-й этаж (административное здание) | Проект границ Проект границ откорректированный по итогам публичных слушаний | ||
| Проект межевания территории в границах красных линий ул. Батальная - ул. Серж. Щедина (раздел земельного участка) | Публичные слушания по проекту межевания территории в границах красных линий ул. Батальная - ул. Серж. Щедина (раздел земельного участка) состоятся 01 апреля 2014 г., в 17.30 по адресу: г. Калининград, ул. Окрябрьская, 79 (административное здание) | Проект границ | Заключение | |
| Проект межевания территории по ул. Чайковского, 12-18, 20-24 | Публичные слушания по проекту межевания территории по ул. Чайковского, 12-18, 20-24 состоятся 31 марта 2014 г., в 17.30 по адресу: г. Калининград, ул. К.Маркса, 43, актовый зал, 4-й этаж (административное здание) | Проект границ | ||
| Межевание территории в границах красных линий ул. Каштановая аллея - ул.К.Маркса - ул. С.Разина | Публичные слушания по проекту межевания территории в границах красных линий ул. Каштановая аллея - ул.К.Маркса - ул. С.Разина состоятся 31 марта 2014 г., в 17.30 по адресу: г. Калининград, ул. К.Маркса, 43, актовый зал, 4-й этаж (административное здание) | Проект границ Проект границ откорректированный по итогам публичных слушаний | Заключение | |
| Проект раздела земельного участка с кадастровым номером 39:15:121552:24 по проспекту Мира, 44 | Публичные слушания по проекту раздела земельного участка с кадастровым номером 39:15:121552:24 по проспекту Мира, 44 состоятся 27 ноября 2013 г., в 17.30 по адресу: г. Калининград, ул. К.Маркса, 43, актовый зал, 4-й этаж (административное здание) | Проект границ. Вариант 1 Проект границ. Вариант 2 | ||
| Проект межевания территории в границах красных линий ул. Беговая (дома с 35 по 51) – ул. Коммунистическая (дома с 30 по 32) | Повторные публичные слушания по проекту межевания территории в границах красных линий ул. Беговая (дома с 35 по 51) – ул. Коммунистическая (дома с 30 по 32) состоятся 3 декабря 2013 г., в 17.30 по адресу: г. Калининград, ул. Окрябрьская, 79 (административное здание) | Проект границ Проект границ откорректированный по итогам публичных слушаний | ||
| Проект межевания квартала в границах красных линий ул. Киевская - ул. Инженерная | Повторные публичные слушания по проекту межевания квартала в границах красных линий ул. Киевская - ул. Инженерная состоятся 3 декабря 2013 г., в 17.30 по адресу: г. Калининград, ул. Окрябрьская, 79 (административное здание) | Проект границ Проект границ откорректированный по итогам публичных слушаний | ||
| Проект межевания территории в границах красных линий ул. Радищева – ул. Каштановая аллея – ул. Велосипедная дорога | Публичные слушания по проекту межевания территории в границах красных линий ул. Радищева – ул. Каштановая аллея – ул. Велосипедная дорога состоятся 27 ноября 2013 г., в 17.30 по адресу: г. Калининград, ул. К.Маркса, 43, актовый зал, 4-й этаж (административное здание) | Проект границ | ||
| Проект межевания территории в границах красных линий ул. Красная - ул. Марш. Борзова - ул. Комсомольская | Публичные слушания по проекту межевания территории в границах красных линий ул. Красная - ул. Марш. Борзова - ул. Комсомольская состоятся 19 ноября 2013 г., в 17.30 по адресу: г. Калининград, ул. К.Маркса, 43, актовый зал, 4-й этаж (административное здание) | Проект границ | ||
| Проект межевания территории в границах ул. Б. Окружная - пос. Люблинское в Центральном районе г. Калининграда | Публичные слушания по проектц межевания территории в границах ул. Б. Окружная - пос. Люблинское в Центральном районе г. Калининграда состоятся 08.11.2013 г., в 17.30 по адресу: г. Калининград, ул. К.Маркса, 43, актовый зал, 4-й этаж (административное здание) | Проект границ Опорный план Красные линии | ||
| Проект межевания территории в границах красных линий ул. Лейт. Калинина – ул. Лукашова | Публичные слушания по проекту межевания территории в границах красных линий ул. Лейт. Калинина – ул. Лукашова состоятся 12 ноября 2013 г., в 17.30 по адресу: г. Калининград, ул. К. Маркса, 43, актовый зал, 4-й этаж (административное здание) | Проект границ Проект границ откорректированный по итогам публичных слушаний | ||
| Проект межевания территории в границах красных линий ул. Карташева – ул. Сухумская – ул. Ижорская – ул. Урицкого | Публичные слушания по проекту межевания территории в границах красных линий ул. Карташева – ул. Сухумская – ул. Ижорская – ул. Урицкого состоятся 27 ноября 2013 г., в 17.30 по адресу: г. Калининград, ул. К.Маркса, 43, актовый зал, 4-й этаж (административное здание) | Проект границ Проект границ откорректированный по итогам публичных слушаний | ||
| Проект межевания территории в границах красных линий шоссе Балтийское – ул. Новгородская – ул. Ижорская – ул. Каблукова – ул. Карташева | Публичные слушания по проекту межевания территории в границах красных линий шоссе Балтийское – ул. Новгородская – ул. Ижорская – ул. Каблукова – ул. Карташева состоятся 27 ноября 2013 г., в 17.30 по адресу: г. Калининград, ул. К.Маркса, 43, актовый зал, 4-й этаж (административное здание) | Проект границ | ||
| Проект межевания территории в границах красных линий ул. Габайдулина – ул. Авиационная – ул. Гавриленко – ул. Хрисанфова | Публичные слушания по проекту межевания территории в границах красных линий ул. Габайдулина – ул. Авиационная – ул. Гавриленко – ул. Хрисанфова состоятся 12 ноября 2013 г., в 17-30 по адресу: г. Калининград, ул. Фрунзе, 71, кабинет №25а (административное здание) | Проект границ Проект границ откорректированный по итогам публичных слушаний | ||
| Проект межевания территории в границах красных линий ул. Брамса – просп. Советский– ул. Репина | Публичные слушания по проекту межевания территории в границах красных линий ул. Брамса – просп. Советский– ул. Репина состоятся 19 ноября 2013 г., в 17-30 по адресу: г. Калининград, ул. Фрунзе, 71, кабинет №25а (административное здание) | Проект границ | ||
| Проект межевания территории в границах красных линий ул. Товарная – ул. 8 Марта – ул. Судостроительная | Публичные слушания по проекту межевания территории в границах красных линий ул. Товарная – ул. 8 Марта – ул. Судостроительная в Московском районе состоятся 06 ноября 2013 г., в 17.30 по адресу: г. Калининград, ул. Октябрьская, 79 (административное здание) | Проект границ | ||
| Проект межевания территории в границах красных линий ул. Судостроительная (дома с 14 по 88) | Публичные слушания по проекту межевания территории в границах красных линий ул. Судостроительная (дома с 14 по 88) в Московском районе состоятся 06 ноября 2013 г., в 17.30 по адресу: г. Калининград, ул. Октябрьская, 79 (административное здание) | Проект границ | ||
| Проект межевания территории в границах красных линий ул. Литовский вал (дома с 63 по 103) | Публичные слушания по проекту межевания территории в границах красных линий ул. Литовский вал (дома с 63 по 103) состоятся 23 октября 2013г., в 17.30 по адресу: г. Калининград, ул. Фрунзе, 71, кабинет №25а (административное здание) | Проект границ | ||
| Проект межевания территории в границах красных линий ул. Еловая аллея (дома с 28 по 70) | Публичные слушания по проекту межевания территории в границах красных линий ул. Еловая аллея (дома с 28 по 70) состоятся 23 октября 2013г., в 17.30 по адресу: г. Калининград, ул. Фрунзе, 71, кабинет №25а (административное здание) | Проект границ Проект границ откорректированный по итогам публичных слушаний | ||
| Проект межевания территории в границах красных линий ул. Нансена (дома с 20 по 86, 17-17а) - ул. Чаадаева 6-8 | Публичные слушания по проекту межевания территории в границах красных линий ул. Нансена (дома с 20 по 86, 17-17а) - ул. Чаадаева 6-8 состоятся 22 октября 2013 г., в 17-30 по адресу: г. Калининград, ул. Октябрьская, 79 (административное здание) | Проект границ Проект границ откорректированный по итогам публичных слушаний | ||
| Проект межевания территории в границах красных линий улиц: ул.У.Громовой, дома с 99 по 129 | Повторные публичные слушания по проекту межевания территории в границах красных линий улиц: ул.У.Громовой, дома с 99 по 129 состоятся 15 октября 2013 г., в 17.30 по адресу: г. Калининград, ул. Карамзина, 2, МАОУ СОШ №56 | Проект границ | ||
| Проект межевания территории в границах красных линий ул. Уфимская – ул. Береговая – ул. А. Невского – ул. Сержантская | Публичные слушания по проекту межевания территории в границах красных линий ул. Уфимская – ул. Береговая – ул. А. Невского – ул. Сержантская состоятся 16 октября 2013 г., в 17-30 по адресу: г. Калининград, ул. Фрунзе, 71, кабинет №25а (административное здание) | Проект границ Проект границ откорректированный по итогам публичных слушаний | ||
| Проект межевания территории в границах красных линий ул. Пионерская – ул. Томская – ул. Грига – ул. Фрунзе | Публичные слушания по проекту межевания территории в границах красных линий ул. Пионерская – ул. Томская – ул. Грига – ул. Фрунзе состоятся 16 октября 2013 г., в 17-30 по адресу: г. Калининград, ул. Фрунзе, 71, кабинет №25а (административное здание) | Проект границ Проект границ откорректированный по итогам публичных слушаний | ||
| Проект межевания территории в границах красных линий пер. Энгельса - ул. К. Маркса - ул. Каштановая аллея - просп. Мира | Публичные слушания по проекту межевания территории в границах красных линий пер. Энгельса - ул. К. Маркса - ул. Каштановая аллея - просп. Мира состоятся 10 октября 2013 г., в 17.30 по адресу: г. Калининград, ул. К.Маркса, 43, актовый зал, 4-й этаж (административное здание) | Проект границ | ||
| Проект межевания территории по ул. Красносельской (дома с 81а по 85а) | Публичные слушания по проекту межевания территории по ул. Красносельской (дома с 81а по 85а) состоятся 10 октября 2013 г., в 17.30 по адресу: г. Калининград, ул. К.Маркса, 43, актовый зал, 4-й этаж (административное здание) | Проект границ Проект границ откорректированный по итогам публичных слушаний | ||
| Проект межевания территории в границах красных линий ул. Кутузова – ул. Закавказская – просп. Победы | Публичные слушания по проекту межевания территории в границах красных линий ул. Кутузова – ул. Закавказская – просп. Победы состоятся 08 октября 2013 г., в 17.30 по адресу: г. Калининград, ул. К. Маркса, 43, актовый зал, 4-й этаж (административное здание) | Проект границ | ||
| Проект межевания территории в границах красных линий просп. Мира, 86-88А – ул. Красная, 3-5 | Публичные слушания по проекту межевания территории в границах красных линий просп. Мира, 86-88А – ул. Красная, 3-5 состоятся 08 октября 2013 г., в 17.30 по адресу: г. Калининград, ул. К. Маркса, 43, актовый зал, 4-й этаж (административное здание) | Проект границ Проект границ откорректированный по итогам публичных слушаний | ||
| Проект межевания территории в границах красных линий ул. Серж. Колоскова, 6А, корп. 2, 3 | Публичные слушания по проекту межевания территории в границах красных линий ул. Серж. Колоскова, 6А, корп. 2, 3 состоятся 08 октября 2013 г., в 17.30 по адресу: г. Калининград, ул. К. Маркса, 43, актовый зал, 4-й этаж (административное здание) | Проект границ | ||
| Проект межевания территории в границах красных линий ул. Н. Карамзина – ул. У. Громовой | Публичные слушания по проекту межевания территории в границах красных линий ул. Н. Карамзина - ул. У. Громовой в Московском районе состоятся 10 сентября 2013 г., в 17.30 по адресу: г. Калининград, ул. Октябрьская, 79 (административное здание) | Проект границ Схема раздела сквера Проект границ откорректированный по итогам публичных слушаний | ||
| Проект раздела земельного участка с кадастровым номером 39:15:130910:158 по ул. Колхозной, 4Ж, 4Е, 4Д | Публичные слушания по проекту раздела земельного участка с кадастровым номером 39:15:130910:158 по ул. Колхозной, 4Ж, 4Е, 4Д состоятся 20 августа 2013 г., в 17-30 по адресу: г. Калининград, ул. Фрунзе, 71, кабинет №25а (административное здание). | Проект границ | ||
| Проект межевания территории в границах красных линий ул. Коммунальная – ул. В.Котика – ул. Маяковского – ул. Чернышевского | Публичные слушания по проекту межевания территории в границах красных линий ул. Коммунальная – ул. В.Котика – ул. Маяковского – ул. Чернышевского состоятся 27 августа 2013 г., в 17-30 по адресу: г. Калининград, ул. К. Маркса, 43, актовый зал, 4-й этаж (административное здание). | Проект границ Проект границ откорректированный по итогам публичных слушаний | ||
| Проект межевания территории в границах красных линий ул. Комсомольская - ул К. Маркса - ул. Косм. Леонова - ул. Чайковского | Публичные слушания по проекту межевания территории в границах красных линий ул. Комсомольская - ул. К. Маркса - ул. Косм. Леонова - ул. Чайковского состоятся 27 августа 2013 г., в 17-30 по адресу: г. Калининград, ул. К. Маркса, 43, актовый зал, 4-й этаж (административное здание). | Проект границ | ||
| Проект межевания территории в границах красных линий ул. Энгельса – ул. Донская – ул. Адмиральская – ул. Кутузова | Публичные слушания по проекту межевания территории в границах красных линий ул. Энгельса – ул. Донская – ул. Адмиральская – ул. Кутузова состоятся 19 августа 2013 г., в 17-30 по адресу: г. Калининград, ул. К. Маркса, 43, актовый зал, 4-й этаж (административное здание) | Проект границ | ||
| Проект межевания территории в границах красных линий ул. Парковая аллея - ул. Лейт. Князева | Публичные слушания по проекту межевания территории в границах красных линий ул. Парковая аллея - ул. Лейт. Князева состоятся 20 августа 2013 г., в 17.30 по адресу: г. Калининград, ул. Фрунзе, 71, кабинет №25а (административное здание). | Проект границ Проект границ откорректированный по итогам публичных слушаний | ||
| Проект межевания территории в границах красных линий ул. Алданская, 14-30 | Публичные слушания по проекту межевания территории в границах красных линий ул. Алданская (дома №14-30) в Центральном районе состоятся 21 августа 2013 г., в 17-30 по адресу: г. Калининград, ул. Карташева, 111, ДК "Машиностроитель", малый зал. | Проект границ (вариант 1) Проект границ (вариант 2) Проект границ откорректированный по итогам публичных слушаний | ||
| Проект межевания территории в границах красных линий ул. Фабричная - ул. Ольховая - ул. П.Морозова - пл. Октябрьская | Публичные слушания по проекту межевания территории в границах красных линий ул. Фабричная - ул. Ольховая - ул. П.Морозова - пл. Октябрьская состоятся 12 августа 2013 г., в 17-30 по адресу: г. Калининград, ул. Октябрьская, 79 (административное здание) | Проект границ | ||
| Проект межевания территории в границах красных линий пер.Парковый - ул.Аллея Смелых - ул.Мукомольная | Публичные слушания по проекту межевания территории в границах красных линий пер.Парковый - ул.Аллея Смелых - ул.Мукомольная состоятся 12 августа 2013 г., в 17-30 по адресу: г. Калининград, ул. Октябрьская, 79 (административное здание) | Проект границ Проект границ откорректированный по итогам публичных слушаний | ||
| Проект межевания территории в границах красных линий ул. Марш. Борзова (дома с 2 по 48) | Публичные слушания по проекту межевания территории в границах красных линий ул. Марш. Борзова (дома с 2 по 48) состоятся 30 июля 2013 г., в 17.30 по адресу: г. Калининград, ул. К. Маркса, 43, актовый зал, 4-й этаж. | Проект границ Проект границ откорректированный по итогам публичных слушаний | ||
| Схема расположения земельного участка на кадастровой карте территории по пер. Краснодонский, д. 2 | Публичные слушания состоятся 24.07.2013г. в 17.30 по адресу: г.Калининград, ул.Фрунзе, 71, кабинет № 25а (административное здание) | Проект границ | ||
| Проект межевания территории в границах красных линий ул.Ю.Гагарина – ул. Краснодонская | Публичные слушания по проекту межевания территории в границах красных линий ул.Ю.Гагарина - ул.Краснодонская состоятся 24.07.2013г. в 17.30 по адресу: г.Калининград, ул.Фрунзе, 71, кабинет № 25а (административное здание) | Проект границ Проект границ откорректированный по итогам публичных слушаний | ||
| Проект межевания квартала в границах красных линий ул. Ген. лейт. Озерова - пер. Северный - ул. Ракитная - пер. Партизанский – ул. Госпитальная – ул. Пролетарская | Повторные публичные слушания по проекту межевания квартала в границах красных линий ул. Ген. лейт. Озерова - пер. Северный - ул. Ракитная - пер. Партизанский – ул. Госпитальная – ул. Пролетарская состоятся 24.07.2013 г. в 17.30 по адресу: г. Калининград, ул. Фрунзе, 71, кабинет №25а (административное здание) | Проект границ Проект границ откорректированный по итогам публичных слушаний | ||
| Проект межевания территории в границах красных линий ул. Земельная | Публичные слушания по проекту межевания территории в границах красных линий ул. Земельная состоятся 24.07.2013 г. в 17.30 по адресу: г. Калининград, ул. Фрунзе, 71, кабинет №25а (административное здание) | Проект границ Проект границ откорректированный по итогам публичных слушаний | ||
| Проект межевания квартала в границах красных линий ул. Докука - ул. Беланова | Публичные слушания по проекту межевания квартала в границах красных линий ул. Докука - ул. Беланова состоятся 30 июля 2013 г., в 17.30 по адресу: г. Калининград, ул. К. Маркса, 43, актовый зал, 4-й этаж. | Проект границ Проект границ откорректированный по итогам публичных слушаний | ||
| Проект раздела земельного участка с кадастровым номером 39:15:121043:32 по ул. Марш.Борзова, 27-37 и ул. Комсомольская, 108-112 в г. Калининграде | Публичные слушания по проекту раздела земельного участка с кадастровым номером 39:15:121043:32 по ул. Марш.Борзова, 27-37 и ул. Комсомольская, 108-112 в г. Калининграде состоятся 30 июля 2013 г., в 17.30 по адресу: г. Калининград, ул. К. Маркса, 43, актовый зал, 4-й этаж. | 1 вариант 2 вариант | ||
| Проект межевания территории в границах красных линий ул. Невельская - ул. Рыбников - ул. Ставропольская | Публичные слушания по проекту межевания территории в границах красных линий ул. Невельская - ул. Рыбников - ул. Ставропольская состоятся 25 июля 2013 г., в 17.30 по адресу: г. Калининград, ул. К. Маркса, 43, актовый зал, 4-й этаж (административное здание) | Проект границ | ||
| Проект межевания территории в границах красных линий ул. Красная – ул. К. Маркса – ул. Шиллера – ул. Косм. Пацаева | Публичные слушания по проекту межевания территории в границах красных линий ул. Красная – ул. К. Маркса – ул. Шиллера – ул. Косм. Пацаева в Центральном районе состоятся 25 июля 2013 г., в 17.30 по адресу: г. Калининград, ул. К. Маркса, 43, актовый зал, 4-й этаж (административное здание) | Проект границ | ||
| Проект межевания территории в границах красных линий ул. Печатная - ул. П.Морозова - ул. Коммунистическая | Публичные слушания по проекту межевания территории в границах красных линий ул. Печатная - ул. П.Морозова - ул. Коммунистическая в Московском районе состоятся 23 июля 2013 г., в 17.30 по адресу: г. Калининград, пл. Октябрьская, 36, МАОУ СОШ №3. | Проект границ Проект границ откорректированный по итогам публичных слушаний | ||
| Проект межевания квартала в границах красных линий ул. Комсомольская - ул. Молочинского - ул. Косм. Леонова | Публичные слушания по проекту межевания квартала в границах красных линий ул. Комсомольская - ул. Молочинского - ул. Косм. Леонова состоятся 16 июля 2013 г. в 17.30 в административном здании по ул. К. Маркса, 43, актовый зал, 4 этаж | Проект границ Проект границ откорректированный по итогам публичных слушаний | ||
| Проект межевания территории в границах красных линий ул. Чехова – ул. Островского – ул. Тельмана – ул. Котовского | Публичные слушания по проекту межевания территории в границах красных линий ул. Чехова – ул. Островского – ул. Тельмана – ул. Котовского состоятся 17 июля 2013 г., в 17.30 по адресу: г. Калининград, пл. Победы, 1, кабинет №254 (здание администрации города) | Проект границ | ||
| Проект межевания квартала в границах красных линий ул. Черепичная - ул. Лесопильная - ул. Литовский вал | Публичные слушания по проекту межевания квартала в границах красных линий ул. Черепичная - ул. Лесопильная - ул. Литовский вал состоятся 10 июля 2013 г., в 17.30 по адресу: г. Калининград, пл. Победы, 1, кабинет 254 (здание администрации города) | Проект границ Проект границ откорректированный по итогам публичных слушаний | ||
| Проект межевания в границах красных линий ул. Суворова - ул. Заводская | Публичные слушания по проект межевания в границах красных линий ул. Суворова - ул. Заводская в Московском районе состоятся 23 июля 2013 г., в 17.30 по адресу: г. Калининград, пл. Октябрьская, 36, МАОУ СОШ №3. | Проект границ Проект границ откорректированный по итогам публичных слушаний | ||
| Проект раздела земельного участка по ул. Е. Ковальчук 3-9, 3А-7А | Публичные слушания по проекту раздела земельного участка по ул. Е. Ковальчук 3-9, 3А-7А состоятся 16 июля 2013 г. в 17.30 в административном здании по ул. К. Маркса, 43, актовый зал, 4 этаж | Вариант _1 Вариант _2 | ||
| Проект межевания квартала в границах красных линий ул. Госпитальная - ул. Знойная - ул. Ген. лейт. Озерова - ул. Горького | Публичные слушания по проекту межевания квартала в границах красных линий ул. Госпитальная - ул. Знойная - ул. Ген. лейт. Озерова - ул. Горького состоятся 17 июля 2013 г., в 17.30 по адресу: г. Калининград, пл. Победы, 1, кабинет №254 (здание администрации города) | Проект границ | ||
| Проект межевания территории в границах красных линий ул. Белибейская – ул. Аксакова – ул. Куприна – ул. Краснопрудная | Публичные слушания по проекту межевания территории в границах красных линий ул. Белибейская – ул. Аксакова – ул. Куприна – ул. Краснопрудная состоятся 10 июля 2013 г., в 17.30 по адресу: г. Калининград, пл. Победы, 1, кабинет 254 (здание администрации города) | Проект границ | ||
| Проект границ земельных участков в границах красных линий улиц: наб. Ген. Карбышева - бул. Солнечный | Публичные слушания по проекту границ земельных участков в границах красных линий улиц: наб. Ген. Карбышева - бул. Солнечный состоятся 25 июня 2013 года в 17.30 по адресу: г. Калининград, ул.Октябрьская,79, кабинет №311 (административное здание) | Проект границ | ||
| Проект межевания территории в границах красных линий ул. Двинская – ул. Окская – ул. Щаденко | Публичные слушания по проекту межевания территории в границах красных линий ул. Двинская – ул. Окская – ул. Щаденко состоятся 25 июня 2013 года в 17.30 по адресу: г. Калининград, ул.Октябрьская,79, кабинет №311 (административное здание) | Проект границ | ||
| Проект межевания территории в границах красных линий ул. Восточная – ул. Тихорецкая – ул. Великолукская – пер. Восточный | Публичные слушания по проекту межевания территории в границах красных линий ул. Восточная – ул. Тихорецкая – ул. Великолукская – пер. Восточный состоятся 18 июня 2013 года в 17.30 по адресу: г. Калининград, г.Калининград, ул.Октябрьская,79, кабинет №311 (административное здание) | Проект границ Проект границ откорректированный по итогам публичных слушаний | ||
| Проект межевания территории в границах красных линий пер. Потемкина – ул. Сержантская – ул. Потемкина | Публичные слушания по проекту межевания территории в границах красных линий пер. Потемкина – ул. Сержантская – ул. Потемкина состоятся 20 июня 2013 года в 17.30 по адресу: г. Калининград, ул. Фрунзе, 71, кабинет №25а (административное здание) | Проект границ Проект границ откорректированный по итогам публичных слушаний | ||
| Проект межевания территории в границах красных линий ул. Ген. Соммера - ул. Пролетарская - ул. Проф. Севастьянова | Публичные слушания по проекту межевания территории в границах красных линий ул. Ген. Соммера - ул. Пролетарская - ул. Проф. Севастьянова состоятся 19 июня 2013 года в 17.30 по адресу: г. Калининград, ул. Фрунзе, 71, кабинет №25а (административное здание) | Проект границ Проект границ откорректированный по итогам публичных слушаний | ||
| Схема расположения земельных участков на кадастровой карте территории по ул. Красная 6-8, 10 | Публичные слушания состоятся 10.06.2013г. в 17.30 в административном здании по адресу: г. Калининград, ул. К. Маркса, 43, актовый зал, 4-й этаж. | Схема расположения | ||
| Проект межевания территории в границах красных линий ул.Мечникова - ул.Мичурина - ул.Халтурина - ул.Шишкина | Публичные слушания по проекту межевания территории в границах красных линий ул. Мечникова - ул. Мичурина - ул. Халтурина - ул.Шишкина в Московском районе состоятся 25 июня 2013 г., в 17.30 по адресу: г. Калининград, ул. Октябрьская, 79 (административное здание) | Проект границ | ||
| Проект межевания территории в границах красных линий ул. Л. Толстого – ул. А. Невского | Публичные слушания по проекту межевания территории в границах красных линий ул. Л. Толстого – ул. А. Невского состоятся 20 июня 2013 г., в 17.30 по адресу: г. Калининград, ул. Фрунзе, 71, кабинет №25а (административное здание) | Проект границ Проект границ откорректированный по итогам публичных слушаний | ||
| Проект межевания территории в границах красных линий ул. Серпуховская - ул. Полоцкая - просп. Ленинский - ул. Эльблонгская | Публичные слушания по проекту межевания территории в границах красных линий ул. Серпуховская - ул. Полоцкая - просп. Ленинский - ул. Эльблонгская состоятся 18 июня 2013 г., в 17.30 по адресу: г.Калининград, ул.Октябрьская,79, кабинет №311 (административное здание) | Проект границ | ||
| Проект межевания территории в границах красных линий ул. Мл. лейт. Родителева - ул. Чекистов - ул. Красная - ул. Щорса | Публичные слушания по проекту межевания территории в границах красных линий ул. Мл. лейт. Родителева - ул. Чекистов - ул. Красная - ул. Щорса состоятся 10.06.2013 г. в 17.30 в административном здании по адресу: г. Калининград, ул. К.Маркса, 43, актовый зал, 4-й этаж | Проект границ Проект границ откорректированный по итогам публичных слушаний | ||
| Проект межевания территории в границах красных линий ул. Заводская - ул. Строительная - ул. Парковая | Публичные слушания по проекту межевания территории в границах красных линий ул. Заводская - ул. Строительная - ул. Парковая состоятся 6 июня 2013 г., в 17.30 в здании МАОУ СОШ № 48 по адресу г. Калининград, пос. Прибрежный, ул. Заводская, 27Б | Проект границ | ||
| Проект межевания территории в границах красных линий ул. Рабочая - ул. Заводская | Публичные слушания по проекту межевания территории в границах красных линий ул. Рабочая - ул. Заводская состоятся 6 июня 2013 г., в 17.30 в здании МАОУ СОШ № 48 по адресу г. Калининград, пос. Прибрежный, ул. Заводская, 27Б | Проект границ Проект границ откорректированный по итогам публичных слушаний | ||
| Проект межевания территории в границах красных линий ул. Красносельская – ул. Саратовская | Публичные слушания по проекту межевания территории в границах красных линий ул. Красносельская – ул. Саратовская состоятся 5 июня 2013 года в 17.30 в административном здании по ул. К. Маркса, 43, актовый зал, 4 этаж | Проект границ | ||
| Проект межевания территории в границах красных линий ул. Грига - ул. Стекольная - просп. Московский | Публичные слушания по проекту межевания территории в границах красных линий ул. Грига - ул. Стекольная - просп. Московский состоятся 4 июня 2013 года в 17.30 по адресу: г. Калининград, ул. Фрунзе, 71, кабинет №25а (административное здание) | Проект границ | Заключение | |
| Проект межевания территории в границах красных линий ул. Воздушная - ул. Художественная - ул. Бассейная - ул. Белинского | Публичные слушания по проекту межевания территории в границах красных линий ул. Воздушная - ул. Художественная - ул. Бассейная - ул. Белинского состоятся 5 июня 2013 года в 17.30 в административном здании по ул. К. Маркса, 43, актовый зал, 4 этаж | Проект границ Проект границ откорректированный по итогам публичных слушаний | ||
| Проект межевания территории в границах красных линий ул. Звездная – ул. Театральная – ул. Космическая – ул. Диккенса | Публичные слушания по проекту межевания территории в границах красных линий ул. Звездная – ул. Театральная – ул. Космическая – ул. Диккенса состоятся 4 июня 2013 г., в 17.30 по адресу: г. Калининград, ул. Фрунзе, 71, кабинет № 25а (административное здание) | Проект границ Проект границ откорректированный по итогам публичных слушаний | ||
| Проект межевания территории в границах красных линий пер. Заводской | Публичные слушания по проекту межевания территории в границах красных линий пер. Заводской состоятся 6 июня 2013 г., в 17.30 в здании МАОУ СОШ № 48 по адресу г. Калининград, пос. Прибрежный, ул. Заводская, 27Б | Проект границ Проект границ откорректированный по итогам публичных слушаний | ||
| Проект межевания территории в границах красных линий ул. Комсомольская – ул. Косм. Пацаева – ул. Косм. Леонова – просп. Мира | Публичные слушания по проекту межевания территории в границах красных линий ул. Комсомольская – ул. Косм. Пацаева – ул. Косм. Леонова – просп. Мира состоятся 23 мая 2013 года в 17.30 в административном здании по ул. К. Маркса, 43, актовый зал, 4 этаж | Проект границ Проект границ откорректированный по итогам публичных слушаний | ||
| Проект межевания территории в границах красных линий ул. Коммунальная – ул. К. Маркса – ул. Офицерская - ул. С. Разина | Публичные слушания по проекту межевания территории в границах красных линий ул. Коммунальная – ул. К. Маркса – ул. Офицерская - ул. С. Разина состоятся 16.05.2013 г. в 17.30 в административном здании по адресу: г. Калининград, ул. К.Маркса, 43, актовый зал, 4-й этаж | Проект границ Проект границ откорректированный по итогам публичных слушаний | ||
| Проект межевания территории в границах красных линий ул. Алябьева - ул. К. Маркса - ул. Г. Димитрова - ул. Менжинского - ул. Репина | Повторные публичные слушания по проекту межевания территории в границах красных линий ул. Алябьева - ул. К. Маркса - ул. Г. Димитрова - ул. Менжинского - ул. Репина состоятся 16.05.2013 г. в 17.30 в административном здании по адресу: г. Калининград, ул. К.Маркса, 43, актовый зал, 4-й этаж | Проект границ Проект границ откорректированный по итогам публичных слушаний | ||
| Проект межевания территории в границах красных линий ул. Мл. Лейт. Родителева - ул. Вернадского - ул. Красная -ул. Чекистов | Публичные слушания по проекту межевания территории в границах красных линий ул. Мл. Лейт. Родителева - ул. Вернадского - ул. Красная -ул. Чекистов состоятся состоятся 10 июня 2013 года в 17.30 в административном здании по ул. К. Маркса, 43, актовый зал, 4 этаж | Проект границ | ||
| Проект межевания территории в границах красных линий ул. Каменная - ул. К. Маркса - ул. Коммунальная - ул. Ст. Разина | Публичные слушания по проекту межевания территории в границах красных линий ул. Каменная - ул. К. Маркса - ул. Коммунальная - ул. Ст. Разина состоятся 16.05.2013 г. в 17.30 в административном здании по адресу: г. Калининград, ул. К.Маркса, 43, актовый зал, 4-й этаж | Проект границ | ||
| Проект межевания территории в границах красных линий улиц: ул. Пролетарская – ул. Минская | Публичные слушания по проекту межевания территории в границах красных линий улиц: ул. Пролетарская – ул. Минская состоятся 07 мая 2013 г., в 17.30 по адресу: г. Калининград, ул. Фрунзе, 71, кабинет № 25а (административное здание) | Проект границ Проект границ откорректированный по итогам публичных слушаний | ||
| Проект межевания территории в границах красных линий ул. Щепкина - пер. Лаптевых - ул. Лаптевых | Публичные слушания по проекту межевания территории в границах красных линий ул. Щепкина - пер. Лаптевых - ул. Лаптевых состоятся 14 мая 2013 года в 17.30 в помещении МАОУ СОШ №28 по ул. Суворова, 139а. | Проект границ | ||
| Проект межевания территории в границах красных линий просп. Мира – пр-зд Октябрьский 2-й | Публичные слушания по проекту межевания территории в границах красных линий просп. Мира – пр-зд Октябрьский 2-й состоятся 23 мая 2013 года в 17.30 в административном здании по ул. К. Маркса, 43, актовый зал, 4 этаж | Проект границ Проект границ откорректированный по итогам публичных слушаний | ||
| Проект межевания территории в границах красных линий просп. Мира – ул. Грекова – пер. Театральный | Публичные слушания по проекту межевания территории в границах красных линий просп. Мира – ул. Грекова – пер. Театральный состоятся 29 мая 2013 года в 17.30 в административном здании по адресу: г. Калининград, ул. К. Маркса, 43, актовый зал, 4-й этаж | Проект границ Проект границ откорректированный по итогам публичных слушаний | ||
| Проект межевания территории в границах красных линий пер. Лаптевых – ул. Щепкина – ул. Кремлевская – ул. Лаптевых | Публичные слушания по проект межевания территории в границах красных линий пер. Лаптевых – ул. Щепкина – ул. Кремлевская – ул. Лаптевых состоятся 14 мая 2013 года в 17.30 в помещении МАОУ СОШ №28 по ул. Суворова, 139а | Проект границ Проект границ откорректированный по итогам публичных слушаний | ||
| Проект межевания территории в границах красных линий пер. Лаптевых – ул. К. Заслонова – ул. Кремлевская – ул. Щепкина | Публичные слушания по проект межевания территории в границах красных линий пер. Лаптевых – ул. К. Заслонова – ул. Кремлевская – ул. Щепкина состоятся 14 мая 2013 года в 17.30 в помещении МАОУ СОШ №28 по ул. Суворова, 139а. | Проект границ Проект границ откорректированный по итогам публичных слушаний | ||
| Проект межевания территории в границах красных линий ул. Красная – ул. Щорса – ул. Комсомольская – ул. Лейтенанта Яналова | Публичные слушания по проекту межевания территории в границах красных линий ул. Красная – ул. Щорса – ул. Комсомольская – ул. Лейтенанта Яналова состоятся 29 мая 2013 года в 17.30 в административном здании по адресу: г. Калининград, ул. К. Маркса, 43, актовый зал, 4-й этаж | Проект границ | ||
| Проект межевания территории в границах красных линий ул. Горького – ул. Гайдара – ул. Зеленая | Публичные слушания по проекту межевания территории в границах красных линий ул. Горького – ул. Гайдара – ул. Зеленая состоятся 15 мая 2013 г., в 17.30 по адресу: г. Калининград, ул. Фрунзе, 71, кабинет №25а (административное здание) | Проект границ Проект границ откорректированный по итогам публичных слушаний | ||
| Проект межевания территории в границах красных линий ул. Горького – ул. Азовская – ул. Госпитальная – ул. Знойная | Публичные слушания по проекту межевания территории в границах красных линий ул. Горького – ул. Азовская – ул. Госпитальная – ул. Знойная состоятся 22 мая 2013 г., в 17.30 по адресу г. Калининград, ул. Фрунзе, 71, кабинет №25а (административное здание) | Проект границ | ||
| Проект межевания территории в границах красных линий ул. Ген. Толстикова - ул. Батальная - пер. Альпийский 2-й - пер. Альпийский 1-й | Публичные слушания по проекту межевания территории в границах красных линий ул. Ген. Толстикова - ул. Батальная - пер. Альпийский 2-й - пер. Альпийский 1-й состоятся 30.04.2013 в 17-30 по адресу: ул. Машиностроительная 66 (МОУ СОШ №29) | Проект границ | ||
| Проект межевания территории в границах красных линий ул.Маршала Борзова, дома №№58Д, 58Е | Публичные слушания по проекту межевания территории в границах красных линий ул.Маршала Борзова, дома №№58Д, 58Е состоятся 10 июня 2013 года в 17.30 в административном здании по адресу: г. Калининград, ул. К. Маркса, 43, актовый зал, 4-й этаж | Проект границ Проект границ откорректированный по итогам публичных слушаний | ||
| Проект межевания территории в границах красных линий ул.Фортовая дорога, дома №№7,9 | Публичные слушания по проекту межевания территории в границах красных линий ул.Фортовая дорога, дома №№7,9 состоятся 12 апреля 2013 г., в 17.30 по адресу: г. Калининград, ул. Фрунзе, 71, кабинет №25а (административное здание) | Проект границ | ||
| Проект межевания территории в границах красных линий ул.Ульяновская-ул.Радищева-ул.Литейная-ул.Ремонтная | Публичные слушания по проекту межевания территории в границах красных линий ул.Ульяновская-ул.Радищева-ул.Литейная-ул.Ремонтная состоятся 11.04.2013 г. в 17.30 в административном здании по адресу: г. Калининград, ул. К. Маркса, 43, актовый зал, 4-й этаж | Проект границ | ||
| Проект межевания территории в границах красных линий ул.Судостроительная-ул.Инженерная | Публичные слушания по проекту межевания территории в границах красных линий ул. Судостроительная – ул. Инженерная.состоятся 30.04.2013 в 17-30 по адресу: ул. Машиностроительная 66 (МОУ СОШ №29) | Проект границ | ||
| Проект межевания территории в границах красных линий ул.Новый вал-ул.Проф.Морозова-ул.Эпроновская-ул.Багратиона | Публичные слушания по проекту межевания территории в границах красных линий улиц: ул.Новый вал -ул.Проф.Морозова - ул.Эпроновская -ул.Багратиона, состоятся 24 апреля 2013 г., в 17.30 по адресу: г.Калининград, ул.Октябрьская,79, кабинет №311 (административное здание) | Проект границ | ||
| Проект межевания территории в границах красных линий бул.Ф.Лефорта-ул.Согласия | Публичные слушания по проекту межевания территории в границах красных линий бул.Ф.Лефорта - ул.Согласия состоятся 15 мая 2013 г., в 17.30 по адресу: г. Калининград, ул. Фрунзе, 71, кабинет №25а (административное здание) | Проект границ Проект границ откорректированный по итогам публичных слушаний | ||
| Проект межевания территории в границах красных линий просп.Ленинский-ул.Казанская-ул.Багратиона | Публичные слушания по проекту межевания территории в границах красных линий улиц: просп.Ленинский - ул.Казанская - ул.Багратиона, состоятся 24 апреля 2013 г., в 17.30 по адресу: г.Калининград, ул.Октябрьская,79, кабинет №311 (административное здание) | Проект границ | ||
| Проект межевания территории в границах красных линий ул.Войнич-ул.Косм.Леонова-ул.Чекистов-просп.Советский | Публичные слушания по проекту межевания территории в границах красных линий ул.Войнич - ул.Косм.Леонова - ул.Чекистов - просп.Советский состоятся 11.04.2013 г. в 17.30 в административном здании по адресу: г. Калининград, ул. К. Маркса, 43, актовый зал, 4-й этаж | Проект границ Проект границ откорректированный по итогам публичных слушаний | ||
| Проект межевания территории в границах красных линий ул.Батальная-ул.Дрожжевая | Публичные слушания по проекту межевания территории в границах красных линий ул. Батальная – ул. Дрожжевая состоятся 30.04.2013 в 17-30 по адресу: ул. Машиностроительная 66 (МОУ СОШ №29) | Проект границ | ||
| Проект межевания территории в границах красных линий ул.Орудийная-ул.Старокаменная (дома №№38-68 по ул.Орудийной) | Публичные слушания по проекту межевания территории в границах красных линий ул.Орудийная – ул. Старокаменная (дома №№38-68 по ул.Орудийной) состоятся 12 апреля 2013 г., в 17.30 по адресу: г. Калининград, ул. Фрунзе, 71, кабинет №25а (административное здание) | Проект границ Проект границ откорректированный по итогам публичных слушаний | ||
| Проект межевания квартала в границах красных линий ул.Коммунальная-ул.Ст.Разина-ул.Офицерская-проспект Мира | Проект межевания квартала в границах красных линий ул.Коммунальная-ул.С т .Разина-ул.Офицерская-проспект Мира состоятся 27.03.2013 г. в 17.30 в здании администрации Центрального района ГО «Город Калининград» (ул. К. Маркса, 43, актовый зал, 4-й этаж) | Проект границ Проект границ откорректированный по итогам публичных слушаний | ||
| Корректировка проекта межевания квартала в границах красных линий просп.Гвардейский-ул.Ген.Галицкого-ул.Ген.Буткова-ул.Марш.Баграмяна | Публичные слушания по проекту межевания квартала в границах красных линий просп.Гвардейский-ул.Ген.Галицкого-ул.Ген.Буткова-ул.Марш.Баграмяна состоятся 10 декабря 2013 г., в 17.30 по адресу: г. Калининград, ул. Фрунзе, 71, кабинет №25а (административное здание) | Проект границ | ||
| Проект межевания квартала в границах красных линий ул. Вагнера - ул.Больничная - ул. Житомирская - ул.Коперника в Ленинградском районе | Публичные слушания по проекту межевания квартала в границах красных линий ул. Вагнера - ул. Больничная - ул. Житомирская - ул. Коперника в Ленинградском районе состоятся 27 февраля 2013 г., в 17.30 по адресу: г. Калининград, ул. Фрунзе, 71, каб. 25а (администрация Ленинградского района) | Проект границ Проект границ откорректированный по итогам публичных слушаний | ||
| Проект межевания территории в границах красных линий улиц: просп.Московский-ул.Мариупольская | Публичные слушания по проекту межевания территории в границах красных линий улиц: просп.Московский-ул.Мариупольская состоятся 27 февраля 2013 г., в 17.30 по адресу: г. Калининград, ул. Фрунзе, 71, каб. 25а (администрация Ленинградского района) | Проект границ | ||
| Проект межевания квартала в границах красных линий улиц Нарвская-Гайдара-Дорожная-Зеленая | Публичные слушания по проекту межевания квартала в границах красных линий улиц Нарвская – Гайдара - Дорожная - Зеленая состоятся 27 декабря 2012 г., в 17.30 по адресу: г.Калининград, ул.Фрунзе, 71, каб.25а (администрация Ленинградского района) | Проект границ Проект границ откорректированный по итогам публичных слушаний | ||
| Проект межевания территории в границах красных линий улиц: Космическая- просп.Ленинский, 6-8б | Публичные слушания по проекту межевания территории в границах красных линий улиц: Космическая- просп.Ленинский, 6-8б состоятся 27 декабря 2012 г., в 17.30 по адресу: г.Калининград, ул.Фрунзе, 71, каб.25а (администрация Ленинградского района) | Проект границ Проект границ откорректированный по итогам публичных слушаний | ||
| Корректировка проекта межевания квартала в границах красных линий улиц Пионерская – пер.Грига – Литовский вал | Публичные слушания по проекту межевания квартала в границах красных линий улиц Пионерская – пер.Грига – Литовский вал состоятся 10 декабря 2012 г., в 17.30 по адресу: г.Калининград, ул.Фрунзе, 71, каб.25а (администрация Ленинградского района) | Проект границ | ||
| Проект межевания территории в границах красных линий ул. Пролетарская – ул. Черняховского | Публичные слушания по проекту межевания территории в границах красных линий ул. Пролетарская – ул. Черняховского состоятся 19 декабря 2012 г., в 17.30 по адресу: г.Калининград, ул.Фрунзе, 71, каб.25а (администрация Ленинградского района | Проект границ Проект границ (откорректированный по итогам публичных слушаний) | ||
| Проект межевания территории в границах красных линий пер. Малый – ул. Эпроновская – ул. Краснооктябрьская – ул. Проф. Морозова в Московском районе | Публичные слушания по проекту межевания территории в границах красных линий пер. Малый – ул. Эпроновская – ул. Краснооктябрьская – ул. Проф. Морозова в Московском районе состоятся 12.12.2012 г. в 18.00 в помещении администрации Московского района (ул. Октябрьская, 79, каб. 311) | Проект границ (вариант 1) Проект границ (вариант 2) Проект границ (откорректированный по итогам публичных слушаний) | ||
| Проект межевания территории в границах красных линий: ул. Клиническая – ул. Нерчинская – ул. 9 Апреля – ул. Фрунзе | Публичные слушания по проекту межевания территории в границах красных линий: ул. Клиническая – ул. Нерчинская – ул. 9 Апреля – ул. Фрунзе состоятся 10 декабря2012 г., в 17.30 по адресу: г.Калининград, ул.Фрунзе, 71, каб.25а (администрация Ленинградского района) | Проект границ Проект границ (откорректированный по итогам публичных слушаний) | ||
| Корректировка проекта межевания территории в границах красных линий улиц Озерная-Стрелковая-Беломорская | Публичные слушания по проекту межевания территории в границах красных линий улиц Озерная-Стрелковая-Беломорская состоятся 19 декабря 2012 г., в 17.30 по адресу: г.Калининград, ул.Фрунзе, 71, каб.25а (администрация Ленинградского района | Проект границ Проект границ (откорректированный по итогам публичных слушаний) | ||
| Проект межевания территории по ул. Батальной, 67-71 | Публичные слушания по проекту межевания территории по ул. Батальной, 67-71 состоятся 12.12.2012 г. в 18.00 в помещении администрации Московского района (ул. Октябрьская, 79, каб. 311) | Проект границ Проект границ (откорректированный по итогам публичных слушаний) | ||
| Проект межевания квартала в границах красных линий ул.Львовской-пер.Львовского-пер.Ржевского 3-го | Публичные слушания по проекту межевания квартала в границах красных линий ул. Львовской – пер. Львовского – пер. Ржевского 3-го состоятся 21.11.2012 г. в 18.00 в помещении администрации Московского района (ул. Октябрьская, 79, каб. 311) | Проект границ Проект границ (откорректированный по итогам публичных слушаний) | ||
| Проект межевания территории в границах красных линий ул.Носова-ул.Брамса-ул.Грекова | Публичные слушания по проекту межевания территории в границах красных линий ул.Носова-ул.Брамса-ул.Грекова состоятся 20.11.2012 г. в 17.30 в здании администрации Центрального района ГО "Город Калининград" (ул. К.Маркса, 43, актовый зал, 4 этаж). | Проект границ Проект границ откорректированный по итогам публичных слушаний | ||
| Проект межевания территории в границах красных линий ул.Энгельса-ул.Нахимова-пер.Нахимова-ул.Чапаева | Публичные слушания по проекту межевания территории в границах красных линий ул.Энгельса-ул.Нахимова-пер.Нахимова-ул.Чапаева состоятся 20.11.2012 г. в 17.30 в здании администрации Центрального района ГО "Город Калининград" (ул. К.Маркса, 43, актовый зал, 4 этаж). | Проект границ Проект границ откорректированный по итогам публичных слушаний | ||
| Проект межевания территории в границах красных линий ул.Чкалова-ул.Осипенко-ул.Ростовская-ул.Чернышевского | Публичные слушания по проекту межевания территории в границах красных линий ул.Чкалова-ул.Осипенко-ул.Ростовская-ул.Чернышевского состоятся 23.10.2012 г. в 17.30 в здании администрации Центрального района ГО "Город Калининград" (ул. К.Маркса, 43, актовый зал, 4 этаж). | Проект границ Проект границ (откорректированный по итогам публичных слушаний) | ||
| Проект межевания территории в границах красных линий ул. Алябьева - ул. К. Маркса - ул. Г. Димитрова - ул. Менжинского - ул. Репина | Публичные слушания по проекту межевания территории в границах красных линий ул. Алябьева - ул. К. Маркса - ул. Г. Димитрова - ул. Менжинского - ул. Репина состоятся 23.10.2012 г. в 17.30 в здании администрации Центрального района ГО "Город Калининград" (ул. К.Маркса, 43, актовый зал, 4 этаж). | Проект границ Проект границ откорректированный по итогам публичных слушаний | ||
| Проект межевания территории в границах красных линий ул. Камская – ул. Киевская – ул. Березовая | Публичные слушания по проекту межевания территории в границах красных линий ул. Камская – ул. Киевская – ул. Березовая состоятся 24.10.2012 г., в 18.00 в помещении МОУ ДОЦ ДТД и М «Янтарь» (ул. Судостроительная, 2) | Проект границ Проект границ откорректированный по итогам публичных слушаний | ||
| Проект межевания квартала в границах красных линий пер.Лесная аллея-ул.Большая Окружная 1-я-просп.Победы | Публичные слушания по проекту межевания квартала в границах красных линий пер.Лесная аллея -ул.Большая Окружная 1-я - просп.Победы состоятся 04.10.2012 г. в 17.30 в здании администрации Центрального района ГО "Город Калининград" (ул. К.Маркса, 43, актовый зал, 4 этаж) | Проект границ Проект границ откорректированный по итогам публичных слушаний | ||
| Проект межевания территории в границах красных линий ул.Тихорецкая-ул.Школьная-ул.Киевская-ул.Великолукская | Публичные слушания по проекту межевания территории в границах красных линий ул.Тихорецкая-ул.Школьная-ул.Киевская-ул.Великолукская состоятся 17.10.2012 г., в 18.00 в помещении МОУ ДОЦ ДТД и М «Янтарь» (ул. Судостроительная, 2) | Проект границ Проект границ откорректированный по итогам публичных слушаний | ||
| Проект межевания территории в границах красных линий ул.Восточная-пер.Восточный-ул.Великолукская-ул.Киевская | Публичные слушания по проекту межевания территории в границах красных линий ул.Восточная-пер.Восточный-ул.Великолукская-ул.Киевская состоятся 17.10.2012 г., в 18.00 в помещении МОУ ДОЦ ДТД и М «Янтарь» (ул. Судостроительная, 2) | Проект границ | ||
| Проект межевания территории в границах красных линий ул.Шевченко-ул.Зарайская | Публичные слушания по проекту межевания территории в границах красных линий ул.Шевченко-ул.Зарайская в Ленинградском районе состоятся 06 сентября 2012 г., в 18.00 по адресу: г.Калининград, ул.Фрунзе, 71, каб.25а (администрация Ленинградского района) | Проект границ Проект границ откорректированный по итогам публичных слушаний | ||
| Проект межевания территории в границах красных линий ул.Маяковского-ул.Лейт.Яналова-ул.Красная-ул.Чернышевского | Публичные слушания по проекту межевания территории в границах красных линий ул.Маяковского-ул.Лейт.Яналова-ул.Красная-ул.Чернышевского состоятся 23.08.2012 г. в 17.30 в здании администрации Центрального района ГО "Город Калининград" (ул. К.Маркса, 43, актовый зал, 4 этаж). | Проект границ Проект границ откорректированный по итогам публичных слушаний | ||
| Проект межевания территории в границах красных линий ул.Минина и Пожарского-просп.Мира-ул.Е.Ковальчук-просп.Победы | Публичные слушания по проекту межевания территории в границах красных линий ул.Минина и Пожарского-просп.Мира-ул.Е.Ковальчук-просп.Победы состоятся 07.08.2012г. в 17.30 в здании администрации Центрального района ГО «Город Калининград» (ул. К. Маркса, 43, актовый зал, 4-й этаж) | Проект границ Проект границ откорректированный по итогам публичных слушаний | ||
| Проект межевания территории в границах красных линий ул.Северной-ул.И.Сусанина-ул.Горького | Публичные слушания по проекту межевания территории в границах красных линий ул.Северной-ул.И.Сусанина-ул.Горького состоятся 25.07.2012 г., в 17.30 по адресу: г. Калининград, ул. Фрунзе, 71, кабинет №25а (здание администрации Ленинградского района) | Проект границ | ||
| Проект межевания территории в границах красных линий ул.Чапаева-просп.Мира-ул.Кутузова-ул.М.Расковой | Публичные слушания по проекту межевания территории в границах красных линий ул.Чапаева-просп.Мира-ул.Кутузова-ул.М.Расковой состоятся 07.08.2012г. в 17.30 в здании администрации Центрального района ГО «Город Калининград» (ул. К. Маркса, 43, актовый зал, 4-й этаж) | Проект границ Проект границ откорректированный по итогам публичных слушаний | ||
| Проект межевания территории в границах красных линий ул.Старорусской-ул.Третьяковской-ул.Волховской | Публичные слушания по проекту межевания территории в границах красных линий ул.Старорусской-ул.Третьяковской-ул.Волховской состоятся 09.08.2012г. в 17.30 в здании администрации Центрального района ГО «Город Калининград» (ул. К. Маркса, 43, актовый зал, 4-й этаж) | Проект границ Проект границ откорректированный по итогам публичных слушаний | ||
| Проект межевания территории в границах красных линий улиц: ул.Нарвская-ул.Калужская-пер.Нарвский; ул.Нарвская-пер.Нарвский-пер.Калужский-ул.Желябова; пер.Калужский-ул.Калужская-пер.Желябова (три квартала) | Публичные слушания по проекту межевания территории в границах красных линий улиц: ул.Нарвская-ул.Калужская-пер.Нарвский; ул.Нарвская-пер.Нарвский-пер.Калужский-ул.Желябова; пер.Калужский-ул.Калужская-пер.Желябова (три квартала) состоятся 24.07.2012 г. в 17.30 в здании администрации Центрального района ГО «Город Калининград» (ул. К. Маркса, 43, актовый зал, 4-й этаж) | Проект границ Проект границ откорректированный по итогам публичных слушаний | ||
| Проект межевания территории в границах красных линий ул.Нансена-ул.Чаадаева-ул.А.Суворова | Публичные слушания по проекту межевания территории в границах красных линий ул.Нансена - ул.Чаадаева - ул.А.Суворова состоятся 30.07.2012 г. в 18.00 в помещении администрации Московского района (ул. Октябрьская, 79, каб. 311) | Проект границ | ||
| Проект межевания территории в границах красных линий просп.Ленинского-ул.Пролетарской-ул.Шевченко | Публичные слушания по проекту межевания территории в границах красных линий просп.Ленинского-ул.Пролетарской-ул.Шевченко состоятся 25.07.2012 г., в 17.30 по адресу: г. Калининград, ул. Фрунзе, 71, кабинет №25а (здание администрации Ленинградского района) | Проект границ | ||
| Проект межевания квартала в границах красных линий просп.Ленинского-ул.Полоцкой-ул.Серпуховской-ул.Портовой | Публичные слушания по проекту межевания квартала в границах красных линий просп.Ленинского-ул.Полоцкой-ул.Серпуховской-ул.Портовой состоятся 05.07.2012г. в 18.00 в помещении администрации Московского района (ул. Октябрьская, 79, каб. 311) | Проект границ | ||
| Проект межевания квартала в границах красных линий ул.Дзержинского-проезд Дзержинского-ул.Аллея Смелых-р.Лесная | Публичные слушания по проекту межевания квартала в границах красных линий ул.Дзержинского - проезд Дзержинского - ул.Аллея Смелых - р.Лесная состоятся 26.07.2012 г. в 18.00 в помещении администрации Московского района (ул. Октябрьская, 79, каб. 311) | Проект границ | ||
| Проект межевания квартала в границах красных линий ул.Аральская – ул. Ижорская – ул. Карташева | Публичные слушания по проекту межевания квартала в границах красных линий ул. Аральская – ул. Ижорская – ул. Карташева состоятся 27.06.2012 г. в 17.30 в здании администрации Центрального района ГО «Город Калининград» (ул. К. Маркса, 43, актовый зал, 4-й этаж) | Проект границ | ||
| Проект межевания квартала в границах красных линий улиц: Менделеева – Воздушная - Красносельская в Центральном районе | Публичные слушания по проекту межевания квартала в границах красных линий ул. Менделеева – ул. Воздушная – ул. Красносельская в Центральном районе состоятся 21.06.2012 г. в 17.30 в здании администрации Центрального района ГО «Город Калининград» (ул. К. Маркса, 43, актовый зал, 4-й этаж) | Проект границ Проект границ (откорректированный по результатам публичных слушаний) | ||
| Проект межевания квартала в границах красных линий ул. Славянская – ул. Сухумская – ул. Карташева – ул. Урицкого | Публичные слушания по проектам межевания квартала в границах красных линий ул. Славянская – ул. Сухумская – ул. Карташева – ул. Урицкого состоятся 27.06.2012 г. в 17.30 в здании администрации Центрального района ГО «Город Калининград» (ул. К. Маркса, 43, актовый зал, 4-й этаж) | Проект границ Проект границ откорректированный по итогам публичных слушаний | ||
| Проект межевания территории в границах красных линий ул. Чекистов - ул. Дунайская - ул. Вернадского - ул. Мл. лейт. Родителева | Публичные слушания по проекту межевания территории в границах красных линий ул. Чекистов - ул. Дунайская - ул. Вернадского - ул. Мл. лейт. Родителева состоятся 21.06.2012 г. в 17.30 в здании администрации Центрального района ГО «Город Калининград» (ул. К. Маркса, 43, актовый зал, 4-й этаж) | Проект границ | ||
| Проект межевания территории в границах красных линий улиц Театральная – Ген. Галицкого | Публичные слушания по проекту межевания территории в границах красных линий улиц Театральная – Ген. Галицкого состоятся 13.06.2012 г., в 17.30 по адресу: г. Калининград, ул. Фрунзе, 71, кабинет №25а (здание администрации Ленинградского района) | Проект границ | ||
| Проект межевания территории в границах красных линий ул. Мл. лейт. Ротко – ул. Подп. Половца – ул. Б. Хмельницкого – ул. Багратиона | Публичные слушания по проекту межевания территории в границах красных линий ул. Мл. лейт. Ротко – ул. Подп. Половца – ул. Б. Хмельницкого – ул. Багратиона (перенесены c 21.06.2012 г. на 05.07.2012 г.) состоятся в 18.00 в помещении администрации Московского района (ул. Октябрьская, 79, каб. 311) | Проект границ | ||
| Проект межевания территории в границах красных линий ул. Ленинградская – ул. Лескова – ул. Некрасова | Публичные слушания по проект межевания территории в границах красных линий ул. Ленинградская – ул. Лескова – ул. Некрасова состоятся 13.06.2012 г., в 17.30 по адресу: г. Калининград, ул. Фрунзе, 71, кабинет №25а (здание администрации Ленинградского района) | Проект границ | ||
| Проект межевания территории в границах красных линий ул. П. Морозова | Публичные слушания по проект межевания территории в границах красных линий ул. П. Морозова состоятся 30.05.2011 г., в 18.00 в помещении МОУ ДОЦ ДТД и М «Янтарь» (ул. Судостроительная, 2) | Проект границ | ||
| Проект межевания территории в границах красных линий улиц ул. Коммунистическая - ул. Летняя - ул. П. Морозова | Публичные слушания по проекту межевания территории в границах красных линий улиц ул. Коммунистическая - ул. Летняя - ул. П. Морозова состоятся 30.05.2012 г., в 18.00 в помещении МОУ ДОЦ ДТД и М «Янтарь» (ул. Судостроительная, 2) | Проект границ | ||
| Проект межевания территории в границах красных линий ул. Горького – ул. Зеленой – ул. Балтийской – ул. Верещагина | Публичные слушания по проекту межевания территории в границах красных линий ул. Горького – ул. Зеленой – ул. Балтийской – ул. Верещагина состоятся 29.05.2012г., в 18.00 по адресу: г. Калининград, ул. Фрунзе, 71, кабинет №25а (здание администрации Ленинградского района) | Проект границ | ||
| Проект межевания территории в границах красных линий ул. Миклухо-Маклая – ул. Толбухина – ул. Холмогорская – ул. Баженова | Публичные слушания по проекту межевания территории в границах красных линий ул. Миклухо-Маклая – ул. Толбухина – ул. Холмогорская – ул. Баженова состоятся 03.05.2012г., в 18.00 по адресу: г. Калининград, ул. Фрунзе, 71, кабинет №25а (здание администрации Ленинградского района) | Проект границ | ||
| Проект межевания территории в границах красных линий ул. Яновская – ул. Грига – ул. Фрунзе | Публичные слушания по проекту межевания территории в границах красных линий ул. Яновская – ул. Грига – ул. Фрунзе состоятся 03.05.2012г., в 18.00 по адресу: г. Калининград, ул. Фрунзе, 71, кабинет №25а (здание администрации Ленинградского района) | Проект границ | ||
| Проект межевания территории в границах красных линий ул. Беланова – ул. Жиленкова | Публичные слушания по проект межевания территории в границах красных линий ул. Беланова – ул. Жиленкова состоятся 24.05.2012 г. в 17.30 в здании администрации Центрального района ГО "Город Калининград" (ул. К.Маркса, 43, актовый зал, 4 этаж) | Проект границ | ||
| Проект межевания территории в границах красных линий ул. П. Морозова – ул. Киевская | Публичные слушания по проекту межевания территории в границах красных линий ул. П. Морозова – ул. Киевская состоятся 24.04.2012 г. в 18.00 в помещении администрации Московского района (ул. Октябрьская, 79, каб. 311) | Проект границ Проект границ откорректированный по итогам публичных слушаний | ||
| Проект межевания территории в границах красных линий ул. Парковая – ул. Заводская | Проект межевания территории в границах красных линий ул. Парковая – ул. Заводская состоятся 26.04.2012 г. в 18.00 в помещении МОУ СОШ №48 (ул. Заводская, 27б, поселок Прибрежный) | Проект границ | | |
| Проект межевания территории в границах красных линий просп. Ленинский - ул. Подп. Иванникова - ул. Ген. Соммера | Повторные публичные слушания по проекту межевания территории в границах красных линий просп. Ленинский - ул. Подп. Иванникова - ул. Ген. Соммера состоятся 29.05.2012г., в 18.00 по адресу: г. Калининград, ул. Фрунзе, 71, кабинет №25а (здание администрации Ленинградского района) | Проект границ | | |
| Проект межевания территории в границах красных линий ул. Клинская – ул. Муромская – ул. Яхромская – ул. Ангарская | Проект межевания территории в границах красных линий ул. Клинская – ул. Муромская – ул. Яхромская – ул. Ангарская состоятся 24.04.2012 г. в помещении администрации Московского района (ул. Октябрьская, 79, каб. 311) | Проект границ | ||
| Проект межевания территории в границах красных линий ул. Каменная – ул. Степана Разина – ул. Коммунальная – просп. Мира | Публичные слушания по проекту межевания квартала в границах красных линий улиц ул. Каменная – ул. Степана Разина – ул. Коммунальная – просп. Мира состоятся 17.04.2012 г. в 18.00 в здании администрации Центрального района ГО "Город Калининград" (ул. К.Маркса, 43, актовый зал, 4 этаж) | Проект границ | | |
| Проект межевания квартала в границах красных линий ул. Красносельская - ул. Добролюбова | Проект межевания территории в границах красных линий ул. Красносельская - ул. Добролюбова состоятся 25.04.2012 г. в 18.00 в здании администрации Центрального района ГО "Город Калининград" (ул. К.Маркса, 43, актовый зал, 4 этаж) | Проект границ | | |
| Проект межевания квартала в границах красных линий ул. А. Невского – ул. Потемкина – ул. Линейная | Публичные слушания по проекту межевания квартала в границах красных линий ул. А. Невского – ул. Потемкина – ул. Линейная состоятся 18.04.2012 г. в 17.30 в здании администрации Ленинградского района ГО «Город Калининград» (ул. Фрунзе, 71, кабинет 25а) | Проект границ Проект границ (откорректирован по итогам публичных слушаний) | ||
| Проект межевания квартала в границах красных линий ул. Алданская – ул. Лужская – ул. Аральская | Проект межевания территории в границах красных линий ул. Алданская – ул. Лужская – ул. Аральская состоятся 17.04.2012 г. в 18.00 в здании администрации Центрального района ГО "Город Калининград" (ул. К.Маркса, 43, актовый зал, 4 этаж) | Проект границ | ||
| Проект межевания квартала в границах красных линий ул. У. Громовой - ул. Интернациональной - ул. Л. Иванихиной | Публичные слушания по проекту межевания квартала в границах красных линий ул. У. Громовой - ул. Интернациональной - ул. Л. Иванихиной состоятся 28.03.2012 г. в 18.00 в здании администрации Московского района ГО Город Калининград" (ул. Октябрьская, 79) | Проект границ проект границ, откорректированный по результатам публичных слушаний | ||
| Проект межевания квартала в границах красных линий улиц: Подп. Емельянова - Одесская - Мичурина – Семипалатинская | Публичные слушания по проекту межевания квартала в границах красных линий ул. Подп. Емельянова - ул. Одесская - ул. Мичурина – ул. Семипалатинская состоятся 28.03.2012 г. в 18.00 в здании администрации Московского района ГО "Город Калининград" (ул. Октябрьская, 79) | Проект границ | ||
| 199 | Проект межевания квартала в границах красных линий ул. Лукашова – пер. Лукашова – ул. лейт. Калинина | Публичные слушания по проекту межевания квартала в границах красных линий ул. Лукашова - пер. Лукашова - ул. лейт. Калинина в Центральном районе состоятся 24.02.2012 г. в 18.00 в здании администрации Центрального района ГО "Город Калининград" (ул. К.Маркса, 43, актовый зал, 4 этаж). | Проект границ | |
| 200 | Проект межевания квартала в границах красных линий улиц ул. Ген. Соммера – просп. Ленинский – ул. Университетская – ул. Проф. Севастьянова | Публичные слушания по проекту межевания квартала в границах красных линий ул. Ген. Соммера - просп. Ленинский - ул. Университетская - ул. Проф. Севастьянова в Ленинградском районе состоятся 05.03.2012 г. в 17.30 в здании Калининградского областного института повышения квалификации, переподготовки работников образования по адресу: ул. Томская, 19 | Проект границ | |
| 198 | Проект межевания территории квартала в границах красных линий ул. Косм. Леонова – ул. Чекистов – просп. Советский | Публичные слушания по проекту межевания территории квартала в границах красных линий ул. Косм. Леонова – ул. Чекистов – просп. Советский состоятся 2 февраля 2012 г., в 18.00 в здании администрации Центрального района (ул. К. Маркса, 43, актовый зал, 4 этаж) | Проект границ Проект границ откорректированный по итогам публичных слушаний | |
| 186 | Проект межевания территории квартала в границах красных линий ул. Платова – ул. Богатырская – ул. Онежская | Публичные слушания по проекту межевания квартала в границах красных линий ул. Платова – ул. Богатырская – ул. Онежская состоятся 22 декабря 2011 г., в 18.00 по адресу: г. Калининград, ул. Герцена, 35, актовый зал МОУ СОШ №8. | Проект границ | |
| 162 | Проект межевания квартала по ул. Ялтинская, 75-95 | Повторные публичные слушания состоятся 13.12.2011 года в 17.00 по адресу: г.Калининград, ул. Фрунзе, 71, кабинет №25а (администрация Ленинградского района) | Проект границ Проект границ откорректированный по итогам публичных слушаний | |
| 165 | Проект межевания квартала в границах красных линий улиц Коммунальная – Чернышевского – Красная – Фестивальная аллея | Повторные публичные слушания состоятся 07.12.2011 года в 17.00 в здании администрации Центрального района (ул. К. Маркса, 43, актовый зал, 4 этаж) | Постановление о проведении публичных слушаний Проект границ вариант 1 Проект границ вариант 2 Проект границ откорректированный по итогам публичных слушаний | Заключение |
| 082 | Проект межевания квартала в границах красных линий ул. Лейтенанта Катина – ул. Бассейная | 08.12.2011 года в 17.00 в здании администрации Центрального района (ул. К. Маркса, 43, актовый зал, 4 этаж) | Проект границ | |
| 192 | Проект межевания квартала в границах красных линий просп. Победы - ул. Ремонтная - ул. Станочная - ул. Харьковская | 03.11.2011 в 17-00 по адресу: ул.К.Маркса, 43 (администрация Центрального района, 4 этаж, актовый зал) | Проект границ Проект границ откорректированный по итогам публичных слушаний | Заключение |
| 191 | Проект межевания квартала в границах красных линий улиц: Мира – Горбунова – Лукашова – Безымянная 1-я | 16.11.2011 в 17-00 по адресу: ул.К.Маркса, 43 (администрация Центрального района, 4 этаж, актовый зал) | Проект границ Проект границ откорректированный по итогам публичных слушаний | Заключение |
| 181 | Проект межевания квартала в границах красных линий просп. Московского – ул. Грига – наб. Адм. Трибуца | 17.11.2011 в 17-00 по адресу: ул. Фрунзе, 71. (администрация Ленинградского района, кабинет 25А, 3-й этаж ) | Проект границ Проект границ откорректированный по итогам публичных слушаний | Заключение |
| 189 | Проект межевания квартала в границах красных линий ул. Радистов – ул. Белинского – пер. Воздушный – ул. Воздушная | 10.11.2011 в 17-00 по адресу: ул.К.Маркса, 43 (администрация Центрального района, 4 этаж, актовый зал) | Проект границ Проект границ откорректированный по итогам публичных слушаний | Заключение |
| 190 | Проект межевания квартала в границах красных линий пер. Радищева – ул. Радищева – ул. Станочная – ул. Ремонтная | 03.11.2011 в 17-00 по адресу: ул.К.Маркса, 43 (администрация Центрального района, 4 этаж, актовый зал) | Проект границ Проект границ откорректированный по итогам публичных слушаний | Заключение |
| 188 | Проект межевания двух кварталов в границах красных линий улиц Косм.Леонова – Войнич – Алябьева – Фестивальная аллея | 11.11.2011 в 17-00 по адресу: ул.К.Маркса, 43 (администрация Центрального района, 4 этаж, актовый зал) | Проект границ Проект границ откорректированный по итогам публичных слушаний | Заключение |
| 043 | Проект межевания квартала в границах: восточная граница садоводческого товарищества «Искра» – городская черта – ул. Знаменская – ул. Крылова – ул. Фурманова - ул. Большая Окружная 3-я (микрорайон «Северная гора») | Публичные слушания по проекту межевания квартала в границах: восточная граница садоводческого товарищества «Искра» - городская черта – ул. Знаменская – ул. Крылова – ул. Фурманова – ул. Большая Окружная 3-я (микрорайон «Северная гора») состоятся 20 октября 2011 г., в 19.00 по адресу: г. Калининград, ул. Герцена, 35 (актовый зал МОУ СОШ №8) | Проект границ Проект границ откорректированный по итогам публичных слушаний | |
| 184 | Проект межевания квартала в границах красных линий ул. Киевской – ул. Фабричной – ул. Ольховой – ул. П. Морозова | Публичные слушания по проекту межевания квартала в границах красных линий улиц: Киевская – Фабричная – Ольховая – П. Морозова состоятся 31 октября 2011 года в 17.00 в помещении администрации Московского района (ул. Октябрьская, 79) | Проект границ | Заключение |
| 187 | Проект межевания квартала в границах красных линий улиц ул. Аральской – ул. Лужской – ул. Челюскинской – пер. Аральского | Публичные слушания по проекту межевания квартала в границах красных линий улиц: Аральской – Лужской – Челюскинской – пер. Аральского состоятся 26.10.2011 года в 17.00 в здании администрации Центрального района (ул. К. Маркса, 43, актовый зал, 4 этаж) | Проект границ Проект границ откорректированный по итогам публичных слушаний | Заключение |
| 193 | Проект межевания квартала в границах красных линий ул. Тульская - ул. Толбухина - ул. Тамбовская - ул. Балашовская | Публичные слушания по проектам межевания кварталов в границах красных линий улиц: Тульская – Толбухина – Тамбовская – Балашовская состоятся 27 октября 2011 года в 17.00 по адресу: г. Калининград, ул. Свердлова, 27 (актовый зал МОУ СОШ №13) | Проект границ | |
| 173-176 | Проект межевания четырех кварталов в границах красных линий ул. Чукотская - ул.Шуйская 2-я - ул.Тульская - ул.Бакинская - ул.Шуйская 1-я - ул.Баженова - ул.Ялтинская | Публичные слушания по проектам межевания кварталов в границах красных линий улиц: Чукотская – Шуйская 2-я – Тульская –Бакинская – Шуйская 1-я – Баженова – Ялтинская состоятся 27 октября 2011 года в 17.00 по адресу: г. Калининград, ул. Свердлова, 27 (актовый зал МОУ СОШ №13) | Проект границ (1) Проект границ (2) | Заключение |
| 006, 166, 167 | Проект межевания трёх кварталов в границах красных линий ул. Немировича-Данченко – ул. Баумана – пер. Немировича-Данченко – ул. Тбилисская – ул. Можайская – ул. А.Суворова | Публичные слушания по проекту межевания квартала в границах красных линий улиц: Немировича-Данченко – Баумана – Можайская – Тбилисская – А. Суворова состоятся 02 ноября 2011 года в 17.00 в помещении МОУ СОШ №28 (ул. А. Суворова, 139а) | Проект границ Постановление о проведении публичных слушаний Протокол Проект границ откорректированный по итогам публичных слушаний | Заключение |
| 168-170 | Проект межевания четырех кварталов в границах красных линий ул. Заводская – ул. А. Суворова – ул. Тбилисская – ул. Можайская – ул. Баумана | Публичные слушания по проекту межевания четырех кварталов в границах красных линий улиц Заводская – А.Суворова – Тбилисская – Можайская – Баумана состоятся 19 октября 2011 года в 17.00 в помещении МОУ СОШ №28 (ул. Суворова, 139а) | Проект границ | Заключение |
| 179 | Проект межевания квартала в границах красных линий ул. Рабочая – Парковая – проектная дорога | Публичные слушания по проекту межевания квартала в границах красных линий улиц Рабочая – Парковая – проектная дорога состоятся 12 октября 2011 года в 17.00 в помещении МОУ СОШ №48 (ул. Заводская, 27б, поселок Прибрежный) | Проект границ | Заключение |
| 160 | Проект межевания квартала в границах красных линий ул. Тобольская – ул. Тихорецкая – ул. Восточная – ул. Киевская | Публичные слушания по проекту межевания квартала в границах красных линий улиц Тобольская – Тихорецкая – Восточная – Киевская состоятся 10 октября 2011 г., в 17.00 в помещении МОУ ДОЦ ДТД и М «Янтарь» (ул. Судостроительная, 2) | Проект границ Проект границоткорректированный по итогам публичных слушаний | Заключение |
| 157 | Проект межевания квартала по ул. Артиллерийская | Публичные слушания по проекту межевания квартала в границах красных линий улицы Артиллерийская в Ленинградском районе состоятся 7 сентября 2011 г., в 17.00 по адресу: г. Калининград, ул. Фрунзе, 71, каб. 25а (администрация Ленинградского района) | Проект границ Проект границ (откорректированный по итогам публичных слушаний) | |
| 169 | Проект межевания квартала в границах красных линий ул. Багратиона – пер. Серпуховский – просп. Ленинский – пл. Калинина | Публичные слушания по проекту межевания квартала в границах красных линий ул. Багратиона – пер. Серпуховский – просп. Ленинский – пл. Калинина состоятся 5 сентября 2011 г., в 17.00 в помещении МОУ СОШ №16 (ул. Багратиона 107а) | Проект границ Проект границ (откорректированный по итогам публичных слушаний) | Заключение |
| 164 | Проект межевания квартала в границах красных линий улиц: Парковая аллея - Ладожская – Загородная – Музыкальная | Публичные слушания по проекту межевания квартала в границах красных линий улиц Парковая аллея - Ладожская – Загородная – Музыкальная состоятся 28 сентября 2011 г., в 17.00 по адресу: г. Калининград, ул. Фрунзе, 71, каб.25а (администрация Ленинградского района) | Проект границ Проект границ (откорректированный по итогам публичных слушаний) | |
| 158 | Проект межевания квартала в границах красных линий улиц Парт.Железняка – Старш.Дадаева – Еловая аллея - Майская | Публичные слушания по проекту межевания квартала в границах красных линий улиц Парт.Железняка – Старш.Дадаева – Еловая аллея – Майская состоятся 19 сентября 2011 г., в 17.00 по адресу: г. Калининград, ул. Фрунзе, 71, каб.25а (администрация Ленинградского района) | Проект границ | |
| 056 | Проект межевания территории в границах красных линий ул.Одесская – ул.Мичурина – ул.Мечникова – ул.Шишкина – ул.Семипалатинская | Публичные слушания по проекту межевания территории в границах красных линий ул.Мичурина – ул.Мечникова – ул.Шишкина – ул.Семипалатинская состоятся 25 августа 2011 г., в 17.00 в помещении МОУ СОШ №26 (ул. Емельянова, 156) | Проект границ Проект границ (откорректированный по итогам публичных слушаний) | Заключение |
| 156 | Проект межевания территории в границах красных линий улиц Стрелковая-Лесная | Публичные слушания по проекту межевания территории в границах красных линий улиц Стрелковая - Лесная состоятся 24 августа 2011 г., в 16.30 по адресу: г. Калининград, ул. Фрунзе, 71, каб.25а (администрация Ленинградского района) | Проект границ Проект границ (откорректированный по итогам публичных слушаний) | |
| 155 | Проект межевания территории в границах красных линий улиц Озерная-Стрелковая-Беломорская | Публичные слушания по проекту межевания территории в границах красных линий улиц Озерная – Стрелковая - Беломорская состоятся 24 августа 2011 г., в 16.30 по адресу: г. Калининград, ул. Фрунзе, 71, каб.25а (администрация Ленинградского района) | Проект границ Проект границ (откорректированный по итогам публичных слушаний) | |
| 121 | Проект межевания территории в границах красных линий улиц Пархоменко – Айвазовского – Шишкина – Левитана – пер. Левитана | 05 августа 2011г., в 17.00 в помещении МОУ СОШ №26 (ул.Подп.Емельянова, 156) | Проект границ Постановление о проведении публичных слушаний Проект границ откорректированный по итогам публичных слушаний | Заключение |
| 183 | Проект межевания квартала в границах красных линий улиц Магнитогорская - Карташева - переулок Карташева - Лужская - Курильская | 01 июля 2011г., в 17.00 по адресу: г. Калининград, ул. Магнитогорская, 1, здание столовой, второй этаж | Проект границ | Заключение |
| 180 | Проект межевания квартала в границах красных линий улиц Пугачева - С.Разина - Офицерская - К.Маркса | 04.08.2011 г. в 17.00 в здании администрации Центрального района ГО «Город Калининград» (ул. К. Маркса, 43, актовый зал, 4-й этаж) | Постановление о проведении публичных слушаний Проект границ | Заключение |
| 163 | Проект межевания квартала в границах красных линий улиц: Парковая аллея - Островского – Загородная – Ладожская | 14 июля 2011г., в 17.00 по адресу: г. Калининград, ул. Фрунзе, 71, кабинет №25а (здание администрации Ленинградского района) | Постановление о проведении публичных слушаний Проект границ | Заключение |
| 182 | Проект межевания квартала в границах красных линий просп.Мира – ул.Свободной – пер.Свободного – ул.Серж.Колоскова | 07 июля 2011г., в 17.00 по адресу: ул. К. Маркса, 43, актовый зал, 4-й этаж (в здании администрации Центрального района ГО «Город Калининград») | Проект границ Постановление о проведении публичных слушаний | Заключение |
| 161 | Проект межевания квартала в границах красных линий улиц Гражданская – Томская – Пионерская - Фрунзе | 05 июля 2011г., в 17.00 по адресу: г. Калининград, ул. Фрунзе, 71, кабинет № 25а (здание администрации Ленинградского района) | Проект границ Постановление о проведении публичных слушаний | Заключение |
| 003 | Проект межевания квартала в границах красных линий улиц Багратиона-пер.Южный-Эльблонгская-Серпуховская Корректировка | 03 июня 2011 в 17.00 в помещении МАОУ лицей №17 по адресу: ул. Серпуховская, 28 | Проект границ Постановление о проведении публичных слушаний Протокол | Заключение |
| 122 | Проект межевания квартала в границах красных линий улиц Сусанина-Поселковая | 15 июня 2011г., в 17.00 по адресу: г. Калининград, ул. Фрунзе, 71, кабинет № 25а (здание администрации Ленинградского района) | Проект границ Постановление о проведении публичных слушаний | Заключение |
| 178 | Проект межевания квартала в границах красных линий улиц Безымянная-Лукашова | 14.06.2011 в 17.00 в здании администрации Центрального района ГО "Город Калининград" (ул.К.Маркса, 43, актовый зал, 4-й этаж) | Постановление о проведении публичных слушаний Проект границ | Заключение |
| 153 | Проект межевания квартала в границах красных линий улиц Велижская – Невельская – Ставропольская | 12.05.2011 в 17-00 по адресу:ул. Красная, 301 (МОУ начальная школа - детский сад №72, актовый зал) | Проект границ Проект границоткорректированный по итогам публичных слушаний | Заключение |
| 172 | Проект межевания квартала в границах красных линий улиц Белибейская-Аксакова-Свердлова-Краснопрудная | 01 июня 2011г., в 17.00 по адресу: ул. Свердлова, 27, актовый зал МОУ СОШ № 13 | Проект границ Постановления о проведении публичных слушаний Проект границ откорректированный по итогам публичных слушаний | Заключение |
| 177 | Проект межевания квартала в границах красных линий улиц Советский проспект – Мусоргского - Озерова | 12.05.2011 в 17-00 по адресу: ул.К.Маркса, 43 (администрация Центрального района, 4 этаж, актовый зал) | Проект границ | Заключение |
| 154 | Проект межевания квартала в границах красных линий улиц Красная – Велижская - Ставропольская | 12.05.2011 в 17-00 по адресу:ул. Красная, 301 (МОУ начальная школа - детский сад №72, актовый зал) | Проект границ Проект границ (откорректированный по итогам публичных слушаний) | Заключение |
| 152 | Проект межевания квартала в границах красных линий улиц Береговая-Потемкина-Линейная | публичные слушания назначены на 22.04.2011 в 17-00 по адресу: ул.Фрунзе, 71 (администрация Ленинградского района), каб 25а | Проект границ | |
| 151 | Проект межевания квартала в границах красных линий улиц Типографская – Черниговская –м-ра Козенкова – З.Космодемьянской | 14.04.2011 в 17-00 по адресу: ул. З. Космодемьянской, 26 (МОУ СОШ №5) | Проект границ | Заключение |
| 150 | Проект межевания квартала в границах красных линий улиц пер.Товарный - ул..Товарная - ул.Судостроительная | 31.03.2011 в 17-00 по адресу: ул. Машиностроительная 66 (МОУ СОШ №29, каб. 15) | Проект границ | Заключение |
| 147 | Проект межевания квартала в границах красных линий улиц Грига–Лесопильная–Черепичная–просп.Московский | 23.12.2010 в 17-00 по адресу: ул. Фрунзе, 71 (Администрация Ленинградского района) | Проект границ | Заключение |
| 144 | Проект межевания квартала в границах красных линий улиц Горького – Ясная – Полк. Ефремова | 15.12.2010 в 16-30 по адресу: ул. Горького, 166 (Промышленно-строительный техникум) | Проект границ | Заключение |
| 148 | Проект межевания квартала в границах красных линий улиц Беланова (дома с №61 по №91) | 02.12.2010 в 17-00 по адресу: ул.К.Маркса, 43 (администрация Центрального района, 4 этаж, актовый зал) | Проект границ Проект границ (откорректированный по итогам публичных слушаний) | Заключение |
| 098 | Проект межевания квартала в границах красных линий улиц Репина – Брамса – Кирова – Римского-Корсакова | 11.11.2010 г. в 17.00 по адресу: ул. К. Маркса, 43 (администрация Центрального района (актовый зал, 4-й этаж) | Проект границ | Заключение |
| 145 | Проект межевания квартала в границах красных линий улиц Кирова – Зоологическая – Чайковского – Косм.Леонова Кирова – Зоологическая – Чайковского – Косм.Леонова Кирова – Зоологическая – Чайковского – Косм.Леонова Кирова – Зоологическая – Чайковского – Косм.Леонова Кирова – Зоологическая – Чайковского – Косм.Леонова Кирова – Зоологическая – Чайковского – Косм.Леонова | публичные слушания назначены на 28.10.2010 в 17-00 по адресу: ул.К.Маркса, 43 (администрация Центрального района, 4 этаж, актовый зал) | Проект границ | Заключение |
| 030 | Проект межевания квартала в границах красных линий улиц Нарвская – Зеленая – Адм.Макарова – Ст.лейт.Сибирякова Нарвская – Зеленая – Адм.Макарова – Ст.лейт.Сибирякова Нарвская – Зеленая – Адм.Макарова – Ст.лейт.Сибирякова Нарвская – Зеленая – Адм.Макарова – Ст.лейт.Сибирякова Нарвская – Зеленая – Адм.Макарова – Ст.лейт.Сибирякова Нарвская – Зеленая – Адм.Макарова – Ст.лейт.Сибирякова | публичные слушания назначены на 01.11.2010 в 17-00 по адресу: ул. Зеленая, 18а, Школа №38, актовый зал | Проект границ | Заключение |
| 011 | Проект межевания квартала в границах красных линий улиц Черняховского – Сергеева – Пролетарская | 20.10.2010г. в 17.00 по адресу ул.Пролетарская 66а, актовый зал, МОУ СОШ №31 | Проект границ | Заключение |
| 146 | Проект межевания квартала в границах красных линий улиц Зоологическая – Кирова – Алябьева - Чайковского | 14.10.2010г. в 17.00 в здании администрации Центрального района (ул. К. Маркса, 43, актовый зал, 4-й этаж) | Проект границ | Заключение |
| 143 | Проект межевания квартала в границах красных линий улиц Димитрова-Брамса-Репина-Менжинского | 16.09.2010 г. в 17.00 в здании администрации Центрального района ГО «Город Калининград» (ул. К. Маркса, 43, актовый зал, 4-й этаж) | Проект границ | Заключение |
| 141 | Проект межевания квартала в границах красных линий улиц Дарвина - Киевская | 13.09.2010 в 17-00 по адресу: ул.Судостроительная, 2 (Дворец творчества детей и молодежи «Янтарь») | Проект границ | Заключение |
| 140 | Проект межевания квартала в границах красных линий улиц Тихорецкая – Киевская – Дарвина - Школьная | 13.09.2010 в 17-00 по адресу: ул.Судостроительная, 2 (Дворец творчества детей и молодежи «Янтарь») | Проект границ | Заключение |
| 149 | Проект межевания территории ТСЖ «Город-сад» в границах улиц Е.Колесникова-Радищева-А.Бровковича в Центральном районе г.Калининграда | 02.09.2010 г. в 17.00 в здании МОУ СОШ №14 (ул. Радищева, 81) | Постановление о разработке проекта межевания Проект границ | Заключение |
| 124 | Проект межевания квартала в границах красных линий улиц Гайдара – Нарвская – Ген. Челнокова | публичные слушания назначены на 13.08.2010 в 17-00 по адресу: ул. Зеленая, 45 (Школа №30), каб. №5 | Проект границ | Заключение |
| 008 | Проект межевания квартала в границах красных линий улиц Пионерская – пер.Грига – Литовский вал | публичные слушания назначены на 27.08.2010 в 17-00 по адресу: ул.Фрунзе, 71 (администрация Ленинградского района), каб 25а | Проект границ | Заключение |
| 138 | Проект межевания квартала в границах красных линий улиц Октябрьская - бул. Солнечный - Ген.Павлова | публичные слушания назначены на 06.08.2010 в 17-00 по адресу: ул. Октябрьская, 79 (Администрация Московского района), 3-й этаж, каб. 311 | Проект границ | Заключение |
| 139 | Проект межевания квартала в границах красных линий улиц Ш.Руставели – Римского-Корсакова – туп. Зоологический | публичные слушания назначены на 24.08.2010 в 17-00 по адресу: ул.К.Маркса, 43 (администрация Центрального района, 4 этаж, актовый зал) | Проект границ Проект границ откорректированный по итогам публичных слушаний | Заключение |
| 133 | Проект межевания квартала в границах красных линий улиц Маршала Борзова – Авторемонтная – Каштановая аллея – Генерала Захарова | публичные слушания назначены на 08.07.2010 в 17-00 по адресу: ул.К.Маркса, 43 (администрация Центрального района, 4 этаж, актовый зал) | Проект границ | Заключение |
| 134 | Проект межевания квартала в границах красных линий улиц Ялтинская – просп. Московский – пер. Ялтинский | публичные слушания назначены на 24.06.2010 в 17-00 по адресу: ул. Сведлова, 27 (Школа №13), актовый зал | Проект границ | Заключение |
| 135 | Проект межевания квартала в границах красных линий улиц Куприна – Аксакова – Кутаисская – Краснопрудная | публичные слушания назначены на 17.06.2010 в 17-00 по адресу: ул. Сведлова, 27 (Школа №13), актовый зал | Проект границ | Заключение |
| 136 | Проект межевания квартала в границах красных линий улицы Станочная – просп. Победы – Радищева | 15.06.2010 в 17-00 по адресу: ул.К.Маркса, 43 (администрация Центрального района, 4 этаж, актовый зал) | Проект границ | Заключение |
| 137 | Проект межевания квартала в границах красных линий улиц Заводская – Береговая | 23.07.2010 в 17-00 по адресу: ул. Заводская, 27-б (Школа №48) | Проект границ | Заключение |
| 102 | Проект межевания квартала в границах красных линий улиц Красная – Косм. Пацаева – Шиллера – С. Разина | 22.07.2010 в 17-00 по адресу: ул.К.Маркса, 43 (администрация Центрального района, 4 этаж, актовый зал) | Проект границ | Заключение |
| 057 | Проект межевания квартала в границах красных линий улиц Батальная – Машиностроительная – О.Кошевого в Московском районе | 2 декабря 2009г. в 17-00 по адресу: ул. У.Громовой, 1 в помещении МОУ СОШ №6 | Проект границ | Заключение |
| 095 | Проект межевания квартала в границах красных линий улиц Нарвская – Памяти павших в Афганистане – Гайдара – р.Голубая в Центральном районе | 3 декабря 2009г. в 17-00 по адресу: ул. К.Маркса, 43, в здании администрации Центрального района, актовый зал, 4-й этаж | Проект границ | Заключение |
| 120 | Проект межевания квартала в границах красных линий улицы Беланова – приток р. Голубая | публичные слушания назначены на 29.10.2009 в 17-00 по адресу: ул.К.Маркса, 43 (администрация Центрального района, 4 этаж, актовый зал) | Проект | Заключение |
| 197 | Проект межевания восточного микрорайона пос.Борисово в Московском районе г.Калининграда | Публичные слушания назначены на 06.08.2009 г. в 17.00 по адресу: конференц-зал администрации Московского района (ул.Октябрьская, д.79) | Сводная схема земельных участков Cхема застроенных земельных участков Схема земельных участков, предназначенных для размещения объектов федерального, регионального или местного значения Схема земельных участков, планируемых для предоставления физическим и юридическим лицам Пояснительная записка | Заключение по итогам публичных слушаний |
| 128 | Проект межевания квартала в границах красных линий улиц Тихорецкая – Киевская | публичные слушания назначены на 17.07.2009 в 17-00 по адресу: ул.Школьная, 2 (Школа №46) | Проект | Заключение |
| 118 | Проект межевания квартала в границах красных линий улиц Барнаульская-Больничная-Вагнера | публичные слушания назначены на 28.10.2009 в 17-00 по адресу: ул.Фрунзе, 71 (администрация Ленинградского района, каб.25) | Проект границ | Заключение по итогам публичных слушаний п.м ЗАКЛ №3993 от 11.11.09 |
| 029 | Проект межевания квартала в границах красных линий улиц Кутаисская- Баженова-Сиреневая | публичные слушания назначены на 21.10.2009 в 17-00 по адресу: ул.Свердлова, 27 (Школа №13) | Проект границ | Заключение по итогам публичных слушаний № 3937 от 05.11.2009 |
| 119 | Проект межевания квартала в границах красных линий улиц Чекистов-пер.Щорса-ул.Щорса-Красная | публичные слушания назначены на 22.10.2009 в 17-00 по адресу: ул.К.Маркса,43 (администрация Центрального района, 4 этаж, актовый зал) | Проект границ | Заключение |