|
№ на схеме
|
Адрес
|
Материалы проекта
|
|
1
|
пл. Октябрьская – ул. Сосновая – ул. Фабричная – ул. Осиновая
|
Постановление № 2536 от 03.11.2003
Опорный план
Эскиз генерального плана
Данные по нормативным и проектным площадям земельных участков
Пояснительная записка
|
|
1-18 ПМ
|
ул. Крылова – ул. Фурманова – внутриквартальные проезды
|
Постановление правительства Калининградской области № 59 от 19.06.2018
Опорный план
Основной чертеж
Пояснительная записка
|
|
1-19 ПМ
|
пер. Ломоносова – ул. Ломоносова
|
Приказ Агентства по архитектуре, градостроению и перспективному развитию Калининградской области № 185 от 20.06.2019
Основная часть проекта межевания территории
|
|
2
|
ул. Л. Иванихиной – ул. Иртышская – ул. Л. Шевцовой – ул. У. Громовой
|
Постановление № 524 от 12.03.2004
Опорный план
План границ земельных участков
Данные по нормативным и проектным площадям земельных участков
Пояснительная записка
Данные ГП
|
|
2-18 ПМ
|
пер. Полевой
|
Постановление правительства Калининградской области № 461 от 03.08.2018
Пояснительная записка
|
|
4
|
ул. Портовая – ул. Серпуховская – ул. Полоцкая
|
Постановление № 1571 от 25.06.2004
Опорный план
Схема генерального плана
Пояснительная записка
Данные по нормативным и проектным площадям земельных участков
|
|
4-18 ПМ
|
ул. Береговая – ул. Сержантская
|
Постановление правительства Калининградской области № 358 от 19.06.2018
Пояснительная записка
|
|
5
|
ул. Киевская – ул. Садовая
|
Постановление № 237 от 28.01.2005
Опорный план
План границ земельных участков
Данные по нормативным и проектным площадям земельных участков
Пояснительная записка
Данные ГП
|
|
5-18 ПМ
|
пер. Полевой
|
Постановление правительства Калининградской области № 581 от 28.09.2018
Пояснительная записка
|
|
6
|
ул. Немировича-Данченко – ул. Баумана – пер. Немировича-Данченко
|
Постановление № 2345 от 27.08.2004
Опорный план
План границ земельных участков
Данные по нормативным и проектным площадям земельных участков
Пояснительная записка
Данные ГП
|
|
6-18 ПМ
|
ул. Лейт. Калинина – ул. Лукашова – ул. Косм. Викторенко
|
Приказ Агентства по архитектуре, градостроению и перспективному развитию Калининградской области № 357 от 25.12.2018
Основная часть проекта межевания территории
|
|
7
|
ул. Киевская – ул. Берёзовая – ул. Камская
|
Постановление № 2857 от 03.12.2003
Опорный план
План границ земельных участков
Данные по нормативным и проектным площадям земельных участков
Пояснительная записка
Данные ГП
|
|
8-18 ПМ
|
ш. Балтийское
|
Приказ Агентства по архитектуре, градостроению и перспективному развитию Калининградской области № 219 от 15.07.2019
Основная часть проекта межевания территории
|
|
9-18 ПМ
|
ул. Менделеева – просп. Мира
|
Приказ Агентства по архитектуре, градостроению и перспективному развитию Калининградской области № 221 от 16.07.2019
Основная часть проекта межевания территории
|
|
9
|
ул. Литовский вал – просп. Московский – ул. Гагарина – руч. Литовский
|
Постановление № 2054 от 25.07.2002
Опорный план
Эскиз генерального плана
|
|
10-18 ПМ
|
ул. Дзержинского – внутриквартальные проезды
|
Приказ Агентства по архитектуре, градостроению и перспективному развитию Калининградской области № 356 от 25.12.2018
Основная часть проекта межевания территории
|
|
11
|
ул. Сергеева (от ул. Пролетарской до ул. Черняховского)
|
Постановление № 707 от 29.04.2011
Опорный план
План границ земельных участков
План красных линий
Данные по нормативным и проектным площадям земельных участков
Пояснительная записка
|
|
11-18 ПМ
|
ул. Аэропортная
|
Приказ Агентства по архитектуре, градостроению и перспективному развитию Калининградской области № 24 от 21.01.2019
Основная часть проекта межевания территории
|
|
12-18 ПМ
|
ул. Щорса – ул. Красная – ул. Лейт. Яналова – проезд
|
Приказ Агентства по архитектуре, градостроению и перспективному развитию Калининградской области № 16 от 17.01.2019
Основная часть проекта межевания территории
|
|
13-ПМ
|
ул. Кирова – пер. Кирова
|
Постановление правительства Калининградской области № 332 от 13.06.2018
Пояснительная записка
|
|
13-19 ПМ
|
р-н Остров Октябрьский
|
Приказ Агентства по архитектуре, градостроению и перспективному развитию Калининградской области № 189 от 24.06.2019
Основная часть проекта межевания территории
|
|
14-18 ПМ
|
ул. Бассейная
|
Приказ Агентства по архитектуре, градостроению и перспективному развитию Калининградской области № 25 от 21.01.2019
Основная часть проекта межевания территории
|
|
14-ПМ
|
просп. Советский – ул. Красная – ул. Каштановая аллея
|
Постановление правительства Калининградской области № 665 от 09.11.2018
Разбивочный чертёж красных линий
Пояснительная записка
|
|
15
|
ул. Арсенальная – ул. Краснокаменная – ул. А. Невского
|
Постановление № 1030 от 07.05.2003
Опорный план
План границ земельных участков
Эскиз генерального плана
Данные по нормативным и проектным площадям земельных участков
Пояснительная записка
Данные ГП
|
|
16
|
ул. Л. Толстого – ул. Ленинградская – ул. Лескова – ручей Северный
|
Постановление № 328 от 13.02.2003
План границ земельных участков
Опорный план
Данные по нормативным и проектным площадям земельных участков
Пояснительная записка
Данные ГП
|
|
16-18 ПМ
|
ул. Артиллерийская – внутриквартальный проезд
|
Приказ Агентства по архитектуре, градостроению и перспективному развитию Калининградской области № 5 от 09.01.2019
Основная часть проекта межевания территории
|
|
17
|
ул. Гагарина – пер. Гагарина – ул. Пригородная – ул. Молодой гвардии
|
Постановление № 460 от 04.03.2004
Опорный план
План границ земельных участков
Данные по нормативным и проектным площадям земельных участков
Пояснительная записка
Данные ГП
|
|
17-ПМ
|
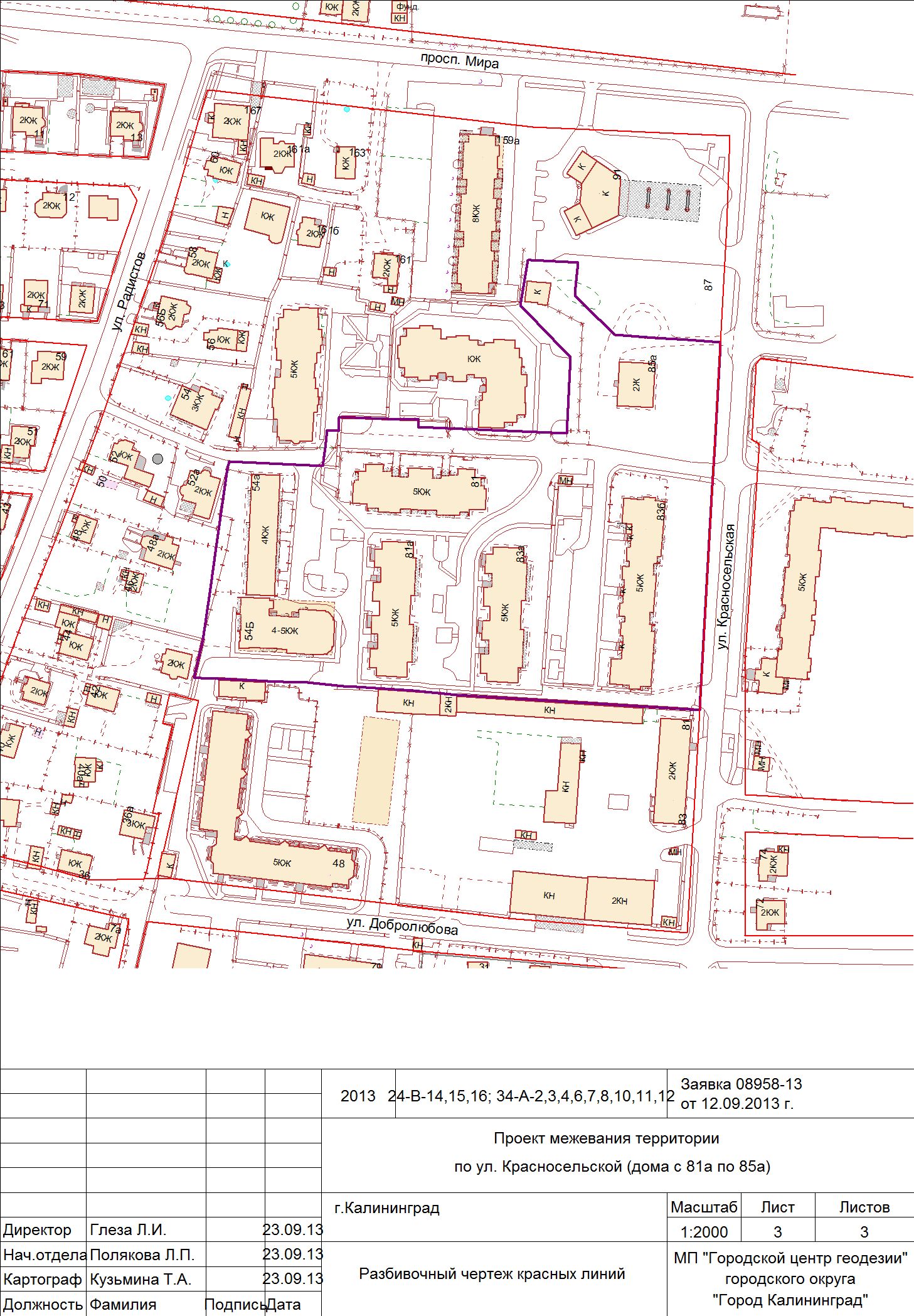
просп. Мира – ул. Красносельская – ул. Добролюбова
|
Постановление правительства Калининградской области № 659 от 07.11.2018
Разбивочный чертёж красных линий
Пояснительная записка
|
|
17-18 ПМ
|
ул. Ген.-лейт. Озерова – пер. Северный – ул. Ракитная – пер. Партизанский
|
Приказ Агентства по архитектуре, градостроению и перспективному развитию Калининградской области № 239 от 23.07.2019
Основная часть проекта межевания территории
|
|
17-19 ПМ
|
ул. А. Невского – ул. Куйбышева – ул. Ю. Гагарина – ул. Литовский вал
|
Приказ Агентства по архитектуре, градостроению и перспективному развитию Калининградской области № 218 от 15.07.2019
Основная часть проекта межевания территории
|
|
18
|
ул. Тургенева – ул. Гоголя – ул. Тельмана – ул. Л. Голикова
|
Постановление № 2428 от 17.10.2003
Опорный план
План границ земельных участков
Данные по нормативным и проектным площадям земельных участков
Данные по существующему жилому фонду и населению
Технико-экономические показатели
Пояснительная записка
Данные ГП
|
|
18-ПМ
|
ул. Баженова – ул. Бакинская – ул. Шуйская 1-я – ул. Тульская
|
Приказ Агентства по архитектуре, градостроению и перспективному развитию Калининградской области № 254 от 17.09.2018
Опорный план
Основной чертеж
Пояснительная записка
|
|
18-18ПМ
|
пер. Пионерский – ул. Пионерская – ул. Нерчинская – ул. 9 апреля
|
Приказ Агентства по архитектуре, градостроению и перспективному развитию Калининградской области № 180 от 13.06.2019 Основная часть проекта межевания территории
|
|
19-ПМ
|
ул. Велосипедная дорога – ул. Коломенская
|
Постановление правительства Калининградской области № 318 от 07.06.2018
Пояснительная записка
|
|
20ПМ
|
ул. Тенистая аллея
|
Приказ Агентства по архитектуре, градостроению и перспективному развитию Калининградской области № 175 от 10.06.2019 Основная часть проекта межевания территории
|
|
21
|
ул. Л. Голикова – ул. Ленинградская – ул. Верхнеозёрная – ул. Тельмана
|
Постановление № 391 от 01.03.2004
Опорный план
План границ земельных участков
Данные по нормативным и проектным площадям земельных участков
Пояснительная записка
Данные ГП
|
|
21-18 ПМ
|
ул. Интернациональная – ул. О. Кошевого – ул. Н. Карамзина
|
Приказ Агентства по архитектуре, градостроению и перспективному развитию Калининградской области № 90 от 06.03.2019
Основная часть проекта межевания территории
|
|
22
|
ул. Гайдара – ул. Горького – ул. Зелёная – ул. Дорожная
|
Постановление № 425 от 11.02.2005
Опорный план
План границ земельных участков
Схема подразделения квартала на субкварталы
Эскиз генплана
Технико-экономические показатели
Пояснительная записка
|
|
23
|
просп. Московский – ул. Бакинская – ул. Ялтинская – железная дорога
|
Постановление № 1681 от 24.05.2005
Опорный план
План границ земельных участков
Данные по нормативным и проектным площадям земельных участков
Пояснительная записка
Данные ГП
|
|
23-18ПМ
|
ул. Менделеева – просп. Победы
|
Приказ Агентства по архитектуре, градостроению и перспективному развитию Калининградской области № 176 от 10.06.2019 Основная часть проекта межевания территории
|
|
24
|
ул. Платова – ул. Краснохолмская – ул. Глинки – ул. Богатырская
|
Постановление № 2729 от 17.11.2003
Опорный план
План границ земельных участков
Данные по нормативным и проектным площадям земельных участков
Пояснительная записка
Данные ГП
|
|
24-ПМ
|
ул. Ялтинская – р. Преголя – внутриквартальные проезды
|
Приказ Агентства по архитектуре, градостроению и перспективному развитию Калининградской области № 248 от 03.09.2018
Пояснительная записка
|
|
24-18 ПМ
|
ул. Берестяная – внутриквартальный проезд
|
Приказ Агентства по архитектуре, градостроению и перспективному развитию Калининградской области № 68 от 18.02.2019
Основная часть проекта межевания территории
|
|
25
|
ул. Толбухина – ул. Баженова – ул. Холмогорская – ул. Кутаисская
|
Постановление № 762 от 31.03.2004
Опорный план
План границ земельных участков
Технико-экономические показатели
Данные ГП
|
|
26
|
ул. 9 апреля – ул. Фрунзе – ул. 1812 года – просп. Московский
|
Постановление № 854 от 23.03.2005
Опорный план
План границ земельных участков
Данные по нормативным и проектным площадям земельных участков
Пояснительная записка
Данные ГП
|
|
26-ПМ
|
ул. Загородная – ул. Островского – пер. Островского
|
Приказ Агентства по архитектуре, градостроению и перспективному развитию Калининградской области № 289 от 23.10.2018
Приказ Агентства по архитектуре, градостроению и перспективному развитию Калининградской области № 47 от 31.01.2019 Основная часть проекта межевания территории
|
|
27-ПМ
|
ул. Галактическая – ул. Брусничная – ул. Тенистая
аллея
|
Приказ Агентства по архитектуре, градостроению и перспективному развитию Калининградской области № 4 от 09.01.2019 Основная часть проекта межевания территории
|
|
28
|
ул. Ген. Соммера – ул. Пролетарская – ул. Проф. Севастьянова
|
Постановление № 239 от 03.02.2004
Опорный план
План границ земельных участков
Данные по нормативным и проектным площадям земельных участков
Пояснительная записка
Данные ГП
|
|
28-ПМ
|
ул. Аэропортная – ул. Орудийная
|
Постановление правительства Калининградской области № 667 от 09.11.2018
Опорный план
Основной чертеж
Пояснительная записка
|
|
29
|
ул. Кутаисская – ул. Баженова – ул. Сиреневая
|
Постановление № 2211 от 14.12.2009
Опорный план
План границ земельных участков
Данные по нормативным и проектным площадям земельных участков
Пояснительная записка
Данные ГП
|
|
29-18 ПМ | ул. Горького – ул. Рассветная – ул. Лучистая – переулок Лучистый |
Приказ Агентства по архитектуре, градостроению и перспективному развитию Калининградской области № 132 от 17.04.2019
Основная часть проекта межевания территории
|
|
30
|
ул. Нарвская – ул. Зелёная – ул. Адм. Макарова – ул. Ст. лейт. Сибирякова
|
Постановление № 200 от 16.02.2011
Опорный план
План границ земельных участков
План красных линий
Данные по нормативным и проектным площадям земельных участков
Пояснительная записка
|
|
31
|
ул. Свердлова – ул. Краснопрудная – ул. Белибейская – просп. Московский
|
Постановление № 863 от 12.04.2004
Опорный план
План границ земельных участков
Данные по нормативным и проектным площадям земельных участков
Данные по существующему жилому фонду и населению
Пояснительная записка
Данные ГП
|
|
32
|
ул. Платова – ул. Неманская – ул. Златоустовская – ул. Барклая де Толли
|
Постановление № 1998 от 21.06.2005
Опорный план
План границ земельных участков
План границ земельных участков под размещение объектов строительства
Данные по нормативным и проектным площадям земельных участков
Данные по существующему жилому фонду и населению
Пояснительная записка
Данные ГП
|
|
32-18 ПМ | ул. 9 апреля – ул. С. Тюленина |
Приказ Агентства по архитектуре, градостроению и перспективному развитию Калининградской области № 133 от 17.04.2019
Основная часть проекта межевания территории
|
|
33
|
ул. 3-я Б. Окружная – ул. Фурманова – ул. Крылова
|
Постановление № 2537 от 14.09.2004
Опорный план
План границ земельных участков
План границ земельных участков под размещение объектов строительства
Данные по нормативным и проектным площадям земельных участков
Пояснительная записка
Данные ГП
|
|
34
|
ул. Рокоссовского – ул. Ген. Соммера – ул. Подп. Иванникова – пер. Большой
|
Постановление № 2803 от 13.10.2004
Опорный план
Эскиз генерального плана
Данные по нормативным и проектным площадям земельных участков
Пояснительная записка
|
|
34-ПМ
|
ул. Таганрогская – ул. Арсенальная – ул. Б. Окружная 4-я – земельный участок с кадастровым номером 39:15:000000:3671
|
Приказ Агентства по архитектуре, градостроению и перспективному развитию Калининградской области № 288 от 23.10.2018
Приказ Агентства по архитектуре, градостроению и перспективному развитию Калининградской области № 49 от 31.01.2019 Основная часть проекта межевания территории
|
|
34-18 ПМ | пер. Ломоносова – внутриквартальные проезды – ул. А. Болотова |
Приказ Агентства по архитектуре, градостроению и перспективному развитию Калининградской области № 136 от 18.04.2019
Основная часть проекта межевания территории
|
|
35
|
ул. Герцена – ул. Глинки – ул. Богатырская – ул. К. Цеткин
|
Постановление № 1178 от 18.05.2004
Опорный план
План границ земельных участков
План границ земельных участков под размещение объектов строительства
Данные по нормативным и проектным площадям земельных участков
Пояснительная записка
Данные ГП
|
|
36
|
ул. Загородная – пер. Островского – ул. Островского – ул. Лейт. Князева
|
Постановление № 3043 от 04.11.2004
Опорный план
План границ земельных участков
Данные по нормативным и проектным площадям земельных участков
Данные по существующему жилому фонду и населению
Пояснительная записка
Данные ГП
|
|
37
|
ул. Р. Люксембург – ул. 3-я Б. Окружная – ул. Фурманова
|
Постановление № 1388 от 04.06.2004
Опорный план
План границ земельных участков
План границ земельных участков под размещение объектов строительства
Данные по нормативным и проектным площадям земельных участков
Пояснительная записка
Данные ГП
|
|
38
|
ул. Барклая де Толли – ул. Герцена – ул. Д. Давыдова – ул. Гончарова
|
Постановление № 1990 от 27.07.2004
Опорный план
План границ земельных участков
План границ земельных участков под размещение объектов строительства
Данные по нормативным и проектным площадям земельных участков
Пояснительная записка
Данные ГП
|
|
39
|
ул. Староорудийная – ул. Старосапёрная – ул. Краснокаменная
|
Постановление № 3042 от 04.11.2004
Опорный план
План границ земельных участков
План границ земельных участков под размещение объектов строительства
Данные по нормативным и проектным площадям земельных участков
Пояснительная записка
Данные ГП
|
|
40
|
ул. Ленинградская – пер. Грибоедова – ул. Грибоедова – ул. Лермонтова
|
Постановление № 3122 от 25.12.2006
Опорный план
План границ земельных участков
Данные по нормативным и проектным площадям земельных участков
Пояснительная записка
Данные ГП
|
|
41
|
ул. Куйбышева – пер. Куйбышева – руч. Гагаринский
|
Постановление № 2680 от 04.10.2004
Опорный план
План границ земельных участков
План границ земельных участков под размещение объектов строительства
Данные по нормативным и проектным площадям земельных участков
Данные по существующему жилому фонду и населению
Пояснительная записка
Данные ГП
|
|
42
|
ул. Глинки – ул. Лозовая – ул. Герцена – ул. Барклая де Толли
|
Постановление № 3498 от 16.12.2004
Опорный план
План границ земельных участков
План границ земельных участков под размещение объектов строительства
Данные по нормативным и проектным площадям земельных участков
Данные по существующему жилому фонду и населению
Пояснительная записка
Данные ГП
|
|
43
|
ул. 3-я Б. Окружная – ул. Р. Люксембург – ул. Крылова – ул. Фурманова
|
Постановление № 3694 от 28.12.2004
Опорный план
План границ земельных участков
Эскиз генерального плана
Данные по нормативным и проектным площадям земельных участков
Данные по существующему жилому фонду и населению
Пояснительная записка
|
|
44
|
ул. К. Цеткин – ул. Платова – ул. Барклая де Толли – ул. Неманская
|
Постановление № 3128 от 11.11.2004
Опорный план
Эскиз генерального плана
Данные по нормативным и проектным площадям земельных участков
Пояснительная записка
Данные ГП
|
|
45
|
просп. Гвардейский – ул. Ген. Галицкого – ул. Ген. Буткова – ул. Марш. Баграмяна
|
Постановление № 282 от 04.02.2005
Опорный план
План границ земельных участков
Данные по нормативным и проектным площадям земельных участков
Пояснительная записка
Данные ГП
|
|
46
|
ул. Кольцова – ул. Лозовая – ул. Герцена – ул. Д. Давыдова
|
Постановление № 140 от 02.02.2007
Опорный план
План границ земельных участков
Данные по нормативным и проектным площадям земельных участков
Пояснительная записка
Данные ГП
|
|
47
|
ул. 9 Апреля – ул. Нерчинская – ул. Пионерская – пер. Пионерский
|
Постановление № 646 от 22.03.2006
Опорный план
План границ земельных участков
Данные по нормативным и проектным площадям земельных участков
Пояснительная записка
Данные ГП
|
|
48
|
ул. Красных зорь – ул. Сурикова – ул. Букетная – ул. Закатная
|
Постановление № 2597 от 09.11.2006
Опорный план
План границ земельных участков
Данные по нормативным и проектным площадям земельных участков
Пояснительная записка
|
|
49
|
ул. Малоярославская – ул. Краснодонская – ул. Ю. Гагарина – ул. Чувашская
|
Постановление № 3664 от 31.08.2005
Опорный план
План границ земельных участков
Данные ГП
Данные по нормативным и проектным площадям земельных участков
Данные по существующему жилому фонду и населению
Пояснительная записка
Технико-экономические показатели
|
|
50
|
ул. Краснокаменная – пер. Краснокаменный
|
Постановление № 3666 от 31.08.2005
Опорный план
План границ земельных участков
Данные ГП
Данные по нормативным и проектным площадям земельных участков
Данные по существующему жилому фонду и населению
Пояснительная записка
|
|
51
|
ул. Фрунзе – ул. Литовский вал – ул. 1812 года – ул. Белокаменная
|
Постановление № 769 от 27.05.2009
Опорный план
План границ земельных участков
Данные ГП
Данные по нормативным и проектным площадям земельных участков
Данные по существующему жилому фонду и населению
Пояснительная записка
|
|
52
|
ул. Еловая аллея – ул. Куйбышева – ул. Майская
|
Постановление № 850 от 050.06.2009
Опорный план (1 том)
Проект границ земельных участков (1 том)
Пояснительная записка (1 том)
Данные по нормативным и проектным площадям земельных участков (1 том)
Данные по существующему жилому фонду и населению (1 том)
Опорный план (2 том)
Проект границ земельных участков (2 том)
Пояснительная записка (2 том)
Данные по нормативным и проектным площадям земельных участков (2 том)
Данные по существующему жилому фонду и населению (2 том)
|
|
53
|
ул. Черниговская – ул. Типографская – ул. З. Космодемьянской – ул. Аллея смелых
|
Постановление № 1925 от 20.07.2004
Опорный план
Эскиз генерального плана
Данные по нормативным и проектным площадям земельных участков
Данные по существующему жилому фонду и населению
Пояснительная записка
Технико-экономические показатели
|
|
55
|
ул. З. Космодемьянской – р. Лесная – ул. Аллея смелых – ул. К. Назаровой
|
Постановление № 429 от 27.02.2003
Опорный план
Эскиз генерального плана
Данные по нормативным и проектным площадям земельных участков
Данные по существующему жилому фонду и населению
|
|
56
|
ул. Одесская – ул. Мичурина – ул. Мечникова – ул. Шишкина – ул. Семипалатинская (см. проект межевания № 641)
|
Постановление № 2240 от 19.12.2011
Опорный план
План границ земельных участков
План красных линий
Пояснительная записка
Данные по нормативным и проектным площадям земельных участков
|
|
57
|
ул. Батальная – ул. Машиностроительная – ул. О. Кошевого
|
Постановление № 539 от 23 марта 2010
Опорный план
План границ земельных участков
Данные ГП
Данные по нормативным и проектным площадям земельных участков
Пояснительная записка
|
|
58
|
ул. У. Громовой – ул. Н. Карамзина
|
Постановление № 2840 от 15.10.2004
Опорный план
План границ земельных участков
План границ земельных участков под размещение объектов строительства
Данные ГП
Данные по нормативным и проектным площадям земельных участков
Данные по существующему жилому фонду и населению
Пояснительная записка
Технико-экономические показатели
|
|
59
|
ул. Судостроительная – ул. 2-я Очаковская – ул. Машиностроительная
|
Постановление № 853 от 23.03.2005
Опорный план
План границ земельных участков
Данные ГП
Данные по нормативным и проектным площадям земельных участков
Данные по существующему жилому фонду и населению
Пояснительная записка
|
|
60
|
ул. Мукомольная – ул. Аллея смелых
|
Постановление № 2428 от 02.09.2004
Опорный план
План границ земельных участков
Данные ГП
Данные по нормативным и проектным площадям земельных участков
Данные по существующему жилому фонду и населению
Пояснительная записка
|
|
61
|
ул. Окская – ул. Аллея смелых – ул. Ангарская – железная дорога
|
Постановление № 424 от 11.02.2005
Опорный план
План границ земельных участков
Данные ГП
Данные по нормативным и проектным площадям земельных участков
Данные по существующему жилому фонду и населению
Пояснительная записка
|
|
62
|
ул. Аллея Смелых – пр-зд Дзержинского – ул. Дзержинского
|
Постановление № 3522 от 16.08.2005
Опорный план
План границ земельных участков
Данные ГП
Данные по нормативным и проектным площадям земельных участков
Данные по существующему жилому фонду и населению
Пояснительная записка
Технико-экономические показатели
|
|
63
|
ул. О. Кошевого – ул. Н. Карамзина – бул. Южный
|
Постановление № 2384 от 13.10.2006
Опорный план
План границ земельных участков
Данные ГП
Данные по нормативным и проектным площадям земельных участков
Данные по существующему жилому фонду и населению
Пояснительная записка
Технико-экономические показатели
|
|
64
|
ул. Октябрьская – ул. Ольштынская – ул. Мебельная – просп. Калинина
|
Постановление № 1496 от 19.09.2008
Опорный план
План границ земельных участков
Данные по нормативным и проектным площадям земельных участков
Данные по существующему жилому фонду и населению
Пояснительная записка
Технико-экономические показатели
|
|
65
|
ул. Парусная – ул. Краснооктябрьская – ул. Новый вал – ул. Казанская
|
Постановление № 2306 от 09.10.2007
Опорный план
План границ земельных участков
Данные ГП
Данные по нормативным и проектным площадям земельных участков
Данные по существующему жилому фонду и населению
Пояснительная записка
Технико-экономические показатели
|
|
66
|
ул. Воздушная – ул. Художественная – ул. Бассейная – ул. Белинского
|
Постановление № 2053 от 25.07.2002
Опорный план
План границ земельных участков
Эскиз генерального плана
Данные ГП
Данные по нормативным и проектным площадям земельных участков
Пояснительная записка
|
|
69
|
ул. Нахимова – ул. Яблоневая аллея – ул. Чапаева – ул. Энгельса
|
Постановление № 3228 от 06.12.2002
Опорный план
План границ земельных участков
Эскиз генерального плана
Данные ГП
Данные по нормативным и проектным площадям земельных участков
Пояснительная записка
|
|
71
|
ул. Радищева – ул. Станочная – ул. Нефтяная – пер. Станочный
|
Постановление № 106 от 20.01.2005
Опорный план
План границ земельных участков
Данные ГП
Данные по нормативным и проектным площадям земельных участков
Пояснительная записка
|
|
72
|
ул. Яблоневая аллея – ул. Нахимова – ул. Энгельса – просп. Победы
|
Постановление № 105 от 20.01.2005
Опорный план
План границ земельных участков
Данные ГП
Данные по нормативным и проектным площадям земельных участков
Пояснительная записка
|
|
73
|
пр-зд 1-й Октябрьский – пр-зд 2-й Октябрьский – просп. Мира
|
Постановление № 106 от 11.12.2003
Опорный план
План границ земельных участков
Данные ГП
Данные по нормативным и проектным площадям земельных участков
Данные по существующему жилому фонду и населению
Пояснительная записка
Нормативное благоустройство
|
|
74
|
ул. Цирковая – ул. Тихоненко – ул. Жуковского – ул. Серж. Мишина
|
Постановление № 1926 от 20.07.2004
Опорный план
План границ земельных участков
Данные ГП
Данные по нормативным и проектным площадям земельных участков
Данные по существующему жилому фонду и населению
Пояснительная записка
|
|
75
|
ул. Серж. Мишина – ул. Тенистая аллея – просп. Победы
|
Постановление № 1958 от 21.07.2004
Опорный план
План границ земельных участков
Пояснительная записка
Данные по нормативным и проектным площадям земельных участков
|
|
76
|
ул. Лужская – ул. Алданская – ул. Славянская
|
Постановление № 2344 от 27.08.2004
Опорный план
План границ земельных участков
Данные ГП
Данные по нормативным и проектным площадям земельных участков
Пояснительная записка
|
|
77
|
ул. Тихоненко – ул. Серж. Мишина – просп. Мира
|
Постановление № 3060 от 09.11.2004
Опорный план
План границ земельных участков
План границ земельных участков под размещение объектов строительства
Данные ГП
Данные по нормативным и проектным площадям земельных участков
Пояснительная записка
|
|
78
|
ул. Алданская – ул. Тихоокеанская – ул. Челюскинская – ул. Аральская
|
Постановление № 2152 от 25.09.2006
Опорный план
План границ земельных участков
Данные ГП
Данные по нормативным и проектным площадям земельных участков
Пояснительная записка
|
|
79
|
ул. Менделеева – ул. Жуковского – ул. Радистов – ул. Белинского
|
Постановление № 426 от 11.02.2005
Опорный план
План границ земельных участков
Данные ГП
Данные по нормативным и проектным площадям земельных участков
Данные по существующему жилому фонду и населению
Пояснительная записка
Нормативное благоустройство
|
|
80
|
ул. Менделеева – ул. Воздушная – ул. Радистов – ул. Белинского
|
Постановление № 255 от 02.02.2005
Опорный план
План границ земельных участков
Данные ГП
Данные по нормативным и проектным площадям земельных участков
Данные по существующему жилому фонду и населению
Пояснительная записка
Нормативное благоустройство
|
|
81
|
ул. Чапаева – ул. Яблоневая аллея – просп. Мира – ул. Энгельса
|
Постановление № 2599 от 09.11.2006
Опорный план
План границ земельных участков
Данные ГП
Данные по нормативным и проектным площадям земельных участков
Пояснительная записка
|
|
82
|
ул. Лейт.Катина – ул. Бассейная
|
Постановление № 851 от 22.03.2005
Опорный план
Проект границ земельных участков
Данные ГП
Данные по нормативным и проектным площадям земельных участков
Данные по существующему жилому фонду и населению
Пояснительная записка
|
|
83
|
ул. Банковская – ул. Коммунальная – ул. Енисейская – ул. Каштановая аллея
|
Постановление № 226 от 31.01.2003
Опорный план
План границ земельных участков
Данные ГП
Данные по нормативным и проектным площадям земельных участков
Пояснительная записка
|
|
84
|
ул. Косм. Леонова – просп. Мира – ул. Зоологическая – пер. Зоологический
|
Постановление № 2426 от 17.10.2003
Опорный план
Проект границ земельных участков
Данные ГП
Данные по нормативным и проектным площадям земельных участков
Данные по существующему жилому фонду и населению
Пояснительная записка
|
|
85
|
ул. Лейт. Яналова, 5
|
Постановление № 183 от 28.01.2003
Опорный план
План границ земельных участков
Эскиз генерального плана
Данные ГП
Данные по нормативным и проектным площадям земельных участков
Данные по существующему жилому фонду и населению
Пояснительная записка
|
|
86
|
ул. Уральская – ул. Ген.-лейт. Озерова – ул. Гаражная – пл. Победы – просп. Советский
|
Постановление № 2886 от 28.10.2002
Опорный план
План границ земельных участков
Эскиз генерального плана
Данные ГП
Данные по нормативным и проектным площадям земельных участков
Данные по существующему жилому фонду и населению
Пояснительная записка
|
|
88
|
ул. Чернышевского – ул. Коммунальная – ул. В. Котика – ул. Маяковского
|
Постановление № 632 от 25.03.2003
Опорный план
План границ земельных участков
Эскиз генерального плана
Данные ГП
Данные по нормативным и проектным площадям земельных участков
Пояснительная записка
|
|
89
|
ул. С. Разина – ул. Шиллера – ул. Ермака – просп. Мира
|
Постановление № 686 от 02.04.2003
Опорный план
План границ земельных участков
Эскиз генерального плана
Данные ГП
Данные по нормативным и проектным площадям земельных участков
Данные по существующему жилому фонду и населению
Пояснительная записка
|
|
90
|
ул. Каштановая аллея – ул. Ген.-лейт. Захарова – ул. Авторемонтная – ул. Чекистов
|
Постановление № 462 от 01.04.2009
Опорный план
План границ земельных участков
Данные ГП
Данные по нормативным и проектным площадям земельных участков
Данные по существующему жилому фонду и населению
Пояснительная записка
Нормативное благоустройство
Проектное градостроительное зонирование
Функциональное зонирование
|
|
91
|
ул. Осипенко – ул. Каштановая аллея – ул. Чернышевского – ул. Ростовская
|
Постановление № 585 от 18.03.2004
Опорный план
План границ земельных участков
Данные по нормативным и проектным площадям земельных участков
Данные по существующему жилому фонду и населению
Пояснительная записка
Нормативное благоустройство
|
|
92
|
ул. Каштановая аллея – ул. Осипенко – ул. Чкалова
|
Постановление № 2288 от 05.10.2007
Опорный план
План границ земельных участков
Данные ГП
Данные по нормативным и проектным площадям земельных участков
Данные по существующему жилому фонду и населению
Пояснительная записка
Нормативное благоустройство
|
|
93
|
ул. Спортивная – ул. Чкалова – ул. Осипенко
|
Постановление № 1923 от 20.07.2004
Опорный план
Эскиз генерального плана
Данные ГП
Данные по нормативным и проектным площадям земельных участков
Данные по существующему жилому фонду и населению
Пояснительная записка
|
|
95
|
ул. Нарвская – ул. Памяти павших в Афганистане – ул. Гайдара – р. Голубая
|
Постановление № 540 от 23.03.2010
Опорный план
План границ земельных участков
Данные ГП
Данные по нормативным и проектным площадям земельных
участков
Данные по существующему жилому фонду и населению
Пояснительная записка
|
|
97
|
ул. Красная – ул. Чекистов – ул. Комсомольская – ул. Марш. Борзова
|
Постановление № 1888 от 15.06.2005
Опорный план
План границ земельных участков
Данные ГП
Данные по нормативным и проектным площадям земельных участков
Пояснительная записка
|
|
98
|
ул. Репина – ул. Брамса – ул. Кирова – ул. Римского-Корсакова
|
Постановление № 49 от 25.01.2011
Опорный план
План границ земельных участков
План красных линий
Данные по нормативным и проектным площадям земельных участков
Пояснительная записка
|
|
99
|
ул. Банковская – ул. Маяковского – ул. В. Котика – ул. Кропоткина
|
Постановление № 310 от 12.02.2004
Опорный план
План границ земельных участков
Данные ГП
Данные по нормативным и проектным площадям земельных участков
Данные по существующему жилому фонду и населению
Пояснительная записка
|
|
100
|
ул. С. Разина – ул. Каменная – просп. Мира – ул. Каштановая аллея
|
Постановление № 1716 от 05.07.2004 с изменениями
Опорный план
План границ земельных участков
Данные ГП
Данные по нормативным и проектным площадям земельных участков
Данные по существующему жилому фонду и населению
Пояснительная записка
Нормативное благоустройство
|
|
101
|
ул. Москвина – просп. Советский – ул. Г. Димитрова
|
Постановление № 2974 от 11.12.2003
Опорный план
План границ земельных участков
Данные ГП
Данные по нормативным и проектным площадям земельных участков
Данные по существующему жилому фонду и населению
Пояснительная записка
Нормативное благоустройство
|
|
102
|
ул. Косм. Пацаева – ул. Шиллера – ул. С. Разина – ул. Красная
|
Постановление № 1893 от 02.11.2010
Опорный план
План границ земельных участков
Данные по нормативным и проектным площадям земельных участков
Пояснительная записка
Нормативное благоустройство
|
|
103
|
ул. Марш. Борзова – ул. Косм. Леонова – ул. Молочинского – ул. Комсомольская
|
Постановление № 474 от 19.03.2008
Опорный план
План границ земельных участков
Данные ГП
Данные по нормативным и проектным площадям земельных участков
Данные по существующему жилому фонду и населению
Пояснительная записка
Нормативное благоустройство
Проектное градостроительное зонирование
Функциональное зонирование
Основные градоформирующие элементы исторической среды
|
|
104
|
ул. Шиллера – ул. К. Маркса – ул. Комсомольская – ул. Косм. Пацаева
|
Постановление № 2525 от 14.09.2004
Опорный план
План границ земельных участков
Данные ГП
Данные по нормативным и проектным площадям земельных участков
Данные по существующему жилому фонду и населению
Пояснительная записка
|
|
105
|
ул. Ташкентская – ул. Броненосная – ул. Полецкого – ул. Бердянская
|
Постановление № 3419 от 07.12.2004
Опорный план
План границ земельных участков
Данные ГП
Данные по нормативным и проектным площадям земельных участков
Данные по существующему жилому фонду и населению
Пояснительная записка
|
|
106
|
ул. Мусоргского – ул. Ген.-лейт. Озерова – ул. Уральская – просп. Советский
|
Постановление № 2946 от 28.10.2004
Опорный план
План границ земельных участков
Данные ГП
Данные по нормативным и проектным площадям земельных участков
Данные по существующему жилому фонду и населению
Пояснительная записка
Нормативное благоустройство
|
|
107
|
ул. Офицерская – ул. С. Разина – ул. Пугачёва – просп. Мира
|
Постановление № 1145 от 10.07.2008
Опорный план
План границ земельных участков
Данные ГП
Данные по нормативным и проектным площадям земельных участков
Пояснительная записка
|
|
108
|
ул. С. Разина – ул. Коммунальная – просп. Мира – ул. Каменная
|
Постановление № 2756 от 12.10.2004
Опорный план
План границ земельных участков
Данные ГП
Данные по нормативным и проектным площадям земельных участков
Данные по существующему жилому фонду и населению
Пояснительная записка
|
|
110
|
ул. Горбунова – ул. Мира – ул. Безымянная – ул. Жиленкова – ул. Беланова
|
Постановление № 429 от 06.03.2007
Опорный план
План границ земельных участков
Пояснительная записка
|
|
111
|
ул. Косм. Леонова – ул. Войнич – ул. Алябьева – ул. Лейт. Яналова
|
Постановление № 281 от 04.02.2005
Опорный план
План границ земельных участков
Данные ГП
Данные по нормативным и проектным площадям земельных участков
Данные по существующему жилому фонду и населению
Пояснительная записка
Нормативное благоустройство
|
|
112
|
ул. Войнич – ул. Чекистов – просп. Советский – ул. Алябьева
|
Постановление № 2596 от 09.11.2006
Опорный план
План границ земельных участков
Данные ГП
Данные по нормативным и проектным площадям земельных участков
Данные по существующему жилому фонду и населению
Пояснительная записка
Нормативное благоустройство
|
|
113
|
ул. Лейт. Калинина – ул. Лукашова – проектируемая улица
|
Постановление № 1860 от 23.10.2009
Опорный план
План границ земельных участков
Данные ГП
Данные по нормативным и проектным площадям земельных участков
Данные по существующему жилому фонду и населению
Пояснительная записка
Нормативное благоустройство
|
|
114
|
ул. К. Маркса – ул. Пугачёва – ул. С. Разина – ул. Красная
|
Постановление № 157 от 09.02.2007
Опорный план
План границ земельных участков
Данные ГП
Данные по нормативным и проектным площадям земельных участков
Данные по существующему жилому фонду и населению
Пояснительная записка
Нормативное благоустройство
|
|
115
|
ул. Авторемонтная – ул. Ген.-лейт. Захарова – ул. Молдавская – ул. Чекистов
|
Постановление № 142 от 30.01.2009
Опорный план
План границ земельных участков
Данные ГП
Данные по нормативным и проектным площадям земельных участков
Пояснительная записка
|
|
116
|
ул. Л. Иванихиной – ул. Иртышская – ул. Ген. Толстикова – бул. Романина
|
Постановление № 1271 от 07.08.2008
Опорный план
План границ земельных участков
Данные ГП
Данные по нормативным и проектным площадям земельных участков
Данные по существующему жилому фонду и населению
Пояснительная записка
Проектное градостроительное зонирование
Функциональное зонирование
Основные градоформирующие элементы исторической среды
Санитарно-защитные зоны
Развитие транспортного обслуживания
Мероприятия по снижению шумового загрязнения
|
|
117
|
ул. Грига – ул.1812 года – ул. Литовский вал – ул. Стекольная
|
Постановление № 1269 от 29.07.2009
Опорный план
План границ земельных участков
Данные ГП
Данные по нормативным и проектным площадям земельных участков
Пояснительная записка
|
|
118
|
ул. Барнаульская – ул. Больничная – ул. Вагнера
|
Постановление № 2210 от 14.12.2009
Опорный план
План границ земельных участков
Данные ГП
Данные по нормативным и проектным площадям земельных участков
Данные по существующему жилому фонду и населению
Пояснительная записка
Нормативное благоустройство
Проектное градостроительное зонирование
Функциональное зонирование
Основные градоформирующие элементы исторической среды
Схема границ зон с особыми условиями использования территории
|
|
119
|
ул. Чекистов – пер. Щорса – ул. Щорса – ул. Красная
|
Постановление № 170 от 08.02.2010
Опорный план
План границ земельных участков
Данные ГП
Данные по нормативным и проектным площадям земельных участков
Данные по существующему жилому фонду и населению
Пояснительная записка
|
|
120
|
ул. Беланова – приток р. Голубая
|
Постановление № 171 от 08.02.2010
Опорный план
План границ земельных участков
Данные ГП
Данные по нормативным и проектным площадям земельных участков
Пояснительная записка
|
|
121
|
ул. Пархоменко – ул. Айвазовского – ул. Шишкина – ул. Левитана – пер. Левитана
|
Постановление № 2211 от 12.12.2011
Опорный план
План границ земельных участков
Разбивочный чертёж красных линий
Пояснительная записка
Данные по нормативным и проектным площадям земельных участков
|
|
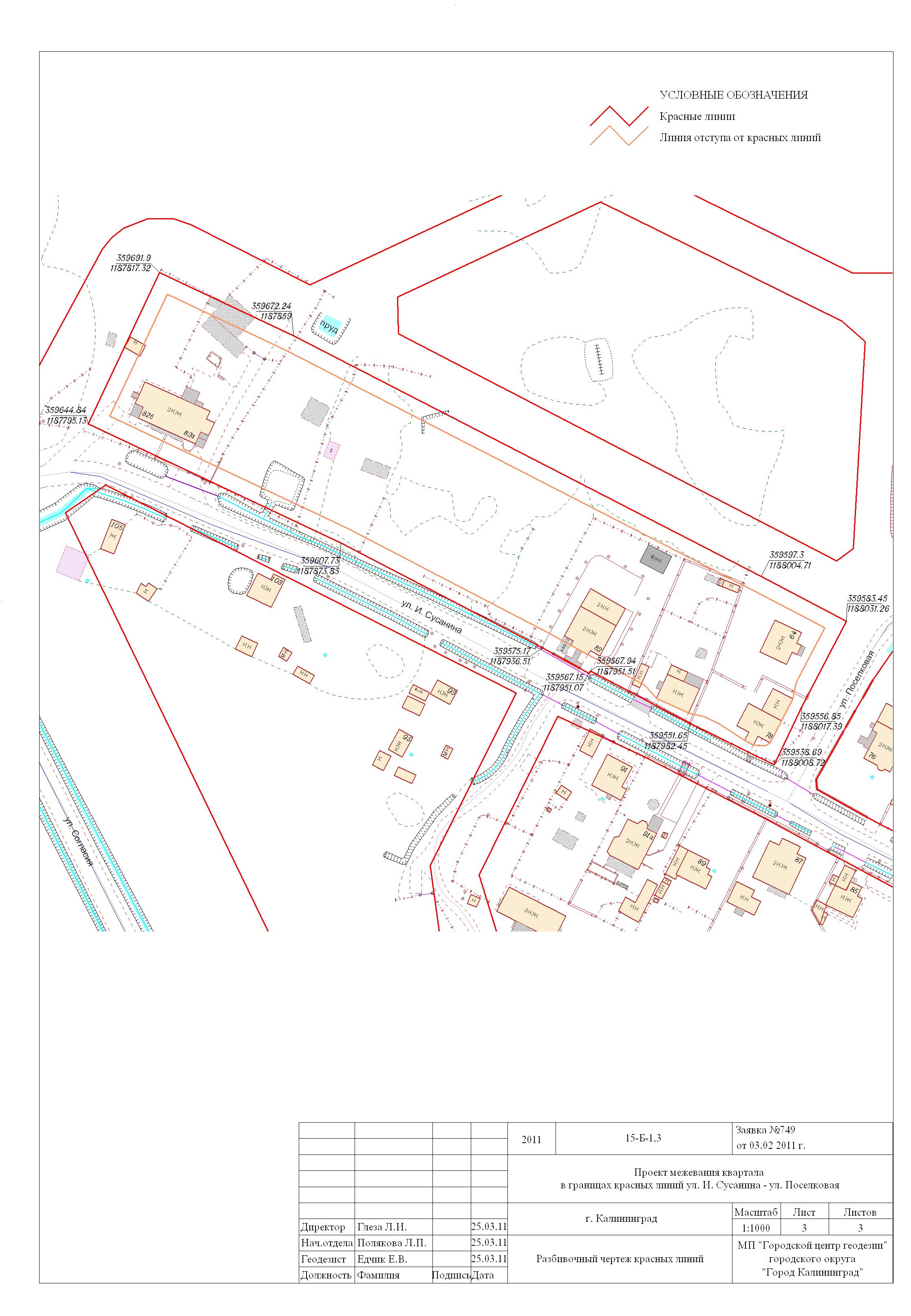
122
|
ул. И. Сусанина – ул. Поселковая
|
Постановление № 1774 от 24.10.2011
Опорный план
План границ земельных участков
Разбивочный чертёж красных линий
Пояснительная записка
|
|
123
|
пер. Львовский – пер. 3-й Ржевский – ул. Подп. Емельянова – ул. Львовская
|
Постановление № 869 от 05.06.2009
Опорный план
План границ земельных участков
Пояснительная записка
Данные по нормативным и проектным площадям земельных участков
Данные ГП
|
|
124
|
ул. Гайдара – ул. Нарвская – ул. Ген. Челнокова
|
Постановление № 1857 от 27.10.2010
Опорный план
План границ земельных участков
Пояснительная записка
Данные по нормативным и проектным площадям земельных участков
Данные по существующему жилому фонду и населению
|
|
125
|
ул. Янтарная – ул. Платова – ул. М. Лесная – ул. Червонная
|
Постановление № 1991 от 27.07.2004
Опорный план
План границ земельных участков
План границ земельных участков под размещение объектов строительства
Пояснительная записка
Данные по нормативным и проектным площадям земельных участков
Данные по существующему жилому фонду и населению
Данные ГП
|
|
126
|
ул. Чернышевского – ул. Каштановая аллея – ул. Фестивальная аллея – ул. Чкалова
|
Постановление № 3142 от 30.12.2003
Опорный план
План границ земельных участков
Пояснительная записка
Данные по нормативным и проектным площадям земельных участков
Данные по существующему жилому фонду и населению
|
|
127
|
ул. Толбухина – ул. Миклухо-Маклая – ул. Баженова – ул. Тамбовская
|
Постановление № 2818 от 27.11.2003
Опорный план
План границ земельных участков
Пояснительная записка
Данные по нормативным и проектным площадям земельных участков
|
|
128
|
ул. Тихорецкая – ул. Киевская
|
Постановление № 1688 от 22.09.2009
Опорный план
План границ земельных участков
Пояснительная записка
Данные по нормативным и проектным площадям земельных участков
Данные по существующему жилому фонду и населению
Нормативное благоустройство
Данные ГП
Проектное градостроительное зонирование
Функциональное зонирование
Санитарно-защитные зоны
Развитие транспортного обслуживания
|
|
129
|
ул. Ген.-лейт. Захарова – ул. Дунайская – ул. Чекистов – ул. Молдавская
|
Постановление № 143 от 30.01.2009
Опорный план
План границ земельных участков
Пояснительная записка
Данные по нормативным и проектным площадям земельных участков
Данные ГП
|
|
130
|
ул. Гагарина – ул. Стрелецкая
|
Постановление № 627 от 29.04.2009
Опорный план
План границ земельных участков 1
План границ земельных участков 2
Пояснительная записка
Функциональное зонирование
|
|
131
|
ул. Репина, 60 – ул. Алябьева, 18-22 – ул. К. Маркса, 1 – ул. Г. Димитрова, 51
|
Постановление № 1117 от 16.04.2002
Опорный план
Эскиз генплана
|
|
132
|
Восточный жилой район г.Калининграда севернее Московского проспекта на продолжении улиц Молодой гвардии – Аксакова – Окружной дороги
|
Постановление № 358 от 07.03.2008
План границ земельных участков
Данные по нормативным и проектным площадям земельных участков
|
|
133
|
ул. Марш. Борзова – ул. Авторемонтная – ул. Каштановая аллея – ул. Ген.-лейт. Захарова
|
Постановление № 1903 от 10.11.2010
Опорный план
План границ земельных участков
Разбивочный чертёж красных линий
Пояснительная записка
Данные по нормативным и проектным площадям земельных участков
|
|
134
|
ул. Ялтинская – просп. Московский – пер. Ялтинский
|
Постановление № 1683 от 08.10.2010
Опорный план
План границ земельных участков
Пояснительная записка
Данные по нормативным и проектным площадям земельных участков
Нормативное благоустройство
|
|
135
|
ул. Куприна – ул. Аксакова – ул. Кутаисская – ул. Краснопрудная
|
Постановление № 1410 от 17.08.2010
Опорный план
План границ земельных участков
Пояснительная записка
Данные по нормативным и проектным площадям земельных участков
Схема существующего положения проектируемой территории в структуре города
Данные ГП
Схема границ территорий объектов культурного наследия
Схема функционального зонирования и градостроительного регулирования
Схема границ зон с особыми условиями использования территории
|
|
136
|
ул. Станочная – просп. Победы – ул. Радищева
|
Постановление № 1393 от 13.08.2010
Опорный план
План границ земельных участков
Пояснительная записка
Данные по нормативным и проектным площадям земельных участков
Данные ГП
Проектное градостроительное зонирование
Функциональное зонирование
Основные градоформирующие элементы исторической среды
Санитарно-защитные зоны
|
|
137
|
ул. Заводская – ул. Береговая
|
Постановление № 1686 от 05.10.2010
Опорный план
План границ земельных участков
Пояснительная записка
Данные по нормативным и проектным площадям земельных участков
|
|
138
|
бул. Солнечный – ул. Ген. Павлова – ул. Октябрьская
|
Постановление № 1781 от 20.10.2010
Опорный план
План границ земельных участков
Пояснительная записка
Данные по нормативным и проектным площадям земельных участков
|
|
139
|
ул. Ш. Руставели – ул. Римского-Корсакова – туп. Зоологический
|
Постановление № 2266 от 14.12.2010
Опорный план
План границ земельных участков
Разбивочный чертёж красных линий
Пояснительная записка
|
|
140
|
ул. Тихорецкая – ул. Киевская – ул. Дарвина
|
Постановление № 1902 от 10.11.2010
Опорный план
План границ земельных участков
Разбивочный чертёж красных линий
Пояснительная записка
Данные по нормативным и проектным площадям земельных участков
|
|
141
|
ул. Дарвина – ул. Киевская
|
Постановление № 1904 от 10.11.2010
Опорный план
План границ земельных участков
Разбивочный чертёж красных линий
Пояснительная записка
Данные по нормативным и проектным площадям земельных участков
|
|
143
|
ул. Г. Димитрова – ул. Брамса – ул. Репина – ул. Менжинского
|
Постановление № 2267 от 15.12.2010
Опорный план
План границ земельных участков
Разбивочный чертёж красных линий
Пояснительная записка
Данные по нормативным и проектным площадям земельных участков
|
|
144
|
ул. Горького – ул. Ясная – ул. Полк. Ефремова
|
Постановление № 495 от 25.03.2011
Опорный план
План границ земельных участков
Разбивочный чертёж красных линий
Пояснительная записка
Данные по нормативным и проектным площадям земельных участков
|
|
145
|
ул. Кирова – ул. Зоологическая – ул. Чайковского – ул. Косм. Леонова
|
Постановление № 50 от 25.01.2011
Опорный план
План границ земельных участков
Разбивочный чертёж красных линий
Пояснительная записка
Данные по нормативным и проектным площадям земельных участков
|
|
146
|
ул. Зоологическая – ул. Кирова – ул. Алябьева – ул. Чайковского
|
Постановление № 2265 от 14.12.2010
Опорный план
План границ земельных участков
Разбивочный чертёж красных линий
Пояснительная записка
Данные по нормативным и проектным площадям земельных участков
|
|
147
|
ул. Грига – ул. Лесопильная – ул. Черепичная – просп. Московский
|
Постановление № 284 от 03.03.2011
Опорный план
План границ земельных участков
Разбивочный чертёж красных линий
Пояснительная записка
Данные по нормативным и проектным площадям земельных участков
|
|
148
|
ул. Беланова (дома с № 61 по № 91)
|
Постановление № 158 от 07.02.2012
Опорный план
План границ земельных участков
Разбивочный чертёж красных линий
Пояснительная записка
Данные по нормативным и проектным площадям земельных участков
|
|
149
|
ул. Е. Колесникова – ул. Радищева – ул. А. Бровковича
|
Постановление № 1905 от 10.11.2010
План границ земельных участков
|
|
150
|
пер. Товарный – ул. Товарная – ул. Судостроительная
|
Постановление № 1236 от 26.07.2011
Опорный план
План границ земельных участков
Разбивочный чертёж красных линий
Пояснительная записка
Данные по нормативным и проектным площадям земельных участков
|
|
151
|
ул. Типографская – ул. Черниговская – ул. М-ра Козенкова – ул. З. Космодемьянской
|
Постановление от 24.06.2011 № 1036
Опорный план
План границ земельных участков
Разбивочный чертёж красных линий
Пояснительная записка
Данные по нормативным и проектным площадям земельных участков
|
|
152
|
ул. Береговая – пер. Потёмкина – ул. Потёмкина – ул. Линейная
|
Постановление № 1238 от 26.07.2011
Опорный план
План границ земельных участков
Разбивочный чертёж красных линий
Пояснительная записка
Данные по нормативным и проектным площадям земельных участков
|
|
153
|
ул. Велижская – ул. Невельская – ул. Ставропольская
|
Постановление № 2330 от 27.12.2011
Опорный план
План границ земельных участков
Пояснительная записка
Данные по нормативным и проектным площадям земельных участков
|
|
154
|
ул. Красная – ул. Велижская – ул. Ставропольская
|
Постановление № 2304 от 23.12.2011
Опорный план
План границ земельных участков
Разбивочный чертёж красных линий
Пояснительная записка
Данные по нормативным и проектным площадям земельных участков
|
|
155
|
ул. Озёрная – ул. Стрелковая – ул. Беломорская
|
Постановление № 2213 от 12.12.2011
Опорный план
План границ земельных участков
Разбивочный чертёж красных линий
Пояснительная записка
Данные по нормативным и проектным площадям земельных участков
|
|
156
|
ул. Стрелковая – ул. Лесная
|
Постановление № 2212 от 12.12.2011
Опорный план
План границ земельных участков
Разбивочный чертёж красных линий
Пояснительная записка
Данные по нормативным и проектным площадям земельных участков
|
|
157
|
ул. Артиллерийская
|
Постановление № 2306 от 23.12.2011
Опорный план
План границ земельных участков
Разбивочный чертёж красных линий
Пояснительная записка
Данные по нормативным и проектным площадям земельных участков
|
|
158
|
ул. Парт. Железняка – ул. Старш. Дадаева – ул. Еловая аллея – ул. Майская
|
Постановление № 2131 от 02.12.2011
Опорный план
План границ земельных участков
Разбивочный чертёж красных линий
Пояснительная записка
Данные по нормативным и проектным площадям земельных участков
|
|
159
|
ул. Багратиона – пер. Серпуховский – просп. Ленинский – пл. Калинина
|
Постановление № 127 от 01.02.2012
Опорный план
План границ земельных участков
Разбивочный чертёж красных линий
Пояснительная записка
Данные по нормативным и проектным площадям земельных участков
|
|
160
|
ул. Тобольская – ул. Тихорецкая – ул. Восточная – ул. Киевская
|
Постановление № 2328 от 27.12.2011
Опорный план
План границ земельных участков
Разбивочный чертёж красных линий
Пояснительная записка
Данные по нормативным и проектным площадям земельных участков
|
|
161
|
ул. Гражданская – ул. Томская – ул. Пионерская – ул. Фрунзе
|
Постановление № 1563 от 20.09.2011
Опорный план
План границ земельных участков
Разбивочный чертёж красных линий
Пояснительная записка
Данные по нормативным и проектным площадям земельных участков
|
|
162
|
ул. Ялтинская, 75-95
|
Постановление от 29.06.2012 № 1160
Опорный план
План границ земельных участков
Разбивочный чертёж красных линий
Пояснительная записка
Данные по нормативным и проектным площадям земельных участков
|
|
163
|
ул. Парковая аллея – ул. Островского – ул.Загородная – ул. Ладожская
|
Постановление № 1797 от 26.10.2011
Опорный план
План границ земельных участков
Разбивочный чертёж красных линий
Пояснительная записка
Данные по нормативным и проектным площадям земельных участков
|
|
164
|
ул. Парковая аллея – ул. Ладожская – ул. Загородная – ул. Музыкальная
|
Постановление № 2307 от 23.12.2011
Опорный план
План границ земельных участков
Разбивочный чертёж красных линий
Пояснительная записка
Данные по нормативным и проектным площадям земельных участков
|
|
165
|
ул. Коммунальная – ул. Чернышевского – ул. Красная – ул. Фестивальная
|
Постановление № 690 от 28.04.2012
Опорный план
План границ земельных участков
Разбивочный чертёж красных линий
Пояснительная записка
Данные по нормативным и проектным площадям земельных участков
|
|
170
|
ул. Багратиона – пер. Южный – ул. Эльблонгская – ул. Серпуховская
|
Постановление № 1398 от 25.08.2011
Опорный план
План границ земельных участков
План красных линий
Данные по нормативным и проектным площадям земельных участков
Пояснительная записка
|
|
171
|
ул. Немировича-Данченко – ул. Баумана – пер. Немировича-Данченко – ул. Тбилисская – ул. Можайская – ул. А. Суворова
|
Постановление № 378 от 14.03.2012
Опорный план
План границ земельных участков
Разбивочный чертёж красных линий
Пояснительная записка
Данные по нормативным и проектным площадям земельных участков
|
|
172
|
ул. Свердлова – ул. Аксакова – ул. Белибейская – ул. Краснопрудная
|
Постановление № 1854 от 02.11.2011
Опорный план
План границ земельных участков
Разбивочный чертёж красных линий
Пояснительная записка
Данные по нормативным и проектным площадям земельных участков
|
|
173
|
ул. Чукотская – ул. 2-я Шуйская – ул. Тульская,
ул. Бакинская – ул. 1-я Шуйская,
ул. Бакинская – ул. Баженова – ул. Тульская – ул. Ялтинская,
ул. Баженова – ул. Тульская
|
Постановление № 126 от 01.02.2012
Опорный план 1
Опорный план 2
План границ земельных участков 1
План границ земельных участков 2
Разбивочный чертёж красных линий
Пояснительная записка
Данные по нормативным и проектным площадям земельных участков
|
|
177
|
ул. Ген.-лейт. Озерова – ул. Мусоргского – просп. Советский
|
Постановление № 1235 от 26.07.2011
Опорный план
План границ земельных участков
Разбивочный чертёж красных линий
Пояснительная записка
Данные по нормативным и проектным площадям земельных участков
|
|
178
|
ул. 1-я Безымянная – ул. Лукашова – проектная дорога
|
Постановление № 1576 от 23.09.2011
Опорный план
План границ земельных участков
Разбивочный чертёж красных линий
Пояснительная записка
Данные по нормативным и проектным площадям земельных участков
|
|
179
|
ул. Рабочая – ул. Парковая – проектная дорога
|
Постановление № 2305 от 23.12.2011
Опорный план
План границ земельных участков
Разбивочный чертёж красных линий
Пояснительная записка
Данные по нормативным и проектным площадям земельных участков
|
|
180
|
ул. Пугачёва – ул. С. Разина – ул. Офицерская – ул. К. Маркса
|
Постановление № 2210 от 12.12.2011
Опорный план
План границ земельных участков
Разбивочный чертёж красных линий
Пояснительная записка
Данные по нормативным и проектным площадям земельных участков
|
|
181
|
просп. Московский – ул. Грига – наб. Адм. Трибуца
|
Постановление № 375 от 14.03.2012
Опорный план
План границ земельных участков
Разбивочный чертёж красных линий
Пояснительная записка
Данные по нормативным и проектным площадям земельных участков
|
|
182
|
просп. Мира – ул. Свободная – пер. Свободный – ул. Серж. Колоскова
|
Постановление № 1853 от 02.11.2011
Опорный план
План границ земельных участков
Разбивочный чертёж красных линий
Пояснительная записка
Данные по нормативным и проектным площадям земельных участков
|
|
183
|
ул. Магнитогорская – ул. Карташева – пер. Карташева – ул. Лужская – ул. Курильская
|
Постановление № 1397 от 25.08.2011
Опорный план
План границ земельных участков
Разбивочный чертёж красных линий
Пояснительная записка
Данные по нормативным и проектным площадям земельных участков
|
|
184
|
ул. Киевская – ул. Фабричная – ул. Ольховая – ул. П. Морозова
|
Постановление № 2310 от 23.12.2011
Опорный план
План границ земельных участков
Разбивочный чертёж красных линий
Пояснительная записка
Данные по нормативным и проектным площадям земельных участков
|
|
185
|
ул. Нарвская – ул. Гайдара – ул. Дорожная – ул. Зелёная
|
Постановление № 835 от 11.06.2013
Опорный план
План границ земельных участков
Разбивочный чертёж красных линий
Пояснительная записка
|
|
186
|
ул. Платова – ул. Богатырская – ул. Онежская
|
Постановление № 377 от 14.03.2012
Опорный план
План границ земельных участков
Разбивочный чертёж красных линий
Пояснительная записка
Данные по нормативным и проектным площадям земельных участков
|
|
187
|
ул. Аральская – ул. Лужская – ул. Челюскинская – пер. Аральский
|
Постановление № 528 от 04.04.2012
Опорный план
План границ земельных участков
Разбивочный чертёж красных линий
Пояснительная записка
Данные по нормативным и проектным площадям земельных участков
|
|
188
|
ул. Косм. Леонова – ул. Войнич – ул. Алябьева – ул. Фестивальная аллея
|
Постановление № 1197 от 04.07.2012
Опорный план
План границ земельных участков
Разбивочный чертёж красных линий
Пояснительная записка
Данные по нормативным и проектным площадям земельных участков
|
|
189
|
ул. Радистов – ул. Белинского – пер. Воздушный – ул. Воздушная
|
Постановление № 376 от 14.04.2012
Опорный план
План границ земельных участков
Разбивочный чертёж красных линий
Пояснительная записка
Данные по нормативным и проектным площадям земельных участков
|
|
190
|
пер. Радищева – ул. Радищева – ул. Станочная – ул. Ремонтная
|
Постановление № 855 от 24.05.2012
Опорный план
План границ земельных участков
Разбивочный чертёж красных линий
Пояснительная записка
Данные по нормативным и проектным площадям земельных участков
|
|
191
|
ул. Мира – ул. Горбунова – ул. Лукашова – ул. Безымянная
|
Постановление № 561 от 16.04.2012
Опорный план
План границ земельных участков
Разбивочный чертёж красных линий
Пояснительная записка
Данные по нормативным и проектным площадям земельных участков
|
|
192
|
просп. Победы – ул. Ремонтная – ул. Станочная – ул. Харьковская
|
Постановление № 159 от 07.02.2012
Опорный план
План границ земельных участков
Разбивочный чертёж красных линий
Пояснительная записка
Данные по нормативным и проектным площадям земельных участков
|
|
193
|
ул. Тульская – ул. Толбухина – ул. Тамбовская – ул. Балашовская
|
Постановление № 2330 от 27.12.2011
Опорный план
План границ земельных участков
Разбивочный чертёж красных линий
Пояснительная записка
Данные по нормативным и проектным площадям земельных участков
|
|
194
|
ул. У. Громовой – ул. Интернациональная – ул. Л. Иванихиной
|
Постановление № 1158 от 29.06.2012
Опорный план
Проект границ земельных участков
План красных линий
Данные по нормативным и проектным площадям земельных участков
|
|
195
|
ул. А. Невского – ул. Юбилейная – ул. Ю. Гагарина – ул. Литовский вал
|
Постановление № 280 от 10.03.2016
Опорный план Том 1
Проект границ Том 1
Пояснительная записка Том 1
Данные по нормативным и проектным площадям земельных участков Том 1
|
|
196
|
ул. Куйбышева – ул. Ю. Костикова – ул. Еловая аллея – ул. Ю. Гагарина
|
Постановление № 280 от 10.03.2016
Опорный план Том 2
Проект границ Том 2
Пояснительная записка Том 2
Данные по нормативным и проектным площадям земельных участков Том 2
|
|
197
|
пос. М. Борисово
|
Постановление № 1625 от 15.09.2009
Пояснительная записка
Сводная схема
Схема красных линий
|
|
198
|
Ул. Косм. Леонова – ул. Чекистов – просп. Советский
|
Постановление № 940 от 06.06.2012
Опорный план
Проект границ земельных участков
План красных линий
Данные по нормативным и проектным площадям земельных участков
|
|
199
|
ул. Лукашова – пер. Лукашова – ул. Лейт. Калинина
|
Постановление № 458 от 26.03.2012
Опорный план
Проект границ земельных участков
План красных линий
Данные по нормативным и проектным площадям земельных участков
|
|
200
|
ул. Ген. Соммера – просп. Ленинский – ул. Университетская – ул. Проф. Севастьянова
|
Постановление № 731 от 11.05.2012
Данные по нормативным и проектным площадям земельных участков
Опорный план
План красных линий
Проект границ земельных участков
|
|
201
|
ул. Дзержинского – проезд Дзержинского – ул. Аллея смелых – р. Лесная
|
Постановление № 1968 от 18.10.2012
Данные по нормативным и проектным площадям земельных
участков
Опорный план
План красных линий
Проект границ земельных участков
|
|
204
|
ул. Парковая – ул. Заводская
|
Постановление № 1159 от 29.06.2012
Опорный план
Проект границ земельных участков
План красных линий
Данные по нормативным и проектным площадям земельных
участков
|
|
205
|
ул. Алданская – ул. Лужская – ул. Аральская
|
Постановление № 1242 от 11.07.2012
Опорный план
Проект границ земельных участков
План красных линий
Данные по нормативным и проектным площадям земельных
участков
|
|
206
|
ул. Пионерская – пер. Грига – ул. Литовский вал
|
Постановление № 142 от 11.02.2013
Опорный план
План границ земельных участков
План красных линий
Данные по нормативным и проектным площадям земельных участков
Пояснительная записка
|
|
207
|
просп. Ленинский – ул. Подп. Иванникова – ул. Ген. Соммера
|
Постановление № 1488 от 03.08.2012
Опорный план
План границ земельных участков
План красных линий
Данные по нормативным и проектным площадям земельных участков
Пояснительная записка
|
|
208
|
ул. Добролюбова (№№ 27, 29, 31) – ул. Красносельская (№№ 73,77)
|
Постановление № 1315 от 20.07.2012
Опорный план
Проект границ земельных участков
План красных линий
|
|
209
|
ул. П. Морозова – ул. Киевская
|
Постановление № 1719 от 07.09.2012
Опорный план
Основной чертеж
Разбивочный чертеж красных линий
Пояснительная записка
Данные по нормативным и проектным площадям земельных участков
|
|
210
|
ул. Зелёная – ул. Балтийская
|
Постановление № 1940 от 15.10.2012
Данные по нормативным и проектным площадям земельных
участков
Опорный план
План красных линий
Проект границ земельных участков
|
|
211
|
ул. Чекистов – ул. Дунайская – ул. Вернадского – ул. Мл. лейт. Родителева
|
Постановление № 1742 от 14.09.2012
Данные по нормативным и проектным площадям земельных участков
Опорный план
План красных линий
Проект границ земельных участков
|
|
212
|
ул. Мл. лейт. Ротко – ул. Подп. Половца – ул. Б. Хмельницкого
|
Постановление № 1988 от 24.10.2012
Опорный план
План красных линий
Проект границ земельных участков
|
|
213
|
ул. Потёмкина – ул. Линейная – ул. А. Невского
|
Постановление № 1490 от 03.08.2012
Опорный план
Проект границ земельных участков
План красных линий
Данные по нормативным и проектным площадям земельных
участков
|
|
214
|
ул. Миклухо-Маклая – ул. Толбухина – ул. Холмогорская – ул. Баженова
|
Постановление № 1316 от 20.07.2012
Опорный план
Проект границ земельных участков
План красных линий
Данные по нормативным и проектным площадям земельных участков
|
|
215
|
просп. Ленинский – ул. Полоцкая – ул. Серпуховская – ул. Портовая
|
Постановление № 1741 от 14.09.2012
Данные по нормативным и проектным площадям земельных участков
Опорный план
План красных линий
Проект границ земельных участков
|
|
216
|
ул. Коммунистическая – ул. Летняя – ул. П. Морозова
|
Постановление № 1384 от 25.07.2012
Опорный план
Проект границ земельных участков
План красных линий
Данные по нормативным и проектным площадям земельных
участков
|
|
217
|
ул. Подп. Емельянова – ул. Одесская – ул. Мичурина
|
Постановление № 1213 от 10.07.2012
Опорный план
Проект границ земельных участков
План красных линий
Данные по нормативным и проектным площадям земельных участков
|
|
218
|
ул. Клинская – ул. Муромская – ул. Яхромская – ул. Ангарская
|
Постановление № 1214 от 10.07.2012
Опорный план
Проект границ земельных участков
План красных линий
Данные по нормативным и проектным площадям земельных
участков
|
|
219
|
ул. Нарвская – ул. Калужская – пер. Нарвский,
пер. Калужский – ул. Калужская – пер. Желябова,
ул. Нарвская – пер. Нарвский – пер. Калужский – ул. Желябова
|
Постановление № 1941 от 15.10.2012
Данные по нормативным и проектным площадям земельных участков
Опорный план
План красных линий
Проект границ земельных участков
|
|
220
|
ул. Северная – ул. И. Сусанина
|
Постановление № 1970 от 18.10.2012
Данные по нормативным и проектным площадям земельных
участков
Опорный план
План красных линий
Проект границ земельных участков
|
|
221
|
ул. Менделеева – ул. Воздушная – ул. Красносельская
|
Постановление № 1793 от 19.09.2012
Данные по нормативным и проектным площадям земельных
участков
Опорный план
План красных линий
Проект границ земельных участков
|
|
222
|
ул. Шевченко – ул. Зарайская
|
Постановление № 2375 от 17.12.2012
Данные по нормативным и проектным площадям земельных участков
Опорный план
План красных линий
Проект границ
|
|
223
|
ул. Ленинградская – ул. Лескова – ул. Некрасова
|
Постановление № 1916 от 12.10.2012
Данные по нормативным и проектным площадям земельных участков
Опорный план
План красных линий
Проект границ земельных участков
|
|
224
|
пер. Лесная аллея – ул. 1-я Б. Окружная – просп. Победы
|
Постановление № 2376 от 17.12.2012
Данные по нормативным и проектным площадям земельных участков
Опорный план
План красных линий
Проект границ
|
|
225
|
ул. Славянская – ул. Сухумская – ул. Карташева – ул. Урицкого
|
Постановление № 2046 от 31.10.2012
Опорный план
Основной чертеж
Разбивочный чертеж красных линий
Пояснительная записка
Данные по нормативным и проектным площадям земельных участков
|
|
226
|
ул. Аральская – ул. Ижорская – ул. Карташева
|
Постановление № 1794 от 19.09.2012
Данные по нормативным и проектным площадям земельных участков
Опорный план
План красных линий
Проект границ земельных участков
|
|
227
|
ул. Чапаева – просп. Мира – ул. Кутузова – ул. М. Расковой
|
Постановление № 2044 от 31.10.2012
Опорный план
Основной чертеж
Пояснительная записка
Данные по нормативным и проектным площадям земельных участков
|
|
228
|
просп. Ленинский – ул. Пролетарская – ул. Шевченко
|
Постановление № 1942 от 15.10.2012 Постановление о признании утратившей силу части проекта межевания
Данные по нормативным и проектным площадям земельных участков
Опорный план
План красных линий
Проект границ земельных участков
|
|
229
|
ул. Театральная – ул. Ген. Галицкого
|
Постановление № 1920 от 15.10.2012
Опорный план
Основной чертеж
Пояснительная записка
Данные по нормативным и проектным площадям земельных участков
|
|
230
|
ул. Маяковского – ул. Лейт. Яналова – ул. Красная – ул. Чернышевского
|
Постановление № 2143 от 22.11.2012
Данные по нормативным и проектным площадям земельных участков
Опорный план
Проект границ
|
|
231
|
ул. Восточная – пер. Восточный – ул. Великолукская – ул. Киевская
|
Постановление № 2262 от 10.12.2012
Опорный план
План красных линий
Проект границ
|
|
232
|
ул. Тихорецкая – ул. Школьная – ул. Киевская – ул. Великолукская
|
Постановление № 2384 от 21.12.2012
Данные по нормативным и проектным площадям земельных участков
Опорный план
План красных линий
Проект границ
|
|
233
|
ул. Минина и Пожарского – просп. Мира – ул. Е. Ковальчук – просп. Победы
|
Постановление № 2062 от 31.10.2012
Данные по нормативным и проектным площадям земельных
участков
Опорный план
План красных линий
Проект границ
|
|
234
|
ул. Старорусская – ул. Третьяковская – ул. Волховская
|
Постановление № 2059 от 31.10.2012
Опорный план
Основной чертеж
Пояснительная записка
Данные по нормативным и проектным площадям земельных участков
|
|
235
|
ул. Чкалова – ул. Осипенко – ул. Ростовская – ул. Чернышевского
|
Постановление № 340 от 25.03.2013
Данные по нормативным и проектным площадям земельных участков
План красных линий
Проект границ
|
|
236
|
ул. П. Морозова
|
Постановление № 1589 от 17.08.2012
Опорный план
Проект границ земельных участков
План красных линий
Данные по нормативным и проектным площадям земельных
участков
|
|
237
|
ул. Нансена – ул. Чаадаева – ул. А. Суворова
|
Постановление № 1969 от 18.10.2012
Данные по нормативным и проектным площадям земельных участков
Опорный план
План красных линий
Проект границ земельных участков
|
|
238
|
ул. Беланова – ул. Жиленкова
|
Постановление № 1410 от 26.07.2012
Опорный план
Проект границ земельных участков
План красных линий
Данные по нормативным и проектным площадям земельных
участков
|
|
239
|
ул. Камская – ул. Киевская – ул. Берёзовая (корректировка)
|
Постановление № 121 от 04.02.2013
Данные по нормативным и проектным площадям земельных
участков
Опорный план
План красных линий
Проект границ
|
|
240
|
ул. Каменная – ул. С. Разина – ул. Коммунальная – просп. Мира
|
Постановление № 1241 от 11.07.2012
Опорный план
Проект границ земельных участков
Данные по нормативным и проектным площадям земельных участков
|
|
241
|
ул. Носова – ул. Брамса – ул. Грекова (корректировка)
|
Постановление № 274 от 05.03.2013
Данные по нормативным и проектным площадям земельных
участков
Опорный план
План красных линий
Проект границ
|
|
242
|
ул. Тбилисская – ул. Можайская – ул. А. Суворова,
ул. Баумана,
ул. Заводская – ул. Тбилисская – ул. Можайская,
ул. Заводская – ул. Баумана – ул. Можайская
|
Постановление № 250 от 22.02.2012
Опорный план
Проект границ земельных участков
План красных линий
Данные по нормативным и проектным площадям земельных участков
|
|
243
|
ул. Яновская – ул. Грига – ул. Фрунзе
|
Постановление № 1215 от 10.07.2012
Опорный план
Основной чертеж
Пояснительная записка
Данные по нормативным и проектным площадям земельных участков
|
|
245
|
ул. Артиллерийская – ул. Закатная – ул. Пирогова
|
Постановление № 2249 от 30.11.2012
Опорный план
Основной чертеж
Пояснительная записка
|
|
246
|
ул. 1-я Б. Окружная – ул. Флоренского – ул. Ломоносова – ул. Марш. Борзова – ул. А. Болотова
|
Постановление № 2394 от 21.12.2012
Пояснительная записка
Опорный план
Основной чертеж
|
|
248
|
шос. Балтийское, 125
|
Постановление № 169 от 13.02.2013
Градостроительное зонирование
Опорный план
Проект границ
|
|
249
|
просп. Ленинский – ул. Казанская – ул. Багратиона
|
Постановление № 842 от 11.06.2013
Данные по нормативным и проектным площадям земельных
участков
Опорный план
План красных линий
Проект границ
|
|
250
|
ул. Новый вал – ул. Проф. Морозова – ул. Эпроновская – ул. Багратиона
|
Постановление № 842 от 11.06.2013
Данные по нормативным и проектным площадям земельных участков
Опорный план
План красных линий
Проект границ
|
|
251
|
ул. Орудийная – ул. Старокаменная
|
Постановление № 1204 от 12.08.2013
Опорный план
План красных линий
Проект границ
Данные по нормативным и проектным площадям земельных участков
|
|
252
|
ул. Фортовая дорога, дома №№ 7, 9
|
Постановление № 836 от 11.06.2013
Данные по нормативным и проектным площадям земельных участков
Опорный план
План красных линий
Проект границ
|
|
253
|
ул. Войнич – ул. Косм. Леонова – ул. Чекистов – просп. Советский
|
Постановление № 1229 от 15.08.2013
Данные по нормативным и проектным площадям земельных участков
Опорный план
План красных_линий
Проект границ
|
|
254
|
ул. Ульяновская – ул. Радищева – ул. Литейная – ул. Ремонтная
|
Постановление № 854 от 11.06.2013
Данные по нормативным и проектным площадям земельных участков
Опорный план
План красных линий
Проект границ
|
|
255
|
ул. Судостроительная – ул. Инженерная
|
Постановление № 903 от 27.06.2013
Опорный план
План красных линий
Проект границ
|
|
256
|
ул. Ген. Толстикова – ул. Батальная – пер. 2-й Альпийский – пер. 1-й Альпийский
|
Постановление № 903 от 27.06.2013
Данные по нормативным и проектным площадям земельных участков
Опорный план
План красных линий
Проект границ
|
|
257
|
ул. Горького – ул. Гайдара – ул. Зелёная
|
Постановление № 1227 от 15.08.2013
Данные по нормативным и проектным площадям земельных участков
Опорный план
План красных_линий
Проект границ
|
|
258
|
ул. Батальная – ул. Дрожжевая
|
Постановление № 903 от 27.06.2013
Данные по нормативным и проектным площадям земельных
участков
Опорный план
План красных линий
Проект границ
|
|
259
|
бул. Ф. Лефорта – ул. Согласия
|
Постановление № 1120 от 31.07.2013
Опорный план
План красных линий
Проект границ
Данные по нормативным и проектным площадям земельных
участков
|
|
260
|
ул. Марш.Борзова, дома №№ 58Д, 58Е
|
Постановление № 1534 от 08.10.2013
Данные по нормативным и проектным площадям земельных участков
План красных линий
Проект границ
Пояснительная записка
|
|
261
|
просп. Мира – ул. Грекова – пер. Театральный
|
Постановление № 1209 от 13.08.2013
Данные по нормативным и проектным площадям земельных участков
Опорный план
План красных_линий
Проект границ
|
|
262
|
ул. Красная – ул. Щорса – ул. Комсомольская – ул. Лейт. Яналова
|
Постановление № 1282 от 28.08.2013
Данные по нормативным и проектным площадям земельных участков
Опорный план
Проект границ
|
|
264
|
пер. Лаптевых – ул. К. Заслонова – ул. Кремлёвская – ул. Щепкина
|
Постановление № 1121 от 31.07.2013
Опорный план
План красных линий
Данные по нормативным и проектным площадям земельных участков
|
|
265
|
пер. Лаптевых – ул. Щепкина – ул. Кремлёвская – ул. Лаптевых
|
Постановление № 1218 от 15.08.2013
Опорный план
План красных линий
Проект границ
Данные по нормативным и проектным площадям земельных участков
|
|
266
|
ул. Горького – ул. Азовская – ул. Госпитальная – ул. Знойная
|
Постановление № 976 от 05.07.2013
Данные по нормативным и проектным площадям земельных участков
Опорный план
План красных линий
Проект границ
|
|
267
|
ул. Ген.-лейт. Озерова – ул. Госпитальная – ул. Ракитная
|
Постановление № 1569 от 11.10.2013
Опорный план
План красных линий
Проект границ
Пояснительная записка
|
|
268
|
ул. Звёздная – ул. Театральная – ул. Космическая – ул. Диккенса
|
Постановление № 9 от 15.01.2014
Данные по нормативным и проектным площадям земельных участков
Опорный план
План красных линий
Проект границ
Пояснительная записка
|
|
269
|
ул. Воздушная – ул. Художественная – ул. Бассейная – ул. Белинского
|
Постановление № 1269 от 27.08.2013
Данные по нормативным и проектным площадям земельных участков
Опорный план
План красных_линий
Проект границ
|
|
270
|
ул. Красносельская – ул. Саратовская
|
Постановление № 1070 от 24.07.2013
Данные по нормативным и проектным площадям земельных участков
Опорный план
План красных линий
Проект границ
|
|
271
|
ул. Мл. лейт. Родителева – ул. Вернадского – ул. Красная – ул. Чекистов
|
Постановление № 1245 от 20.08.2013
Данные по нормативным и проектным площадям земельных участков
Опорный план
План красных_линий
Проект границ
|
|
272
|
ул. Мл. лейт. Родителева – ул. Чекистов – ул. Красная – ул. Щорса
|
Постановление № 1533 от 08.10.2013
Данные по нормативным и проектным площадям земельных участков
Опорный план
План красных линий
Проект границ
Пояснительная записка
|
|
273
|
ул. Заводская – ул. Строительная – ул. Парковая
|
Постановление № 1078 от 29.07.2013
Опорный план
План красных линий
Проект границ
|
|
274
|
пер. Заводской
|
Постановление № 1410 от 13.09.2013
Опорный план
План красных_линий
Проект границ
|
|
275
|
ул. Рабочая – ул. Заводская
|
Постановление № 1456 от 23.09.2013
Данные по нормативным и проектным площадям земельных участков
Опорный план
План красных_линий
Проект границ
|
|
276
|
ул. Ген. Соммера – ул. Пролетарская – ул. Проф. Севастьянова
|
Постановление № 1271 от 27.08.2013
Данные по нормативным и проектнымплощадям земельных участков
Опорный план
План красных_линий
Проект границ
|
|
277
|
ул. Грига – ул. Стекольная – просп. Московский
|
Постановление № 988 от 12.07.2013
Данные по нормативным и проектным площадям земельных участков
Опорный план
План красных линий
Проект границ
|
|
278
|
ул. Коммунальная – ул. К. Маркса – ул. Офицерская – ул. С. Разина
|
Постановление № 1228 от 15.08.2013
Данные по нормативным и проектным площадям земельных участков
Опорный план
План красных_линий
Проект границ
|
|
279
|
ул. Каменная – ул. К. Маркса – ул. Коммунальная – ул. С. Разина
|
Постановление № 1036 от 18.07.2013
Данные по нормативным и проектным площадям земельных участков
План красных линий
Проект границ
|
|
280
|
ул. Серпуховская – ул. Полоцкая – Ленинский просп. – ул. Эльблонгская
|
Постановление № 1130 от 02.08.2013
Опорный план
План красных линий
Проект границ
Данные по нормативным и проектным площадям земельных участков
|
|
281
|
ул. Восточная – ул. Тихорецкая – ул. Великолукская – пер. Восточный
|
Постановление № 1452 от 23.09.2013
Данные по нормативным и проектным площадям земельных участков
Опорный план
План красных_линий
Проект границ
|
|
282
|
ул. Л. Толстого – ул. А. Невского
|
Постановление № 1272 от 27.08.2013
Данные по нормативным и проектным площадям земельных участков
Опорный план
План красных_линий
Проект границ
|
|
283
|
пер. Потёмкина – ул. Сержантская – ул. Потёмкина
|
Постановление № 1425 от 19.09.2013
Данные по нормативным и проектным площадям земельных участков
Опорный план
План красных_линий
Проект границ
|
|
284
|
ул. Комсомольская – ул. Косм. Пацаева – ул. Косм. Леонова – просп. Мира
|
Постановление № 1455 от 23.09.2013
Данные по нормативным и проектным площадям земельных участков
Опорный план
План красных_линий
|
|
285
|
просп. Мира – пр-зд 2-й Октябрьский
|
Постановление № 1283 от 30.08.2013
Данные по нормативным и проектным площадям земельных участков
Опорный план
План красных_линий
|
|
286
|
ул. Мечникова – ул. Мичурина – ул. Халтурина – ул. Шишкина
|
Постановление № 1220 от 15.08.2013
Опорный план
План красных линий
Проект границ
Данные по нормативным и проектным площадям земельных участков
|
|
288
|
ул. Двинская – ул. Окская – ул. Щаденко
|
Постановление № 1295 от 03.09.2013
Данные по нормативным и проектным площадям земельных участков
Опорный план
План красных_линий
Проект границ
|
|
289
|
ул. Белибейская – ул. Аксакова – ул. Куприна – ул. Краснопрудная
|
Постановление № 1508 от 02.10.2013
Данные по нормативным и проектным площадям земельных участков
Опорный план
План красных_линий
Проект границ
|
|
290
|
ул. Черепичная – ул. Лесопильная – ул. Литовский вал
|
Постановление № 1270 от 27.08.2013
Данные по нормативным и проектным площадям земельных участков
Опорный план
План красных_линий
Проект границ
|
|
292
|
ул. Коммунальная – ул. С. Разина – ул. Офицерская – просп. Мира
|
Постановление № 839 от 11.06.2013
Данные по нормативным и проектным площадям земельных участков
Опорный план
План красных линий
Проект границ
|
|
293
|
ул. Комсомольская – ул. Молочинского – ул. Косм. Леонова – ул. Чекистов
|
Постановление № 1531 от 08.10.2013
Данные по нормативным и проектным площадям земельных участков
Опорный план
План красных линий
Проект границ
Пояснительная записка
|
|
294
|
ул. Красная – ул. К. Маркса – ул. Шиллера – ул. Косм. Пацаева
|
Постановление № 1387 от 09.09.2013
Данные по нормативным и проектным площадям земельных участков
Опорный план
План красных_линий
Проект границ
|
|
295
|
ул. Комсомольская – ул. К. Маркса – ул. Косм. Леонова – ул. Чайковского
|
Постановление № 1780 от 18.11.2013
Данные по нормативным и проектным площадям земельных участков
Опорный план
План красных линий
Проект границ
Пояснительная записка
|
|
297
|
ул. А. Суворова – ул. Заводская
|
Постановление № 1454 от 23.09.2013
Данные по нормативным и проектным площадям земельных участков
Опорный план
План красных_линий
Проект границ
|
|
298
|
ул. Парковая аллея – ул. Лейт. Князева
|
Постановление № 1809 от 26.11.2013
Данные по нормативным и проектным площадям земельных участков
Опорный план
План красных линий
Проект границ
Пояснительная записка
|
|
299
|
ул. Чехова – ул. Островского – ул. Тельмана – ул. Котовского
|
Постановление № 1268 от 27.08.2013
Данные по нормативным и проектным площадям земельных участков
Опорный план
План красных_линий
Проект границ
|
|
300
|
ул. Докука – ул. Беланова
|
Постановление № 1893 от 02.12.2013
Данные по нормативным и проектным площадям земельных участков
Опорный план
План красных линий
Проект границ
Пояснительная записка
|
|
301
|
ул. Марш. Борзова, дома №№ 2-10, 12-38,40-48
|
Постановление № 1538 от 08.10.2013
Данные по нормативным и проектным площадям земельных участков
Опорный план
План красных линий
Проект границ
Пояснительная записка
|
|
302
|
ул. У. Громовой, дома с 99 по 129
|
Постановление № 876 от 19.06.2013
Данные по нормативным и проектным площадям земельных участков
Опорный план
План красных линий
Проект границ
|
|
303
|
пер. Парковый – ул. Аллея смелых – ул. Мукомольная
|
Постановление № 1697 от 05.11.2013
Данные по нормативным и проектным площадям земельных участков
Опорный план
План красных линий
Проект границ
Пояснительная записка
|
|
304
|
ул. Земельная
|
Постановление № 1747 от 12.11.2013
Данные по нормативным и проектным площадям земельных участков
Опорный план
Проект границ
Пояснительная записка
|
|
305
|
ул. Ю. Гагарина – ул. Краснодонская
|
Постановление № 1572 от 11.10.2013
Данные по нормативным и проектным площадям земельных участков
Опорный план
План красных линий
Проект границ
Пояснительная записка
|
|
306
|
ул. Алданская, 14-30
|
Постановление № 47 от 24.01.2014
Данные по нормативным и проектным площадям земельных участков
Опорный план
План красных линий
Проект границ
|
|
307
|
ул. Фабричная – ул. Ольховая – ул. П. Морозова – пл. Октябрьская
|
Постановление № 1639 от 22.10.2013
Данные по нормативным и проектным площадям земельных участков
Опорный план
План красных линий
Проект границ
Пояснительная записка
|
|
308
|
ул. Коммунальная – ул. В. Котика – ул. Маяковского – ул. Чернышевского
|
Постановление № 39 от 24.01.2014
Данные по нормативным и проектным площадям земельных участков
Опорный план
План красных линий
Проект границ
Пояснительная записка
|
|
309
|
ул. Н. Карамзина – ул. У. Громовой
|
Постановление № 1995 от 20.12.2013
Данные по нормативным и проектным площадям земельных участков
Опорный план
План красных линий
Проект границ
Пояснительная записка
|
|
311
|
ул. Пехотная – ул. Арсенальная – ул. Туруханская
|
Постановление № 376 от 06.03.2014
опорный план
план красных линий
Пояснительная записка
проект границ
|
|
312
|
ул. Подп. Емельянова – ул. Дзержинского – железная дорога – ул. Энергетиков – ул. Ямская – ул. С. Лазо – ул. Новинская
|
Постановление № 1620 от 17.10.2014
Опорный план 1
Опорный план 2
Опорный план 3-4-5-6
Основной чертеж 1
Основной чертеж 2
Основной чертеж 3-4-5-6
Разбивочный чертеж красных линий 1
Разбивочный чертеж красных линий 2
Разбивочный чертеж красных линий 3-4-5-6
Пояснительная записка
|
|
314
|
ул. О. Кошевого – ул. Луганская – ул. Аллея смелых
|
Постановление № 347 от 04.03.2014
Данные по нормативным и проектным площадям земельных участков
Опорный план
План красных линий
Пояснительная записка
Проект границ
|
|
315
|
пер. 2-й Алданский – ул. Аральская – ул. Макаренко – ул. Карташева – ул. Алтайская
|
Постановление № 1510 от 02.10.2013
Опорный план
Основной чертеж
Пояснительная записка
Разбивочный чертеж красных линий
|
|
316
|
ул. Львовская – пер. Львовский – пер. 3-й Ржевский (корректировка)
|
Постановление № 171 от 13.02.2013
Данные по нормативным и проектным площадям земельных участков
Опорный план
План красных линий
Проект границ
|
|
317
|
ул. Энгельса – ул. Нахимова – пер. Нахимова – ул. Чапаева
|
Постановление № 117 от 04.02.2013
Данные по нормативным и проектным площадям земельных участков
Опорный план
План красных линий
Проект границ
|
|
318
|
пер. Малый – ул. Эпроновская – ул. Краснооктябрьская – ул. Проф. Морозова
|
Постановление № 170 от 13.02.2013
Данные по нормативным и проектным площадям земельных участков
Опорный план
План красных линий
Проект границ
|
|
319
|
ул. Клиническая – ул. Нерчинская – ул. 9 апреля – ул. Фрунзе (корректирровка)
|
Постановление № 181 от 18.02.2013
Данные по нормативным и проектным площадям земельных участков
Опорный план
План красных линий
Проект границ
|
|
320
|
ул. 1-я Б. Окружная – ул. Дубовая аллея – просп. Победы
|
Постановление № 10 от 15.01.2014
Опорный план
Основной чертеж
Пояснительная записка
|
|
321
|
ул. Батальная, 67-71
|
Постановление № 550 от 30.04.2013
Данные по нормативным и проектным площадям земельных участков
Опорный план
План красных линий
Проект границ
|
|
322
|
ул. Больничная – ул. Вагнера – ул. Житомирская – ул. Коперника
|
Постановление № 977 от 05.07.2013
Данные по нормативным и проектным площадям земельных участков
Опорный план
План красных линий
Проект границ
|
|
324
|
ул. Пролетарская – ул. Черняховского (корректировка)
|
Постановление № 546 от 30.04.2013
Данные по нормативным и проектным площадям земельных участков
Опорный план
План красных линий
Проект
границ
|
|
325
|
ул. Подп. Емельянова – пер. 2-й Ржевский – ул. Одесская
|
Постановление № 1173 от 08.08.2013
Опорный план
Основной чертеж
Пояснительная записка
|
|
326
|
ул. Кировоградская – ул. Белорусская – ул. Полецкого – просп. Советский
|
Постановление № 506 от 22.04.2013
Основной чертёж
Опорный план
Разбивочный чертёж красных линий
Пояснительная записка
|
|
327
|
ул. 1-я Б. Окружная – просп. Мира – ул. Штурвальная – ул. Тихоненко
|
Постановление № 1213 от 15.08.2013
Опорный план
План красных линий
Пояснительная записка
Проект границ
|
|
328
|
ул. Камская – ул. А. Матросова
|
Постановление № 994 от 12.07.13
Опорный план Межевание
Пояснительная записка
Проект межевания
Разбивочный чертеж красных линий
|
|
329
|
ул. Транспортная – туп. Транспортный
|
Постановление № 1172 от 08.08.2013
Опорный план
Проект межевания территории, 1 этап
Проект межевания территории, 2 этап
|
|
330
|
пос. Совхозный
|
Постановление № 8 от 15.01.2014
опорный план
план красных линий
Пояснительная записка
проект границ
|
|
331
|
ул. Габайдулина – просп. Советский – ул. 2-я Б. Окружная
|
Постановление № 383 от 29.03.2013
Основной чертёж
Поянительная записка
|
|
332
|
ул. Алябьева – ул. К. Маркса – ул. Г. Димитрова – ул. Менжинского – ул. Репина
|
Постановление № 1219 от 15.08.2013
Опорный план
План красных линий
Проект границ
Данные по нормативным и проектным площадям земельных участков
|
|
333
|
просп. Московский – ул. Мариупольская
|
Постановление № 685 от 13.05.2013
Данные по нормативным и проектным площадям земельных участков
Опорный план
План красных линий
Проект границ
|
|
334
|
ул. Пролетарская – ул. Минская
|
Постановление № 1202 от 12.08.2013
Опорный план
План красных линий
Проект границ
Данные по нормативным и проектным площадям земельных
участков
|
|
335
|
ул. Невельская – ул. Рыбников – ул. Ставропольская
|
Постановление № 908 от 27.06.2013
Данные по нормативным и проектным площадям земельных участков
Опорный план
План красных_линий
Проект границ
|
|
336
|
ул. Горького – ул. Госпитальная – ул. Знойная – ул. Ген.-лейт. Озерова
|
Постановление № 1335 от 05.09.2013
Данные по нормативным и проектным площадям земельных участков
Опорный план
План красных_линий
Проект границ
|
|
337
|
ул. Красносельская (дома с 81а по 85а)
|
Постановление № 1955 от 11.12.2013
Данные по нормативным и проектным площадям земельных участков
Опорный план
План красных линий
Проект границ
Пояснительная записка
|
|
338
|
ул. Брамса – просп. Советский – ул. Репина
|
Постановление № 1968 от 19.12.2013
Данные по нормативным и проектным площадям земельных участков
Опорный план
План красных линий
Проект границ
Пояснительная записка
|
|
339
|
ул. Кутузова – ул. Закавказская – просп. Победы
|
Постановление № 1855 от 29.11.2013
Опорный план
План красных линий
Проект границ
Пояснительная записка
|
|
340
|
ул. Литовский вал (дома с 63 по 103)
|
Постановление № 1892 от 02.12.2013
Данные по нормативным и проектным площадям земельных участков
Опорный план
План красных линий
Проект границ
Пояснительная записка
|
|
341
|
ул. Нансена (дома с 20 по 86, 17-17а) – ул. Чаадаева, 6-8
|
Постановление № 1996 от 20.12.2013
Данные по нормативным и проектным площадям земельных участков
Опорный план
План красных линий
Проект границ
Пояснительная записка
|
|
342
|
ул. Серж. Колоскова, 6А
|
Постановление № 1855 от 29.11.2013
Данные по нормативным и проектным площадям земельных участков
Опорный план
План красных линий
Проект границ
Пояснительная записка
|
|
343
|
ул. Cудостроительная (дома с 14 по 88)
|
Постановление № 2019 от 24.12.2013
Данные по нормативным и проектным площадям земельных участков
Опорный план
План красных линий
Проект границ
Пояснительная записка
|
|
344
|
ул. Уфимская – ул. Береговая – ул. А. Невского – ул. Сержантская
|
Постановление № 1891 от 02.12.2013
Данные по нормативным и проектным площадям земельных участков
Опорный план
План красных линий
Проект границ
Пояснительная записка
|
|
345
|
ул. Энгельса – ул. Донская – ул. Адмиральская – ул. Кутузова
|
Постановление № 1756 от 12.11.2013
Данные по нормативным и проектным площадям земельных участков
Опорный план
План красных линий
Проект границ
Пояснительная записка
|
|
346
|
просп. Мира, 86-88А – ул. Красная, 3-5
|
Постановление № 243 от 18.02.2014
Данные по нормативным и проектным площадям земельных участков
Опорный план
План красных линий
Проект границ
Пояснительная записка
|
|
347
|
ул. Карташева – ул. Сухумская – ул. Ижорская – ул. Урицкого
|
Постановление № 145 от 06.02.2014
Данные по нормативным и проектным площадям земельных участков
Опорный план
План красных линий
Проект границ
Пояснительная записка
|
|
348
|
ул. Красная – ул. Марш. Борзова – ул. Комсомольская
|
Постановление № 93 от 28.01.2014
Данные по нормативным и проектным площадям земельных
участков
Опорный план
План красных линий
Проект границ
Пояснительная записка
|
|
349
|
ул. Беговая (дома с 35 по 51) – ул. Коммунистическая (дома с 30 по 32)
|
Постановление № 147 от 06.02.2014
Данные по нормативным и проектным площадям земельных участков
Опорный план
План красных линий
Проект границ
Пояснительная записка
|
|
350
|
ул. Космическая – просп. Ленинский, 6-8Б
|
Постановление № 127 от 04.02.2014
Опорный план
Проект границ
План красных линий
Пояснительная записка
Данные по нормативным и проектным площадям земельных участков
|
|
351
|
ул. Габайдулина – ул. Авиационная – ул. Гавриленко – ул. Хрисанфова
|
Постановление № 146 от 06.02.2014
Данные по нормативным и проектным площадям земельных участков
Опорный план
План красных линий
Проект границ
Пояснительная записка
|
|
352
|
ул. Киевская – ул. Инженерная
|
Постановление № 104 от 04.02.2014
Данные по нормативным и проектным площадям земельных участков
Опорный план
План красных линий
Проект границ
Пояснительная записка
|
|
353
|
ул. Еловая аллея (дома с 28 по 70)
|
Постановление № 2057 от 27.12.2013
Данные по нормативным и проектным площадям земельных участков
Опорный план
План красных линий
Проект границ
Пояснительная записка
|
|
354
|
Гвардейский просп. – ул. Ген. Галицкого – ул. Ген. Буткова – ул. Марш. Баграмяна
|
Постановление № 46 от 24.01.2014
Данные по нормативным и проектным площадям земельных участков
Опорный план
План красных линий
Проект границ
Пояснительная записка
|
|
355
|
пер. Энгельса – ул. К. Маркса – ул. Каштановая аллея – просп. Мира
|
Постановление № 45 от 24.01.2014
Данные по нормативным и проектным площадям земельных участков
Опорный план
План красных линий
Проект границ
Пояснительная записка
|
|
356
|
ул. Товарная – ул. 8 марта – ул. Судостроительная
|
Постановление № 48 от 24.01.2014
Данные по нормативным и проектным площадям земельных участков
Опорный план
План красных линий
Проект границ
Пояснительная записка
|
|
357
|
ул. Печатная – ул. П. Морозова – ул. Коммунистическая
|
Постановление № 377 от 06.03.2014
Данные по нормативным и проектным площадям земельных участков
Опорный план
План красных линий
Проект границ
Пояснительная записка
|
|
358
|
ул. Лейт. Калинина – ул. Лукашова
|
Постановление № 211 от 12.02.2014
Данные по нормативным и проектным площадям земельных участков
Опорный план
План красных линий
Проект границ
Пояснительная записка
|
|
359
|
ул. Радищева – ул. Каштановая аллея – ул. Велосипедная дорога
|
Постановление № 198 от 11.02.2014
Данные по нормативным и проектным площадям земельных участков
Опорный план
План красных линий
Проект границ
Пояснительная записка
|
|
361
|
ул. Киевская – ул. Коммунистическая – ул. Минусинская – ул. Беговая – ул. П. Морозова
|
Постановление № 140 от 01.02.2010
Данные генерального плана Том 1
Данные генерального плана Том 2
Данные по нормативным и проектным площадям земельных участков Том 1
Данные по нормативным и проектным площадям земельных участков Том 2
Опорный план Том 1
Опорный план Том 2
Проект границ Том 1
Проект границ Том 2
|
|
363
|
ул. Согласия – ул. Украинская – ул. П. Панина – железная дорога |
Постановление № 1384 от 12.08.2009
Опорный план
Схема в структуре
|
|
365
|
ул. Красная – ул. Окуловская – территория военного городка "Лермонтовский № 2" – территория нежилого здания 263 по ул. Красной
|
Постановление № 200 от 10.02.2010
Основной чертеж
Пояснительная записка
|
|
366
|
ул. Тихоокеанская – ул. Магнитогорская – ул. Алданская
|
Постановление № 627 от 19.04.2011
Пояснительная записка
Схема положения со схемой транспорта
|
|
367
|
Восточная граница садоводческого товарищества «Искра» – городская черта – ул. Знаменская – ул. Крылова – ул. Фурманова – ул. 3-я Б. Окружная (микрорайон «Северная гора»)
|
Постановление № 681 от 26.04.2012
Опорный план
Проект границ земельных участков
План красных линий
Данные по нормативным и проектным площадям земельных
участков
|
|
369
|
ул. Аллея смелых – ул. Ангарская – ул. Луганская – ул. Батальная
|
Постановление № 26 от 16.01.2014
Квартал 1
Квартал 10
Квартал 11
Квартал 12
Квартал 13
Квартал 14
Квартал 15
Квартал 2
Квартал 3
Квартал 4
Квартал 5
Квартал 6
Квартал 7
Квартал 8
Квартал 9
|
|
370
|
ул. Ключевая – ул. Таганрогская – железнодорожная ветка – ул. Родниковая
|
Постановление № 1131 от 28.06.2012
Опорный план
Чертеж планировки территории (основной чертеж)
|
|
371
|
ул. Сызранская – ул. Арзамасская – ул. Хабаровская – ул. Урицкого – железнодорожная ветка
|
Постановление № 1509 от 02.10.2013
Основной чертеж
Пояснительная запискаx
|
|
372
|
ул. Красносельская, д.д. 65, 65а, 67, 69, 69а, 71
|
Постановление № 502 от 22.04.2013
Основной чертеж
|
|
373
|
просп. Победы – ул. Радищева – ул. Станочная
|
Постановление № 112 от 27.01.2015
Основной чертеж
Ситуационная схема
Эскизное предложение
Пояснительная записка
|
|
376
|
ул. Б. Окружная – шос. Люблинское
|
Постановление № 1954 от 12.12.2013
опорный план
план красных линий
проект границ
|
|
377
|
Территория земельного участка с кадастровым номером 39:15:141502:59 по ул. Дзержинского
|
Постановление № 1536 от 08.10.2013
Опорный план
Основной чертеж
Пояснительная записка
|
|
380
|
Московский просп.– ул. Клиническая – ул. Литовский вал
|
Постановление № 1453 от 19.09.2014
Опорный план 1
Опорный план 2
Опорный план 3
Разбивочный чертеж красных линий 1
Разбивочный чертеж красных линий 2
Разбивочный чертеж красных линий 3
Основной чертеж 1
Основной чертеж 2
Основной чертеж 3
Пояснительная записка
Постановление № 207 от 15.02.2017
Постановление № 1000 от 11.07.2017
|
|
381
|
ул. Украинская – ул. Горького – граница городской черты – ул. Лукашова – Б. Окружная дорога
|
Постановление № 46 от 23.01.2015
Основной чертеж
Опорный план
Разбивочный чертеж красных линий
Пояснительная записка
|
|
382
|
просп. Победы – ул. Горная – ул. Велосипедная дорога – ул. Радищева
|
Постановление № 1256 от 04.08.2015
Опорный план
Основной чертеж
Пояснительная записка
|
|
384
|
ул. А. Невского – ул. Артиллерийская
|
Постановление № 2019 от 19.12.2014
Основной чертеж
Эскизное предложение
Пояснительная записка
|
|
385
|
ул. Суворова (для строительства линейного объекта)
|
Постановление № 499 от 18.03.2015
Основной чертёж
Пояснительная записка
|
|
387
|
ул. Карташева – шос. Балтийское (для строительства линейного объекта)
|
Постановление № 1134 от 28.07.2014
Опорный план
Чертёж межевания территории
|
|
389
|
ул. Энергетиков – ул. Подп. Емельянова – граница пруда Мельничного
|
Постановление № 2070 от 24.12.2014
Эскизное предложение
Ситуационная схема
Пояснительная записка
Проект границ земельных участков
Опорный план
|
|
390
|
ул. Интернациональная(для строительства линейного объекта)
|
Постановление № 1115 от 14.07.2015
Основной чертеж
Опорный план
Разбивочный чертёж красных линий
Пояснительная записка
|
|
391
|
ул.Тихорецкая – ул. Киевская – ул. Инженерная (размещение линейного объекта)
|
Постановление № 1653 от 22.10.2014
Опорный план
Разбивочный чертеж красных линий
Проект границ земельных участков
Пояснительная записка
|
|
392
|
ул. Невская – ул. А. Суворова – ул. Б. Окружная (размещение линейного объекта)
|
Постановление № 1773 от 18.11.2014
Чертёж межевания
|
|
395
|
ул. Бойко – железная дорога
|
Постановление № 914 от 19.06.2014
Данные по нормативным и проектным площадям земельных участков
Опорный план
Разбивочный чертеж красных линий
Проект границ земельных участков
Пояснительная записка
|
|
396
|
ул. Красносельская (дома 2-6, 8-12)
|
Постановление № 901 от 18.06.2014
Данные по нормативным и проектным площадям земельных участков
Опорный план
Разбивочный чертеж красных линий
Проект границ земельных участков
Пояснительная записка
|
|
397
|
ул. А. Невского (дома 145-145Б, 147, 149-153, 179, 179Б, 181-183)
|
Постановление № 811 от 03.06.2014
Данные по нормативным и проектным площадям земельных участков
Опорный план 1
Опорный план 2
Разбивочный чертеж красных линий
Проект границ земельных участков 1
Проект границ земельных участков 2
Пояснительная записка
|
|
398
|
ул. Чайковского, 12 - 18, 20 - 24
|
Постановление № 812 от 03.06.2014
Данные по нормативным и проектным площадям земельных участков
Опорный план
Разбивочный чертеж красных линий
Проект границ земельных участков
Пояснительная записка
|
|
399
|
пер. Чернышевского – ул. Банковская – ул. Коммунальная – ул. Чернышевского
|
Постановление № 843 от 05.06.2014
Данные по нормативным и проектным площадям земельных участков
Опорный план
Разбивочный чертеж красных линий
Проект границ земельных участков
Пояснительная записка
|
|
400
|
пер. Калинина – ул. Б. Хмельницкого – ул. Ольштынская – пер. Ольштынский – просп. Калинина
|
Постановление № 778 от 21.05.2014
Данные по нормативным и проектнымплощадям земельных участков
Опорный план
Разбивочный чертеж красных линий
Проект границ земельных участков
Пояснительнаязаписка
|
|
401
|
ул. Красноармейская, 19-29, ул. Б. Песочная, 7-17
|
Постановление № 711 от 21.05.2014
Данные по нормативным и проектным площадям земельных участков
Опорный план
Разбивочный чертеж красных линий
Проект границ земельных участков
Пояснительная записка
|
|
402
|
ул. К. Маркса – пер. Энгельса – просп. Мира
|
Постановление № 745 от 21.05.2014
Данные по нормативным и проектным площадям земельных участков
Опорный план
Разбивочный чертеж красных линий
Проект границ земельных участков
Пояснительная записка
|
|
403
|
пер. 2-й Трамвайный – пер. Трамвайный – ул. Киевская
|
Постановление № 713 от 21.05.2014
Данные по нормативным и проектным площадям земельных участков
Опорный план
Разбивочный чертеж красных линий
Проект границ земельных участков
Пояснительная записка
|
|
404
|
пер. Клинской – ул. Грунтовая – ул. Муромская
|
Постановление № 782 от 21. 05.2014
Данные по нормативным и проектным площадям земельных участков
Опорный план
Разбивочный чертеж красных линий
Проект границ земельных участков
Пояснительная записка
|
|
405
|
ул. Ялтинская (дома 28-30, 32-34, 38-40)
|
Постановление № 844 от 05.06.2014
Данные по нормативным и проектным площадям земельных участков
Опорный план
Разбивочный чертеж красных линий
Проект границ земельных участков
Пояснительная записка
|
|
406
|
ул.Артиллерийская (дома 53, 55,57,59)
|
Постановление № 844 от 05.06.2014
Данные по нормативным и проектным площадям земельных участков
Опорный план
Разбивочный чертеж красных линий
|
|
407
|
ул. Каштановая аллея, 73 – ул. К. Маркса, 120-158 – просп. Мира, 132
|
Постановление № 850 от 05.06.2014
Данные по нормативным и проектным площадям земельных участков
Опорный план
Разбивочный чертеж красных линий
Проект границ земельных участков
Пояснительная записка
|
|
408
|
ул. Каштановая аллея – ул. К. Маркса – ул. С. Разина
|
Постановление № 841 от 05.06.2014
Данные по нормативным и проектным площадям земельных участков
Опорный план
Разбивочный чертеж красных линий
Проект границ земельных участков
Пояснительная записка
|
|
409
|
ул. Зелёная (дома 72, 74)
|
Постановление № 813 от 03.06.2014
Данные по нормативным и проектным площадям земельных участков
Опорный план
Разбивочный чертеж красных линий
Проект границ земельных участков
Пояснительная записка
|
|
410
|
ул. Л. Толстого – ул. А. Невского
|
Постановление № 763 от 21.05.2014
Данные по нормативным и проектным площадям земельных участков
Опорный план
Разбивочный чертеж красных линий
Проект границ земельных участков
Пояснительная записка
|
|
411
|
ул. Батальная – ул. Серж. Щедина
|
Постановление № 724 от 21.05.2014
Данные по нормативным и проектным площадям земельных участков
Опорный план
Разбивочный чертеж красных линий
Проект границ земельных участков
Пояснительная записка
|
|
412
|
ул. Вагоностроительная – ул. Косогорная – пер. Косогорный
|
Постановление № 741 от 21.05.2014
Данные по нормативным и проектным площадям земельных участков
Опорный план
Разбивочный чертеж красных линий
Проект границ земельных участков
Пояснительная записка
|
|
413
|
ул. Некрасова – ул. Верхнеозёрная – ул. Грибоедова
|
Постановление № 762 от 21.05.2014
Данные по нормативным и проектным площадям земельных участков
Опорный план
Разбивочный чертеж красных линий
Проект границ земельных участков
Пояснительная записка
|
|
414
|
ул. К. Назаровой (дома с 17 по 49)
|
Постановление № 779 от 21.05.2014
Данные по нормативным и проектным площадям земельных участков
Опорный план
Разбивочный чертеж красных линий
Проект границ земельных участков
Пояснительная записка
|
|
415
|
ул. Крылова (дома с 2 по 8)
|
Постановление № 748 от 21.05.2014
Данные по нормативным и проектным площадям земельных участков
Опорный план
Разбивочный чертеж красных линий
Проект границ земельных участков
Пояснительная записка
|
|
416
|
ул. Лесопарковая – ул. Яблоневая аллея – ул. Нахимова
|
Постановление № 741 от 21.05.2014
Данные по нормативным и проектным площадям земельных участков
Опорный план
Разбивочный чертеж красных линий
Проект границ земельных участков
Пояснительная записка
|
|
417
|
ул. Ореховая – ул. Багратиона – ул. Омская – ул. Б. Хмельницкого
|
Постановление № 784 от 21.05.2014
Данные по нормативным и проектным площадям земельных участков
Опорный план
Проект границ земельных участков
Разбивочный чертеж красных линий
Пояснительная записка
|
|
418
|
ул.Судостроительная(дома 77-81, 81а)
|
Постановление № 776 от 21.05.2014
Данные по нормативным и проектным площадям земельных участков
Опорный план
Разбивочный чертеж красных линий
Проект границ земельных участков
Пояснительная записка
|
|
419
|
ул. Киевская, 126-130, 130А
|
Постановление № 764 от 21.05.2014
Данные по нормативным и проектным площадям земельных участков
Опорный план
Разбивочный чертеж красных линий
Проект границ земельных участков
Пояснительная записка
|
|
420
|
ул. Летний проезд – ул. Ген. Толстикова
|
Постановление № 722 от 21.05.2014
Данные по нормативным и проектным площадям земельных участков
Опорный план
Разбивочный чертеж красных линий
Проект границ земельных участков
Пояснительная записка
|
|
421
|
ул. Солнечногорская(дома с 19 по ЗЗ)
|
Постановление № 777 от 21.05.2014
Данные по нормативным и проектным площадям земельных участков
Опорный план
Разбивочный чертеж красных линий
Проект границ земельных участков
Пояснительная записка
|
|
422
|
ул. Фабричная – ул. Осиновая – пл. Октябрьская – ул. Сосновая
|
Постановление № 780 от 21.05.2014
Данные по нормативным и проектным площадям земельных участков
Опорный план
Разбивочный чертеж красных линий
Проект границ земельных участков
Пояснительная записка
|
|
423
|
ул. Типографская(дома с 2 по 12)
|
Постановление № 712 от 21.05.2014
Данные по нормативным и проектным площадям земельных участков
Опорный план
Разбивочный чертеж красных линий
Проект границ земельных участков
Пояснительная записка
|
|
424
|
ул. Судостроительная – ул. Батальная
|
Постановление № 723 от 21.05.2014
Данные по нормативным и проектным площадям земельных участков
Опорный план
Разбивочный чертеж красных линий
Проект границ земельных участков
Пояснительная записка
|
|
425
|
ул. Аллея смелых – ул. Клинская
|
Постановление № 807 от 03.06.2014
Данные по нормативным и проектным площадям земельных участков
Опорный план
Разбивочный чертеж красных линий
Проект границ земельных участков
Пояснительная записка
|
|
426
|
ул. Ленинградская – ул. Некрасова – ул. Грибоедова – пер. Грибоедова
|
Постановление № 746 от 21.05.2014
Опорный план
Разбивочный чертеж красных линий
Проект границ земельных участков
Пояснительная записка
|
|
427
|
ул. Балтийская – ул. Озёрная
|
Постановление № 747 от 21.05.2014
Данные по нормативным и проектным площадям земельных участков
Опорный план
Разбивочный чертеж красных линий
Проект границ земельных участков
Пояснительная записка
|
|
428
|
ул. Аллея смелых, 77, 79-81
|
Постановление № 849 от 05.06.2014
Данные по нормативным и проектным площадям земельных участков
Опорный план
Разбивочный чертеж красных линий
Проект границ земельных участков
Пояснительная записка
|
|
429
|
наб. Старопрегольская (дома 2-8, 10-18)
|
Постановление № 775 от 21.05.2014
Данные по нормативным и проектным площадям земельных участков
Опорный план
Разбивочный чертеж красных линий
Проект границ земельных участков
Пояснительная записка
|
|
430
|
ул. Черниговская – р. Лесная
|
Постановление № 806 от 03.06.2014
Данные по нормативным и проектным площадям земельных участков
Опорный план
Разбивочный чертеж красных линий
Проект границ земельных участков
Пояснительная записка
|
|
431
|
ул. Калужская (дома 24, 26, 28)
|
Постановление № 956 от 23.06.2014
Данные по нормативным и проектным площадям земельных участков
Опорный план
Разбивочный чертеж красных линий
Проект границ земельных участков
Пояснительная записка
|
|
432
|
ул. Комсомольская, 33, 35
|
Постановление № 956 от 23.06.2014
Данные по нормативным и проектным площадям земельных участков
Опорный план
Разбивочный чертеж красных линий
Проект границ земельных участков
Пояснительная записка
|
|
433
|
ул. Мусоргского (дома 52, 54)
|
Постановление № 956 от 23.06.2014
Данные по нормативным и проектным площадям земельных участков
Опорный план
Разбивочный чертеж красных линий
Проект границ земельных участков
Пояснительная записка
|
|
434
|
ул. Майская – ул. Парт. Железняка
|
Постановление № 909 от 19.06.2014
Данные по нормативным и проектным площадям земельных участков
Опорный план
Проект границ земельных участков
Пояснительная записка
|
|
435
|
ул. Красноярская – ул. Марш. Баграмяна
|
Постановление № 929 от 23.06.2014
Данные по нормативными проектным площадям земельных участков
Опорный план
Разбивочный чертеж красных линий
Проект границ земельных участков
Пояснительная записка
|
|
436
|
ул. Закавказская – ул. Чапаева – ул. Каштановая аллея – пер. Каштановый
|
Постановление № 931 от 23.06.2014
Данные по нормативным и проектым площадям земельных участков
Опорный план
Разбивочный чертеж красных линий
Проект границ земельных участков
Пояснительная записка
|
|
437
|
ул. Земельная (дома 16, 18, 20)
|
Постановление № 945 от 23.06.2014
Данные по нормативным и проектным площадям земельных участков
Опорный план
Разбивочный чертеж красных линий
Проект границ земельных участков
Пояснительная записка
|
|
441
|
ул. Станочная – ул. Радищева – ул. Поперечная – ул. Ремонтная, ул. Станочная, 21 – ул. Харьковская, 5-21
|
Постановление № 1056 от 10.07.2014
Данные по нормативным и проектным площадям земельных участков
Опорный план
Разбивочный чертеж красных линий
Проект границ земельных участков
Пояснительная записка
|
|
442
|
просп. Победы – пер. Ремонтный – ул. Ремонтная
|
Постановление № 1057 от 10.07.2014
Данные по нормативными проектным площадям земельных участков
Опорный план
Разбивочный чертеж красных линий
Проект границ земельных участков
Пояснительная записка
|
|
443
|
просп. Победы, 37, ул. Дм. Донского, 50
|
Постановление № 1056 от 10.07.2014
Данные по нормативными проектным площадям земельных участков
Опорный план
Разбивочный чертеж красных линий
Проект границ земельных участков
Пояснительная записка
|
|
444
|
ул. Садовая – ул. Киевская – пер. Портовиков 2-й
|
Постановление № 996 от 30.06.2014
Данные по нормативным и проектным площадям земельных участков
Опорный план
Разбивочный чертеж красных линий
Проект границ земельных участков
Пояснительная записка
|
|
445
|
ул.Чекистов (дома №№ 69-71, 73-75, 77-79)
|
Постановление № 1058 от 10.07.2014
Данные по нормативным и проектным площадям земельных участков
Опорный план
Разбивочный чертеж красных линий
Проект границ земельных участков
Пояснительная записка
|
|
446
|
пос. Западный
|
Постановление № 1058 от 10.07.2014
Данные по нормативным и проектным площадям земельных участков
Опорный план
Проект границ земельных участков
Пояснительная записка
|
|
447
|
ул. Ю. Маточкина, 6-16
|
Постановление № 999 от 30.06.2014
Данные по нормативным и проектным площадям земельных участков
Опорный план
Разбивочный чертеж красных линий
Проект границ земельных участков
Пояснительная записка
|
|
448
|
просп. Победы – ул. М. Расковой – ул. Пушкина – ул. Огарёва, ул. Бородинская, 8
|
Постановление № 1057 от 10.07.2014
Данные по нормативным и проектным площадям земельных участков
Опорный план
Разбивочный чертеж красных линий
Проект границ земельных участков
Пояснительная записка
|
|
449
|
ул. Кутузова – ул. Каштановая аллея – ул. Адмиральская
|
Постановление № 1009 от 02.07.2014
Данные по нормативным и проектным площадям земельных участков
Опорный план
Разбивочный чертеж красных линий
Проект границ земельных участков
Пояснительная записка
|
|
450
|
ул. Ялтинская – пер. Ялтинский
|
Постановление № 978 от 27.06.2014
Данные по нормативным и проектным площадям земельных участков
Опорный план
Разбивочный чертеж красных линий
Проект границ земельных участков
Пояснительная записка
|
|
451
|
ул. Рокоссовского – ул. Черняховского – ул. Минская – ул. Пролетарская
|
Постановление № 967 от 27.06.2014
Данные по нормативным и проектным площадям земельных участков
Опорный план
Разбивочный чертеж красных линий
Проект границ земельных участков
Пояснительная записка
|
|
452
|
ул. Толбухина – ул. Кутаисская – пер. Кутаисский
|
Постановление № 1014 от 02.07.2014
Данные по нормативным и проектным площадям земельных участков
Опорный план
Разбивочный чертеж красных линий
Проект границ земельных участков
Пояснительная записка
|
|
453
|
ул. Ушинского – ул. Театральная
|
Постановление № 1035 от 08.07.2014
Данные по нормативным и проектным площадям земельных участков
Опорный план
Разбивочный чертеж красных линий
Проект границ земельных участков
Пояснительная записка
|
|
454
|
ул. Юношеская (дома 6-8Б, 10-16)
|
Постановление № 1040 от 02.07.2014
Данные по нормативным и проектным площадям земельных участков
Опорный план
Разбивочный чертеж красных линий
Проект границ земельных участков
Пояснительная записка
|
|
455
|
ул. Чкалова (дома 108-128)
|
Постановление № 1036 от 08.07.2014
Данные по нормативным и проектным площадям земельных участков
Опорный план
Разбивочный чертеж красных линий
Проект границ земельных участков
Пояснительная записка
|
|
459
|
ул.Аллея смелых (для размещения линейного объекта)
|
Постановление № 1721 от 12.10.2015
Опорный план-1
Опорный план-2
Опорный план-3
Основной чертеж-1
Основной чертеж-2
Основной чертеж-3
Разбивочный чертёж красных линий-1
Разбивочный чертёж красных линий-2
Разбивочный чертёж красных линий-3
Пояснительная записка
|
|
460
|
ул.Ломоносова (для размещения линейного объекта)
|
Постановление № 1115 от 14.07.2015
Опорный план
Основной чертеж
Разбивочный чертёж красных линий
Пояснительная записка
|
|
464
|
ул. Ломоносова – Советский просп. – ул. Марш. Борзова
|
Постановление № 2072 от 11.12.2015
Опорный план
Основной чертеж
Пояснительная записка
|
|
465
|
ул. Вагоностроительная – наб. Правая – ул. Ручейная (для размещения линейного объекта – наб. Правой)
|
Постановление № 1115 от 14.07.2015
Опорный план
Основной чертеж
Разбивочный чертёж красных линий
Пояснительная записка
|
|
466
|
ул. Карташева (дома с 91 по 101)
|
Постановление № 1058 от 10.07.2014
Данные по нормативным и проектным площадям земельных
участков
Опорный план
Разбивочный чертеж красных линий
Проект границ земельных участков
Пояснительная записка
|
|
467
|
ул. Пионерская – ул. Томская – ул. Грига – ул. Фрунзе
|
Постановление № 499 от 31.03.2014
Данные по нормативным и проектным площадям земельных участков
Опорный план
Разбивочный чертеж красных линий
Проект границ земельных участков
Пояснительная записка
|
|
468
|
просп. Мира – ул. Серж. Колоскова – ручей Парковый – граница территории Центрального парка культуры и отдыха
|
Постановление № 977от 07.07.2016
Опорный план
Основной чертеж
Разбивочный чертёж красных линий
Пояснительная записка
|
|
469
|
ул. Н. Карамзина – ул. О. Кошевого
|
Постановление № 638 от 13.04.2015
Чертёж межевания территории
|
|
470
|
ул. Ген. Челнокова – ул. Согласия – ул. Гайдара – просп. Советский
|
Постановление № 646 от 15.04.2015
Основной чертеж
Опорный план
Пояснительная записка
|
|
471
|
ул. Мостовая – ул. И. Сусанина – ул. Согласия
|
Постановление № 1250 от 19.08.2014
Проект границ земельных участков
Опорный план
Разбивочный чертеж красных линий
Пояснительная записка
Данные по нормативным и проектным площадям земельных
участков
|
|
474
|
ул. А. Невского – ул. Артиллерийская – ул. Аэропортная – ул. Орудийная – ул. Ю. Гагарина – ул. Куйбышева
|
Постановление № 1371 от 15.09.2016
Опорный план
Основной чертёж
Чертёж межевания территории. Приложение
Пояснительная записка
|
|
476
|
ул. Тульская – ул. Балашовская – ул. Тамбовская – ул. Баженова
|
Постановление № 1661от 22.10.2014
Проект границ земельных участков
Опорный план
Разбивочный чертеж красных линий
Пояснительная записка
Данные по нормативным и проектным площадям земельных
участков
|
|
477
|
Севернее проспекта Московского на продолжении улиц Молодой гвардии, Аксакова,Б. Окружной
|
Постановление№ 1568 от 08.10.2014
Опорный план
Чертёж межевания территории
Данные по нормативным и проектным площадям земельных
участков
|
|
479
|
ул. А. Суворова – пер. Ладушкина – ул. Камская – железная дорога – перспективная улица
|
Постановление № 451 от 22.04.2016
Опорный план
Чертёж межевания территории
Пояснительная записка
Данные по нормативным и проектным площадям земельных
участков
|
|
483
|
ул. Лейт. Катина
|
Постановление № 1889 от 12.11.2015
Опорный план
Основной чертеж
Пояснительная записка
|
|
484
|
пер. Арсенальный, 16-90
|
Постановление № 1251 от 19.08.2014
Проект границ земельных участков
Опорный план
Разбивочный чертеж красных линий
Пояснительная записка
Данные по нормативным и проектным площадям земельных
участков
|
|
486
|
Проект межевания территории Московского и Ленинградского районов г.Калининграда, предназначенной для размещения стадиона на 45000 зрительских мест, финансирование строительства которого предусмотрено из федерального бюджета
|
Постановление правительства Калининградской области № 929 от 30.12.2014
Чертёж использования территории на период разработки проекта межевания
Чертёж границ земельных участков для образования территории с консолидацией грунтов
Чертёж границ земельных участков для размещения стадиона на 45000 зрительских мест, объектов инфраструктуры, иных объектов капитального строительства
Градостроительный план земельного участка
Пояснительная записка
|
|
487
|
ул. Ростовская – ул. Осипенко – ул. Каштановая аллея – ул. Чернышевского
|
Постановление № 1962 от 25.11.2015
Опорный план
Проект межевания территории
Разбивочный чертеж красных линий
Пояснительная записка
|
|
489
|
ул. Державина – ул. Лейт. Катина – ул. Палубная – ул. Бригадная – ул. Воронежская (пос. Зелёное)
|
Постановление № 1543 от 20.10.2017
Проект границ земельных участков
Опорный план
Пояснительная записка
|
|
490
|
ул. Белорусская, 38 – ул. Кировоградская, 53, 55
|
Постановление № 1258 от 04.08.2015
Опорный план
Проект границ земельных участков
Разбивочный чертеж красных линий
Пояснительная записка
Данные по нормативным и проектным площадям земельных участков
|
|
491
|
ул. Тамбовская – ул. Балашовская – ул. Тульская – ул. Баженова
|
Постановление № 561 от 27.03.2015
Опорный план
Проект границ земельных участков
Разбивочный чертеж красных линий
Пояснительная записка
Данные по нормативным и проектным площадям земельных
участков
|
|
492
|
пос. Совхозный
|
Постановление № 1215 от 31.07.2015
Опорный план
Проект границ земельных участков
Разбивочный чертеж красных линий
Пояснительная записка
Данные по нормативным и проектным площадям земельных
участков
|
|
494
|
ул. Лесная – ул. Островского – ул. Парковая аллея – ул. Молодёжная
|
Постановление № 101 от 01.02.2016
Опорный план
Основной чертеж
Пояснительная записка
|
|
499
|
бул. Ф. Лефорта (дома 14, 16)
|
Постановление № 689 от 22.04.2015
Проект границ земельных участков
Опорный план
Разбивочный чертеж красных линий
Данные по нормативным и проектным площадям земельных
участков
Пояснительная записка
|
|
500
|
ул. Тамбовская (дома 1-3 – 21-23)
|
Постановление № 688 от 22.04.2015
Проект границ земельных участков
Опорный план
Разбивочный чертеж красных линий
Данные по нормативным и проектным площадям земельных
участков
Пояснительная записка
|
|
501
|
ул. Береговаяв пос. Прибрежном (дома 17-27)
|
Постановление № 952 от 16.06.2015
Опорный план
Проект границ земельных участков
Разбивочный чертеж красных линий
Пояснительная записка
Данные по нормативным и проектным площадям земельных
участков
|
|
502
|
ул. Комсомольская(дома 46-52, 54-56)
|
Постановление № 1260 от 04.08.2015
Опорный план
Проект границ земельных участков
Разбивочный чертеж красных линий
Пояснительная записка
Данные по нормативным и проектным площадям земельных
участков
|
|
503
|
пос. М. Борисово (дома 1-11)
|
Постановление № 747 от 08.05.2015
Проект границ земельных участков
Опорный план
Разбивочный чертеж красных линий
Данные по нормативным и проектным площадям земельных
участков
Пояснительная записка
|
|
504
|
ул. Косм. Леонова – пер. Зоологический – ул. Зоологическая – просп. Мира
|
Постановление № 894 от 29.05.2015
Проект границ земельных участков
Опорный план
Разбивочный чертеж красных линий
Данные по нормативным и проектным площадям земельных
участков
Пояснительная записка
|
|
505
|
ул. Косм. Леонова – ул. Полк. Сафронова – ул. Зоологическая – пер. Зоологический
|
Постановление № 894 от 29.05.2015
Проект границ земельных участков
Опорный план
Разбивочный чертеж красных линий
Данные по нормативным и проектным площадям земельных
участков
Пояснительная записка
|
|
506
|
ул. Лейт. Яналова – ул. Красная – ул. Чернышевского
|
Постановление № 1259 от 04.08.2015
Опорный план
Проект границ земельных участков
Разбивочный чертеж красных линий
Пояснительная записка
Данные по нормативным и проектным площадям земельных
участков
|
|
507
|
ул. Солдатская – пер. 1-й Солдатский – пер. 2-й Солдатский
|
Постановление № 1259 от 04.08.2015
Опорный план
Проект границ земельных участков
Разбивочный чертеж красных линий
Пояснительная записка
Данные по нормативным и проектным площадям земельных
участков
|
|
509
|
ул. Тихорецкая
|
Постановление № 1763 от 29.10.2015
Основной чертеж
Пояснительная записка
|
|
510
|
ул. Береговаяв пос. Прибрежном (дома 24, 64, 66)
|
Постановление № 952 от 16.06.2015
Опорный план
Проект границ земельных участков
Разбивочный чертеж красных линий
Пояснительная записка
Данные по нормативным и проектным площадям земельных
участков
|
|
513
|
ул. Аксакова (дома 127, 129, 131)
|
Постановление № 276 от 10.03.2016
Опорный план
Проект границ земельных участков
Разбивочный чертеж красных линий
Пояснительная записка
Данные по нормативным и проектным площадям земельных
участков
|
|
514
|
ул. Воскресенская – пер. Заводской – ул. Заводская
|
Постановление № 1480 от 02.09.2015
Опорный план
Проект границ земельных участков
Разбивочный чертеж красных линий
Пояснительная записка
Данные по нормативным и проектным площадям земельных
участков
|
|
515
|
ул. Ю. Гагарина – руч. Гагаринский
|
Постановление № 1906 от 18.11.2015
Опорный план
Проект границ земельных участков
Разбивочный чертеж красных линий
Пояснительная записка
Данные по нормативным и проектным площадям земельных
участков
|
|
516
|
ул. Иртышская – пер. Иртышский – ул. Летняя
|
Постановление № 1248 от 04.08.2015
Опорный план
Проект границ земельных участков
Разбивочный чертеж красных линий
Пояснительная записка
Данные по нормативным и проектным площадям земельных
участков
|
|
518
|
ул. Ломоносова – ул. Белорусская – ул. Гравийная – ул. Херсонская
|
Постановление № 1402 от 19.08.2015
Опорный план
Проект границ земельных участков
Разбивочный чертеж красных линий
Пояснительная записка
Данные по нормативным и проектным площадям земельных
участков
|
|
519
|
ул. Ю. Маточкина, дома 7, 9 – ул. Гайдара, дома 94, 96
|
Постановление № 1528 от 09.09.2015
Опорный план
Проект границ земельных участков
Разбивочный чертеж красных линий
Пояснительная записка
Данные по нормативным и проектным площадям земельных
участков
|
|
520
|
ул. Машиностроительная, дома № 68А, № 68-72, № 74-84, № 8 6-96, № 98-108
|
Постановление № 1607 от 22.09.2015
Опорный план
Проект границ земельных участков
Разбивочный чертеж красных линий
Пояснительная записка
Данные по нормативным и проектным площадям земельных
участков
|
|
521
|
ул. Мечникова – ул. Мичурина – ул. С. Халтурина – ул. Шишкина
|
Постановление № 1251 от 04.08.2015
Опорный план
Проект границ земельных участков
Разбивочный чертеж красных линий
Пояснительная записка
Данные по нормативным и проектным площадям земельных
участков
|
|
522
|
ул. П. Морозова, дом 101-113 – ул. Беговая, дом 70-80
|
Постановление № 1611 от 22.09.2015
Опорный план
Проект границ земельных участков
Разбивочный чертеж красных линий
Пояснительная записка
Данные по нормативным и проектным площадям земельных
участков
|
|
523
|
ул. А. Невского (дома № 44, № 46)
|
Постановление № 1257 от 04.08.2015
Опорный план
Проект границ земельных участков
Разбивочный чертеж красных линий
Пояснительная записка
Данные по нормативным и проектным площадям земельных
участков
|
|
524
|
пер. Заводской
|
Постановление № 1751 от 20.10.2015
Опорный план
Проект границ земельных участков
Разбивочный чертеж красных линий
Пояснительная записка
Данные по нормативным и проектным площадям земельных
участков
|
|
525
|
пос. Совхозный
|
Постановление № 1437 от 31.08.2015
Опорный план
Проект границ земельных участков
Разбивочный чертеж красных линий
Пояснительная записка
Данные по нормативным и проектным площадям земельных участков
|
|
526
|
ул. Пулемётная – ул. Поселковая – ул. Валдайская
|
Постановление № 1604 от 22.09.2015
Опорный план
Проект границ земельных участков
Разбивочный чертеж красных линий
Пояснительная записка
Данные по нормативным и проектным площадям земельных
участков
|
|
527
|
ул. Репина – пер. Кирова – ул. Кирова – ул. Брамса
|
Постановление № 1476 от 02.09.2015
Опорный план
Проект границ земельных участков
Разбивочный чертеж красных линий
Пояснительная записка
Данные по нормативным и проектным площадям земельных
участков
|
|
528
|
ул. Стрелецкая(дома № 14-16, № 18-24)
|
Постановление № 1318 от 10.08.2015
Опорный план
Проект границ земельных участков
Разбивочный чертеж красных линий
Пояснительная записка
Данные по нормативным и проектным площадям земельных
участков
|
|
529
|
ул. И. Сусанина – ул. Георгиновая – ул. Поселковая – ул. Черноморская
|
Постановление № 1715 от 12.10.2015
Опорный план
Проект границ земельных участков
Разбивочный чертеж красных линий
Пояснительная записка
Данные по нормативным и проектным площадям земельных
участков
|
|
530
|
ул. Тенистая аллея – ул. Брусничная – ул. Серж. Мишина, 1
|
Постановление № 1167 от 21.07.2015
Опорный план
Проект границ земельных участков
Разбивочный чертеж красных линий
Пояснительная записка
Данные по нормативным и проектным площадям земельных
участков
|
|
531
|
ул. Ген. Челнокова – ул. В. Фермора
|
Постановление № 1529 от 09.09.2015
Опорный план
Проект границ земельных участков
Разбивочный чертеж красных линий
Пояснительная записка
Данные по нормативным и проектным площадям земельных
участков
|
|
533
|
ул. Лукашова – перспективная автомобильная дорога
|
Постановление № 1860 от 10.11.2015
Опорный план
Основной чертеж
Пояснительная записка
|
|
534
|
от ул. Железнодорожной, д. 5Б до пер. Паркового
|
Постановление № 1305 от 01.09.2016
Опорный план
Основной чертеж
Пояснительная записка
|
|
535
|
ул. Горная, ул. Полоцкая (район пересечения с ул. Портовой)
|
Постановление № 975 от 07.07.2016
Основной чертёж
Пояснительная записка
|
|
536
|
ул. Лукашова
|
Постановление № 421 от 08.04.2016
Опорный план
Основной чертеж
Пояснительная записка
|
|
537
|
ул. Ю. Гагарина – ул. Стрелецкая – ул. Суздальская – просп. Московский
|
Постановление № 1399 от 19.09.2016
Опорный план
Основной чертеж
Пояснительная записка
|
|
538
|
ул. Артиллерийская – ул. Пирогова – ул. Сурикова – ул. Орудийная
|
Постановление № 422 от 08.04.2016
Опорный план
Основной чертеж
Пояснительная записка
|
|
540
|
СНТ «Дружба»
|
Постановление № 94 от 31.01.2018
Основной чертёж
Опорный план
Пояснительная записка
|
|
541
|
ул. Тихорецкая – ул. Горная
|
Постановление № 165 от 13.02.2017
Схема расположения элемента планировочной структуры
Пояснительная записка
|
|
542
|
ул. Карташева
|
Постановление № 420 от 08.04.2016
Опорный план
Основной чертеж
Пояснительная записка
|
|
546
|
ул. Нансена – ул. Чаадаева – ул. А. Суворова
|
Постановление № 1724 от 12.10.2015
Опорный план
Проект границ земельных участков
Разбивочный чертеж красных линий
Пояснительная записка
Данные по нормативным и проектным площадям земельных
участков
|
|
548
|
ул. Гайдара – ул. Горького – ул. Нарвская
|
Постановление № 1496 от 12.10.2016
Опорный план
Основной чертеж
Пояснительная записка
|
|
551
|
ул. Литовский вал – ул. Стекольная – просп. Московский
|
Постановление № 461 от 11.04.2016
Опорный план
Основной чертеж
Пояснительная записка
|
|
552
|
пер. Нансена – ул. А. Суворова – ул. Железнодорожная
|
Постановление № 756 от 02.06.2016
Основной чертеж
Пояснительная записка
|
|
553
|
Северный обход города Калининграда от транспортной развязки на Зеленоградск до транспортной развязки на Балтийск включительно
|
Постановление Правительства Калининградской
области № 592 от 26.10.2015
Основной чертеж
Таблицы основного чертежа
Пояснительная записка
|
|
554
|
ул. А. Суворова – ул. Заводская
|
Постановление № 1927 от 19.11.2015
Опорный план
Основной чертеж
Пояснительная записка
|
|
555
|
просп. Московский – ручей Восточный – территория СНТ «Чайка» – ул. Баженова – территория СНТ «Заря» – ул. Ялтинская – эстакада «Восточная»
|
Постановление № 919 от 24.06.2016
Основной чертёж (лист 1)
Основной чертёж (лист 2)
Основной чертёж (лист 3)
Пояснительная записка
|
|
556
|
ул. Заводская – ул. Рабочая – ул. Поморская – ул. Залесская – проезд Кольский – пер. Рабочий
|
Постановление № 2161 от 25.12.2015
Опорный план
Основной чертеж
Разбивочный чертеж красных линий
Пояснительная записка
|
|
557
|
ул. Беланова – ул. Жиленкова – ул. Габайдулина – ул. Калачева
|
Постановление № 792 от 29.05.2017
Пояснительная записка
|
|
558
|
ул. Северная – ул. И. Сусанина
|
Постановление № 68 от 27.01.2016
Опорный план
Основной чертеж
Разбивочный чертеж красных линий
Пояснительная записка
|
|
559
|
ул. Ялтинская (дома № 26, № 28-30, № 32-34, № 38-40)
|
Постановление № 145 от 11.02.2016
Опорный план
План границ земельных участков
Разбивочный чертеж красных линий
Пояснительная записка
|
|
561
|
просп. Московский – ул. Литовский вал – наб. Адм. Трибуца – ул. Черепичная – пер. Литовский
|
Постановление № 65 от 23.01.2018
Основной чертёж
Опорный план
Пояснительная записка
|
|
562
|
ул. Щепкина – пер. Лаптевых – ул. Лаптевых
|
Постановление № 293 от 11.03.2016
Опорный план
План границ земельных участков
Разбивочный чертеж красных линий
Пояснительная записка
Данные по нормативным и проектным площадям земельных
участков
|
|
563
|
ул. Ломоносова – ул. Гурьева – ул. Лауреатная
|
Постановление № 382 от 31.03.2016
Опорный план
План границ земельных участков
Разбивочный чертеж красных линий
Пояснительная записка
|
|
564
|
ул. Некрасова – ул. Верхнеозёрная – ул. Грибоедова
|
Постановление № 641 от 18.05.2016
Опорный план
План границ земельных участков
Разбивочный чертеж красных линий
Пояснительная записка
Данные по нормативным и проектным площадям земельных
участков
|
|
565
|
ул. А. Невского – ул. Куйбышева – ул. Ю. Гагарина – ул. Литовский вал
|
Постановление № 280 от 10.03.2016
Опорный план 1
Основной чертеж 1
Опорный план 2
Основной чертеж 2
|
|
566
|
ул. А. Суворова – ул. Щепкина – ул. Лаптевых
|
Постановление № 426 от 08.04.2016
Опорный план
Основной чертеж
Пояснительная записка
Данные по нормативным и проектным площадям земельных
участков
|
|
567
|
ул. Парковая – проектируемая дорога – ул. Строительная
|
Постановление № 426 от 08.04.2016
Опорный план
Основной чертеж
Пояснительная записка
|
|
568
|
от ул. Октябрьской до железнодорожных путей (ориентир ул. Дюнная)
|
Постановление № 1478 от 10.09.2016
Схема расположения элемента планировочной структуры
Основной чертеж
Пояснительная записка
|
|
569
|
ул. Грига – пер. Черепичный – ул. Черепичная – наб. Адм. Трибуца
|
Постановление № 1000 от 11.07.2017
Опорный план
Основной чертеж
Пояснительная записка
Данные по нормативным и проектным площадям земельных
участков
|
|
571
|
ул. Р. Люксембург – водный объект
|
Постановление № 573 от 26.04.2016
Опорный план
Основной чертеж
Пояснительная записка
Данные по нормативным и проектным площадям земельных
участков
|
|
572
|
ул. Фурманова – проектная улица – ул. Ген. Белобородова – ул. 3-я Б. Окружная
|
Постановление № 592 от 27.04.2016
Опорный план
Основной чертеж
Пояснительная записка
Данные по нормативным и проектным площадям земельных
участков
|
|
573
|
пер. Судостроительный – ул. Судостроительная – ул. Судостроительная 2-я – производственная территория (ул. Судостроительная, 75)
|
Постановление № 1076 от 19.07.2017
Опорный план
Основной чертеж
Пояснительная записка
|
|
578
|
ул. Нахимова – ул. Яблоневая аллея – ул. Чапаева – ул. Энгельса
|
Постановление № 691 от 24.05.2016
Опорный план
Основной чертеж
Пояснительная записка
|
|
579
|
ул. Согласия – ул. Рассветная
|
Постановление № 995 от 10.07.2017
Чертёж межевания территории
|
|
581
|
ул. Б. Окружная 4-я – ул. Б. Окружная – территория ООО "КАТЕ-Девелопмент" – железнодорожный путь
|
Постановление № 509 от 13.04.2017
Опорный план
Основной чертеж
Пояснительная записка
|
|
582
|
ул. Серж. Мишина – ул. Менделеева – граница СНТ «Лето»
|
Постановление № 997 от 07.07.2016
Опорный план
Основной чертеж
Пояснительная записка
|
|
583
|
ул. Аллея смелых – ул. Н. Карамзина – приток р. Товарной
|
Постановление № 755 от 02.06.2016
Опорный план
Основной чертеж
Разбивочный чертеж красных линий
Пояснительная записка
|
|
586
|
Московский проспект – ул. Ялтинская – пер. Ялтинский
|
Постановление № 835 от 15.06.2016
Опорный план
Основной чертеж
Пояснительная записка
|
|
588
|
мкр. Совхозный
|
Постановление № 510 от 13.04.2017
Опорный план
Основной чертеж
Пояснительная записка
|
|
589
|
ул. Днепропетровская – ул. Запорожская
|
Постановление № 523 от 17.04.2017
Опорный план
Основной чертеж
Пояснительная записка
|
|
590
|
ул. Дзержинского – оз. Шенфлиз
|
Постановление № 523 от 17.04.2017
Опорный план
Основной чертеж
Пояснительная записка
|
|
591
|
мкр. Борисово
|
Постановление № 523 от 17.04.2017
Опорный план (лист 1)
Опорный план (лист 2)
Основной чертеж (лист 1)
Основной чертеж (лист 2)
Пояснительная записка
|
|
593
|
ул. Челюскинская – ул. Изумрудная – пер. Тихоокеанский
|
Постановление № 612 от 28.04.2017
Ситуационная схема
Основной чертеж
Пояснительная записка
|
|
594
|
ул. Славянская – ул. Изумрудная
|
Постановление № 612 от 28.04.2017
Ситуационная схема
Основной чертеж
Пояснительная записка
|
|
595
|
ул. Тихоокеанская – ул. Благодатная
|
Постановление № 612 от 28.04.2017
Ситуационная схема
Основной чертеж
Пояснительная записка
|
|
596
|
ул. Каблукова
|
Постановление № 612 от 28.04.2017
Ситуационная схема
Основной чертеж
Пояснительная записка
|
|
597
|
ул. Каблукова – ул. Славянская
|
Постановление № 612 от 28.04.2017
Ситуационная схема
Основной чертеж
Пояснительная записка
|
|
598
|
ул. Серж. Мишина – ул. Таймырская
|
Постановление № 612 от 28.04.2017
Ситуационная схема
Основной чертеж
Пояснительная записка
|
|
599
|
ул. Владимирская
|
Постановление № 612 от 28.04.2017
Ситуационная схема
Основной чертеж
Пояснительная записка
|
|
600
|
ул. Северная
|
Постановление № 612 от 28.04.2017
Ситуационная схема
Основной чертеж
Пояснительная записка
|
|
601
|
ул. Крылова
|
Постановление № 612 от 28.04.2017
Ситуационная схема
Основной чертеж
Пояснительная записка
|
|
602
|
ул. Р. Люксембург
|
Постановление № 612 от 28.04.2017
Ситуационная схема
Основной чертеж
Пояснительная записка
|
|
603
|
ул. Корсунская
|
Постановление № 612 от 28.04.2017
Ситуационная схема
Основной чертеж
Пояснительная записка
|
|
604
|
ул. Можайская – ул. Заводская – ул. Немировича-Данченко – ул. Баумана
|
Постановление № 612 от 28.04.2017
Ситуационная схема
Основной чертеж
Пояснительная записка
|
|
605
|
ул. Интернациональная – ул. Ген. Толстикова – ул. Иртышская
|
Постановление № 612 от 28.04.2017
Ситуационная схема
Основной чертеж
Пояснительная записка
|
|
606
|
ул. Аллея смелых – ул. Н. Карамзина
|
Постановление № 612 от 28.04.2017
Ситуационная схема
Основной чертеж
Пояснительная записка
|
|
607
|
ул. Аллея смелых – ул. О. Кошевого
|
Постановление № 612 от 28.04.2017
Ситуационная схема
Основной чертеж
Пояснительная записка
|
|
608
|
ул. Дзержинского – ул. Муромская
|
Постановление № 612 от 28.04.2017
Ситуационная схема
Основной чертеж
Пояснительная записка
|
|
609
|
пер. 3-й Ржевский – пер. Львовский
|
Постановление № 612 от 28.04.2017
Ситуационная схема
Основной чертеж
Пояснительная записка
|
|
610
|
ул. Айвазовского – ул. Лобачевского
|
Постановление № 612 от 28.04.2017
Ситуационная схема
Основной чертеж
Пояснительная записка
|
|
611
|
ул. Лобачевского
|
Постановление № 612 от 28.04.2017
Ситуационная схема
Основной чертеж
Пояснительная записка
|
|
612
|
ул. Ямская
|
Постановление № 612 от 28.04.2017
Ситуационная схема
Основной чертеж
Пояснительная записка
|
|
613
|
ул. Куприна
|
Постановление № 612 от 28.04.2017
Ситуационная схема
Основной чертеж
Пояснительная записка
|
|
614
|
ул. 1-я Б. Окружная – ул. 2-я Б. Окружная
|
Постановление № 405 от 21.03.2017
Ситуационная схема
Пояснительная записка
|
|
615
|
ул. Орудийная – ул. Сурикова – граница городской черты – ул. Ю. Гагарина
|
Постановление № 1821 от 25.12.2017
Опорный план
Основной чертеж
Пояснительная записка
Данные по нормативным и проектным площадям земельных
участков
|
|
616
|
ул. М. Светлова – руч. Молодёжный
|
Постановление № 981 от 07.07.2016
Опорный план
Основной чертеж
Пояснительная записка
|
|
617
|
ул. Гайдара – ул. Нарвская – проектная улица
|
Постановление № 917 от 24.06.2016
Опорный план
Основной чертеж
Пояснительная записка
Данные по нормативным и проектным площадям земельных
участков
|
|
619
|
ул. Самарская – ул. А. Болотова – пер. Ломоносова – ул. Ломоносова
|
Постановление № 617 от 04.05.2017
Опорный план
Основной чертеж
Пояснительная записка
|
|
620
|
ул. Камышовая – ул. Подп. Емельянова – граница пруда Мельничного
|
Постановление № 1228 от 23.08.2016
Опорный план
Основной чертеж
Пояснительная записка
|
|
624
|
ул. Украинская – ул. Согласия – ул. Рассветная – ул. Горького
|
Постановление № 1484 от 11.10.2017
Опорный план
Основной чертёж (лист 1)
Основной чертёж (лист 2)
Основной чертёж (лист 3)
Основной чертёж (лист 4)
Основной чертёж (лист 5)
Основной чертёж (лист 6)
Основной чертёж (лист 7)
Основной чертёж (лист 8)
Основной чертёж (лист 9)
Основной чертёж (лист 10)
Пояснительная записка
|
|
625
|
ул. Бассейная – ул. Саратовская – ул. Воздушная – просп. Мира
|
Постановление № 1230 от 24.08.2016
Опорный план
Основной чертеж
Пояснительная записка
Данные по нормативным и проектным площадям земельных
участков
|
|
626
|
ул. Ижорская – ул. Каблукова – ул. Джамбула – ул. Урицкого
|
Постановление № 1231 от 24.08.2016
Опорный план
Основной чертеж
Пояснительная записка
Данные по нормативным и проектным площадям земельных
участков
|
|
627
|
ул. Каштановая аллея – ул. Адмиральская – ул. Кутузова
|
Постановление № 1229 от 24.08.2016
Опорный план
Основной чертеж
Пояснительная записка
Данные по нормативным и проектным площадям земельных
участков
|
|
629
|
ул. Печатная – ул. П. Морозова – ул. Коммунистическая
|
Постановление № 1316 от 05.09.2016
Опорный план
Основной чертеж
Пояснительная записка
Данные по нормативным и проектным площадям земельных
участков
|
|
630
|
ул. Соколиная – ул. Полецкого – ул. 2-я Б. Окружная – ул. Ломоносова
|
Постановление № 1317 от 05.09.2016
Опорный план
Основной чертеж
Пояснительная записка
|
|
631
|
ул. Сурикова
|
Постановление № 612 от 28.04.2017
Ситуационная схема
Основной чертеж
Пояснительная записка
|
|
632
|
просп. Победы
|
Постановление № 612 от 28.04.2017
Ситуационная схема
Основной чертеж
Пояснительная записка
|
|
634
|
ул. М. Зощенко – ул. М. Булгакова – граница береговой полосы ручья Северного
|
Постановление № 1389 от 19.09.2016
Опорный план
Основной чертеж
Пояснительная записка
|
|
635
|
ул. Бородинская – ул. Дм. Донского – просп. Победы
|
Постановление № 1391 от 19.09.2016
Опорный план
Основной чертеж
Пояснительная записка
Данные по нормативным и проектным площадям земельных
участков
|
|
636
|
ул. Марш. Борзова – ул. Красная – ул. Ген.-лейт. Захарова – ул. Авторемонтная
|
Постановление № 1390 от 19.09.2016
Опорный план
Основной чертеж
Пояснительная записка
|
|
637
|
ул. Горького – ул. Ракитная – ул. Госпитальная – оз. Верхнее – ул. Черняховского – ул. Пролетарская – ул. Проф. Баранова
|
Постановление № 1081 от 19.07.2017
Опорный план
Основной чертеж
Пояснительная записка
|
|
638
|
ул. Черняховского – ул. Подп. Иванникова – ул. Ген. Соммера – просп. Ленинский
|
Постановление № 1475 от 10.10.2016
Опорный план
Основной чертеж
Пояснительная записка
Данные по нормативным и проектным площадям земельных
участков
|
|
639
|
ул. Пригородная – проезд – аэродром III-го класса Малое Исаково – военный городок
|
Постановление № 1474 от 10.10.2016
Опорный план
Основной чертеж
Пояснительная записка
|
|
640
|
просп. Московский – ул. Ботаническая – территория
МОУ СОШ № 23
|
Постановление № 1468 от 10.10.2016
Опорный план
Основной чертеж
Пояснительная записка
Данные по нормативным и проектным площадям земельных
участков
|
|
641
|
ул. Мечникова – ул. Шишкина – ул. Семипалатинская – ул. Мичурина
|
Постановление № 1467 от 10.10.2016
Опорный план
Основной чертеж
Пояснительная записка
Данные по нормативным и проектным площадям земельных
участков
|
|
642
|
ул. Краснооктябрьская – ул. Парусная – наб. Старопрегольская
|
Постановление № 1469 от 10.10.2016
Опорный план
Основной чертеж
Пояснительная записка
Данные по нормативным и проектным площадям земельных
участков
|
|
643
|
просп. Победы, дома №№ 62, 64, 66, 68, 70, 70А
|
Постановление № 1471 от 10.10.2016
Опорный план
Основной чертеж
Пояснительная записка
Данные по нормативным и проектным площадям земельных
участков
|
|
644
|
ул. Лукашова – ул. Лейт. Калинина – СНТ «Лесное» – СНТ «Сокол»
|
Постановление № 1473 от 10.10.2016
Опорный план
Основной чертеж
Пояснительная записка
Данные по нормативным и проектным площадям земельных
участков
|
|
645
|
ул. Казанская – ул. Новый вал – ул. Багратиона
|
Постановление № 1476 от 10.10.2016
Опорный план
Основной чертеж
Пояснительная записка
Данные по нормативным и проектным площадям земельных
участков
|
|
646
|
ул. Озёрная – ул. Островского – ул. Лесная – ул. Стрелковая
|
Постановление № 1792 от 19.12.2017
Основной чертеж
Опорный план
Пояснительная записка
|
|
647
|
ул. Гурьева – ул. Белостокская – ул. Ломоносова
|
Постановление № 1549 от 18.10.2016
Опорный план
Основной чертеж
Пояснительная записка
|
|
648
|
ул. Р. Люксембург – ул. Фурманова
|
Постановление № 1547 от 18.10.2016
Опорный план
Основной чертеж
Пояснительная записка
|
|
649
|
ул. Аллея смелых (дома №№ 154, 156, 160)
|
Постановление № 1591 от 28.10.2016
Опорный план
Основной чертеж
Пояснительная записка
|
|
650
|
ул. Лейт. Яналова – ул. Комсомольская – ул. Чернышевского – ул. Туркменская
|
Постановление № 1592 от 28.10.2016
Опорный план
Основной чертеж
Пояснительная записка
Данные по нормативным и проектным площадям земельных
участков
|
|
651
|
ул. Тенистая аллея – ул. Брусничная – ул. Млечная
|
Постановление № 1593 от 28.10.2016
Опорный план
Основной чертеж
Пояснительная записка
Данные по нормативным и проектным площадям земельных
участков
|
|
652
|
ул. Енисейская – ул. Каштановая аллея – пер. Коммунальный – пер. Енисейский
|
Постановление № 1594 от 28.10.2016
Опорный план
Основной чертеж
Пояснительная записка
|
|
653
|
ул. А. Невского – ул. Тельмана – руч. Северный
|
Постановление № 1595 от 28.10.2016
Опорный план
Основной чертеж
Пояснительная записка
Данные по нормативным и проектным площадям земельных
участков
|
|
654
|
ул. А. Невского (дома 214, 216, 218, 222)
|
Постановление № 1604 от 28.10.2016
Опорный план
Основной чертеж
Пояснительная записка
Данные по нормативным и проектным площадям земельных
участков
|
|
655
|
ул. Тихорецкая – ул. Киевская
|
Постановление № 1598 от 28.10.2016
Опорный план
Основной чертеж
Пояснительная записка
Данные по нормативным и проектным площадям земельных
участков
|
|
656
|
ул. Горького – ул. Ген.-лейт. Озерова – ул. Калязинская – граница береговой полосы
|
Постановление № 1676 от 09.11.2016
Опорный план
Основной чертеж
Пояснительная записка
|
|
657
|
ул. Киевская – ул. Беговая – проезд – граница земельного участка с кадастровым номером 39:15:150830:780
|
Постановление № 1675 от 09.11.2016
Опорный план
Основной чертеж
Пояснительная записка
Данные по нормативным и проектным площадям земельных
участков
|
|
658
|
ул. Броненосная – ул. Осетинская – ул. Бердянская – пер. Броненосный
|
Постановление № 1731 от 18.11.2016
Опорный план
Основной чертеж
Пояснительная записка
|
|
659
|
ул. Северная – проектируемый проезд
|
Постановление № 1730 от 18.11.2016
Опорный план
Основной чертеж
Пояснительная записка
|
|
660
|
ул. Р. Люксембург – пер. Р. Люксембург
|
Постановление № 1732 от 18.11.2016
Опорный план
Основной чертеж
Пояснительная записка
Данные по нормативным и проектным площадям земельных
участков
|
|
662
|
ул. Горького – ул. Ген.-лейт. Озерова – ул. Азовская – р. Голубая
|
Постановление № 1824 от 26.12.2017
Опорный план
Основной чертеж
Пояснительная записка
Данные по нормативным и проектным площадям земельных
участков
|
|
663
|
пер. Энергетиков
|
Постановление № 604 от 27.04.2017
Основной чертеж
|
|
665пр
|
ул. Ялтинская – Московский проспект, ул. Аллея смелых – ул. Дзержинского – ул. Яблочная
|
Постановление Правительства Калининградской области № 518 от 02.11.2016
Основной чертеж. Лист 1
Основной чертеж. Лист 2
Приложение 1
Приложение 2
Пояснительная записка
|
|
666
|
ул. Гагарина (от ул. Орудийной до границы городской черты)
|
Постановление № 225 от 15.03 .2018
Чертёж межевания территории
Опорный план
|
|
667
|
ул. Бассейная – просп. Победы – ул. Лесопарковая – пер. Лесопарковый
|
Постановление № 1836 от 07.12.2016
Опорный план
Основной чертеж
Пояснительная записка
Данные по нормативным и проектным площадям земельных
участков
|
|
668
|
ул. Жуковского – ул. Менделеева – ул. Белинского – ул. Радистов
|
Постановление № 1836 от 07.12.2016
Опорный план
Основной чертеж
Пояснительная записка
Данные по нормативным и проектным площадям земельных
участков
|
|
669
|
ул. Ген. Павлова
|
Постановление № 1 от 12.01.2018
Основной чертеж. Лист 1
Основной чертеж. Лист 2
|
|
670
|
ул. Киевская – ул. Берёзовая – железная дорога
|
Постановление № 1892 от 14.12.2016
Опорный план
Основной чертеж
Пояснительная записка
Данные по нормативным и проектным площадям земельных
участков
|
|
671
|
ул.
Ген. Толстикова – ул. Батальная – пер. 2-й Альпийский – пер. 1-й Альпийский
|
Постановление № 1893 от 14.12.2016
Опорный план
Основной чертеж
Пояснительная записка
|
|
672
|
ул. А. Невского – ул. Береговая – ул. Сержантская – береговая полоса оз. Верхнего – ул. Некрасова
|
Постановление № 1622 от 03.11 .2017
Чертёж межевания территории
Опорный план
Пояснительная записка
|
|
673
|
ул. Галактическая – ул. Тенистая аллея – ул. Брусничная
|
Постановление № 1943 от 19.12.2016
Опорный план
Основной чертеж
Пояснительная записка
Данные по нормативным и проектным площадям земельных
участков
|
|
674
|
ул. Билибина – ул. Поселковая – ул. Пулемётная – ул. Миномётная
|
Постановление № 1944 от 19.12.2016
Опорный план
Основной чертеж
Пояснительная записка
|
|
675
|
ул. Парусная – ул. Краснооктябрьская – ул. Новый вал – ул. Казанская
|
Постановление № 1972 от 22.12.2016
Опорный план
Основной чертеж
Пояснительная записка
Данные по нормативным и проектным площадям земельных
участков
|
|
676
|
шос. Балтийское – западная граница городской черты
|
Постановление № 1069 от 17.07.2017
Чертёж межевания территории
Опорный план
Пояснительная записка
|
|
677
|
ул. Черноморская – ул. Поселковая – ул. Билибина – ул. И. Сусанина
|
Постановление № 1987 от 26.12.2016
Опорный план
Основной чертеж
Пояснительная записка
|
|
678
|
ул. Пугачева – ул. С. Разина – ул. Красная
|
Постановление № 2012 от 26.12.2016
Опорный план
Основной чертеж
Пояснительная записка
Данные по нормативным и проектным площадям земельных
участков
|
|
680
|
ул. Каштановая аллея – ручей Воздушный – пруд Нескучный – ул. Спортивная – ул. Олимпийская – ул. Марш. Борзова
|
Постановление № 979 от 03.10.2018
Чертёж межевания территории
Опорный план
Пояснительная записка
|
|
681
|
ул. Орудийная – береговая полоса ручья Гагаринского
|
Постановление № 2051 от 30.12.2016
Опорный план
Основной чертеж
Пояснительная записка
Данные по нормативным и проектным площадям земельных
участков
|
|
682
|
ул. Красносельская – ул. Саратовская – ул. Воздушная – проспект Мира
|
Постановление № 2052 от 30.12.2016
Опорный план
Основной чертеж
Пояснительная записка
Данные по нормативным и проектным площадям земельных
участков
|
|
683
|
ул. П. Флоренского – ул. А. Болотова – пер. П. Флоренского
|
Постановление № 2052 от 30.12.2016
Опорный план
Основной чертеж
Пояснительная записка
|
|
684
|
пр-кт Советский (от ул. Марш. Борзова до ул. Габайдулина)
|
Постановление № 67 от 08.02.2019
Чертёж межевания территории. Лист 1
Чертёж межевания территории. Лист 2
Чертёж межевания территории. Лист 3
Чертёж межевания территории. Лист 4
Пояснительная записка
|
|
686
|
ул. Ген. Толстикова – ул. Автомобильная – ул. Летняя
|
Постановление № 17 от 16.01.2017
Опорный план
Основной чертеж
Пояснительная записка
Данные по нормативным и проектным площадям земельных
участков
|
|
687
|
ул. М. Цветаевой – ул. И. Франко – ул. Б. Пастернака – ул. М. Волошина
|
Постановление № 19 от 16.01.2017
Опорный план
Основной чертеж
Пояснительная записка
|
|
688
|
ул. Сурикова – ул. Старокаменная – пер. Старокаменный
|
Постановление № 46 от 18.01.2017
Опорный план
Основной чертеж
Пояснительная записка
|
|
689
|
ул. Л. Толстого – ул. Лескова – ул. Некрасова – граница береговой полосы водных объектов (ручья Северного, пруда Верхнего)
|
Постановление № 60 от 19.01.2017
Опорный план
Основной чертеж
Пояснительная записка
|
|
690
|
ул. Б. Окружная – ул. Печатная
|
Постановление № 62 от 19.01.2017
Опорный план
Основной чертеж
Пояснительная записка
|
|
691
|
ул. Урицкого – ул. Карташева – ул. Каблукова – пер. Джамбула
|
Постановление № 63 от 19.01.2017
Опорный план
Основной чертеж
Пояснительная записка
|
|
693
|
пер. Войнова – ул. Дзержинского – береговая полоса р. Лесной
|
Постановление № 75 от 24.01.2017
Опорный план
Основной чертеж
Пояснительная записка
|
|
694
|
ул. Лётная – ул. Аллея смелых
|
Постановление № 79 от 24.01.2017
Опорный план
Основной чертеж
Пояснительная записка
|
|
696
|
ул. Лётная – ул. Аллея смелых
|
Постановление № 97 от 25.01.2017
Опорный план
Основной чертеж
Пояснительная записка
|
|
697
|
ул. Лётная – ул. Аллея смелых
|
Постановление № 98 от 25.01.2017
Опорный план
Основной чертеж
Пояснительная записка
|
|
698
|
Московский проспект – ул. Дзержинского
|
Постановление № 626 от 23.12.2016
Схема расположения элемента планировочной структуры
|
|
699
|
ул. Карташева – пер. Бодайбинский
|
Постановление № 106 от 27.01.2017
Опорный план
Основной чертеж
Пояснительная записка
Данные по нормативным и проектным площадям земельных
участков
|
|
700
|
ул. Полецкого – ул. Гурьева – ул. Белостокская – гаражное общество «Сатурн»
|
Постановление № 109 от 27.01.2017
Опорный план
Основной чертеж
Пояснительная записка
|
|
701
|
ул. Калачева – ул. Гавриленко – ул. Габайдулина – граница водного объекта
|
Постановление № 109 от 27.01.2017
Опорный план
Основной чертеж
Пояснительная записка
|
|
702
|
ул. Дм. Донского – ул. Горная – ж/д пути
|
Постановление № 109 от 27.01.2017
Опорный план
Основной чертеж
Пояснительная записка
|
|
703
|
ул. В. Гюго – остров И. Канта
|
Постановление № 353 от 17.04.2019
Чертёж межевания территории
Пояснительная записка
|
|
704
|
ул. Тельмана – ул. Некрасова
|
Постановление № 105 от 27.01.2017
Опорный план
Основной чертеж
Пояснительная записка
Данные по нормативным и проектным площадям земельных
участков
|
|
705
|
ул. Лукашова (от ул. Горбунова до территории городских лесов)
|
Постановление № 551 от 05.06.2018
Пояснительная записка
Данные по нормативным и проектным площадям земельных
участков
|
|
706пр
|
Южный обход – ул. Полк. Емельянова
|
Постановление Правительства Калининградской области № 2 от 09.02.2017
Схема расположения элемента планировочной структуры
Чертёж межевания территории
Пояснительная записка
|
|
707
|
ул. 1812 года – ул. Грига – просп. Московский – ул. Лазаретная
|
Постановление № 207 от 15.02.2017
Опорный план
Основной чертеж
Пояснительная записка
|
|
708
|
ул. Арсенальная – пер. Арсенальный
|
Постановление № 203 от 15.02.2017
Опорный план
Основной чертеж
Пояснительная записка
Данные по нормативным и проектным площадям земельных
участков
|
|
709
|
ул.
Энергетиков – железнодорожный путь – городская черта
|
Постановление № 597 от 26.04.2017
Чертёж межевания территории
Пояснительная записка
|
|
710
|
ул. Г. Тимофеевой – пер. Г. Тимофеевой, 1-й
|
Постановление № 279 от 28.02.2017
Опорный план
Основной чертеж
Пояснительная записка
Данные по нормативным и проектным площадям земельных
участков
|
|
711
|
ул. Дзержинского – проектируемый проезд
|
Постановление № 256 от 21.02.2017
Опорный план
Основной чертеж
Пояснительная записка
|
|
712
|
ул. Верхнеозёрная – ул. Некрасова – береговая полоса озера Верхнего
|
Постановление № 529 от 30.05.2018
Чертёж межевания территории
Опорный план
Пояснительная записка
|
|
713
|
ул. Соколиная – ул. Ломоносова – ул. 2-я Б. Окружная
|
Постановление № 396 от 16.03.2017
Опорный план
Основной чертеж
Пояснительная записка
|
|
714
|
ул. Старосапёрная – ул. Староорудийная – ул. Краснокаменная
|
Постановление № 455 от 30.03.2017
Опорный план
Основной чертеж
Пояснительная записка
|
|
715
|
ул. Горького – ул. 3-я Б. Окружная – территория военного городка
|
Постановление № 456 от 30.03.2017
Опорный план
Основной чертеж
Пояснительная записка
Данные по нормативным и проектным площадям земельных
участков
|
|
716
|
ул. Коломенская – ул. Велосипедная дорога – проектируемый проезд
|
Постановление № 457 от 30.03.2017
Опорный план
Основной чертеж
Пояснительная записка
|
|
717
|
ул. Кировоградская
|
Постановление № 459 от 30.03.2017
Опорный план
Основной чертеж
Пояснительная записка
|
|
718
|
ул. В. Дубинина, 10, ул. Цирковая, 11Б, ул. Цирковая, 11 – ул. Цирковая – ул. Менделеева – ул. В. Дубинина
|
Постановление № 992 от 10.07.2017
Опорный план
Основной чертеж
Пояснительная записка
Данные по нормативным и проектным площадям земельных
участков
|
|
719
|
ул. Артиллерийская – перспективные проезды
|
Постановление № 1082 от 19.07.2017
Опорный план
Основной чертеж
Пояснительная записка
|
|
720
|
ул. Гурьева – ул. 2-я Б. Окружная – ул. Ломоносова – ул. Лауреатная
|
Постановление № 172 от 22.02.2018
Опорный план
Основной чертеж
Пояснительная записка
|
|
721
|
ул. Арзамасская – пер. Сызранский – ул. Казахская – пер. Арзамасский
|
Постановление № 1113 от 21.07.2017
Опорный план
Основной чертеж
Пояснительная записка
|
|
722
|
ул. Г. Тимофеевой – ул. Керченская – пер. Г. Тимофеевой 1-й
|
Постановление № 1211 от 07.08.2017
Опорный план
Основной чертеж
Пояснительная записка
|
|
723
|
ул. А. Невского – ул. Краснокаменная
|
Постановление № 1333 от 30.08.2017
Опорный план
Основной чертеж
Пояснительная записка
|
|
724
|
ул. Бакинская – ул. Шуйская 1-я – ул. Тульская – ул. Шуйская 2-я
|
Постановление № 921 от 20.06.2017
Опорный план
Основной чертеж
Разбивочный чертеж красных линий
Пояснительная записка
|
|
725
|
ул. Тургенева – ул. Тельмана – ж/д пути
|
Постановление № 1409 от 15.09.2017
Опорный план
Основной чертеж
Пояснительная записка
|
|
726
|
ул. А. Невского – проектная улица
|
Постановление № 520 от 17.04.2017
Опорный план
Основной чертеж
Пояснительная записка
|
|
727
|
ул. Печатная
|
Постановление № 173 от 22.02.2018
Опорный план
Основной чертеж
Разбивочный чертеж красных линий
Пояснительная записка
|
|
728
|
ул. Поселковая – ул. Черноморская – ул. И. Сусанина – ул. Георгиновая
|
Постановление № 653 от 05.05.2017
Опорный план
Основной чертеж
Пояснительная записка
|
|
729
|
ул. Коммунистическая – ул. Летняя – ул. П. Морозова
|
Постановление № 652 от 05.05.2017
Опорный план
Основной чертеж
Пояснительная записка
Данные по нормативным и проектным площадям земельных
участков
|
|
731
|
просп. Советский – ул. Габайдулина – шос. Люблинское – граница береговой полосы р. Голубой
|
Постановление № 737 от 23.05.2017
Опорный план
Основной чертеж
Пояснительная записка
|
|
732
|
ул. Жиленкова – р. Голубая
|
Постановление № 769 от 26.05.2017
Опорный план
Основной чертеж
Пояснительная записка
Данные по нормативным и проектным площадям земельных
участков
|
|
733
|
ул. Поселковая – ул. Георгиновая – ул. И. Сусанина – ул. Прицельная
|
Постановление № 772 от 26.05.2017
Опорный план
Основной чертеж
Пояснительная записка
|
|
734
|
ул. Баженова – ул. Тульская – ул. Ялтинская – ул. Бакинская
|
Постановление № 827 от 06.06.2017
Опорный план
Основной чертеж
Пояснительная записка
|
|
735
|
ул. Адм. Макарова, 16, 18, 20
|
Постановление № 881 от 15.06.2017
Опорный план
Основной чертеж
Пояснительная записка
|
|
736
|
ул. Ю. Гагарина – береговая полоса руч. Литовского
|
Постановление № 928 от 20.06.2017
Опорный план
Основной чертеж
Разбивочный чертеж красных линий
Пояснительная записка
|
|
737
|
ул. Эльблонгская, 16, 18, 18А
|
Постановление № 1085 от 19.07.2017
Опорный план
Основной чертеж
Пояснительная записка
|
|
738
|
ул. Двинская – ул. Севастопольская – пер. Севастопольский – железная дорога
|
Постановление № 1087 от 19.07.2017
Опорный план
Основной чертеж
Пояснительная записка
|
|
739
|
ул. Белорусская – ул. Гравийная – ул. Херсонская – ул. Полецкого
|
Постановление № 1088 от 19.07.2017
Опорный план
Основной чертеж
Пояснительная записка
Данные по нормативным и проектным площадям земельных
участков
|
|
740
|
ул. Херсонская – ул. Ломоносова – ул. Соколиная – ул. Кировоградская
|
Постановление № 1212 от 07.08.2017
Опорный план
Основной чертеж
Пояснительная записка
|
|
741пр
|
ул. Театральная – просп. Гвардейский – пл. Победы
|
Постановление Правительства Калининградской области № 443 от 21.08.2017
Опорный план
Основной чертеж
Пояснительная записка
|
|
742
|
ул. Г. Тимофеевой – пер. 1-й Камский – железная дорога – ул. Камская
|
Постановление № 1334 от 30.08.2017
Опорный план
Основной чертеж
Пояснительная записка
Данные по нормативным и проектным площадям земельных
участков
|
|
743
|
ул. А. Невского – ул. Ю. Смирнова
|
Постановление № 1410 от 15.09.2017
Опорный план
Основной чертеж
Пояснительная записка
Данные по нормативным и проектным площадям земельных
участков
|
|
744
|
просп. Мира, 174Б, 176
|
Постановление № 1411 от 15.09.2017
Опорный план
Основной чертеж
Разбивочный чертеж красных линий
Пояснительная записка
|
|
745
|
просп. Победы – пер. Лесная аллея
|
Постановление № 1446 от 02.10.2017
Опорный план
Основной чертеж
Пояснительная записка
|
|
746
|
ул. Славянская – ул. Макаренко – ул. Селенгинская – ул. Механическая
|
Постановление № 689 от 05.07.2018
Опорный план
Основной чертеж
Пояснительная записка
|
|
747пр
|
ул. Лесная – ул. Беломорская – ул. Стрелковая
|
Постановление Правительства Калининградской области № 390 от 02.07.2018
Опорный план
Основной чертеж
Разбивочный чертеж красных линий
Пояснительная записка
Данные по нормативным и проектным площадям земельных участков
|
|
748пр
|
ул. Лауреатная – ул. Гурьева – ул. Ломоносова – проектная улица
|
Постановление Правительства Калининградской области № 85 от 19.02.2018
Опорный план
Основной чертеж
Разбивочный чертеж красных линий
Пояснительная записка
|
|
750пр
|
ул. 1-я Алтайская – ул. Селенгинская – ул. 2-я Алтайская – ул. Сестрорецкая
|
Постановление Правительства Калининградской области № 84 от 19.02.2018
Опорный план
Основной чертеж
Пояснительная записка
|
|
752пр
|
ул. Тихоокеанская – ул. Механическая – ул. Славянская
|
Постановление Правительства Калининградской области № 613 от 27.11.2017
Опорный план
Основной чертеж
Пояснительная записка
Данные по нормативным и проектным площадям земельных участков
|
|
753пр
|
ул. Челюскинская – ул. Ижорская
|
Постановление Правительства Калининградской области № 559 от 23.10.2017
Опорный план
Основной чертеж
Пояснительная записка
|
|
755пр
|
ул. Левитана
|
Постановление Правительства Калининградской области № 540 от 12.10.2017
Опорный план
Основной чертеж
Пояснительная записка
|
|
756пр
|
ул. Римского-Корсакова – ул. Чайковского – ул. Брамса – ул. Ш. Руставели – тупик Зоологический
|
Приказ Агентства по архитектуре, градостроению и перспективному развитию Калининградской области № 355 от 25.12.2018
Основная часть проекта планировки территории
|
|
758
|
ул. Менделеева – пер. Розовый – пер. Рябиновый – ул. Серж. Мишина – ул. Жуковского
|
Постановление № 119 от 09.02.2018
Опорный план
Основной чертеж
Разбивочный чертеж красных линий
Пояснительная записка
|
|
759пр
|
ул. Дзержинского – внутриквартальные проезды
|
Постановление правительства Калининградской области № 27 от 22.01.2018
Опорный план
Основной чертеж
Пояснительная записка
|
|
762пр
|
ул. Трудовая – ул. Б. Окружная, 1-я – ул. Тенистая аллея – ул. Проточная
|
Приказ Агентства по архитектуре, градостроению и перспективному развитию Калининградской области № 17 от 17.01.2019
Основная часть проекта планировки территории
|
|
765пр
|
просп. Московский – ул. Ялтинская – проезд – южная граница земельных участков с кадастровыми номерами 39:15:132534:3, 39:15:132534:19 – руч. Литовский
|
Приказ Агентства по архитектуре,градостроению и перспективному развитию Калининградской области № 36 от 24.01.2019 Основная часть проекта планировки
территории |
|
767пр
|
ул. Юбилейная
|
Приказ Агентства по архитектуре, градостроению и перспективному развитию Калининградской области № 18 от 17.01.2019
Основная часть проекта планировки территории
|
|
772пр
|
ул. Дачная – часть ул. Стрелецкой
|
Приказ Агентства по архитектуре, градостроению и перспективному развитию Калининградской области № 321 от 29.11.2018
Основная часть проекта планировки территории
|
|
779пр
|
ВЛ 110 кВ ПС Луговая – ПС Юго-Восточная (ВЛ 179/180) – ПС 110 кВ Окружная
|
Приказ Агентства по архитектуре, градостроению и перспективному развитию Калининградской области № 13 от 15.01.2019
Основная часть проекта планировки территории
|
|
780пр
|
Северный обход города Калининграда от транспортной развязки на Московском проспекте до транспортной развязки на Зеленоградск включительно
|
Приказ Агентства по архитектуре, градостроению и перспективному развитию Калининградской области № 50 от 01.02.2019
Основная часть проекта планировки территории
|